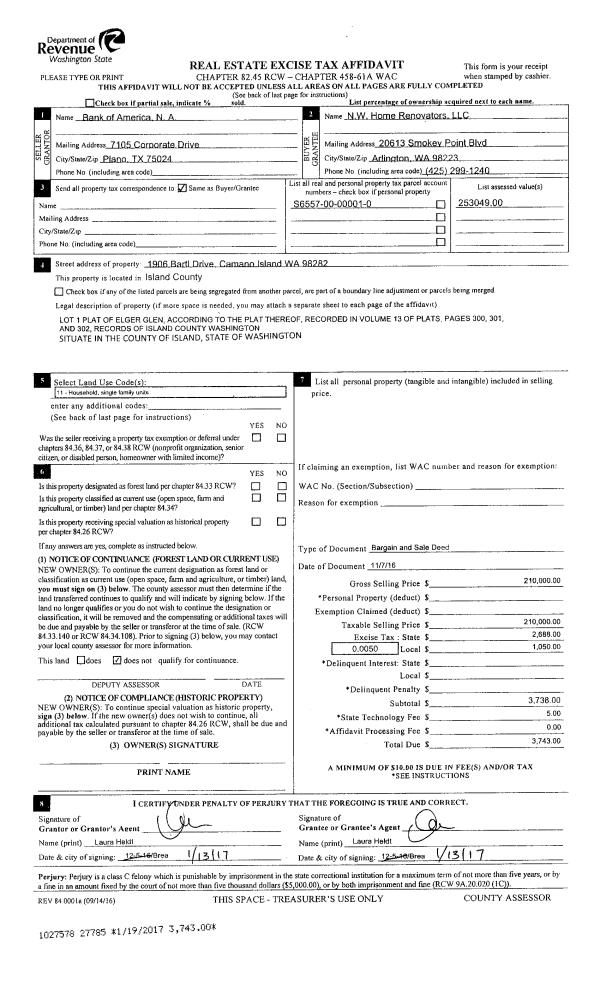
Property
Account |
| Property ID: | 726708 | Abbreviated Legal Description: | MUTINY BAY PK 1 LOT 25 |
| Geographic ID: | S7540-00-00025-0 | Agent Code: | |
| Type: | Real | | |
| Tax Area: | 710 - APPRAISER-S Whid Schl Dist, outside Langley, improved & 1 acre or less | Land Use Code | 11 |
| Open Space: | N | DFL | N |
| Historic Property: | N | Remodel Property: | N |
| Multi-Family Redevelopment: | N | | |
| Township: | | Section: | |
| Range: | |
Location |
| Address: | 5296 BOUNTY LOOP FREELAND, WA 98249 | Mapsco: | |
| Neighborhood: | Cycle 3 | Map ID: | 291 |
| Neighborhood CD: | 3 |
Owner |
| Name: | WESTERFIELD, INGRID | Owner ID: | 278846 |
| Mailing Address: | 5296 BOUNTY LOOP FREELAND, WA 98249 | % Ownership: | 100.0000000000% |
| | | Exemptions: | |
Taxes and Assessment Details
Values
| (+) Improvement Homesite Value: | + | $0 | |
| (+) Improvement Non-Homesite Value: | + | $30,319 | |
| (+) Land Homesite Value: | + | $0 | |
| (+) Land Non-Homesite Value: | + | $250,000 | |
| (+) Curr Use (HS): | + | $0 | $0 |
| (+) Curr Use (NHS): | + | $0 | $0 |
| | | -------------------------- | |
| (=) Market Value: | = | $280,319 | |
| (–) Productivity Loss: | – | $0 | |
| | | -------------------------- | |
| (=) Subtotal: | = | $280,319 | |
| (+) Senior Appraised Value: | + | $0 | |
| (+) Non-Senior Appraised Value: | + | $280,319 | |
| | | -------------------------- | |
| (=) Total Appraised Value: | = | $280,319 | |
| (–) Senior Exemption Loss: | – | $0 | |
| (–) Exemption Loss: | – | $0 | |
| | | -------------------------- | |
| (=) Taxable Value: | = | $280,319 | |
Taxing Jurisdiction
| Owner: | WESTERFIELD, INGRID | | |
| % Ownership: | 100.0000000000% | | |
| Total Value: | $280,319 | | |
| Tax Area: | 710 - APPRAISER-S Whid Schl Dist, outside Langley, improved & 1 acre or less |
| CF | Conservation Futures | 0.0316035091 | $280,319 | $280,319 | $8.86 | | |
| FIRE3 | Fire & Rescue Dist #3 S Whidbey GEN | 1.2004855531 | $280,319 | $280,319 | $336.52 | | |
| HOBOND | Hospital BOND | 0.1910887512 | $280,319 | $280,319 | $53.57 | | |
| HOGEN | Hospital GEN | 0.3902502903 | $280,319 | $280,319 | $109.39 | | |
| CE | County Current Expense | 0.3708482477 | $280,319 | $280,319 | $103.96 | | |
| CR | County Roads | 0.4584763726 | $280,319 | $280,319 | $128.52 | | |
| ISLANDEMS | Hospital GEN (EMS) | 0.5000000000 | $280,319 | $280,319 | $140.16 | | |
| LIB | Library Sno-Isle GEN | 0.3153421757 | $280,319 | $280,319 | $88.40 | | |
| PORTWHID | Port of S Whidbey GEN | 0.1094540357 | $280,319 | $280,319 | $30.68 | | |
| SCH206BOND | School 206 BOND | 0.3161759235 | $280,319 | $280,319 | $88.63 | | |
| SCH206MO | School 206 Enrichment | 0.4547169547 | $280,319 | $280,319 | $127.47 | | |
| ST | State School | 1.3035497053 | $280,319 | $280,319 | $365.41 | | |
| ST2 | State School Part 2 | 0.8169543533 | $280,319 | $280,319 | $229.01 | | |
| SWHIDPRBD | P & R S Whidbey BOND | 0.0152817568 | $280,319 | $280,319 | $4.28 | | |
| SWHIDPRBD2 | P & R S Whidbey BOND2 | 0.0138911264 | $280,319 | $280,319 | $3.89 | | |
| SWHIDPRMT | P & R S Whidbey GEN | 0.2053334452 | $280,319 | $280,319 | $57.56 | | |
| | Total Tax Rate: | 6.6934522006 | | | | | |
| | | | | Taxes w/Current Exemptions: | $1,876.31 | | |
| | | | | Taxes w/o Exemptions: | $1,876.31 | | |
Improvement / Building
| Improvement #1: | MANUFACTURED HOME | State Code: | Y | 1421.0 sqft | Value: | $30,319 |
| Bathrooms: | 0 | Bedrooms: | 0 | | Ceiling: | PLASTER PAINTED | Cooling: | EVAP NO DUCT | | Exterior Wall/Cover: | VINYL | Floor Covering: | CARPET 100% | | Floor Structure: | SLAB ON GRADE | Foundation: | SLAB | | Heating: | FHA ELECTRIC | Interior Finish: | PLASTER | | Plumbing Fixture Cnt: | 1 | Roof Slope: | FLAT | | Roof Structure/Cover: | CJ ALUMINIUM HEAVY |   |   |
|
| | Type | Description | Class CD | Sub Class CD | Year Built | Area |
| | BAS | BASE/MAIN FLOOR | 3 | 0 | 1978 | 1421.0 |
| | DGR | DETACHED GARAGE | 3 | 0 | 1978 | 720.0 |
Sketch
Property Image
Land
| 1 | 17 | AC (01.01-02.00) | 0.0000 | 0.00 | 0.00 | 0.00 | 1.00 | $250,000 | $0 |
Roll Value History
| 2026 | N/A | N/A | N/A | N/A | N/A |
| 2025 | $30,319 | $250,000 | $0 | $280,319 | $280,319 |
| 2024 | $31,413 | $230,000 | $0 | $261,413 | $261,413 |
| 2023 | $31,960 | $230,000 | $0 | $261,960 | $261,960 |
| 2022 | $31,347 | $200,000 | $0 | $231,347 | $231,347 |
| 2021 | $30,080 | $150,000 | $0 | $180,080 | $180,080 |
| 2020 | $30,892 | $135,000 | $0 | $165,892 | $165,892 |
| 2019 | $28,176 | $190,000 | $0 | $218,176 | $218,176 |
| 2018 | $28,834 | $120,000 | $0 | $148,834 | $148,834 |
| 2017 | $29,493 | $100,000 | $0 | $129,493 | $129,493 |
| 2016 | $30,152 | $100,000 | $0 | $130,152 | $130,152 |
| 2015 | $30,811 | $100,000 | $0 | $130,811 | $130,811 |
| 2014 | $31,799 | $100,000 | $0 | $131,799 | $131,799 |
| 2013 | $40,064 | $65,000 | $0 | $105,064 | $105,064 |
| 2012 | $40,487 | $72,250 | $0 | $112,737 | $112,737 |
| 2011 | $40,910 | $85,000 | $0 | $125,910 | $125,910 |
| 2010 | $39,316 | $85,000 | $0 | $124,316 | $124,316 |
| 2009 | $40,838 | $100,000 | $0 | $140,838 | $140,838 |
| 2008 | $41,836 | $100,000 | $0 | $141,836 | $141,836 |
| 2007 | $37,381 | $100,000 | $0 | $137,381 | $137,381 |
Deed and Sales History
| 1 | 03/03/2017 | WD | Warranty Deed | MUNDELL, RALPH A | WESTERFIELD, INGRID | | | $119,000.00 | 28361 | 4418537 |
| 2 | 09/12/2007 | WD | Warranty Deed | FRANTZ, KIM E | MUNDELL, RALPH A | | | $202,500.00 | 73115 | 4211858 |
| 3 | 05/01/2001 | WD | Warranty Deed | CONLEY, ELSIE E | FRANTZ, KIM E | | | $115,000.00 | 11525 | 20031225 |
| 4 | 10/01/1981 | OTHER | Other - Misc. Documents | CONLEY, WILLIAM H | CONLEY, ELSIE E | | | $1.00 | 13298 | 0 |
| 5 | 07/01/1981 | PACD | Purchaser's Assignment | Unknown | CONLEY, ELSIE E | | | $0.00 | 59173 | 397063 |
| 6 | 01/01/1900 | OTHER | Other - Misc. Documents | Unknown | CONLEY, WILLIAM H | | | $12,500.00 | 0 | 0 |
| 7 | 01/01/1900 | OTHER | Other - Misc. Documents | CONLEY, WILLIAM H | CONLEY, WILLIAM H | | | $0.00 | 0 | 0 |
Payout Agreement
| No payout information available.. |