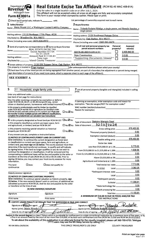
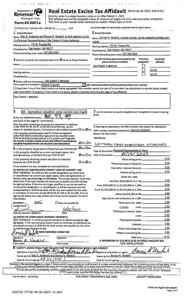
Property
Account |
| Property ID: | 727039 | Abbreviated Legal Description: | NGATE TERR LOT 11 BLK 3 |
| Geographic ID: | S7575-00-03011-0 | Agent Code: | |
| Type: | Real | | |
| Tax Area: | 110 - APPRAISER-OH Schl Dist, outside OH, improved & 1 acre or less | Land Use Code | 11 |
| Open Space: | N | DFL | N |
| Historic Property: | N | Remodel Property: | N |
| Multi-Family Redevelopment: | N | | |
| Township: | | Section: | |
| Range: | |
Location |
| Address: | 4338 NORTHGATE DR OAK HARBOR, WA 98277 | Mapsco: | |
| Neighborhood: | Cycle 6 | Map ID: | 202 |
| Neighborhood CD: | 6 |
Owner |
| Name: | ESTRADA, MAGDALENA C | Owner ID: | 311362 |
| Mailing Address: | 81 E SQUIRE RD COUPEVILLE, WA 98239 | % Ownership: | 100.0000000000% |
| | | Exemptions: | |
Taxes and Assessment Details
Values
| (+) Improvement Homesite Value: | + | $0 | |
| (+) Improvement Non-Homesite Value: | + | $167,149 | |
| (+) Land Homesite Value: | + | $0 | |
| (+) Land Non-Homesite Value: | + | $210,000 | |
| (+) Curr Use (HS): | + | $0 | $0 |
| (+) Curr Use (NHS): | + | $0 | $0 |
| | | -------------------------- | |
| (=) Market Value: | = | $377,149 | |
| (–) Productivity Loss: | – | $0 | |
| | | -------------------------- | |
| (=) Subtotal: | = | $377,149 | |
| (+) Senior Appraised Value: | + | $0 | |
| (+) Non-Senior Appraised Value: | + | $377,149 | |
| | | -------------------------- | |
| (=) Total Appraised Value: | = | $377,149 | |
| (–) Senior Exemption Loss: | – | $0 | |
| (–) Exemption Loss: | – | $0 | |
| | | -------------------------- | |
| (=) Taxable Value: | = | $377,149 | |
Taxing Jurisdiction
| Owner: | ESTRADA, MAGDALENA C | | |
| % Ownership: | 100.0000000000% | | |
| Total Value: | $377,149 | | |
| Tax Area: | 110 - APPRAISER-OH Schl Dist, outside OH, improved & 1 acre or less |
| CF | Conservation Futures | 0.0316035091 | $377,149 | $377,149 | $11.92 | | |
| CEM1 | Cemetery #1 | 0.0040320932 | $377,149 | $377,149 | $1.52 | | |
| FIRE2 | Fire & Rescue Dist #2 N Whidbey GEN | 0.5475949600 | $377,149 | $377,149 | $206.52 | | |
| HOBOND | Hospital BOND | 0.1910887512 | $377,149 | $377,149 | $72.07 | | |
| HOGEN | Hospital GEN | 0.3902502903 | $377,149 | $377,149 | $147.18 | | |
| CE | County Current Expense | 0.3708482477 | $377,149 | $377,149 | $139.87 | | |
| CR | County Roads | 0.4584763726 | $377,149 | $377,149 | $172.91 | | |
| ISLANDEMS | Hospital GEN (EMS) | 0.5000000000 | $377,149 | $377,149 | $188.57 | | |
| LIB | Library Sno-Isle GEN | 0.3153421757 | $377,149 | $377,149 | $118.93 | | |
| NWHIDPRMT | P & R N Whidbey GEN | 0.2004466701 | $377,149 | $377,149 | $75.60 | | |
| SCH201MO | School 201 Enrichment | 1.8559231640 | $377,149 | $377,149 | $699.96 | | |
| ST | State School | 1.3035497053 | $377,149 | $377,149 | $491.63 | | |
| ST2 | State School Part 2 | 0.8169543533 | $377,149 | $377,149 | $308.11 | | |
| | Total Tax Rate: | 6.9861102925 | | | | | |
| | | | | Taxes w/Current Exemptions: | $2,634.79 | | |
| | | | | Taxes w/o Exemptions: | $2,634.79 | | |
Improvement / Building
| Improvement #1: | RESIDENTIAL | State Code: | Y | 1164.0 sqft | Value: | $167,149 |
| Bathrooms: | 1.5 | Bedrooms: | 3 | | Ceiling: | DRY WALL SPRAYED | Exterior Wall/Cover: | PLY/HARDBOARD T-111 | | Floor Covering: | CARPET/VINYL 80-20 | Floor Structure: | WOOD W/SUBFLOOR | | Foundation: | CONCRETE | Heating: | BASEBOARD ELECTRIC | | Interior Finish: | DRYWALL PAINT | Plumbing Fixture Cnt: | 8 | | Roof Slope: | 5" IN 12" | Roof Structure/Cover: | CJ ASPHALT |
|
| | Type | Description | Class CD | Sub Class CD | Year Built | Area |
| | BAS | BASE/MAIN FLOOR | 3 | 0 | 1978 | 1164.0 |
| | AGR | ATTACHED GARAGE | 3 | 0 | 1978 | 352.0 |
Sketch
Property Image
Land
| 1 | 14 | SQ (08001-12000) | 0.0000 | 0.00 | 0.00 | 0.00 | 1.00 | $210,000 | $0 |
Roll Value History
| 2026 | N/A | N/A | N/A | N/A | N/A |
| 2025 | $167,149 | $210,000 | $0 | $377,149 | $377,149 |
| 2024 | $173,182 | $190,000 | $0 | $363,182 | $363,182 |
| 2023 | $175,684 | $190,000 | $0 | $365,684 | $365,684 |
| 2022 | $156,817 | $180,000 | $0 | $336,817 | $336,817 |
| 2021 | $138,333 | $130,000 | $0 | $268,333 | $268,333 |
| 2020 | $134,899 | $110,000 | $0 | $244,899 | $244,899 |
| 2019 | $95,277 | $140,000 | $0 | $235,277 | $235,277 |
| 2018 | $95,607 | $120,000 | $0 | $215,607 | $215,607 |
| 2017 | $96,266 | $90,000 | $0 | $186,266 | $186,266 |
| 2016 | $86,146 | $70,000 | $0 | $156,146 | $156,146 |
| 2015 | $87,471 | $50,000 | $0 | $137,471 | $137,471 |
| 2014 | $88,796 | $45,000 | $0 | $133,796 | $133,796 |
| 2013 | $90,122 | $45,000 | $0 | $135,122 | $135,122 |
| 2012 | $91,447 | $59,500 | $0 | $150,947 | $150,947 |
| 2011 | $92,773 | $70,000 | $0 | $162,773 | $119,272 |
| 2010 | $101,089 | $70,000 | $0 | $171,089 | $171,089 |
| 2009 | $105,464 | $77,500 | $0 | $182,964 | $119,272 |
| 2008 | $106,695 | $94,616 | $0 | $201,311 | $119,272 |
| 2007 | $108,987 | $89,171 | $0 | $198,158 | $69,272 |
Deed and Sales History
| 1 | 01/31/2024 | PRD | Personal Representatives Deed | ESTATE OF DALE E KAHOUN | ESTRADA, MAGDALENA C | | | $0.00 | 59714 | 4571522 |
| 2 | 01/31/2024 | PRD | Personal Representatives Deed | KAHOUN JTWROS, EDWARD J | ESTRADA, MAGDALENA C | | | $0.00 | 59154 | 4569149 |
| 3 | 03/16/2017 | QCD | Quit Claim Deed | KAHOUN, EDWARD J | KAHOUN JTWROS, EDWARD J | | | $0.00 | 28475 | 4418959 |
| 4 | 06/01/1979 | WD | Warranty Deed | FRANSSEN, JOSEPH H | KAHOUN, EDWARD J | | | $42,200.00 | 92882 | 353941 |
| 5 | 01/01/1900 | OTHER | Other - Misc. Documents | Unknown | FRANSSEN, JOSEPH H | | | $0.00 | 0 | 0 |
Payout Agreement
| No payout information available.. |