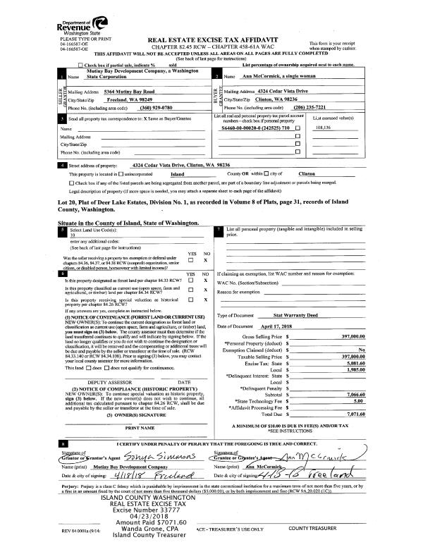
Property
Account |
| Property ID: | 727360 | Abbreviated Legal Description: | OLY MAR VW 3 LOT 34 |
| Geographic ID: | S7605-03-00034-0 | Agent Code: | |
| Type: | Real | | |
| Tax Area: | 810 - APPRAISER-S Whid Schl Dist, Diking District#1, improved & 1 acre or less | Land Use Code | 11 |
| Open Space: | N | DFL | N |
| Historic Property: | N | Remodel Property: | N |
| Multi-Family Redevelopment: | N | | |
| Township: | | Section: | |
| Range: | |
Location |
| Address: | 6166 CHERRY TREE CT CLINTON, WA 98236 | Mapsco: | |
| Neighborhood: | Cycle 4 | Map ID: | 790 |
| Neighborhood CD: | 4 |
Owner |
| Name: | GRAY, DAVID JOHN | Owner ID: | 285175 |
| Mailing Address: | LYNETTE GRAY 6166 CHERRY TREE COURT CLINTON, WA 98236 | % Ownership: | 100.0000000000% |
| | | Exemptions: | |
Taxes and Assessment Details
Values
| (+) Improvement Homesite Value: | + | $0 | |
| (+) Improvement Non-Homesite Value: | + | $261,856 | |
| (+) Land Homesite Value: | + | $0 | |
| (+) Land Non-Homesite Value: | + | $400,000 | |
| (+) Curr Use (HS): | + | $0 | $0 |
| (+) Curr Use (NHS): | + | $0 | $0 |
| | | -------------------------- | |
| (=) Market Value: | = | $661,856 | |
| (–) Productivity Loss: | – | $0 | |
| | | -------------------------- | |
| (=) Subtotal: | = | $661,856 | |
| (+) Senior Appraised Value: | + | $0 | |
| (+) Non-Senior Appraised Value: | + | $661,856 | |
| | | -------------------------- | |
| (=) Total Appraised Value: | = | $661,856 | |
| (–) Senior Exemption Loss: | – | $0 | |
| (–) Exemption Loss: | – | $0 | |
| | | -------------------------- | |
| (=) Taxable Value: | = | $661,856 | |
Taxing Jurisdiction
| Owner: | GRAY, DAVID JOHN | | |
| % Ownership: | 100.0000000000% | | |
| Total Value: | $661,856 | | |
| Tax Area: | 810 - APPRAISER-S Whid Schl Dist, Diking District#1, improved & 1 acre or less |
| CF | Conservation Futures | 0.0316035091 | $661,856 | $661,856 | $20.92 | | |
| FIRE3 | Fire & Rescue Dist #3 S Whidbey GEN | 1.2004855531 | $661,856 | $661,856 | $794.55 | | |
| HOBOND | Hospital BOND | 0.1910887512 | $661,856 | $661,856 | $126.47 | | |
| HOGEN | Hospital GEN | 0.3902502903 | $661,856 | $661,856 | $258.29 | | |
| CE | County Current Expense | 0.3708482477 | $661,856 | $661,856 | $245.45 | | |
| CR | County Roads | 0.4584763726 | $661,856 | $661,856 | $303.45 | | |
| ISLANDEMS | Hospital GEN (EMS) | 0.5000000000 | $661,856 | $661,856 | $330.93 | | |
| LIB | Library Sno-Isle GEN | 0.3153421757 | $661,856 | $661,856 | $208.71 | | |
| PORTWHID | Port of S Whidbey GEN | 0.1094540357 | $661,856 | $661,856 | $72.44 | | |
| SCH206BOND | School 206 BOND | 0.3161759235 | $661,856 | $661,856 | $209.26 | | |
| SCH206MO | School 206 Enrichment | 0.4547169547 | $661,856 | $661,856 | $300.96 | | |
| ST | State School | 1.3035497053 | $661,856 | $661,856 | $862.76 | | |
| ST2 | State School Part 2 | 0.8169543533 | $661,856 | $661,856 | $540.71 | | |
| SWHIDPRBD | P & R S Whidbey BOND | 0.0152817568 | $661,856 | $661,856 | $10.11 | | |
| SWHIDPRBD2 | P & R S Whidbey BOND2 | 0.0138911264 | $661,856 | $661,856 | $9.19 | | |
| SWHIDPRMT | P & R S Whidbey GEN | 0.2053334452 | $661,856 | $661,856 | $135.90 | | |
| | Total Tax Rate: | 6.6934522006 | | | | | |
| | | | | Taxes w/Current Exemptions: | $4,430.10 | | |
| | | | | Taxes w/o Exemptions: | $4,430.10 | | |
Improvement / Building
| Improvement #1: | RESIDENTIAL | State Code: | Y | 1820.0 sqft | Value: | $261,856 |
| Bathrooms: | 1.75 | Bedrooms: | 2 | | Ceiling: | DRY WALL SPRAYED | Exterior Wall/Cover: | WOOD SIDING | | Floor Covering: | HARDWOOD/CARP 20-80 | Floor Structure: | WOOD W/SUBFLOOR | | Foundation: | CONCRETE | Heating: | FHA ELECTRIC | | Interior Finish: | DRYWALL PAINT | Plumbing Fixture Cnt: | 11 | | Roof Slope: | 6" IN 12" | Roof Structure/Cover: | CJ ASPHALT |
|
| | Type | Description | Class CD | Sub Class CD | Year Built | Area |
| | BAS | BASE/MAIN FLOOR | 3 | 0 | 1978 | 910.0 |
| | DWN | DOWNSTAIRS LIVING AREA | 3 | 0 | 1978 | 910.0 |
| | OCP | OPEN CARPORT | 3 | 0 | 1978 | 240.0 |
| | OWP | OPEN WOOD PORCH W/STEPS | 3 | 0 | 1978 | 166.5 |
| | OWP | OPEN WOOD PORCH W/STEPS | 3 | 0 | 1978 | 100.0 |
| | OWC | OPEN WOOD PORCH W/STEPS/ROOF/C | 3 | 0 | 1978 | 208.0 |
Sketch
Property Image
Land
| 1 | 13 | SQ (06001-08000) | 0.0000 | 0.00 | 0.00 | 0.00 | 1.00 | $400,000 | $0 |
Roll Value History
| 2026 | N/A | N/A | N/A | N/A | N/A |
| 2025 | $261,856 | $400,000 | $0 | $661,856 | $661,856 |
| 2024 | $265,160 | $380,000 | $0 | $645,160 | $645,160 |
| 2023 | $268,465 | $360,000 | $0 | $628,465 | $628,465 |
| 2022 | $246,082 | $330,000 | $0 | $576,082 | $576,082 |
| 2021 | $216,587 | $280,000 | $0 | $496,587 | $496,587 |
| 2020 | $233,466 | $250,000 | $0 | $483,466 | $483,466 |
| 2019 | $173,333 | $290,000 | $0 | $463,333 | $463,333 |
| 2018 | $173,818 | $220,000 | $0 | $393,818 | $393,818 |
| 2017 | $136,440 | $180,000 | $0 | $316,440 | $316,440 |
| 2016 | $138,187 | $180,000 | $0 | $318,187 | $318,187 |
| 2015 | $139,938 | $170,000 | $0 | $309,938 | $309,938 |
| 2014 | $107,460 | $170,000 | $0 | $277,460 | $110,984 |
| 2013 | $108,923 | $170,000 | $0 | $278,923 | $111,569 |
| 2012 | $110,385 | $170,000 | $0 | $280,385 | $112,154 |
| 2011 | $111,847 | $200,000 | $0 | $311,847 | $123,218 |
| 2010 | $114,778 | $200,000 | $0 | $314,778 | $314,778 |
| 2009 | $119,725 | $250,000 | $0 | $369,725 | $369,725 |
| 2008 | $103,593 | $241,718 | $0 | $345,311 | $123,218 |
| 2007 | $107,737 | $228,942 | $0 | $336,679 | $336,679 |
Deed and Sales History
| 1 | 05/18/2018 | WD | Warranty Deed | BEVINS JTWROS, TESSA L | GRAY, DAVID JOHN | | | $466,000.00 | 34252 | 4445050 |
| 2 | 09/08/2014 | QCD | Quit Claim Deed | BEVINS JTWROS, TESSA L | BEVINS JTWROS, TESSA L | | | $0.00 | 25102 | 4402512 |
| 3 | 09/08/2014 | QCD | Quit Claim Deed | BEVINS, TESSA L | BEVINS JTWROS, TESSA L | | | $0.00 | 16732 | 4365226 |
| 4 | 11/15/1999 | QCD | Quit Claim Deed | KILLIAN, CLINTON M | BLEVINS, TESSA L | | | $0.00 | 20804 | 4012843 |
| 5 | 11/04/1999 | QCD | Quit Claim Deed | KILLIAN, CLINTON M | KILLIAN, CLINTON M | | | $0.00 | 94619 | 99025442 |
| 6 | 06/01/1978 | OTHER | Other - Misc. Documents | Unknown | KILLIAN, CLINTON M | | | $8,500.00 | 82453 | 333584 |
Payout Agreement
| No payout information available.. |