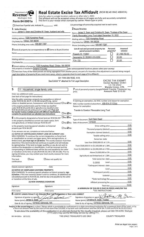
Property
Account |
| Property ID: | 727609 | Abbreviated Legal Description: | PARKLANE LOT 6 |
| Geographic ID: | S7660-00-00006-0 | Agent Code: | |
| Type: | Real | | |
| Tax Area: | 542 - APPRAISER-Stan/Cam Schl Dist, Special Dist, improved, greater than 1 acre | Land Use Code | 11 |
| Open Space: | N | DFL | N |
| Historic Property: | N | Remodel Property: | N |
| Multi-Family Redevelopment: | N | | |
| Township: | | Section: | |
| Range: | |
Location |
| Address: | | Mapsco: | |
| Neighborhood: | Cycle 5 | Map ID: | 536 |
| Neighborhood CD: | 5 |
Owner |
| Name: | STEVENS, BRIAN | Owner ID: | 303193 |
| Mailing Address: | RENEE STEVENS 30 KALE LN CAMANO ISLAND, WA 98282 | % Ownership: | 100.0000000000% |
| | | Exemptions: | |
Taxes and Assessment Details
Values
| (+) Improvement Homesite Value: | + | $0 | |
| (+) Improvement Non-Homesite Value: | + | $115,058 | |
| (+) Land Homesite Value: | + | $0 | |
| (+) Land Non-Homesite Value: | + | $250,000 | |
| (+) Curr Use (HS): | + | $0 | $0 |
| (+) Curr Use (NHS): | + | $0 | $0 |
| | | -------------------------- | |
| (=) Market Value: | = | $365,058 | |
| (–) Productivity Loss: | – | $0 | |
| | | -------------------------- | |
| (=) Subtotal: | = | $365,058 | |
| (+) Senior Appraised Value: | + | $0 | |
| (+) Non-Senior Appraised Value: | + | $365,058 | |
| | | -------------------------- | |
| (=) Total Appraised Value: | = | $365,058 | |
| (–) Senior Exemption Loss: | – | $0 | |
| (–) Exemption Loss: | – | $0 | |
| | | -------------------------- | |
| (=) Taxable Value: | = | $365,058 | |
Taxing Jurisdiction
| Owner: | STEVENS, BRIAN | | |
| % Ownership: | 100.0000000000% | | |
| Total Value: | $365,058 | | |
| Tax Area: | 542 - APPRAISER-Stan/Cam Schl Dist, Special Dist, improved, greater than 1 acre |
| CF | Conservation Futures | 0.0316035091 | $365,058 | $365,058 | $11.54 | | |
| EMS1 | Fire & Rescue Dist #1 Camano GEN (EMS) | 0.3677864386 | $365,058 | $365,058 | $134.26 | | |
| FIRE1 | Fire & Rescue Dist #1 Camano GEN | 1.2502910536 | $365,058 | $365,058 | $456.43 | | |
| FIRE1BOND | Fire & Rescue Dist #1 Camano BOND | 0.1570001679 | $365,058 | $365,058 | $57.31 | | |
| CE | County Current Expense | 0.3708482477 | $365,058 | $365,058 | $135.38 | | |
| CR | County Roads | 0.4584763726 | $365,058 | $365,058 | $167.37 | | |
| LCIB | Library Sno-Isle BOND (Camano Island) | 0.0396325772 | $365,058 | $365,058 | $14.47 | | |
| LIB | Library Sno-Isle GEN | 0.3153421757 | $365,058 | $365,058 | $115.12 | | |
| SCH205_401 | School 205-401 Enrichment | 1.2698420524 | $365,058 | $365,058 | $463.57 | | |
| SCH205BOND | School 205-401 BOND | 0.9396497583 | $365,058 | $365,058 | $343.03 | | |
| ST | State School | 1.3035497053 | $365,058 | $365,058 | $475.87 | | |
| ST2 | State School Part 2 | 0.8169543533 | $365,058 | $365,058 | $298.24 | | |
| | Total Tax Rate: | 7.3209764117 | | | | | |
| | | | | Taxes w/Current Exemptions: | $2,672.59 | | |
| | | | | Taxes w/o Exemptions: | $2,672.59 | | |
Improvement / Building
| Improvement #1: | MANUFACTURED HOME | State Code: | Y | 1456.0 sqft | Value: | $115,058 |
| Bathrooms: | 0 | Bedrooms: | 0 | | Ceiling: | PLASTER PAINTED | Cooling: | EVAP NO DUCT | | Exterior Wall/Cover: | VINYL | Floor Covering: | CARPET 100% | | Floor Structure: | SLAB ON GRADE | Foundation: | SLAB | | Heating: | FHA ELECTRIC | Interior Finish: | PLASTER | | Plumbing Fixture Cnt: | 1 | Roof Slope: | FLAT | | Roof Structure/Cover: | CJ ALUMINIUM HEAVY |   |   |
|
Sketch
Property Image
Land
| 1 | 17 | AC (01.01-02.00) | 1.9000 | 82764.00 | 0.00 | 0.00 | 1.00 | $250,000 | $0 |
Roll Value History
| 2026 | N/A | N/A | N/A | N/A | N/A |
| 2025 | $115,058 | $250,000 | $0 | $365,058 | $365,058 |
| 2024 | $0 | $120,000 | $0 | $120,000 | $120,000 |
| 2023 | $1 | $240,000 | $0 | $240,001 | $240,001 |
| 2022 | $1 | $220,000 | $0 | $220,001 | $220,001 |
| 2021 | $8,124 | $170,000 | $0 | $178,124 | $178,124 |
| 2020 | $8,215 | $150,000 | $0 | $158,215 | $158,215 |
| 2019 | $6,988 | $200,000 | $0 | $206,988 | $206,988 |
| 2018 | $7,247 | $150,000 | $0 | $157,247 | $157,247 |
| 2017 | $7,764 | $135,000 | $0 | $142,764 | $142,764 |
| 2016 | $8,023 | $130,000 | $0 | $138,023 | $138,023 |
| 2015 | $19,905 | $69,192 | $0 | $89,097 | $89,097 |
| 2014 | $20,101 | $69,192 | $0 | $89,293 | $89,293 |
| 2013 | $20,298 | $69,192 | $0 | $89,490 | $89,490 |
| 2012 | $20,494 | $69,192 | $0 | $89,686 | $89,686 |
| 2011 | $20,690 | $86,490 | $0 | $107,180 | $107,180 |
| 2010 | $13,403 | $86,490 | $0 | $99,893 | $99,893 |
| 2009 | $14,320 | $120,000 | $0 | $134,320 | $134,320 |
| 2008 | $14,997 | $145,000 | $0 | $159,997 | $159,997 |
| 2007 | $15,670 | $145,000 | $0 | $160,670 | $160,670 |
Deed and Sales History
| 1 | 02/09/2022 | WD | Warranty Deed | CALING, KATHLEEN SUSAN | STEVENS, BRIAN | | | $186,000.00 | 52003 | 4539992 |
| 2 | 11/10/2021 | QCD | Quit Claim Deed | KALE, PATRICIA A | CALING, KATHLEEN SUSAN | | | $0.00 | 51224 | 4535369 |
| 3 | 02/01/1992 | OTHER | Other - Misc. Documents | Unknown | KALE, PATRICIA A | | | $0.00 | 20662 | 0 |
| 4 | 03/01/1991 | QCD | Quit Claim Deed | LAKE, LUISE | KALE, PATRICIA A | | | $0.00 | 20604 | 92002932 |
| 5 | 02/01/1988 | WD | Warranty Deed | LAKE, LUISE | LAKE, LUISE | | | $0.00 | 83335 | 88012432 |
| 6 | 03/01/1987 | QCD | Quit Claim Deed | LAKE, LUISE | LAKE, LUISE | | | $0.00 | 70609 | 87003426 |
| 7 | 12/01/1985 | QCD | Quit Claim Deed | KALE, PATRICIA A | LAKE, LUISE | | | $0.00 | 53604 | 85014419 |
| 8 | 11/01/1981 | TRUSTEED | Trustee's Deed | KENNEDY, HENRY I | KALE, PATRICIA A | | | $9,900.00 | 13631 | 390554 |
| 9 | 01/01/1900 | OTHER | Other - Misc. Documents | KALE, PATRICIA A | KENNEDY, HENRY I | | | $0.00 | 0 | 0 |
Payout Agreement
| No payout information available.. |