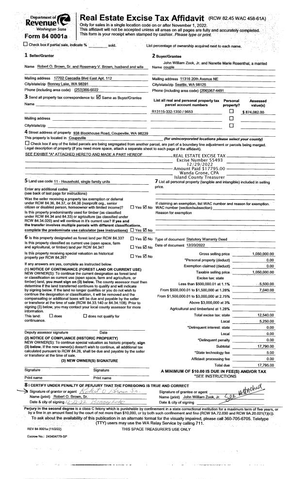
Property
Account |
| Property ID: | 727798 | Abbreviated Legal Description: | PEASES 1ST LOT 15 BLK 2 |
| Geographic ID: | S7710-00-02015-0 | Agent Code: | |
| Type: | Real | | |
| Tax Area: | 100 - APPRAISER-OH Schl Dist, in OH | Land Use Code | 11 |
| Open Space: | N | DFL | N |
| Historic Property: | N | Remodel Property: | N |
| Multi-Family Redevelopment: | N | | |
| Township: | | Section: | |
| Range: | |
Location |
| Address: | 520 SW 4TH AVE OAK HARBOR, WA 98277 | Mapsco: | |
| Neighborhood: | Cycle 1 | Map ID: | 93 |
| Neighborhood CD: | 1 |
Owner |
| Name: | FOSTER, LOUIE | Owner ID: | 305160 |
| Mailing Address: | 520 SW 4TH AVE OAK HARBOR, WA 98277-5115 | % Ownership: | 100.0000000000% |
| | | Exemptions: | |
Taxes and Assessment Details
Values
| (+) Improvement Homesite Value: | + | $0 | |
| (+) Improvement Non-Homesite Value: | + | $260,276 | |
| (+) Land Homesite Value: | + | $0 | |
| (+) Land Non-Homesite Value: | + | $200,000 | |
| (+) Curr Use (HS): | + | $0 | $0 |
| (+) Curr Use (NHS): | + | $0 | $0 |
| | | -------------------------- | |
| (=) Market Value: | = | $460,276 | |
| (–) Productivity Loss: | – | $0 | |
| | | -------------------------- | |
| (=) Subtotal: | = | $460,276 | |
| (+) Senior Appraised Value: | + | $0 | |
| (+) Non-Senior Appraised Value: | + | $460,276 | |
| | | -------------------------- | |
| (=) Total Appraised Value: | = | $460,276 | |
| (–) Senior Exemption Loss: | – | $0 | |
| (–) Exemption Loss: | – | $0 | |
| | | -------------------------- | |
| (=) Taxable Value: | = | $460,276 | |
Taxing Jurisdiction
| Owner: | FOSTER, LOUIE | | |
| % Ownership: | 100.0000000000% | | |
| Total Value: | $460,276 | | |
| Tax Area: | 100 - APPRAISER-OH Schl Dist, in OH |
| CF | Conservation Futures | 0.0316035091 | $460,276 | $460,276 | $14.55 | | |
| CEM1 | Cemetery #1 | 0.0040320932 | $460,276 | $460,276 | $1.86 | | |
| COH | City of Oak Harbor | 2.3001546061 | $460,276 | $460,276 | $1,058.71 | | |
| OAKBOND | City of Oak Harbor BOND | 0.1926904192 | $460,276 | $460,276 | $88.69 | | |
| HOBOND | Hospital BOND | 0.1910887512 | $460,276 | $460,276 | $87.95 | | |
| HOGEN | Hospital GEN | 0.3902502903 | $460,276 | $460,276 | $179.62 | | |
| CE | County Current Expense | 0.3708482477 | $460,276 | $460,276 | $170.69 | | |
| ISLANDEMS | Hospital GEN (EMS) | 0.5000000000 | $460,276 | $460,276 | $230.14 | | |
| LIB | Library Sno-Isle GEN | 0.3153421757 | $460,276 | $460,276 | $145.14 | | |
| NWHIDPRMT | P & R N Whidbey GEN | 0.2004466701 | $460,276 | $460,276 | $92.26 | | |
| SCH201MO | School 201 Enrichment | 1.8559231640 | $460,276 | $460,276 | $854.24 | | |
| ST | State School | 1.3035497053 | $460,276 | $460,276 | $599.99 | | |
| ST2 | State School Part 2 | 0.8169543533 | $460,276 | $460,276 | $376.02 | | |
| | Total Tax Rate: | 8.4728839852 | | | | | |
| | | | | Taxes w/Current Exemptions: | $3,899.86 | | |
| | | | | Taxes w/o Exemptions: | $3,899.86 | | |
Improvement / Building
| Improvement #1: | RESIDENTIAL | State Code: | Y | 1510.0 sqft | Value: | $260,276 |
| Bathrooms: | 2 | Bedrooms: | 2 | | Ceiling: | DRY WALL SPRAYED | Cooling: | HEAT PUMP/CONV/V | | Exterior Wall/Cover: | PLY/HARDBOARD T-111 | Floor Covering: | HARDWOOD/CARP 60-40 | | Floor Structure: | WOOD W/SUBFLOOR | Foundation: | CONCRETE | | Interior Finish: | DRYWALL PAINT | Plumbing Fixture Cnt: | 9 | | Roof Slope: | 3" IN 12" | Roof Structure/Cover: | CJ ASPHALT |
|
| | Type | Description | Class CD | Sub Class CD | Year Built | Area |
| | BAS | BASE/MAIN FLOOR | 3 | 0 | 1967 | 1510.0 |
| | OP1 | OPEN PORCH SLAB | 3 | 0 | 1967 | 144.0 |
| | OP3 | OPEN PORCH W/ROOF | 3 | 0 | 1967 | 120.0 |
| | AGR | ATTACHED GARAGE | 3 | 0 | 1967 | 504.0 |
Sketch
Property Image
Land
| 1 | 14 | SQ (08001-12000) | 0.0000 | 0.00 | 0.00 | 0.00 | 1.00 | $200,000 | $0 |
Roll Value History
| 2026 | N/A | N/A | N/A | N/A | N/A |
| 2025 | $260,276 | $200,000 | $0 | $460,276 | $460,276 |
| 2024 | $263,645 | $190,000 | $0 | $453,645 | $453,645 |
| 2023 | $249,234 | $190,000 | $0 | $439,234 | $439,234 |
| 2022 | $228,686 | $180,000 | $0 | $408,686 | $408,686 |
| 2021 | $201,465 | $120,000 | $0 | $321,465 | $321,465 |
| 2020 | $196,493 | $100,000 | $0 | $296,493 | $296,493 |
| 2019 | $141,754 | $150,000 | $0 | $291,754 | $291,754 |
| 2018 | $142,201 | $130,000 | $0 | $272,201 | $272,201 |
| 2017 | $143,705 | $110,000 | $0 | $253,705 | $253,705 |
| 2016 | $145,547 | $90,000 | $0 | $235,547 | $235,547 |
| 2015 | $147,389 | $70,000 | $0 | $217,389 | $217,389 |
| 2014 | $149,232 | $55,000 | $0 | $204,232 | $204,232 |
| 2013 | $151,073 | $55,000 | $0 | $206,073 | $206,073 |
| 2012 | $152,916 | $60,000 | $0 | $212,916 | $85,166 |
| 2011 | $161,435 | $50,000 | $0 | $211,435 | $211,435 |
| 2010 | $168,966 | $50,000 | $0 | $218,966 | $218,966 |
| 2009 | $176,039 | $60,000 | $0 | $236,039 | $236,039 |
| 2008 | $178,015 | $68,000 | $0 | $246,015 | $246,015 |
| 2007 | $179,999 | $68,000 | $0 | $247,999 | $247,999 |
Deed and Sales History
| 1 | 06/23/2022 | WD | Warranty Deed | HUMPHREY, CARL A | FOSTER, LOUIE | | | $420,000.00 | 53661 | 4547473 |
| 2 | 09/27/2021 | QCD | Quit Claim Deed | HUMPHREY, CARL A | HUMPHREY, CARL A | | | $0.00 | 50401 | 4531032 |
| 3 | 09/27/2021 | PRD | Personal Representatives Deed | BERN-DULIN, LUCIE RAE | HUMPHREY, CARL A | | | $0.00 | 50288 | 4530440 |
| 4 | 09/12/2013 | WD | Warranty Deed | STRACHAN, MARILYN EVANS | BERN-DULIN, LUCIE RAE | | | $219,000.00 | 12770 | 4348056 |
| 5 | 12/12/2012 | TOD | Transfer On Death Deed | STRACHAN, ROBERT S | STRACHAN, MARILYN EVANS | | | | 82574 | |
Payout Agreement
| No payout information available.. |