Property
Account |
| Property ID: | 728047 | Abbreviated Legal Description: | POLNELL SH LOT 2 BLK 1 |
| Geographic ID: | S7755-00-01002-0 | Agent Code: | |
| Type: | Real | | |
| Tax Area: | 110 - APPRAISER-OH Schl Dist, outside OH, improved & 1 acre or less | Land Use Code | 11 |
| Open Space: | N | DFL | N |
| Historic Property: | N | Remodel Property: | N |
| Multi-Family Redevelopment: | N | | |
| Township: | | Section: | |
| Range: | |
Location |
| Address: | 1215 CRESCENT DR OAK HARBOR, WA 98277 | Mapsco: | |
| Neighborhood: | Cycle 6 | Map ID: | 540 |
| Neighborhood CD: | 6 |
Owner |
| Name: | DAVIS COLEMAN, KIM | Owner ID: | 307807 |
| Mailing Address: | 913 INDIAN RIVER ROAD ST AUGUSTINE, FL 32092 | % Ownership: | 100.0000000000% |
| | | Exemptions: | |
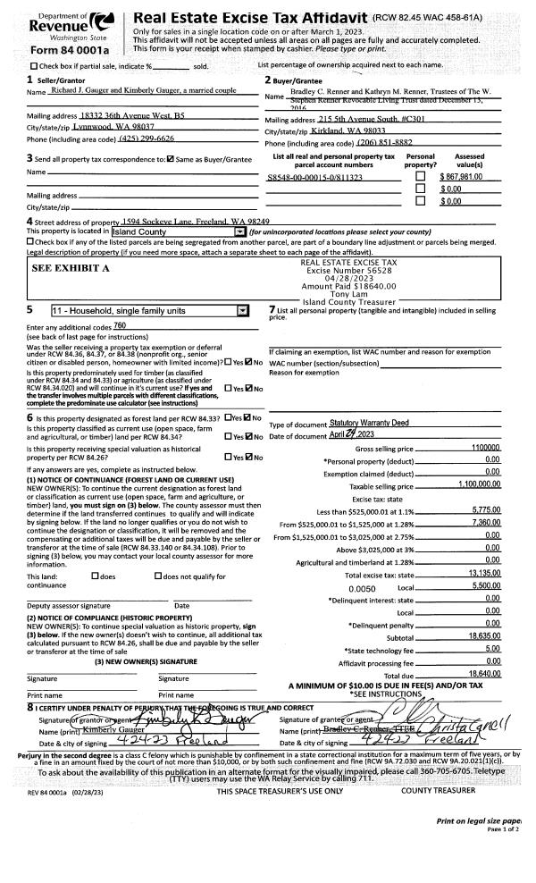
Taxes and Assessment Details
Values
| (+) Improvement Homesite Value: | + | $0 | |
| (+) Improvement Non-Homesite Value: | + | $155,909 | |
| (+) Land Homesite Value: | + | $0 | |
| (+) Land Non-Homesite Value: | + | $190,000 | |
| (+) Curr Use (HS): | + | $0 | $0 |
| (+) Curr Use (NHS): | + | $0 | $0 |
| | | -------------------------- | |
| (=) Market Value: | = | $345,909 | |
| (–) Productivity Loss: | – | $0 | |
| | | -------------------------- | |
| (=) Subtotal: | = | $345,909 | |
| (+) Senior Appraised Value: | + | $0 | |
| (+) Non-Senior Appraised Value: | + | $345,909 | |
| | | -------------------------- | |
| (=) Total Appraised Value: | = | $345,909 | |
| (–) Senior Exemption Loss: | – | $0 | |
| (–) Exemption Loss: | – | $0 | |
| | | -------------------------- | |
| (=) Taxable Value: | = | $345,909 | |
Taxing Jurisdiction
| Owner: | DAVIS COLEMAN, KIM | | |
| % Ownership: | 100.0000000000% | | |
| Total Value: | $345,909 | | |
| Tax Area: | 110 - APPRAISER-OH Schl Dist, outside OH, improved & 1 acre or less |
| CF | Conservation Futures | 0.0316035091 | $345,909 | $345,909 | $10.93 | | |
| CEM1 | Cemetery #1 | 0.0040320932 | $345,909 | $345,909 | $1.39 | | |
| FIRE2 | Fire & Rescue Dist #2 N Whidbey GEN | 0.5475949600 | $345,909 | $345,909 | $189.42 | | |
| HOBOND | Hospital BOND | 0.1910887512 | $345,909 | $345,909 | $66.10 | | |
| HOGEN | Hospital GEN | 0.3902502903 | $345,909 | $345,909 | $134.99 | | |
| CE | County Current Expense | 0.3708482477 | $345,909 | $345,909 | $128.28 | | |
| CR | County Roads | 0.4584763726 | $345,909 | $345,909 | $158.59 | | |
| ISLANDEMS | Hospital GEN (EMS) | 0.5000000000 | $345,909 | $345,909 | $172.95 | | |
| LIB | Library Sno-Isle GEN | 0.3153421757 | $345,909 | $345,909 | $109.08 | | |
| NWHIDPRMT | P & R N Whidbey GEN | 0.2004466701 | $345,909 | $345,909 | $69.34 | | |
| SCH201MO | School 201 Enrichment | 1.8559231640 | $345,909 | $345,909 | $641.98 | | |
| ST | State School | 1.3035497053 | $345,909 | $345,909 | $450.91 | | |
| ST2 | State School Part 2 | 0.8169543533 | $345,909 | $345,909 | $282.59 | | |
| | Total Tax Rate: | 6.9861102925 | | | | | |
| | | | | Taxes w/Current Exemptions: | $2,416.55 | | |
| | | | | Taxes w/o Exemptions: | $2,416.55 | | |
Improvement / Building
| Improvement #1: | RESIDENTIAL | State Code: | Y | 1250.0 sqft | Value: | $155,909 |
| Bathrooms: | 1.5 | Bedrooms: | 0 | | Ceiling: | DRY WALL SPRAYED | Exterior Wall/Cover: | PLY/HARDBOARD T-111 | | Floor Covering: | CARPET/VINYL 80-20 | Floor Structure: | WOOD W/SUBFLOOR | | Foundation: | CONCRETE BLOCKS | Heating: | BASEBOARD ELECTRIC | | Interior Finish: | DRYWALL PAINT | Plumbing Fixture Cnt: | 8 | | Roof Slope: | 4" IN 12" | Roof Structure/Cover: | CJ ASPHALT |
|
| | Type | Description | Class CD | Sub Class CD | Year Built | Area |
| | BAS | BASE/MAIN FLOOR | 3 | 0 | 1974 | 1250.0 |
| | AGR | ATTACHED GARAGE | 3 | 0 | 1974 | 500.0 |
| | OWR | OPEN WOOD PORCH W/STEPS/ROOF | 3 | 0 | 1974 | 192.0 |
Sketch
Property Image
Land
| 1 | 15 | SQ (12001-21780) | 0.0000 | 0.00 | 0.00 | 0.00 | 1.00 | $190,000 | $0 |
Roll Value History
| 2026 | N/A | N/A | N/A | N/A | N/A |
| 2025 | $155,909 | $190,000 | $0 | $345,909 | $345,909 |
| 2024 | $161,949 | $170,000 | $0 | $331,949 | $331,949 |
| 2023 | $164,637 | $170,000 | $0 | $334,637 | $334,637 |
| 2022 | $141,780 | $160,000 | $0 | $301,780 | $301,780 |
| 2021 | $121,523 | $125,000 | $0 | $246,523 | $112,276 |
| 2020 | $118,869 | $110,000 | $0 | $228,869 | $172,732 |
| 2019 | $84,618 | $150,000 | $0 | $234,618 | $172,732 |
| 2018 | $84,964 | $130,000 | $0 | $214,964 | $172,732 |
| 2017 | $85,655 | $110,000 | $0 | $195,655 | $172,732 |
| 2016 | $86,318 | $100,000 | $0 | $186,318 | $172,732 |
| 2015 | $87,732 | $85,000 | $0 | $172,732 | $172,732 |
| 2014 | $89,147 | $85,000 | $0 | $174,147 | $174,147 |
| 2013 | $90,562 | $70,000 | $0 | $160,562 | $160,562 |
| 2012 | $91,977 | $77,400 | $0 | $169,377 | $169,377 |
| 2011 | $93,392 | $86,000 | $0 | $179,392 | $179,392 |
| 2010 | $102,371 | $86,000 | $0 | $188,371 | $115,336 |
| 2009 | $106,899 | $100,000 | $0 | $206,899 | $46,134 |
| 2008 | $108,346 | $100,012 | $0 | $208,358 | $46,164 |
| 2007 | $108,928 | $138,635 | $0 | $247,563 | $65,335 |
Deed and Sales History
| 1 | 11/15/2022 | QCD | Quit Claim Deed | DAVIS, JOSEPH M | DAVIS COLEMAN, KIM | | | $0.00 | 55882 | 4556831 |
| 2 | 11/15/2022 | PRD | Personal Representatives Deed | DAVIS, JOSEPH M | DAVIS, JOSEPH M | | | $0.00 | 55881 | 4556830 |
Payout Agreement
| No payout information available.. |