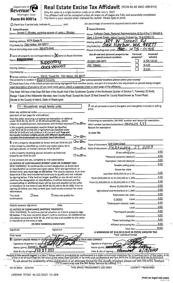
Property
Account |
| Property ID: | 728403 | Abbreviated Legal Description: | ROCKY PT HTS LOT 38 |
| Geographic ID: | S8030-00-00038-0 | Agent Code: | |
| Type: | Real | | |
| Tax Area: | 510 - APPRAISER-Stan/Cam Schl Dist, improved & 1 acre or less | Land Use Code | 11 |
| Open Space: | N | DFL | N |
| Historic Property: | N | Remodel Property: | N |
| Multi-Family Redevelopment: | N | | |
| Township: | | Section: | |
| Range: | |
Location |
| Address: | 925 VICKY PLACE CAMANO ISLAND, WA 98282 | Mapsco: | |
| Neighborhood: | North Camano | Map ID: | 555 |
| Neighborhood CD: | 06-C |
Owner |
| Name: | JONES, GERALD R | Owner ID: | 253709 |
| Mailing Address: | 925 VICKY PLACE CAMANO ISLAND, WA 98282 | % Ownership: | 100.0000000000% |
| | | Exemptions: | SNR/DSBL |
Taxes and Assessment Details
Values
| (+) Improvement Homesite Value: | + | $255,796 | |
| (+) Improvement Non-Homesite Value: | + | $0 | |
| (+) Land Homesite Value: | + | $275,000 | |
| (+) Land Non-Homesite Value: | + | $0 | |
| (+) Curr Use (HS): | + | $0 | $0 |
| (+) Curr Use (NHS): | + | $0 | $0 |
| | | -------------------------- | |
| (=) Market Value: | = | $530,796 | |
| (–) Productivity Loss: | – | $0 | |
| | | -------------------------- | |
| (=) Subtotal: | = | $530,796 | |
| (+) Senior Appraised Value: | + | $341,413 | |
| (+) Non-Senior Appraised Value: | + | $0 | |
| | | -------------------------- | |
| (=) Total Appraised Value: | = | $341,413 | |
| (–) Senior Exemption Loss: | – | $204,848 | |
| (–) Exemption Loss: | – | $0 | |
| | | -------------------------- | |
| (=) Taxable Value: | = | $136,565 | |
Taxing Jurisdiction
| Owner: | JONES, GERALD R | | |
| % Ownership: | 100.0000000000% | | |
| Total Value: | $530,796 | | |
| Tax Area: | 510 - APPRAISER-Stan/Cam Schl Dist, improved & 1 acre or less |
| CF | Conservation Futures | 0.0316035091 | $530,796 | $136,565 | $4.32 | | |
| EMS1 | Fire & Rescue Dist #1 Camano GEN (EMS) | 0.3677864386 | $530,796 | $136,565 | $50.23 | | |
| FIRE1 | Fire & Rescue Dist #1 Camano GEN | 1.2502910536 | $530,796 | $136,565 | $170.75 | | |
| FIRE1BOND | Fire & Rescue Dist #1 Camano BOND | 0.0000000000 | $530,796 | $0 | $0.00 | | |
| CE | County Current Expense | 0.3708482477 | $530,796 | $136,565 | $50.64 | | |
| CR | County Roads | 0.4584763726 | $530,796 | $136,565 | $62.61 | | |
| LCIB | Library Sno-Isle BOND (Camano Island) | 0.0000000000 | $530,796 | $0 | $0.00 | | |
| LIB | Library Sno-Isle GEN | 0.3153421757 | $530,796 | $136,565 | $43.06 | | |
| SCH205_401 | School 205-401 Enrichment | 0.0000000000 | $530,796 | $0 | $0.00 | | |
| SCH205BOND | School 205-401 BOND | 0.0000000000 | $530,796 | $0 | $0.00 | | |
| ST | State School | 1.3035497053 | $530,796 | $136,565 | $178.02 | | |
| ST2 | State School Part 2 | 0.0000000000 | $530,796 | $0 | $0.00 | | |
| | Total Tax Rate: | 4.0978975026 | | | | | |
| | | | | Taxes w/Current Exemptions: | $559.63 | | |
| | | | | Taxes w/o Exemptions: | $3,885.96 | | |
Improvement / Building
| Improvement #1: | RESIDENTIAL | State Code: | Y | 1504.0 sqft | Value: | $255,796 |
| Bathrooms: | 1.5 | Bedrooms: | 3 | | Ceiling: | DRY WALL SPRAYED | Cooling: | HEAT PUMP/CONV/V | | Exterior Wall/Cover: | PLY/HARDBOARD T-111 | Floor Covering: | CARPET/VINYL 80-20 | | Floor Structure: | WOOD W/SUBFLOOR | Foundation: | CONCRETE | | Interior Finish: | DRYWALL PAINT | Plumbing Fixture Cnt: | 8 | | Roof Slope: | 4" IN 12" | Roof Structure/Cover: | CJ ASPHALT |
|
| | Type | Description | Class CD | Sub Class CD | Year Built | Area |
| | BAS | BASE/MAIN FLOOR | 3 | 0 | 1978 | 1504.0 |
| | OP1 | OPEN PORCH SLAB | 3 | 0 | 1978 | 620.0 |
| | AGR | ATTACHED GARAGE | 3 | 0 | 1978 | 484.0 |
| | OWP | OPEN WOOD PORCH W/STEPS | 3 | 0 | 1978 | 625.5 |
Sketch
Property Image
Land
| 1 | 14 | SQ (08001-12000) | 0.0000 | 0.00 | 0.00 | 0.00 | 1.00 | $275,000 | $0 |
Roll Value History
| 2026 | N/A | N/A | N/A | N/A | N/A |
| 2025 | $255,796 | $275,000 | $0 | $530,796 | $136,565 |
| 2024 | $259,195 | $290,000 | $0 | $549,195 | $136,565 |
| 2023 | $262,594 | $250,000 | $0 | $512,594 | $136,565 |
| 2022 | $228,550 | $210,000 | $0 | $438,550 | $341,413 |
| 2021 | $201,413 | $140,000 | $0 | $341,413 | $341,413 |
| 2020 | $196,632 | $130,000 | $0 | $326,632 | $326,632 |
| 2019 | $143,896 | $170,000 | $0 | $313,896 | $313,896 |
| 2018 | $144,363 | $150,000 | $0 | $294,363 | $294,363 |
| 2017 | $145,294 | $120,000 | $0 | $265,294 | $265,294 |
| 2016 | $120,506 | $85,000 | $0 | $205,506 | $205,506 |
| 2015 | $122,276 | $85,000 | $0 | $207,276 | $207,276 |
| 2014 | $124,049 | $85,000 | $0 | $209,049 | $209,049 |
| 2013 | $125,821 | $85,000 | $0 | $210,821 | $210,821 |
| 2012 | $127,594 | $80,000 | $0 | $207,594 | $207,594 |
| 2011 | $129,365 | $100,000 | $0 | $229,365 | $229,365 |
| 2010 | $131,350 | $100,000 | $0 | $231,350 | $231,350 |
| 2009 | $137,203 | $130,000 | $0 | $267,203 | $49,853 |
| 2008 | $139,076 | $125,000 | $0 | $264,076 | $49,853 |
| 2007 | $140,979 | $125,000 | $0 | $265,979 | $49,853 |
Deed and Sales History
| 1 | 12/06/2010 | QCD | Quit Claim Deed | JONES, MYRL R | JONES, GERALD R | | | $0.00 | 3134 | 4286872 |
| 2 | 03/01/1991 | QCD | Quit Claim Deed | JONES, MYRL R | JONES, MYRL R | | | $0.00 | 10697 | 91003139 |
| 3 | 02/01/1991 | QCD | Quit Claim Deed | JONES, GERALD R | JONES, MYRL R | | | $0.00 | 10421 | 91001941 |
| 4 | 01/01/1991 | QCD | Quit Claim Deed | JONES, GERALD R | JONES, GERALD R | | | $0.00 | 10297 | 91001384 |
| 5 | 05/01/1989 | OTHER | Other - Misc. Documents | JONES, GERALD R | JONES, GERALD R | | | $0.00 | 63129 | 0 |
| 6 | 07/01/1987 | QCD | Quit Claim Deed | JONES, MYRL R | JONES, GERALD R | | | $0.00 | 72240 | 87010214 |
| 7 | 04/01/1982 | PACD | Purchaser's Assignment | JONES, HAROLD R | JONES, MYRL R | | | $1.00 | 59449 | 369310 |
| 8 | 10/01/1978 | OTHER | Other - Misc. Documents | Unknown | JONES, HAROLD R | | | $51,500.00 | 85136 | 341517 |
Payout Agreement
| No payout information available.. |