Property
Account |
| Property ID: | 728476 | Abbreviated Legal Description: | BUENA VISTA 1 LOT 5 BLK 1 |
| Geographic ID: | S6195-00-01005-0 | Agent Code: | |
| Type: | Real | | |
| Tax Area: | 590 - APPRAISER-Stan/Cam Schl Dist, Special Dist, improved & less than 1 acre | Land Use Code | 11 |
| Open Space: | N | DFL | N |
| Historic Property: | N | Remodel Property: | N |
| Multi-Family Redevelopment: | N | | |
| Township: | | Section: | |
| Range: | |
Location |
| Address: | 95 VISTA DEL MAR ST CAMANO ISLAND, WA 98282 | Mapsco: | |
| Neighborhood: | North Camano | Map ID: | 962 |
| Neighborhood CD: | 06-C |
Owner |
| Name: | EDWARDS, ROBERT DAVID | Owner ID: | 288584 |
| Mailing Address: | ANNE P.B. EDWARDS 36 DILLON RD WOODBRIDGE, CT 06525 | % Ownership: | 100.0000000000% |
| | | Exemptions: | |
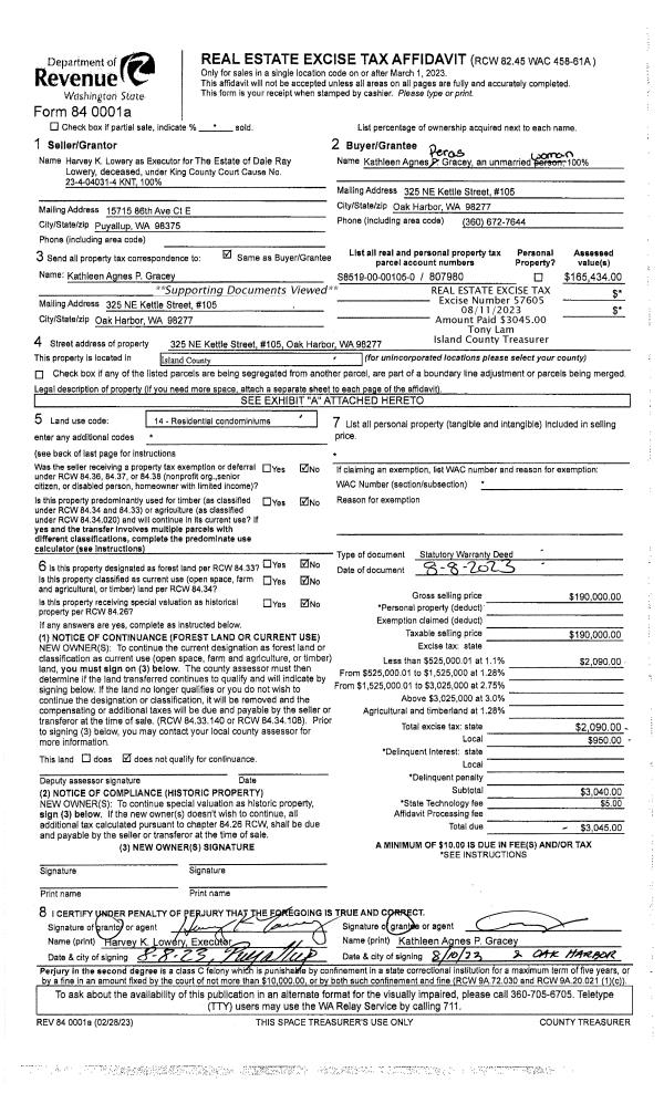
Taxes and Assessment Details
Values
| (+) Improvement Homesite Value: | + | $0 | |
| (+) Improvement Non-Homesite Value: | + | $537,995 | |
| (+) Land Homesite Value: | + | $0 | |
| (+) Land Non-Homesite Value: | + | $380,000 | |
| (+) Curr Use (HS): | + | $0 | $0 |
| (+) Curr Use (NHS): | + | $0 | $0 |
| | | -------------------------- | |
| (=) Market Value: | = | $917,995 | |
| (–) Productivity Loss: | – | $0 | |
| | | -------------------------- | |
| (=) Subtotal: | = | $917,995 | |
| (+) Senior Appraised Value: | + | $0 | |
| (+) Non-Senior Appraised Value: | + | $917,995 | |
| | | -------------------------- | |
| (=) Total Appraised Value: | = | $917,995 | |
| (–) Senior Exemption Loss: | – | $0 | |
| (–) Exemption Loss: | – | $0 | |
| | | -------------------------- | |
| (=) Taxable Value: | = | $917,995 | |
Taxing Jurisdiction
| Owner: | EDWARDS, ROBERT DAVID | | |
| % Ownership: | 100.0000000000% | | |
| Total Value: | $917,995 | | |
| Tax Area: | 590 - APPRAISER-Stan/Cam Schl Dist, Special Dist, improved & less than 1 acre |
| CF | Conservation Futures | 0.0316035091 | $917,995 | $917,995 | $29.01 | | |
| EMS1 | Fire & Rescue Dist #1 Camano GEN (EMS) | 0.3677864386 | $917,995 | $917,995 | $337.63 | | |
| FIRE1 | Fire & Rescue Dist #1 Camano GEN | 1.2502910536 | $917,995 | $917,995 | $1,147.76 | | |
| FIRE1BOND | Fire & Rescue Dist #1 Camano BOND | 0.1570001679 | $917,995 | $917,995 | $144.13 | | |
| CE | County Current Expense | 0.3708482477 | $917,995 | $917,995 | $340.44 | | |
| CR | County Roads | 0.4584763726 | $917,995 | $917,995 | $420.88 | | |
| LCIB | Library Sno-Isle BOND (Camano Island) | 0.0396325772 | $917,995 | $917,995 | $36.38 | | |
| LIB | Library Sno-Isle GEN | 0.3153421757 | $917,995 | $917,995 | $289.48 | | |
| SCH205_401 | School 205-401 Enrichment | 1.2698420524 | $917,995 | $917,995 | $1,165.71 | | |
| SCH205BOND | School 205-401 BOND | 0.9396497583 | $917,995 | $917,995 | $862.59 | | |
| ST | State School | 1.3035497053 | $917,995 | $917,995 | $1,196.65 | | |
| ST2 | State School Part 2 | 0.8169543533 | $917,995 | $917,995 | $749.96 | | |
| | Total Tax Rate: | 7.3209764117 | | | | | |
| | | | | Taxes w/Current Exemptions: | $6,720.62 | | |
| | | | | Taxes w/o Exemptions: | $6,720.62 | | |
Improvement / Building
| Improvement #1: | RESIDENTIAL | State Code: | Y | 3416.0 sqft | Value: | $537,995 |
| Bathrooms: | 2.5 | Bedrooms: | 3 | | Ceiling: | DRYWALL PAINTED | Exterior Wall/Cover: | WOOD SIDING | | Floor Covering: | CERAMIC TILE/HWD 40/60 | Floor Structure: | WOOD W/SUBFLOOR | | Foundation: | CONCRETE | Heating: | FHA GAS | | Interior Finish: | DRYWALL PAINT | Plumbing Fixture Cnt: | 17 | | Roof Slope: | 5" IN 12" | Roof Structure/Cover: | BEAM ASPHALT |
|
| | Type | Description | Class CD | Sub Class CD | Year Built | Area |
| | BAS | BASE/MAIN FLOOR | 4 | 0 | 1981 | 1560.0 |
| | DWN | DOWNSTAIRS LIVING AREA | 4 | 0 | 1981 | 1560.0 |
| | OP2 | OPEN PORCH W/STEPS | 4 | 0 | 1981 | 416.0 |
| | LOF | LOFT | 4 | 0 | 1981 | 296.0 |
| | OWP | OPEN WOOD PORCH W/STEPS | 4 | 0 | 1981 | 224.0 |
Sketch
Property Image
Land
| 1 | 14 | SQ (08001-12000) | 0.0000 | 0.00 | 0.00 | 0.00 | 1.00 | $380,000 | $0 |
Roll Value History
| 2026 | N/A | N/A | N/A | N/A | N/A |
| 2025 | $537,995 | $380,000 | $0 | $917,995 | $917,995 |
| 2024 | $544,616 | $370,000 | $0 | $914,616 | $914,616 |
| 2023 | $551,238 | $370,000 | $0 | $921,238 | $921,238 |
| 2022 | $493,156 | $340,000 | $0 | $833,156 | $833,156 |
| 2021 | $434,046 | $220,000 | $0 | $654,046 | $654,046 |
| 2020 | $423,540 | $220,000 | $0 | $643,540 | $643,540 |
| 2019 | $339,706 | $290,000 | $0 | $629,706 | $629,706 |
| 2018 | $205,162 | $200,000 | $0 | $405,162 | $405,162 |
| 2017 | $206,485 | $180,000 | $0 | $386,485 | $386,485 |
| 2016 | $185,403 | $115,000 | $0 | $300,403 | $300,403 |
| 2015 | $188,013 | $100,000 | $0 | $288,013 | $288,013 |
| 2014 | $190,626 | $100,000 | $0 | $290,626 | $290,626 |
| 2013 | $193,237 | $100,000 | $0 | $293,237 | $293,237 |
| 2012 | $195,850 | $108,000 | $0 | $303,850 | $303,850 |
| 2011 | $198,460 | $135,000 | $0 | $333,460 | $333,460 |
| 2010 | $205,985 | $103,230 | $0 | $309,215 | $309,215 |
| 2009 | $212,468 | $165,000 | $0 | $377,468 | $377,468 |
| 2008 | $215,397 | $250,000 | $0 | $465,397 | $465,397 |
| 2007 | $218,349 | $250,000 | $0 | $468,349 | $468,349 |
Deed and Sales History
| 1 | 01/09/2019 | WD | Warranty Deed | MCCULLEY, GARY K | EDWARDS, ROBERT DAVID | | | $649,000.00 | 37397 | 4458369 |
| 2 | 08/19/1998 | WD | Warranty Deed | BUTTERS, ERIS V | MCCULLEY, GARY K | | | $198,500.00 | 83351 | 98017532 |
| 3 | 06/01/1997 | OTHER | Other - Misc. Documents | BUTTERS, RONALD | BUTTERS, ERIS V | | | $0.00 | 67406 | 97007761 |
| 4 | 01/01/1900 | OTHER | Other - Misc. Documents | Unknown | BUTTERS, RONALD | | | $0.00 | 0 | 0 |
Payout Agreement
| No payout information available.. |