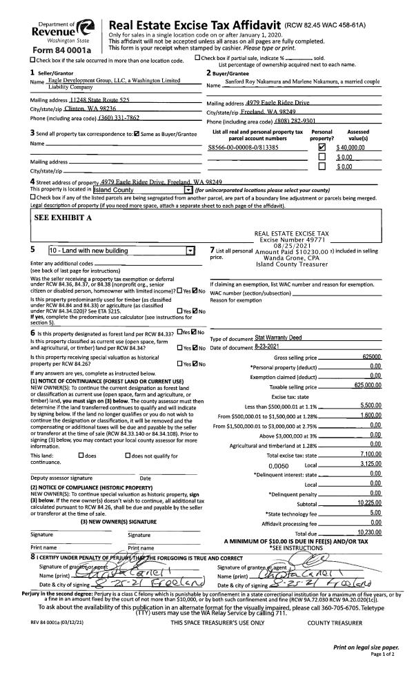
Property
Account |
| Property ID: | 728644 | Abbreviated Legal Description: | ROCKY PT TR 2 LOT 29 |
| Geographic ID: | S8035-02-00029-0 | Agent Code: | |
| Type: | Real | | |
| Tax Area: | 510 - APPRAISER-Stan/Cam Schl Dist, improved & 1 acre or less | Land Use Code | 11 |
| Open Space: | N | DFL | N |
| Historic Property: | N | Remodel Property: | N |
| Multi-Family Redevelopment: | N | | |
| Township: | | Section: | |
| Range: | |
Location |
| Address: | 758 GLADSTONE DR CAMANO ISLAND, WA 98282 | Mapsco: | |
| Neighborhood: | North Camano | Map ID: | 554 |
| Neighborhood CD: | 06-C |
Owner |
| Name: | BOUMA, JENNIFER J | Owner ID: | 317188 |
| Mailing Address: | BLAIR W BOUMA 758 W GLADSTONE DR CAMANO ISLAND, WA 98282 | % Ownership: | 100.0000000000% |
| | | Exemptions: | |
Taxes and Assessment Details
Values
| (+) Improvement Homesite Value: | + | $0 | |
| (+) Improvement Non-Homesite Value: | + | $395,143 | |
| (+) Land Homesite Value: | + | $0 | |
| (+) Land Non-Homesite Value: | + | $410,000 | |
| (+) Curr Use (HS): | + | $0 | $0 |
| (+) Curr Use (NHS): | + | $0 | $0 |
| | | -------------------------- | |
| (=) Market Value: | = | $805,143 | |
| (–) Productivity Loss: | – | $0 | |
| | | -------------------------- | |
| (=) Subtotal: | = | $805,143 | |
| (+) Senior Appraised Value: | + | $0 | |
| (+) Non-Senior Appraised Value: | + | $805,143 | |
| | | -------------------------- | |
| (=) Total Appraised Value: | = | $805,143 | |
| (–) Senior Exemption Loss: | – | $0 | |
| (–) Exemption Loss: | – | $0 | |
| | | -------------------------- | |
| (=) Taxable Value: | = | $805,143 | |
Taxing Jurisdiction
| Owner: | BOUMA, JENNIFER J | | |
| % Ownership: | 100.0000000000% | | |
| Total Value: | $805,143 | | |
| Tax Area: | 510 - APPRAISER-Stan/Cam Schl Dist, improved & 1 acre or less |
| CF | Conservation Futures | 0.0316035091 | $805,143 | $805,143 | $25.45 | | |
| EMS1 | Fire & Rescue Dist #1 Camano GEN (EMS) | 0.3677864386 | $805,143 | $805,143 | $296.12 | | |
| FIRE1 | Fire & Rescue Dist #1 Camano GEN | 1.2502910536 | $805,143 | $805,143 | $1,006.66 | | |
| FIRE1BOND | Fire & Rescue Dist #1 Camano BOND | 0.1570001679 | $805,143 | $805,143 | $126.41 | | |
| CE | County Current Expense | 0.3708482477 | $805,143 | $805,143 | $298.59 | | |
| CR | County Roads | 0.4584763726 | $805,143 | $805,143 | $369.14 | | |
| LCIB | Library Sno-Isle BOND (Camano Island) | 0.0396325772 | $805,143 | $805,143 | $31.91 | | |
| LIB | Library Sno-Isle GEN | 0.3153421757 | $805,143 | $805,143 | $253.90 | | |
| SCH205_401 | School 205-401 Enrichment | 1.2698420524 | $805,143 | $805,143 | $1,022.40 | | |
| SCH205BOND | School 205-401 BOND | 0.9396497583 | $805,143 | $805,143 | $756.55 | | |
| ST | State School | 1.3035497053 | $805,143 | $805,143 | $1,049.54 | | |
| ST2 | State School Part 2 | 0.8169543533 | $805,143 | $805,143 | $657.77 | | |
| | Total Tax Rate: | 7.3209764117 | | | | | |
| | | | | Taxes w/Current Exemptions: | $5,894.44 | | |
| | | | | Taxes w/o Exemptions: | $5,894.44 | | |
Improvement / Building
| Improvement #1: | RESIDENTIAL | State Code: | Y | 2888.0 sqft | Value: | $395,143 |
| Bathrooms: | 2.5 | Bedrooms: | 2 | | Ceiling: | DRYWALL PAINTED | Cooling: | HEAT PUMP/CONV/V | | Exterior Wall/Cover: | PLY/HARDBOARD T-111 | Floor Covering: | CARPET/VINYL 60-40 | | Floor Structure: | WOOD W/SUBFLOOR | Foundation: | CONCRETE | | Interior Finish: | DRYWALL PAINT | Plumbing Fixture Cnt: | 11 | | Roof Slope: | 4" IN 12" | Roof Structure/Cover: | CJ ASPHALT |
|
| | Type | Description | Class CD | Sub Class CD | Year Built | Area |
| | BAS | BASE/MAIN FLOOR | 3 | 0 | 1980 | 1568.0 |
| | OWR | OPEN WOOD PORCH W/STEPS/ROOF | 3 | 0 | 1980 | 98.0 |
| | AGR | ATTACHED GARAGE | 3 | 0 | 1980 | 624.0 |
| | OWP | OPEN WOOD PORCH W/STEPS | 3 | 0 | 1980 | 160.0 |
| | OWP | OPEN WOOD PORCH W/STEPS | 3 | 0 | 1980 | 64.0 |
| | DWN | DOWNSTAIRS LIVING AREA | 3 | 0 | 1980 | 1320.0 |
Sketch
Property Image
Land
| 1 | 14 | SQ (08001-12000) | 0.0000 | 8712.00 | 0.00 | 0.00 | 1.00 | $410,000 | $0 |
Roll Value History
| 2026 | N/A | N/A | N/A | N/A | N/A |
| 2025 | $395,143 | $410,000 | $0 | $805,143 | $805,143 |
| 2024 | $399,777 | $390,000 | $0 | $789,777 | $789,777 |
| 2023 | $404,413 | $400,000 | $0 | $804,413 | $804,413 |
| 2022 | $337,316 | $350,000 | $0 | $687,316 | $687,316 |
| 2021 | $296,896 | $250,000 | $0 | $546,896 | $546,896 |
| 2020 | $290,026 | $220,000 | $0 | $510,026 | $510,026 |
| 2019 | $231,577 | $290,000 | $0 | $521,577 | $521,577 |
| 2018 | $232,256 | $250,000 | $0 | $482,256 | $482,256 |
| 2017 | $233,614 | $165,000 | $0 | $398,614 | $398,614 |
| 2016 | $191,145 | $135,000 | $0 | $326,145 | $326,145 |
| 2015 | $193,836 | $100,000 | $0 | $293,836 | $85,930 |
| 2014 | $196,528 | $100,000 | $0 | $296,528 | $85,930 |
| 2013 | $199,220 | $100,000 | $0 | $299,220 | $144,826 |
| 2012 | $201,912 | $108,000 | $0 | $309,912 | $144,826 |
| 2011 | $204,604 | $135,000 | $0 | $339,604 | $144,826 |
| 2010 | $208,673 | $135,000 | $0 | $343,673 | $144,826 |
| 2009 | $217,946 | $150,000 | $0 | $367,946 | $85,930 |
| 2008 | $220,897 | $150,000 | $0 | $370,897 | $85,930 |
| 2007 | $223,864 | $150,000 | $0 | $373,864 | $85,930 |
Deed and Sales History
| 1 | 07/01/2025 | WD | Warranty Deed | DENNIS, ROSE M | BOUMA, JENNIFER J | | | $979,000.00 | 64012 | 4587668 |
| 2 | 02/02/2021 | PRD | Personal Representatives Deed | DENNIS, FRANKLIN L | DENNIS, ROSE M | | | $0.00 | 46819 | 4510024 |
| 3 | 03/03/2017 | WD | Warranty Deed | WYANT, VICKI L | DENNIS, FRANKLIN L | | | $435,000.00 | 28408 | 4418731 |
| 4 | 10/01/1996 | QCD | Quit Claim Deed | Unknown | SUNDSBY, ROY G | | | $0.00 | 63801 | 96018401 |
| 5 | 10/01/1996 | QCD | Quit Claim Deed | SUNDSBY, ROY G | SUNDSBY, ROY G | | | $0.00 | 63801 | 96018401 |
| 6 | 08/01/1978 | OTHER | Other - Misc. Documents | SUNDSBY, ROY G | SUNDSBY, ROY G | | | $9,250.00 | 84028 | 338414 |
Payout Agreement
| No payout information available.. |