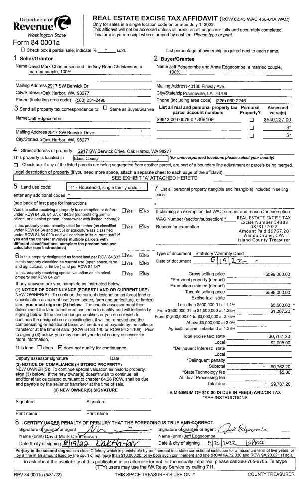
Property
Account |
| Property ID: | 728699 | Abbreviated Legal Description: | LOST LK GRV 1 LOT 5 BLK 1 |
| Geographic ID: | S7410-00-01005-0 | Agent Code: | |
| Type: | Real | | |
| Tax Area: | 510 - APPRAISER-Stan/Cam Schl Dist, improved & 1 acre or less | Land Use Code | 11 |
| Open Space: | N | DFL | N |
| Historic Property: | N | Remodel Property: | N |
| Multi-Family Redevelopment: | N | | |
| Township: | | Section: | |
| Range: | |
Location |
| Address: | | Mapsco: | |
| Neighborhood: | Cycle 5 | Map ID: | 505 |
| Neighborhood CD: | 5 |
Owner |
| Name: | HOWLETT, JESSICA | Owner ID: | 258020 |
| Mailing Address: | 1363 LAKEWOOD DR CAMANO ISLAND, WA 98282 | % Ownership: | 100.0000000000% |
| | | Exemptions: | |
Taxes and Assessment Details
Values
| (+) Improvement Homesite Value: | + | $0 | |
| (+) Improvement Non-Homesite Value: | + | $110,673 | |
| (+) Land Homesite Value: | + | $0 | |
| (+) Land Non-Homesite Value: | + | $250,000 | |
| (+) Curr Use (HS): | + | $0 | $0 |
| (+) Curr Use (NHS): | + | $0 | $0 |
| | | -------------------------- | |
| (=) Market Value: | = | $360,673 | |
| (–) Productivity Loss: | – | $0 | |
| | | -------------------------- | |
| (=) Subtotal: | = | $360,673 | |
| (+) Senior Appraised Value: | + | $0 | |
| (+) Non-Senior Appraised Value: | + | $360,673 | |
| | | -------------------------- | |
| (=) Total Appraised Value: | = | $360,673 | |
| (–) Senior Exemption Loss: | – | $0 | |
| (–) Exemption Loss: | – | $0 | |
| | | -------------------------- | |
| (=) Taxable Value: | = | $360,673 | |
Taxing Jurisdiction
| Owner: | HOWLETT, JESSICA | | |
| % Ownership: | 100.0000000000% | | |
| Total Value: | $360,673 | | |
| Tax Area: | 510 - APPRAISER-Stan/Cam Schl Dist, improved & 1 acre or less |
| CF | Conservation Futures | 0.0316035091 | $360,673 | $360,673 | $11.40 | | |
| EMS1 | Fire & Rescue Dist #1 Camano GEN (EMS) | 0.3677864386 | $360,673 | $360,673 | $132.65 | | |
| FIRE1 | Fire & Rescue Dist #1 Camano GEN | 1.2502910536 | $360,673 | $360,673 | $450.95 | | |
| FIRE1BOND | Fire & Rescue Dist #1 Camano BOND | 0.1570001679 | $360,673 | $360,673 | $56.63 | | |
| CE | County Current Expense | 0.3708482477 | $360,673 | $360,673 | $133.75 | | |
| CR | County Roads | 0.4584763726 | $360,673 | $360,673 | $165.36 | | |
| LCIB | Library Sno-Isle BOND (Camano Island) | 0.0396325772 | $360,673 | $360,673 | $14.29 | | |
| LIB | Library Sno-Isle GEN | 0.3153421757 | $360,673 | $360,673 | $113.74 | | |
| SCH205_401 | School 205-401 Enrichment | 1.2698420524 | $360,673 | $360,673 | $458.00 | | |
| SCH205BOND | School 205-401 BOND | 0.9396497583 | $360,673 | $360,673 | $338.91 | | |
| ST | State School | 1.3035497053 | $360,673 | $360,673 | $470.16 | | |
| ST2 | State School Part 2 | 0.8169543533 | $360,673 | $360,673 | $294.65 | | |
| | Total Tax Rate: | 7.3209764117 | | | | | |
| | | | | Taxes w/Current Exemptions: | $2,640.49 | | |
| | | | | Taxes w/o Exemptions: | $2,640.49 | | |
Improvement / Building
| Improvement #1: | MANUFACTURED HOME | State Code: | Y | 1404.0 sqft | Value: | $110,673 |
| Bathrooms: | 0 | Bedrooms: | 0 | | Ceiling: | PLASTER PAINTED | Cooling: | EVAP NO DUCT | | Exterior Wall/Cover: | VINYL | Floor Covering: | CARPET 100% | | Floor Structure: | SLAB ON GRADE | Foundation: | SLAB | | Heating: | FHA ELECTRIC | Interior Finish: | PLASTER | | Plumbing Fixture Cnt: | 1 | Roof Slope: | FLAT | | Roof Structure/Cover: | CJ ALUMINIUM HEAVY |   |   |
|
| | Type | Description | Class CD | Sub Class CD | Year Built | Area |
| | BAS | BASE/MAIN FLOOR | 4 | 0 | 1983 | 1404.0 |
| | oGAR | GARAGE | 4 | 0 | 1983 | 1040.0 |
| | UTY | STORAGE/UTILITY | 4 | 0 | 1983 | 144.0 |
| | OWP | OPEN WOOD PORCH W/STEPS | 4 | 0 | 1983 | 128.0 |
Sketch
Property Image
Land
| 1 | 15 | SQ (12001-21780) | 0.0000 | 0.00 | 0.00 | 0.00 | 1.00 | $250,000 | $0 |
Roll Value History
| 2026 | N/A | N/A | N/A | N/A | N/A |
| 2025 | $110,673 | $250,000 | $0 | $360,673 | $360,673 |
| 2024 | $113,993 | $240,000 | $0 | $353,993 | $353,993 |
| 2023 | $105,398 | $240,000 | $0 | $345,398 | $345,398 |
| 2022 | $100,512 | $210,000 | $0 | $310,512 | $310,512 |
| 2021 | $71,752 | $170,000 | $0 | $241,752 | $241,752 |
| 2020 | $72,347 | $130,000 | $0 | $202,347 | $202,347 |
| 2019 | $64,796 | $150,000 | $0 | $214,796 | $214,796 |
| 2018 | $66,317 | $125,000 | $0 | $191,317 | $191,317 |
| 2017 | $67,838 | $90,000 | $0 | $157,838 | $157,838 |
| 2016 | $69,359 | $75,000 | $0 | $144,359 | $144,359 |
| 2015 | $63,827 | $52,000 | $0 | $115,827 | $115,827 |
| 2014 | $64,938 | $52,000 | $0 | $116,938 | $116,938 |
| 2013 | $66,049 | $52,000 | $0 | $118,049 | $118,049 |
| 2012 | $67,715 | $52,000 | $0 | $119,715 | $119,715 |
| 2011 | $68,826 | $65,000 | $0 | $133,826 | $133,826 |
| 2010 | $67,637 | $84,000 | $0 | $151,637 | $151,637 |
| 2009 | $57,732 | $90,000 | $0 | $147,732 | $147,732 |
| 2008 | $59,492 | $90,000 | $0 | $149,492 | $149,492 |
| 2007 | $61,530 | $90,000 | $0 | $151,530 | $151,530 |
Deed and Sales History
| 1 | 06/19/2012 | QCD | Quit Claim Deed | HOWLETT, ROBERT | HOWLETT, JESSICA | | | $0.00 | 8052 | 4317964 |
| 2 | 06/07/2004 | TRUSTEED | Trustee's Deed | WELLS FARGO BANK, | HOWLETT, ROBERT | | | $124,000.00 | 43032 | 4106169 |
| 3 | 09/05/2003 | TRUSTEED | Trustee's Deed | CALLAHAN, PATRICK DAVID | WELLS FARGO BANK, | | | $125,935.00 | 34230 | 4076021 |
| 4 | 07/12/1999 | OTHER | Other - Misc. Documents | CALLAHAN, CHAROLENE M | CALLAHAN, PATRICK DAVID | | | $0.00 | 403 | 0 |
| 5 | 07/12/1999 | QCD | Quit Claim Deed | Unknown | CALLAHAN, PATRICK DAVID | | | $0.00 | 92819 | 99016765 |
| 6 | 07/12/1999 | QCD | Quit Claim Deed | CALLAHAN, CHAROLENE M | CALLAHAN, PATRICK DAVID | | | $0.00 | 92818 | 99016764 |
| 7 | 04/28/1999 | OTHER | Other - Misc. Documents | CALLAHAN, PATRICK DAVID | CALLAHAN, CHAROLENE M | | | $0.00 | 91578 | 0 |
| 8 | 04/28/1999 | QCD | Quit Claim Deed | CALLAHAN, CHAROLENE M | CALLAHAN, CHAROLENE M | | | $0.00 | 91579 | 99010196 |
| 9 | 06/01/1994 | OTHER | Other - Misc. Documents | HAMMERS, HELEN M | CALLAHAN, CHAROLENE M | | | $50,000.00 | 42571 | 0 |
| 10 | 06/01/1994 | WD | Warranty Deed | HAMMERS, HELEN M | CALLAHAN, CHAROLENE M | | | $44,000.00 | 42570 | 94014332 |
| 11 | 05/01/1994 | OTHER | Other - Misc. Documents | HAMMERS, MILO A | HAMMERS, HELEN M | | | $0.00 | 41736 | 0 |
| 12 | 05/01/1994 | OTHER | Other - Misc. Documents | HAMMERS, MILO A | HAMMERS, HELEN M | | | $0.00 | 65875 | 94008293 |
| 13 | 08/01/1989 | WD | Warranty Deed | SCHELBACH, ERNEST H | HAMMERS, MILO A | | | $27,674.00 | 93142 | 89010593 |
| 14 | 08/01/1989 | OTHER | Other - Misc. Documents | WATERS, CORNELIUS F | HAMMERS, MILO A | | | $24,326.00 | 93141 | 0 |
| 15 | 07/01/1986 | OTHER | Other - Misc. Documents | WATERS, CORNELIUS F | WATERS, CORNELIUS F | | | $0.00 | 61838 | 0 |
| 16 | 08/01/1983 | WD | Warranty Deed | CALLAHAN, CHAROLENE M | WATERS, CORNELIUS F | | | $11,000.00 | 32305 | 413619 |
Payout Agreement
| No payout information available.. |