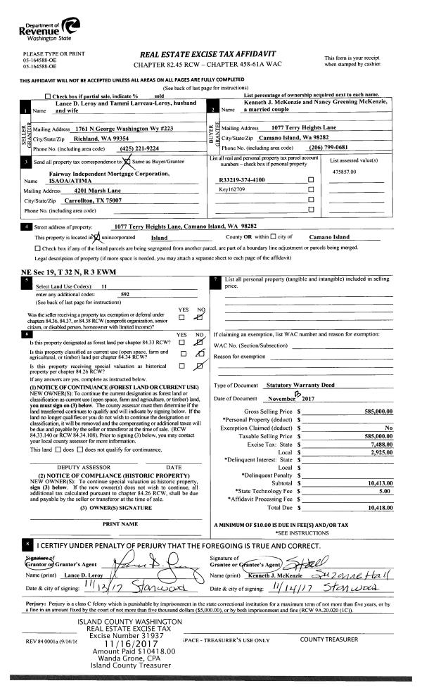
Property
Account |
| Property ID: | 728813 | Abbreviated Legal Description: | LOST LK GRV 1 LOT 1 BLK 4 |
| Geographic ID: | S7410-00-04001-0 | Agent Code: | |
| Type: | Real | | |
| Tax Area: | 510 - APPRAISER-Stan/Cam Schl Dist, improved & 1 acre or less | Land Use Code | 11 |
| Open Space: | N | DFL | N |
| Historic Property: | N | Remodel Property: | N |
| Multi-Family Redevelopment: | N | | |
| Township: | | Section: | |
| Range: | |
Location |
| Address: | 1427 LAKEWOOD DR CAMANO ISLAND, WA 98282 | Mapsco: | |
| Neighborhood: | Cycle 5 | Map ID: | 505 |
| Neighborhood CD: | 5 |
Owner |
| Name: | MILLS, JOSHUA | Owner ID: | 307305 |
| Mailing Address: | AUBREY MILLS 1427 LAKEWOOD DR CAMANO ISLAND, WA 98282 | % Ownership: | 100.0000000000% |
| | | Exemptions: | |
Taxes and Assessment Details
Values
| (+) Improvement Homesite Value: | + | $0 | |
| (+) Improvement Non-Homesite Value: | + | $81,832 | |
| (+) Land Homesite Value: | + | $0 | |
| (+) Land Non-Homesite Value: | + | $250,000 | |
| (+) Curr Use (HS): | + | $0 | $0 |
| (+) Curr Use (NHS): | + | $0 | $0 |
| | | -------------------------- | |
| (=) Market Value: | = | $331,832 | |
| (–) Productivity Loss: | – | $0 | |
| | | -------------------------- | |
| (=) Subtotal: | = | $331,832 | |
| (+) Senior Appraised Value: | + | $0 | |
| (+) Non-Senior Appraised Value: | + | $331,832 | |
| | | -------------------------- | |
| (=) Total Appraised Value: | = | $331,832 | |
| (–) Senior Exemption Loss: | – | $0 | |
| (–) Exemption Loss: | – | $0 | |
| | | -------------------------- | |
| (=) Taxable Value: | = | $331,832 | |
Taxing Jurisdiction
| Owner: | MILLS, JOSHUA | | |
| % Ownership: | 100.0000000000% | | |
| Total Value: | $331,832 | | |
| Tax Area: | 510 - APPRAISER-Stan/Cam Schl Dist, improved & 1 acre or less |
| CF | Conservation Futures | 0.0316035091 | $331,832 | $331,832 | $10.49 | | |
| EMS1 | Fire & Rescue Dist #1 Camano GEN (EMS) | 0.3677864386 | $331,832 | $331,832 | $122.04 | | |
| FIRE1 | Fire & Rescue Dist #1 Camano GEN | 1.2502910536 | $331,832 | $331,832 | $414.89 | | |
| FIRE1BOND | Fire & Rescue Dist #1 Camano BOND | 0.1570001679 | $331,832 | $331,832 | $52.10 | | |
| CE | County Current Expense | 0.3708482477 | $331,832 | $331,832 | $123.06 | | |
| CR | County Roads | 0.4584763726 | $331,832 | $331,832 | $152.14 | | |
| LCIB | Library Sno-Isle BOND (Camano Island) | 0.0396325772 | $331,832 | $331,832 | $13.15 | | |
| LIB | Library Sno-Isle GEN | 0.3153421757 | $331,832 | $331,832 | $104.64 | | |
| SCH205_401 | School 205-401 Enrichment | 1.2698420524 | $331,832 | $331,832 | $421.37 | | |
| SCH205BOND | School 205-401 BOND | 0.9396497583 | $331,832 | $331,832 | $311.81 | | |
| ST | State School | 1.3035497053 | $331,832 | $331,832 | $432.56 | | |
| ST2 | State School Part 2 | 0.8169543533 | $331,832 | $331,832 | $271.09 | | |
| | Total Tax Rate: | 7.3209764117 | | | | | |
| | | | | Taxes w/Current Exemptions: | $2,429.34 | | |
| | | | | Taxes w/o Exemptions: | $2,429.34 | | |
Improvement / Building
| Improvement #1: | MANUFACTURED HOME | State Code: | Y | 1440.0 sqft | Value: | $81,832 |
| Bathrooms: | 0 | Bedrooms: | 0 | | Ceiling: | PLASTER PAINTED | Cooling: | EVAP NO DUCT | | Exterior Wall/Cover: | VINYL | Floor Covering: | CARPET 100% | | Floor Structure: | SLAB ON GRADE | Foundation: | SLAB | | Heating: | FHA ELECTRIC | Interior Finish: | PLASTER | | Plumbing Fixture Cnt: | 1 | Roof Slope: | FLAT | | Roof Structure/Cover: | CJ ALUMINIUM HEAVY |   |   |
|
| | Type | Description | Class CD | Sub Class CD | Year Built | Area |
| | BAS | BASE/MAIN FLOOR | 4 | 0 | 1982 | 1440.0 |
| | OWR | OPEN WOOD PORCH W/STEPS/ROOF | 4 | 0 | 1982 | 160.0 |
| | OWR | OPEN WOOD PORCH W/STEPS/ROOF | 4 | 0 | 1982 | 60.0 |
| | DGR | DETACHED GARAGE | 4 | 0 | 1982 | 600.0 |
Sketch
Property Image
Land
| 1 | 15 | SQ (12001-21780) | 0.0000 | 0.00 | 0.00 | 0.00 | 1.00 | $250,000 | $0 |
Roll Value History
| 2026 | N/A | N/A | N/A | N/A | N/A |
| 2025 | $81,832 | $250,000 | $0 | $331,832 | $331,832 |
| 2024 | $85,390 | $240,000 | $0 | $325,390 | $325,390 |
| 2023 | $78,893 | $240,000 | $0 | $318,893 | $318,893 |
| 2022 | $74,238 | $210,000 | $0 | $284,238 | $284,238 |
| 2021 | $56,035 | $170,000 | $0 | $226,035 | $226,035 |
| 2020 | $56,761 | $130,000 | $0 | $186,761 | $186,761 |
| 2019 | $47,507 | $150,000 | $0 | $197,507 | $197,507 |
| 2018 | $49,369 | $125,000 | $0 | $174,369 | $174,369 |
| 2017 | $51,233 | $90,000 | $0 | $141,233 | $141,233 |
| 2016 | $53,097 | $75,000 | $0 | $128,097 | $128,097 |
| 2015 | $53,813 | $52,000 | $0 | $105,813 | $105,813 |
| 2014 | $55,425 | $52,000 | $0 | $107,425 | $107,425 |
| 2013 | $57,037 | $52,000 | $0 | $109,037 | $109,037 |
| 2012 | $58,648 | $52,000 | $0 | $110,648 | $110,648 |
| 2011 | $61,066 | $65,000 | $0 | $126,066 | $126,066 |
| 2010 | $71,573 | $84,000 | $0 | $155,573 | $155,573 |
| 2009 | $74,263 | $90,000 | $0 | $164,263 | $164,263 |
| 2008 | $76,282 | $90,000 | $0 | $166,282 | $166,282 |
| 2007 | $77,492 | $90,000 | $0 | $167,492 | $167,492 |
Deed and Sales History
| 1 | 01/04/2023 | WD | Warranty Deed | BLUE TURTLE HOLDING, LLC | MILLS, JOSHUA | | | $379,000.00 | 55635 | 4555790 |
| 2 | 11/01/2017 | WD | Warranty Deed | MEHRI, SHELIA | BLUE TURTLE HOLDING, LLC | | | $145,000.00 | 31805 | 4433507 |
| 3 | 02/05/2010 | QCD | Quit Claim Deed | MEHRI, MUSA M | MEHRI, SHELIA | | | $0.00 | 552 | 4270104 |
| 4 | 09/09/2008 | WD | Warranty Deed | DEPT OF HUD, | MEHRI, MUSA M | | | $125,000.00 | 82444 | 4236711 |
| 5 | 01/18/2008 | WD | Warranty Deed | GMAC MORTGAGE LLC, | DEPT OF HUD, | | | $195,440.00 | 81330 | 4229452 |
| 6 | 01/08/2008 | TRUSTEED | Trustee's Deed | CALDWELL, DENNIS | GMAC MORTGAGE LLC, | | | $212,174.00 | 80121 | 4219840 |
| 7 | 10/24/2006 | WD | Warranty Deed | HOLLIS, JASON | CALDWELL, DENNIS | | | $199,000.00 | 64705 | 4185931 |
| 8 | 11/06/2002 | WD | Warranty Deed | COLBERT, FAM L | HOLLIS, JASON | | | $114,950.00 | 24488 | 4036941 |
| 9 | 02/01/1996 | QCD | Quit Claim Deed | COLBERT, JEWELDEEN | COLBERT, FAM L | | | $0.00 | 60964 | 96004983 |
| 10 | 02/01/1996 | QCD | Quit Claim Deed | COLBERT, JEWELDEEN | COLBERT, FAM L | | | $0.00 | 60964 | 96004983 |
| 11 | 09/01/1995 | OTHER | Other - Misc. Documents | Unknown | COLBERT, JEWELDEEN | | | $47,000.00 | 53223 | 0 |
| 12 | 09/01/1995 | WD | Warranty Deed | CANNON, WILLIAM M | COLBERT, JEWELDEEN | | | $52,950.00 | 53222 | 95014860 |
| 13 | 03/01/1982 | TRUSTEED | Trustee's Deed | BAYES, DONALD D | CANNON, WILLIAM M | | | $8,000.00 | 21140 | 396292 |
| 14 | 09/01/1979 | EXECUTORD | Executor Deed | SLIEKERS, HENDRIK | BAYES, DONALD D | | | $5,750.00 | 94838 | 359734 |
| 15 | 01/01/1900 | OTHER | Other - Misc. Documents | COLBERT, FAM L | SLIEKERS, HENDRIK | | | $0.00 | 0 | 0 |
Payout Agreement
| No payout information available.. |