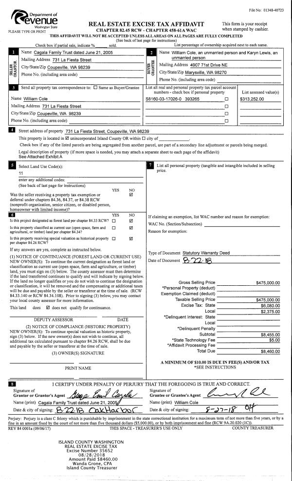
Property
Account |
| Property ID: | 729000 | Abbreviated Legal Description: | CREEKSIDE TERRACE CONDO APT 132 5.55% INT |
| Geographic ID: | S6427-00-00132-0 | Agent Code: | |
| Type: | Real | | |
| Tax Area: | 700 - APPRAISER-S Whid Schl Dist, in town of Langley | Land Use Code | 14 |
| Open Space: | N | DFL | N |
| Historic Property: | N | Remodel Property: | N |
| Multi-Family Redevelopment: | N | | |
| Township: | | Section: | |
| Range: | |
Location |
| Address: | 544 CREEKSIDE TERRACE BLDG B, UNIT 103 LANGLEY, WA 98260 | Mapsco: | |
| Neighborhood: | 42*LG-creekside | Map ID: | 913 |
| Neighborhood CD: | 42*LGcrktr |
Owner |
| Name: | BESS, CHARLENE MARIE | Owner ID: | 286140 |
| Mailing Address: | 544 CREEKSIDE TERRACE #103 LANGLEY, WA 98260 | % Ownership: | 100.0000000000% |
| | | Exemptions: | |
Taxes and Assessment Details
Values
| (+) Improvement Homesite Value: | + | $0 | |
| (+) Improvement Non-Homesite Value: | + | $174,296 | |
| (+) Land Homesite Value: | + | $0 | |
| (+) Land Non-Homesite Value: | + | $180,000 | |
| (+) Curr Use (HS): | + | $0 | $0 |
| (+) Curr Use (NHS): | + | $0 | $0 |
| | | -------------------------- | |
| (=) Market Value: | = | $354,296 | |
| (–) Productivity Loss: | – | $0 | |
| | | -------------------------- | |
| (=) Subtotal: | = | $354,296 | |
| (+) Senior Appraised Value: | + | $0 | |
| (+) Non-Senior Appraised Value: | + | $354,296 | |
| | | -------------------------- | |
| (=) Total Appraised Value: | = | $354,296 | |
| (–) Senior Exemption Loss: | – | $0 | |
| (–) Exemption Loss: | – | $0 | |
| | | -------------------------- | |
| (=) Taxable Value: | = | $354,296 | |
Taxing Jurisdiction
| Owner: | BESS, CHARLENE MARIE | | |
| % Ownership: | 100.0000000000% | | |
| Total Value: | $354,296 | | |
| Tax Area: | 700 - APPRAISER-S Whid Schl Dist, in town of Langley |
| CF | Conservation Futures | 0.0316035091 | $354,296 | $354,296 | $11.20 | | |
| LANG | City of Langley | 1.0093520762 | $354,296 | $354,296 | $357.61 | | |
| LANGBOND | City of Langley BOND | 1.0326110892 | $354,296 | $354,296 | $365.85 | | |
| FIRE3 | Fire & Rescue Dist #3 S Whidbey GEN | 1.2004855531 | $354,296 | $354,296 | $425.33 | | |
| HOBOND | Hospital BOND | 0.1910887512 | $354,296 | $354,296 | $67.70 | | |
| HOGEN | Hospital GEN | 0.3902502903 | $354,296 | $354,296 | $138.26 | | |
| CE | County Current Expense | 0.3708482477 | $354,296 | $354,296 | $131.39 | | |
| ISLANDEMS | Hospital GEN (EMS) | 0.5000000000 | $354,296 | $354,296 | $177.15 | | |
| LIB | Library Sno-Isle GEN | 0.3153421757 | $354,296 | $354,296 | $111.72 | | |
| PORTWHID | Port of S Whidbey GEN | 0.1094540357 | $354,296 | $354,296 | $38.78 | | |
| SCH206BOND | School 206 BOND | 0.3161759235 | $354,296 | $354,296 | $112.02 | | |
| SCH206MO | School 206 Enrichment | 0.4547169547 | $354,296 | $354,296 | $161.10 | | |
| ST | State School | 1.3035497053 | $354,296 | $354,296 | $461.84 | | |
| ST2 | State School Part 2 | 0.8169543533 | $354,296 | $354,296 | $289.44 | | |
| SWHIDPRBD | P & R S Whidbey BOND | 0.0152817568 | $354,296 | $354,296 | $5.41 | | |
| SWHIDPRBD2 | P & R S Whidbey BOND2 | 0.0138911264 | $354,296 | $354,296 | $4.92 | | |
| SWHIDPRMT | P & R S Whidbey GEN | 0.2053334452 | $354,296 | $354,296 | $72.75 | | |
| | Total Tax Rate: | 8.2769389934 | | | | | |
| | | | | Taxes w/Current Exemptions: | $2,932.47 | | |
| | | | | Taxes w/o Exemptions: | $2,932.47 | | |
Improvement / Building
| Improvement #1: | RESIDENTIAL | State Code: | A1 | 1025.0 sqft | Value: | $174,296 |
| Bathrooms: | 2 | Bedrooms: | 2 | | Ceiling: | DRYWALL PAINTED | Exterior Wall/Cover: | VINYL | | Floor Covering: | CARPET/VINYL 80-20 | Floor Structure: | WOOD W/SUBFLOOR | | Foundation: | CONCRETE | Heating: | WALL HEAT ELECTRIC | | Interior Finish: | DRYWALL PAINT | Plumbing Fixture Cnt: | 9 | | Roof Slope: | 6" IN 12" | Roof Structure/Cover: | CJ ASPHALT |
|
| | Type | Description | Class CD | Sub Class CD | Year Built | Area |
| | BAS | BASE/MAIN FLOOR | 3 | 0 | 1987 | 1025.0 |
| | OP1 | OPEN PORCH SLAB | 3 | 0 | 1987 | 180.0 |
| | ENP | ENCLOSED PORCH | 3 | 0 | 1987 | 80.0 |
| | OCP | OPEN CARPORT | 4 | 0 | 1987 | 162.0 |
| | COMA | Common Area Improvement | 4 | 0 | 1987 | 0.0 |
Sketch
Property Image
Land
| 1 | 61 | MULTIPLE RESIDENCES | 0.0839 | 3653.40 | 0.00 | 0.00 | 1.00 | $180,000 | $0 |
Roll Value History
| 2026 | N/A | N/A | N/A | N/A | N/A |
| 2025 | $174,296 | $180,000 | $0 | $354,296 | $354,296 |
| 2024 | $176,593 | $175,000 | $0 | $351,593 | $351,593 |
| 2023 | $178,889 | $175,000 | $0 | $353,889 | $353,889 |
| 2022 | $164,203 | $170,000 | $0 | $334,203 | $334,203 |
| 2021 | $144,785 | $155,000 | $0 | $299,785 | $299,785 |
| 2020 | $156,156 | $140,000 | $0 | $296,156 | $296,156 |
| 2019 | $112,187 | $120,000 | $0 | $232,187 | $232,187 |
| 2018 | $112,565 | $60,000 | $0 | $172,565 | $172,565 |
| 2017 | $113,320 | $32,832 | $0 | $146,152 | $146,152 |
| 2016 | $114,830 | $32,832 | $0 | $147,662 | $147,662 |
| 2015 | $94,587 | $32,832 | $0 | $127,419 | $127,419 |
| 2014 | $95,815 | $32,832 | $0 | $128,647 | $128,647 |
| 2013 | $97,044 | $32,832 | $0 | $129,876 | $129,876 |
| 2012 | $99,501 | $32,832 | $0 | $132,333 | $132,333 |
| 2011 | $99,501 | $32,832 | $0 | $132,333 | $132,333 |
| 2010 | $101,925 | $37,027 | $0 | $138,952 | $138,952 |
| 2009 | $106,241 | $56,179 | $0 | $162,420 | $162,420 |
| 2008 | $118,755 | $58,149 | $0 | $176,904 | $176,904 |
| 2007 | $120,187 | $58,149 | $0 | $178,336 | $178,336 |
Deed and Sales History
| 1 | 07/11/2018 | WD | Warranty Deed | LEPISTO ET AL, WALTER | BESS, CHARLENE MARIE | | | $305,000.00 | 35129 | 4448578 |
| 2 | 08/21/2006 | ESTSEPPROP | Establish Separate Property | LEPISTO ET AL, WALTER | LEPISTO ET AL, WALTER | | | $0.00 | 63883 | 4181158 |
| 3 | 08/21/2006 | WD | Warranty Deed | MULLALLY, NATALIE FRANCK | LEPISTO ET AL, WALTER | | | $160,000.00 | 63882 | 4181159 |
| 4 | 03/20/2000 | ESTSEPPROP | Establish Separate Property | MULLALLY, NATALIE FRANCK | MULLALLY, NATALIE FRANCK | | | $0.00 | 1864 | 20009005 |
| 5 | 12/02/1999 | QCD | Quit Claim Deed | DEMUTH-MULLALLY, BARBARA | MULLALLY, NATALIE FRANCK | | | $0.00 | 94926 | 99027533 |
| 6 | 09/15/1999 | WD | Warranty Deed | FLUHARTY, EVA F | DEMUTH-MULLALLY, BARBARA | | | $113,500.00 | 93947 | 99021915 |
| 7 | 07/01/1994 | WD | Warranty Deed | Unknown | FLUHARTY, EVA F | | | $100,000.00 | 42879 | 94015765 |
Payout Agreement
| No payout information available.. |