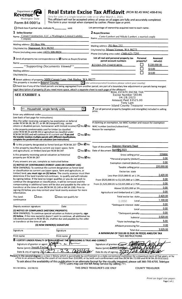
Property
Account |
| Property ID: | 729073 | Abbreviated Legal Description: | UTSALADY W10' LOT 17 & ALL LOTS 18 & 19 E10' LOT 20 BLK 12 INCL EZ & INT IN TRS B, C & D |
| Geographic ID: | S8345-00-12018-0 | Agent Code: | |
| Type: | Real | | |
| Tax Area: | 590 - APPRAISER-Stan/Cam Schl Dist, Special Dist, improved & less than 1 acre | Land Use Code | 11 |
| Open Space: | N | DFL | N |
| Historic Property: | N | Remodel Property: | N |
| Multi-Family Redevelopment: | N | | |
| Township: | | Section: | |
| Range: | |
Location |
| Address: | 11 STILLAGUAMISH AVE CAMANO ISLAND, WA 98282 | Mapsco: | |
| Neighborhood: | North Camano | Map ID: | 962 |
| Neighborhood CD: | 06-C |
Owner |
| Name: | JOHANSON, MICHAEL W | Owner ID: | 307703 |
| Mailing Address: | MARY T JOHANSON 11 STILLAGUAMISH AVE CAMANO ISLAND, WA 98282 | % Ownership: | 100.0000000000% |
| | | Exemptions: | |
Taxes and Assessment Details
Values
| (+) Improvement Homesite Value: | + | $0 | |
| (+) Improvement Non-Homesite Value: | + | $409,006 | |
| (+) Land Homesite Value: | + | $0 | |
| (+) Land Non-Homesite Value: | + | $340,000 | |
| (+) Curr Use (HS): | + | $0 | $0 |
| (+) Curr Use (NHS): | + | $0 | $0 |
| | | -------------------------- | |
| (=) Market Value: | = | $749,006 | |
| (–) Productivity Loss: | – | $0 | |
| | | -------------------------- | |
| (=) Subtotal: | = | $749,006 | |
| (+) Senior Appraised Value: | + | $0 | |
| (+) Non-Senior Appraised Value: | + | $749,006 | |
| | | -------------------------- | |
| (=) Total Appraised Value: | = | $749,006 | |
| (–) Senior Exemption Loss: | – | $0 | |
| (–) Exemption Loss: | – | $0 | |
| | | -------------------------- | |
| (=) Taxable Value: | = | $749,006 | |
Taxing Jurisdiction
| Owner: | JOHANSON, MICHAEL W | | |
| % Ownership: | 100.0000000000% | | |
| Total Value: | $749,006 | | |
| Tax Area: | 590 - APPRAISER-Stan/Cam Schl Dist, Special Dist, improved & less than 1 acre |
| CF | Conservation Futures | 0.0316035091 | $749,006 | $749,006 | $23.67 | | |
| EMS1 | Fire & Rescue Dist #1 Camano GEN (EMS) | 0.3677864386 | $749,006 | $749,006 | $275.47 | | |
| FIRE1 | Fire & Rescue Dist #1 Camano GEN | 1.2502910536 | $749,006 | $749,006 | $936.48 | | |
| FIRE1BOND | Fire & Rescue Dist #1 Camano BOND | 0.1570001679 | $749,006 | $749,006 | $117.59 | | |
| CE | County Current Expense | 0.3708482477 | $749,006 | $749,006 | $277.77 | | |
| CR | County Roads | 0.4584763726 | $749,006 | $749,006 | $343.40 | | |
| LCIB | Library Sno-Isle BOND (Camano Island) | 0.0396325772 | $749,006 | $749,006 | $29.69 | | |
| LIB | Library Sno-Isle GEN | 0.3153421757 | $749,006 | $749,006 | $236.19 | | |
| SCH205_401 | School 205-401 Enrichment | 1.2698420524 | $749,006 | $749,006 | $951.12 | | |
| SCH205BOND | School 205-401 BOND | 0.9396497583 | $749,006 | $749,006 | $703.80 | | |
| ST | State School | 1.3035497053 | $749,006 | $749,006 | $976.37 | | |
| ST2 | State School Part 2 | 0.8169543533 | $749,006 | $749,006 | $611.90 | | |
| | Total Tax Rate: | 7.3209764117 | | | | | |
| | | | | Taxes w/Current Exemptions: | $5,483.45 | | |
| | | | | Taxes w/o Exemptions: | $5,483.45 | | |
Improvement / Building
| Improvement #1: | RESIDENTIAL | State Code: | Y | 1731.0 sqft | Value: | $409,006 |
| Bathrooms: | 2 | Bedrooms: | 3 | | Ceiling: | DRYWALL PAINTED | Exterior Wall/Cover: | CEMENT FIBER | | Floor Covering: | VINYL/HARDWOOD 60-40 | Floor Structure: | WOOD W/SUBFLOOR | | Foundation: | CONCRETE | Heating: | FHA GAS | | Interior Finish: | DRYWALL PAINT | Plumbing Fixture Cnt: | 11 | | Roof Slope: | 5" IN 12" | Roof Structure/Cover: | CJ ALUMINIUM HEAVY |
|
| | Type | Description | Class CD | Sub Class CD | Year Built | Area |
| | BAS | BASE/MAIN FLOOR | 4 | 0 | 1993 | 1731.0 |
| | UB8 | BASEMENT UNFINISHED 8" | 4 | 0 | 1993 | 855.0 |
| | AGR | ATTACHED GARAGE | 4 | 0 | 1993 | 400.0 |
| | OWP | OPEN WOOD PORCH W/STEPS | 4 | 0 | 1993 | 280.0 |
| | OWC | OPEN WOOD PORCH W/STEPS/ROOF/C | 4 | 0 | 1993 | 24.0 |
| | OWC | OPEN WOOD PORCH W/STEPS/ROOF/C | 4 | 0 | 1993 | 160.0 |
| | OWP | OPEN WOOD PORCH W/STEPS | 4 | 0 | 1993 | 154.0 |
Sketch
Property Image
Land
| 1 | 13 | SQ (06001-08000) | 0.0000 | 0.00 | 0.00 | 0.00 | 1.00 | $340,000 | $0 |
Roll Value History
| 2026 | N/A | N/A | N/A | N/A | N/A |
| 2025 | $409,006 | $340,000 | $0 | $749,006 | $749,006 |
| 2024 | $413,980 | $330,000 | $0 | $743,980 | $743,980 |
| 2023 | $418,953 | $360,000 | $0 | $778,953 | $778,953 |
| 2022 | $383,875 | $260,000 | $0 | $643,875 | $643,875 |
| 2021 | $337,716 | $220,000 | $0 | $557,716 | $557,716 |
| 2020 | $328,768 | $190,000 | $0 | $518,768 | $518,768 |
| 2019 | $223,846 | $230,000 | $0 | $453,846 | $453,846 |
| 2018 | $224,496 | $200,000 | $0 | $424,496 | $424,496 |
| 2017 | $225,793 | $150,000 | $0 | $375,793 | $375,793 |
| 2016 | $221,094 | $115,000 | $0 | $336,094 | $336,094 |
| 2015 | $172,941 | $100,000 | $0 | $272,941 | $272,941 |
| 2014 | $172,941 | $100,000 | $0 | $272,941 | $272,941 |
| 2013 | $172,941 | $100,000 | $0 | $272,941 | $272,941 |
| 2012 | $172,941 | $108,000 | $0 | $280,941 | $280,941 |
| 2011 | $172,941 | $135,000 | $0 | $307,941 | $307,941 |
| 2010 | $177,268 | $135,000 | $0 | $312,268 | $312,268 |
| 2009 | $184,774 | $150,000 | $0 | $334,774 | $334,774 |
| 2008 | $186,989 | $125,000 | $0 | $311,989 | $311,989 |
| 2007 | $189,436 | $125,000 | $0 | $314,436 | $314,436 |
Deed and Sales History
| 1 | 02/22/2023 | WD | Warranty Deed | DIXON, KAMILA D | JOHANSON, MICHAEL W | | | $770,000.00 | 55915 | 4556983 |
| 2 | 07/26/2021 | QCD | Quit Claim Deed | DIXON, KAMILA | DIXON, KAMILA D | | | $0.00 | 49519 | 4526249 |
| 3 | 07/29/2019 | WD | Warranty Deed | COADY, JEFFREY L | DIXON, KAMILA | | | $530,000.00 | 39634 | 4468315 |
| 4 | 06/08/2011 | WD | Warranty Deed | FEDERAL NATIONAL MORTGAGE ASSOCIATION | COADY, JEFFREY L | | | $215,000.00 | 4675 | 4296602 |
| 5 | 01/11/2011 | TRUSTEED | Trustee's Deed | ELLIOT, RALPH P | FEDERAL NATIONAL MORTGAGE ASSOCIATION | | | $289,537.00 | 3411 | 4289117 |
| 6 | 10/15/2007 | WD | Warranty Deed | SHARP, CHARLES | ELLIOT, RALPH P | | | $350,000.00 | 73467 | 4214323 |
| 7 | 09/25/2003 | 5 | DNU - Marriage License/Name Change | SHARP, LOUISE M | SHARP, CHARLES | | | $0.00 | 34386 | 4077237 |
| 8 | 07/21/2003 | QCD | Quit Claim Deed | SHARP, LOUISE M | SHARP, LOUISE M | | | $0.00 | 33110 | 4067328 |
| 9 | 07/14/2003 | QCD | Quit Claim Deed | SHARP, LOUISE M | SHARP, LOUISE M | | | $0.00 | 33109 | 4067327 |
| 10 | 07/14/2003 | ESTSEPPROP | Establish Separate Property | SHARP, LOUISE M | SHARP, LOUISE M | | | $0.00 | 33107 | 4067326 |
| 11 | 07/11/2003 | ESTSEPPROP | Establish Separate Property | SCHNEIDER, HOWARD G | SHARP, LOUISE M | | | $0.00 | 33106 | 4067325 |
| 12 | 07/11/2003 | WD | Warranty Deed | Unknown | SHARP, LOUISE M | | | $96,946.00 | 33105 | 4067324 |
| 13 | 01/01/1900 | OTHER | Other - Misc. Documents | SHARP, LOUISE M | SCHNEIDER, HOWARD G | | | $0.00 | 48205 | 0 |
Payout Agreement
| No payout information available.. |