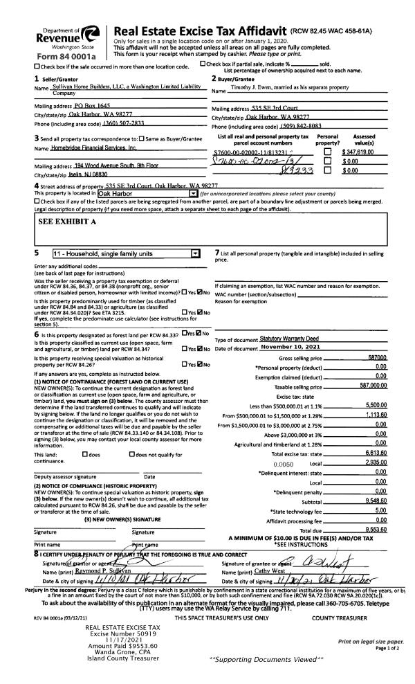
Property
Account |
| Property ID: | 729153 | Abbreviated Legal Description: | 22 - IN GL4: BG SWCR GL4 S87*E20' N1*E27.60' S87*E1336.59' N54' TPB N55.04' S87*E95' S55.04' N878W95' TPB |
| Geographic ID: | R42931-407-1350 | Agent Code: | |
| Type: | Real | | |
| Tax Area: | 720 - APPRAISER-S Whid Schl Dist, Special District, improved & less than 1 acre | Land Use Code | 11 |
| Open Space: | N | DFL | N |
| Historic Property: | N | Remodel Property: | N |
| Multi-Family Redevelopment: | N | | |
| Township: | 29 | Section: | 31 |
| Range: | R4 |
Location |
| Address: | 6887 SWANSON ST CLINTON, WA 98236 | Mapsco: | |
| Neighborhood: | Cycle 4 | Map ID: | 1004 |
| Neighborhood CD: | 4 |
Owner |
| Name: | PETTIBONE, MATT W | Owner ID: | 317005 |
| Mailing Address: | SUSAN J PETTIBONE 9532 60TH AVE W MUKILTEO, WA 98275 | % Ownership: | 100.0000000000% |
| | | Exemptions: | |
Taxes and Assessment Details
Values
| (+) Improvement Homesite Value: | + | $0 | |
| (+) Improvement Non-Homesite Value: | + | $87,054 | |
| (+) Land Homesite Value: | + | $0 | |
| (+) Land Non-Homesite Value: | + | $850,000 | |
| (+) Curr Use (HS): | + | $0 | $0 |
| (+) Curr Use (NHS): | + | $0 | $0 |
| | | -------------------------- | |
| (=) Market Value: | = | $937,054 | |
| (–) Productivity Loss: | – | $0 | |
| | | -------------------------- | |
| (=) Subtotal: | = | $937,054 | |
| (+) Senior Appraised Value: | + | $0 | |
| (+) Non-Senior Appraised Value: | + | $937,054 | |
| | | -------------------------- | |
| (=) Total Appraised Value: | = | $937,054 | |
| (–) Senior Exemption Loss: | – | $0 | |
| (–) Exemption Loss: | – | $0 | |
| | | -------------------------- | |
| (=) Taxable Value: | = | $937,054 | |
Taxing Jurisdiction
| Owner: | PETTIBONE, MATT W | | |
| % Ownership: | 100.0000000000% | | |
| Total Value: | $937,054 | | |
| Tax Area: | 720 - APPRAISER-S Whid Schl Dist, Special District, improved & less than 1 acre |
| CF | Conservation Futures | 0.0316035091 | $937,054 | $937,054 | $29.61 | | |
| FIRE3 | Fire & Rescue Dist #3 S Whidbey GEN | 1.2004855531 | $937,054 | $937,054 | $1,124.92 | | |
| HOBOND | Hospital BOND | 0.1910887512 | $937,054 | $937,054 | $179.06 | | |
| HOGEN | Hospital GEN | 0.3902502903 | $937,054 | $937,054 | $365.69 | | |
| CE | County Current Expense | 0.3708482477 | $937,054 | $937,054 | $347.50 | | |
| CR | County Roads | 0.4584763726 | $937,054 | $937,054 | $429.62 | | |
| ISLANDEMS | Hospital GEN (EMS) | 0.5000000000 | $937,054 | $937,054 | $468.53 | | |
| LIB | Library Sno-Isle GEN | 0.3153421757 | $937,054 | $937,054 | $295.49 | | |
| PORTWHID | Port of S Whidbey GEN | 0.1094540357 | $937,054 | $937,054 | $102.56 | | |
| SCH206BOND | School 206 BOND | 0.3161759235 | $937,054 | $937,054 | $296.27 | | |
| SCH206MO | School 206 Enrichment | 0.4547169547 | $937,054 | $937,054 | $426.09 | | |
| ST | State School | 1.3035497053 | $937,054 | $937,054 | $1,221.50 | | |
| ST2 | State School Part 2 | 0.8169543533 | $937,054 | $937,054 | $765.53 | | |
| SWHIDPRBD | P & R S Whidbey BOND | 0.0152817568 | $937,054 | $937,054 | $14.32 | | |
| SWHIDPRBD2 | P & R S Whidbey BOND2 | 0.0138911264 | $937,054 | $937,054 | $13.02 | | |
| SWHIDPRMT | P & R S Whidbey GEN | 0.2053334452 | $937,054 | $937,054 | $192.41 | | |
| | Total Tax Rate: | 6.6934522006 | | | | | |
| | | | | Taxes w/Current Exemptions: | $6,272.12 | | |
| | | | | Taxes w/o Exemptions: | $6,272.12 | | |
Improvement / Building
| Improvement #1: | RESIDENTIAL | State Code: | Y | 780.0 sqft | Value: | $87,054 |
| Bathrooms: | 1 | Bedrooms: | 2 | | Ceiling: | PLYWOOD PAINTED | Cooling: | HEAT PUMP/CONV/V | | Exterior Wall/Cover: | WOOD SIDING | Floor Covering: | CARPET/VINYL 80-20 | | Floor Structure: | WOOD W/SUBFLOOR | Foundation: | PEIRS | | Interior Finish: | DRYWALL PAINT | Plumbing Fixture Cnt: | 5 | | Roof Slope: | 3" IN 12" | Roof Structure/Cover: | CJ ASPHALT |
|
| | Type | Description | Class CD | Sub Class CD | Year Built | Area |
| | BAS | BASE/MAIN FLOOR | 3 | 0 | 1957 | 780.0 |
| | OWR | OPEN WOOD PORCH W/STEPS/ROOF | 3 | 0 | 1957 | 30.0 |
| | ENP | ENCLOSED PORCH | 3 | 0 | 1957 | 80.0 |
| | CPD | OPEN CARPORT DIRT FLOOR | 3 | 0 | 1957 | 224.0 |
Sketch
Property Image
Land
| 1 | LB | LOW BANK | 0.1200 | 5227.20 | 55.00 | 0.00 | 1.00 | $850,000 | $0 |
Roll Value History
| 2026 | N/A | N/A | N/A | N/A | N/A |
| 2025 | $87,054 | $850,000 | $0 | $937,054 | $937,054 |
| 2024 | $88,787 | $800,000 | $0 | $888,787 | $888,787 |
| 2023 | $90,519 | $750,000 | $0 | $840,519 | $840,519 |
| 2022 | $83,537 | $700,000 | $0 | $783,537 | $783,537 |
| 2021 | $74,003 | $600,000 | $0 | $674,003 | $674,003 |
| 2020 | $50,656 | $600,000 | $0 | $650,656 | $650,656 |
| 2019 | $36,003 | $550,000 | $0 | $586,003 | $586,003 |
| 2018 | $36,221 | $450,000 | $0 | $486,221 | $486,221 |
| 2017 | $36,657 | $400,000 | $0 | $436,657 | $436,657 |
| 2016 | $36,783 | $400,000 | $0 | $436,783 | $436,783 |
| 2015 | $37,639 | $400,000 | $0 | $437,639 | $437,639 |
| 2014 | $40,750 | $400,000 | $0 | $440,750 | $440,750 |
| 2013 | $41,656 | $400,000 | $0 | $441,656 | $441,656 |
| 2012 | $42,562 | $474,182 | $0 | $516,744 | $516,744 |
| 2011 | $43,467 | $557,861 | $0 | $601,328 | $601,328 |
| 2010 | $51,931 | $557,861 | $0 | $609,792 | $609,792 |
| 2009 | $52,470 | $697,101 | $0 | $749,571 | $299,828 |
| 2008 | $55,318 | $695,181 | $0 | $750,499 | $750,499 |
| 2007 | $56,247 | $695,181 | $0 | $751,428 | $751,428 |
Deed and Sales History
| 1 | 06/17/2025 | WD | Warranty Deed | WILSON, JEFF L | PETTIBONE, MATT W | | | $1,010,000.00 | 63858 | 4587200 |
| 2 | 02/18/2023 | WD | Warranty Deed | TIMOTHY S ANDERSEN CREDIT TAX SHELTER | WILSON, JEFF L | | | $1,250,000.00 | 55963 | 4557179 |
|   | |
| 3 | 05/13/2021 | SPWARDEED | Special Warranty Deed | ANDERSEN, TIMOTHY | TIMOTHY S ANDERSEN CREDIT TAX SHELTER | | | $0.00 | 48892 | 4522982 |
| 4 | 08/17/2016 | WD | Warranty Deed | HAFERKORN-HOUK, VIRGINIA | ANDERSEN, TIMOTHY | | | $500,000.00 | 25734 | 4405399 |
|   | |
| 5 | 12/01/1990 | QCD | Quit Claim Deed | HOUK, VIRGINIA H | HAFERKORN-HOUK, VIRGINIA | | | $0.00 | 6624 | 90023109 |
| 6 | 09/01/1990 | DECREE | Divorce Decree/Legal Separation | HOUK, VIRGINIA A | HOUK, VIRGINIA H | | | $0.00 | 5353 | 90018107 |
| 7 | 12/01/1967 | TRUSTEED | Trustee's Deed | HAFERKORN, MARGUERITE D | HOUK, VIRGINIA A | | | $0.00 | 28861 | 0 |
| 8 | 01/01/1900 | OTHER | Other - Misc. Documents | Unknown | HAFERKORN, MARGUERITE D | | | $0.00 | 0 | 0 |
Payout Agreement
| No payout information available.. |