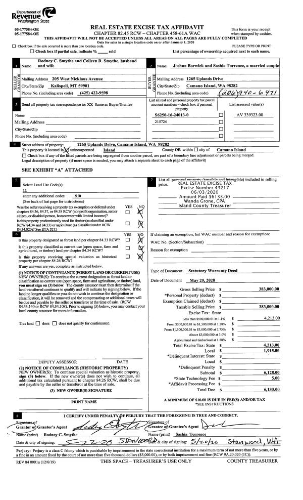
Property
Account |
| Property ID: | 729377 | Abbreviated Legal Description: | W75' OF S/2 OF N/2 OF SW SW 16-30-2 & S/2 N/2 S/2 SE EX W1716' 17-30-2 FR 084 4750, 084 5250 & 23016 083 0030 |
| Geographic ID: | R23017-085-4950 | Agent Code: | |
| Type: | Real | | |
| Tax Area: | 312 - APPRAISER-Cpvl Schl Dist, outside Cpvl, improved, greater than 1 acre | Land Use Code | 11 |
| Open Space: | N | DFL | N |
| Historic Property: | N | Remodel Property: | N |
| Multi-Family Redevelopment: | N | | |
| Township: | 30 | Section: | 17 |
| Range: | R2 |
Location |
| Address: | 3544 OLD COUNTY RD GREENBANK, WA 98253 | Mapsco: | |
| Neighborhood: | Cycle 3 | Map ID: | 385 |
| Neighborhood CD: | 3 |
Owner |
| Name: | WATROBKA, CHRISTOPHER J | Owner ID: | 296800 |
| Mailing Address: | JON MILAZZO 3544 OLD COUNTY RD GREENBANK, WA 98253 | % Ownership: | 100.0000000000% |
| | | Exemptions: | |
Taxes and Assessment Details
Values
| (+) Improvement Homesite Value: | + | $0 | |
| (+) Improvement Non-Homesite Value: | + | $477,285 | |
| (+) Land Homesite Value: | + | $0 | |
| (+) Land Non-Homesite Value: | + | $350,000 | |
| (+) Curr Use (HS): | + | $0 | $0 |
| (+) Curr Use (NHS): | + | $0 | $0 |
| | | -------------------------- | |
| (=) Market Value: | = | $827,285 | |
| (–) Productivity Loss: | – | $0 | |
| | | -------------------------- | |
| (=) Subtotal: | = | $827,285 | |
| (+) Senior Appraised Value: | + | $0 | |
| (+) Non-Senior Appraised Value: | + | $827,285 | |
| | | -------------------------- | |
| (=) Total Appraised Value: | = | $827,285 | |
| (–) Senior Exemption Loss: | – | $0 | |
| (–) Exemption Loss: | – | $0 | |
| | | -------------------------- | |
| (=) Taxable Value: | = | $827,285 | |
Taxing Jurisdiction
| Owner: | WATROBKA, CHRISTOPHER J | | |
| % Ownership: | 100.0000000000% | | |
| Total Value: | $827,285 | | |
| Tax Area: | 312 - APPRAISER-Cpvl Schl Dist, outside Cpvl, improved, greater than 1 acre |
| CF | Conservation Futures | 0.0316035091 | $827,285 | $827,285 | $26.15 | | |
| CEM2 | Cemetery #2 | 0.0095056933 | $827,285 | $827,285 | $7.86 | | |
| FIRE5 | Fire & Rescue Dist #5 C Whidbey GEN | 1.2008080668 | $827,285 | $827,285 | $993.41 | | |
| FIRE5BOND | Fire & Rescue Dist #5 C Whidbey BOND | 0.1400090713 | $827,285 | $827,285 | $115.83 | | |
| HOBOND | Hospital BOND | 0.1910887512 | $827,285 | $827,285 | $158.08 | | |
| HOGEN | Hospital GEN | 0.3902502903 | $827,285 | $827,285 | $322.85 | | |
| CE | County Current Expense | 0.3708482477 | $827,285 | $827,285 | $306.80 | | |
| CR | County Roads | 0.4584763726 | $827,285 | $827,285 | $379.29 | | |
| ISLANDEMS | Hospital GEN (EMS) | 0.5000000000 | $827,285 | $827,285 | $413.64 | | |
| LIB | Library Sno-Isle GEN | 0.3153421757 | $827,285 | $827,285 | $260.88 | | |
| LIBCAP | Library Sno-Isle BOND (Cap Fac Imp Area) | 0.0543427938 | $827,285 | $827,285 | $44.96 | | |
| POCOUP | Port of Coupeville GEN | 0.1093371703 | $827,285 | $827,285 | $90.45 | | |
| POCOUPIDD | Port of Coupeville IDD | 0.3409740022 | $827,285 | $827,285 | $282.08 | | |
| COUPSDTECH | School 204 CP (TECH) | 0.7545480007 | $827,285 | $827,285 | $624.23 | | |
| SCH204MO | School 204 Enrichment | 0.6716186034 | $827,285 | $827,285 | $555.62 | | |
| ST | State School | 1.3035497053 | $827,285 | $827,285 | $1,078.41 | | |
| ST2 | State School Part 2 | 0.8169543533 | $827,285 | $827,285 | $675.85 | | |
| | Total Tax Rate: | 7.6592568070 | | | | | |
| | | | | Taxes w/Current Exemptions: | $6,336.39 | | |
| | | | | Taxes w/o Exemptions: | $6,336.39 | | |
Improvement / Building
| Improvement #1: | RESIDENTIAL | State Code: | Y | 2508.3 sqft | Value: | $477,285 |
| Bathrooms: | 3 | Bedrooms: | 3 | | Ceiling: | BEAM PAINTED | Cooling: | HEAT PUMP/CONV/V | | Exterior Wall/Cover: | WOOD SIDING | Floor Covering: | CARPET/VINYL 60-40 | | Floor Structure: | WOOD W/SUBFLOOR | Foundation: | CONCRETE | | Heating: | RADIANT FLOOR | Interior Finish: | DRYWALL PAINT | | Plumbing Fixture Cnt: | 15 | Roof Slope: | 3" IN 12" | | Roof Structure/Cover: | CJ ASPHALT |   |   |
|
| | Type | Description | Class CD | Sub Class CD | Year Built | Area |
| | BAS | BASE/MAIN FLOOR | 4 | 0 | 1979 | 1038.3 |
| | LOF | LOFT | 4 | 0 | 1979 | 400.0 |
| | OWP | OPEN WOOD PORCH W/STEPS | 4 | 0 | 1979 | 68.0 |
| | LOF | LOFT | 4 | 0 | 1979 | 406.0 |
| | DWN | DOWNSTAIRS LIVING AREA | 4 | 0 | 1979 | 664.0 |
| | OWP | OPEN WOOD PORCH W/STEPS | 4 | 0 | 1979 | 529.0 |
| | UTY | STORAGE/UTILITY | 4 | 0 | 1979 | 864.0 |
| | OCP | OPEN CARPORT | 4 | 0 | 1979 | 288.0 |
| | UTY | STORAGE/UTILITY | 4 | 0 | 1979 | 165.6 |
| | UTY | STORAGE/UTILITY | 4 | 0 | 1979 | 288.0 |
| | DGR | DETACHED GARAGE | 4 | 0 | 1979 | 400.0 |
| | CPD | OPEN CARPORT DIRT FLOOR | 4 | 0 | 1979 | 272.0 |
Sketch
Property Image
Land
| 1 | 32 | AC (03.01-09.99) | 7.2500 | 315810.00 | 0.00 | 0.00 | 1.00 | $350,000 | $0 |
Roll Value History
| 2026 | N/A | N/A | N/A | N/A | N/A |
| 2025 | $477,285 | $350,000 | $0 | $827,285 | $827,285 |
| 2024 | $475,764 | $340,000 | $0 | $815,764 | $815,764 |
| 2023 | $481,411 | $320,000 | $0 | $801,411 | $801,411 |
| 2022 | $441,047 | $260,000 | $0 | $701,047 | $701,047 |
| 2021 | $387,961 | $230,000 | $0 | $617,961 | $617,961 |
| 2020 | $377,719 | $180,000 | $0 | $557,719 | $557,719 |
| 2019 | $252,466 | $230,000 | $0 | $482,466 | $482,466 |
| 2018 | $253,096 | $220,000 | $0 | $473,096 | $473,096 |
| 2017 | $160,916 | $160,000 | $0 | $320,916 | $320,916 |
| 2016 | $162,898 | $165,000 | $0 | $327,898 | $327,898 |
| 2015 | $164,880 | $130,000 | $0 | $294,880 | $294,880 |
| 2014 | $166,862 | $125,000 | $0 | $291,862 | $291,862 |
| 2013 | $164,594 | $109,800 | $0 | $274,394 | $274,394 |
| 2012 | $166,564 | $109,800 | $0 | $276,364 | $276,364 |
| 2011 | $168,535 | $122,000 | $0 | $290,535 | $290,535 |
| 2010 | $180,683 | $122,000 | $0 | $302,683 | $302,683 |
| 2009 | $188,100 | $203,000 | $0 | $391,100 | $391,100 |
| 2008 | $191,118 | $217,688 | $0 | $408,806 | $408,806 |
| 2007 | $185,415 | $188,500 | $0 | $373,915 | $373,915 |
Deed and Sales History
| 1 | 11/06/2020 | QCD | Quit Claim Deed | WATROBKA, CHRISTOPHER J | WATROBKA, CHRISTOPHER J | | | $0.00 | 45852 | 4503272 |
| 2 | 09/21/2017 | WD | Warranty Deed | KAHLER, ALICE W | WATROBKA, CHRISTOPHER J | | | $493,000.00 | 31190 | 4430670 |
| 3 | 01/01/1900 | OTHER | Other - Misc. Documents | Unknown | KAHLER, ALICE W | | | $0.00 | 60376 | 0 |
Payout Agreement
| No payout information available.. |