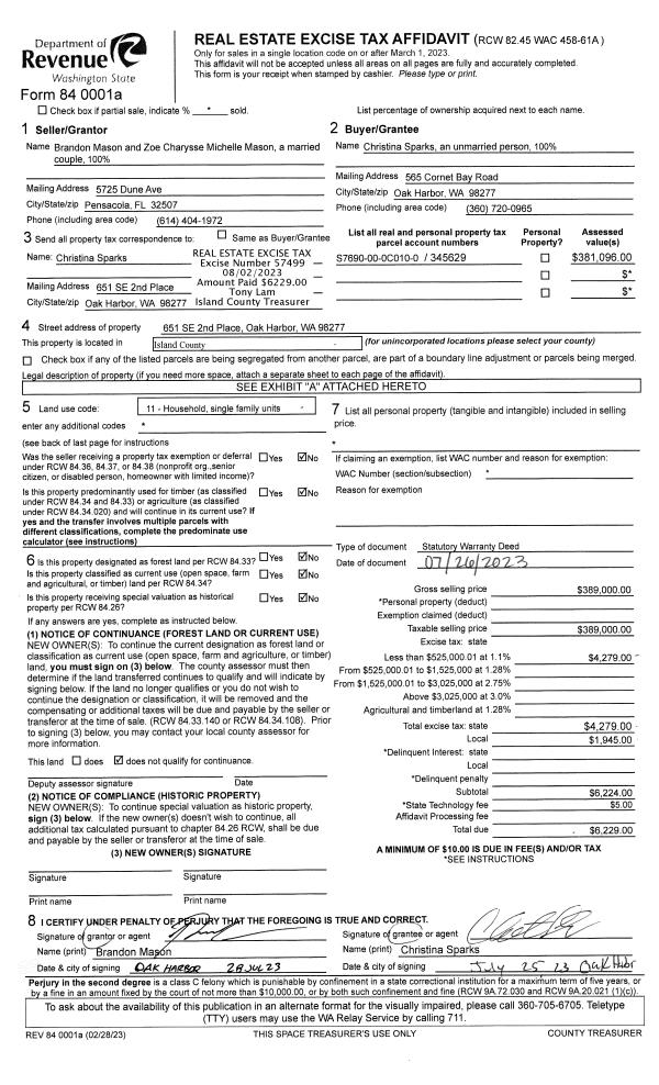
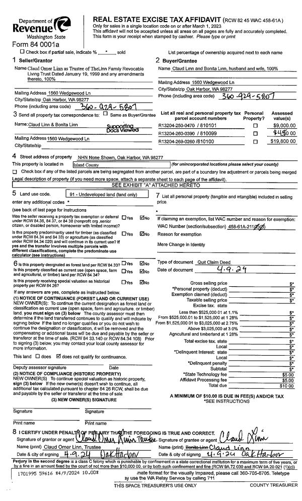
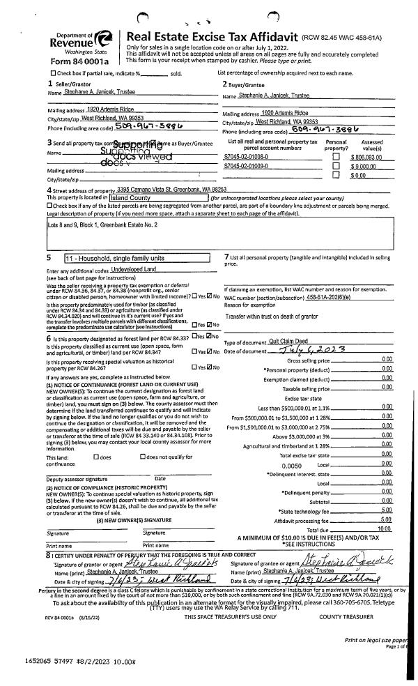
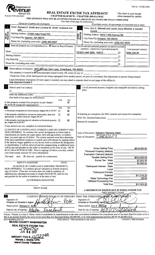
Property
Account |
| Property ID: | 729420 | Abbreviated Legal Description: | BROADVIEW 1 LOT 12 |
| Geographic ID: | S6185-00-00012-0 | Agent Code: | |
| Type: | Real | | |
| Tax Area: | 100 - APPRAISER-OH Schl Dist, in OH | Land Use Code | 11 |
| Open Space: | N | DFL | N |
| Historic Property: | N | Remodel Property: | N |
| Multi-Family Redevelopment: | N | | |
| Township: | | Section: | |
| Range: | |
Location |
| Address: | 145 SW 8TH AVE OAK HARBOR, WA 98277 | Mapsco: | |
| Neighborhood: | Cycle 1 | Map ID: | 93 |
| Neighborhood CD: | 1 |
Owner |
| Name: | CARAWAY, MARTHA | Owner ID: | 307424 |
| Mailing Address: | GARY L THAYER 145 SW 8TH AVE OAK HARBOR, WA 98277 | % Ownership: | 100.0000000000% |
| | | Exemptions: | |
Taxes and Assessment Details
Values
| (+) Improvement Homesite Value: | + | $0 | |
| (+) Improvement Non-Homesite Value: | + | $205,630 | |
| (+) Land Homesite Value: | + | $0 | |
| (+) Land Non-Homesite Value: | + | $200,000 | |
| (+) Curr Use (HS): | + | $0 | $0 |
| (+) Curr Use (NHS): | + | $0 | $0 |
| | | -------------------------- | |
| (=) Market Value: | = | $405,630 | |
| (–) Productivity Loss: | – | $0 | |
| | | -------------------------- | |
| (=) Subtotal: | = | $405,630 | |
| (+) Senior Appraised Value: | + | $0 | |
| (+) Non-Senior Appraised Value: | + | $405,630 | |
| | | -------------------------- | |
| (=) Total Appraised Value: | = | $405,630 | |
| (–) Senior Exemption Loss: | – | $0 | |
| (–) Exemption Loss: | – | $0 | |
| | | -------------------------- | |
| (=) Taxable Value: | = | $405,630 | |
Taxing Jurisdiction
| Owner: | CARAWAY, MARTHA | | |
| % Ownership: | 100.0000000000% | | |
| Total Value: | $405,630 | | |
| Tax Area: | 100 - APPRAISER-OH Schl Dist, in OH |
| CF | Conservation Futures | 0.0316035091 | $405,630 | $405,630 | $12.82 | | |
| CEM1 | Cemetery #1 | 0.0040320932 | $405,630 | $405,630 | $1.64 | | |
| COH | City of Oak Harbor | 2.3001546061 | $405,630 | $405,630 | $933.01 | | |
| OAKBOND | City of Oak Harbor BOND | 0.1926904192 | $405,630 | $405,630 | $78.16 | | |
| HOBOND | Hospital BOND | 0.1910887512 | $405,630 | $405,630 | $77.51 | | |
| HOGEN | Hospital GEN | 0.3902502903 | $405,630 | $405,630 | $158.30 | | |
| CE | County Current Expense | 0.3708482477 | $405,630 | $405,630 | $150.43 | | |
| ISLANDEMS | Hospital GEN (EMS) | 0.5000000000 | $405,630 | $405,630 | $202.82 | | |
| LIB | Library Sno-Isle GEN | 0.3153421757 | $405,630 | $405,630 | $127.91 | | |
| NWHIDPRMT | P & R N Whidbey GEN | 0.2004466701 | $405,630 | $405,630 | $81.31 | | |
| SCH201MO | School 201 Enrichment | 1.8559231640 | $405,630 | $405,630 | $752.82 | | |
| ST | State School | 1.3035497053 | $405,630 | $405,630 | $528.76 | | |
| ST2 | State School Part 2 | 0.8169543533 | $405,630 | $405,630 | $331.38 | | |
| | Total Tax Rate: | 8.4728839852 | | | | | |
| | | | | Taxes w/Current Exemptions: | $3,436.87 | | |
| | | | | Taxes w/o Exemptions: | $3,436.87 | | |
Improvement / Building
| Improvement #1: | RESIDENTIAL | State Code: | Y | 1112.8 sqft | Value: | $205,630 |
| Bathrooms: | 1 | Bedrooms: | 3 | | Ceiling: | DRYWALL PAINTED | Exterior Wall/Cover: | WOOD SIDING | | Floor Covering: | VINYL/HARDWOOD 20-80 | Floor Structure: | WOOD W/SUBFLOOR | | Foundation: | CONCRETE | Heating: | FHA GAS | | Interior Finish: | DRYWALL PAINT | Plumbing Fixture Cnt: | 6 | | Roof Slope: | 4" IN 12" | Roof Structure/Cover: | CJ ASPHALT |
|
| | Type | Description | Class CD | Sub Class CD | Year Built | Area |
| | BAS | BASE/MAIN FLOOR | 3 | 0 | 1958 | 1112.8 |
| | OCP | OPEN CARPORT | 3 | 0 | 1958 | 294.0 |
| | UTY | STORAGE/UTILITY | 3 | 0 | 1958 | 224.0 |
Sketch
Property Image
Land
| 1 | 14 | SQ (08001-12000) | 0.2204 | 9600.62 | 0.00 | 0.00 | 1.00 | $200,000 | $0 |
Roll Value History
| 2026 | N/A | N/A | N/A | N/A | N/A |
| 2025 | $205,630 | $200,000 | $0 | $405,630 | $405,630 |
| 2024 | $208,099 | $180,000 | $0 | $388,099 | $388,099 |
| 2023 | $210,568 | $190,000 | $0 | $400,568 | $400,568 |
| 2022 | $192,901 | $180,000 | $0 | $372,901 | $372,901 |
| 2021 | $169,691 | $120,000 | $0 | $289,691 | $289,691 |
| 2020 | $143,727 | $100,000 | $0 | $243,727 | $243,727 |
| 2019 | $103,022 | $150,000 | $0 | $253,022 | $253,022 |
| 2018 | $103,339 | $130,000 | $0 | $233,339 | $233,339 |
| 2017 | $110,915 | $110,000 | $0 | $220,915 | $220,915 |
| 2016 | $112,268 | $90,000 | $0 | $202,268 | $202,268 |
| 2015 | $113,620 | $70,000 | $0 | $183,620 | $183,620 |
| 2014 | $114,973 | $55,000 | $0 | $169,973 | $169,973 |
| 2013 | $116,325 | $55,000 | $0 | $171,325 | $171,325 |
| 2012 | $117,677 | $60,000 | $0 | $177,677 | $177,677 |
| 2011 | $129,834 | $50,000 | $0 | $179,834 | $179,834 |
| 2010 | $135,219 | $50,000 | $0 | $185,219 | $185,219 |
| 2009 | $141,074 | $60,000 | $0 | $201,074 | $201,074 |
| 2008 | $142,742 | $72,000 | $0 | $214,742 | $214,742 |
| 2007 | $144,657 | $72,000 | $0 | $216,657 | $216,657 |
Deed and Sales History
| 1 | 01/26/2023 | QCD | Quit Claim Deed | THAYER, CATHY | THAYER, GARY | | | $0.00 | 55745 | 4556264 |
| 2 | 01/26/2023 | QCD | Quit Claim Deed | CARAWAY, MARTHA | CARAWAY, MARTHA | | | $0.00 | 55744 | 4556263 |
| 3 | 01/30/2023 | QCD | Quit Claim Deed | CARAWAY, DARIN E | CARAWAY, MARTHA | | | $0.00 | 55743 | 4556262 |
| 4 | 07/21/2020 | WD | Warranty Deed | DODGE, BARRY PATRICK | CARAWAY, DARIN E | | | $309,500.00 | 44148 | 4493309 |
| 5 | 07/17/2017 | QCD | Quit Claim Deed | DODGE, BARRY PATRICK | DODGE, BARRY PATRICK | | | $0.00 | 30220 | 4426421 |
| 6 | 07/13/2017 | WD | Warranty Deed | ESVELT, PETER M | DODGE, BARRY PATRICK | | | $245,000.00 | 30219 | 4426420 |
| 7 | 07/21/2006 | WD | Warranty Deed | NEALY, SEAN A | ESVELT, PETER M | | | $225,000.00 | 63207 | 4177140 |
| 8 | 02/26/2002 | WD | Warranty Deed | WOOD, JOHN P | NEALY, SEAN A | | | $119,000.00 | 20752 | 4012635 |
| 9 | 02/03/2000 | WD | Warranty Deed | Unknown | WOOD, JOHN P | | | $103,000.00 | 80501 | 98002646 |
| 10 | 10/01/1995 | QCD | Quit Claim Deed | KEITH, ELIZABETH A | KEITH, ELIZABETH A | | | $0.00 | 53543 | 95016224 |
| 11 | 05/01/1987 | WD | Warranty Deed | ST, CLAIR, B | KEITH, ELIZABETH A | | | $58,000.00 | 71287 | 87006332 |
| 12 | 08/01/1982 | OTHER | Other - Misc. Documents | DOOLITTLE, ALFRED | ST, CLAIR, B | | | $0.00 | 59617 | 9834 |
| 13 | 01/01/1900 | OTHER | Other - Misc. Documents | Unknown | DOOLITTLE, ALFRED | | | $0.00 | 0 | 0 |
Payout Agreement
| No payout information available.. |