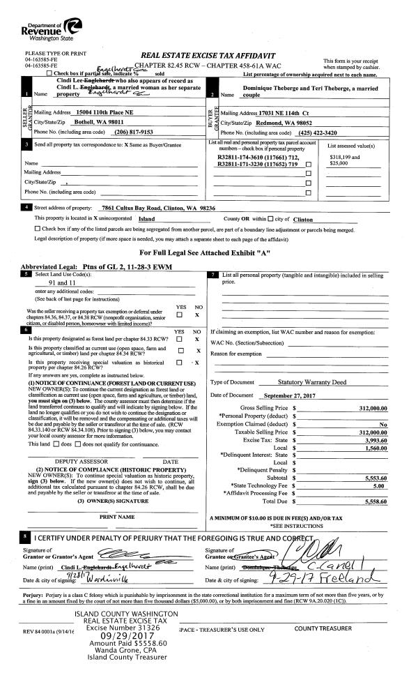
Property
Account |
| Property ID: | 729894 | Abbreviated Legal Description: | SEA VIEW 2 LOT 20 |
| Geographic ID: | S8135-02-00020-0 | Agent Code: | |
| Type: | Real | | |
| Tax Area: | 110 - APPRAISER-OH Schl Dist, outside OH, improved & 1 acre or less | Land Use Code | 11 |
| Open Space: | N | DFL | N |
| Historic Property: | N | Remodel Property: | N |
| Multi-Family Redevelopment: | N | | |
| Township: | | Section: | |
| Range: | |
Location |
| Address: | 1975 ISLAND VIEW RD OAK HARBOR, WA 98277 | Mapsco: | |
| Neighborhood: | Cycle 1 | Map ID: | 106 |
| Neighborhood CD: | 1 |
Owner |
| Name: | HOUSTON, BRENT D | Owner ID: | 282835 |
| Mailing Address: | LYDIA R HOUSTON 1975 ISLAND VIEW DR OAK HARBOR, WA 98277 | % Ownership: | 100.0000000000% |
| | | Exemptions: | |
Taxes and Assessment Details
Values
| (+) Improvement Homesite Value: | + | $0 | |
| (+) Improvement Non-Homesite Value: | + | $302,264 | |
| (+) Land Homesite Value: | + | $0 | |
| (+) Land Non-Homesite Value: | + | $250,000 | |
| (+) Curr Use (HS): | + | $0 | $0 |
| (+) Curr Use (NHS): | + | $0 | $0 |
| | | -------------------------- | |
| (=) Market Value: | = | $552,264 | |
| (–) Productivity Loss: | – | $0 | |
| | | -------------------------- | |
| (=) Subtotal: | = | $552,264 | |
| (+) Senior Appraised Value: | + | $0 | |
| (+) Non-Senior Appraised Value: | + | $552,264 | |
| | | -------------------------- | |
| (=) Total Appraised Value: | = | $552,264 | |
| (–) Senior Exemption Loss: | – | $0 | |
| (–) Exemption Loss: | – | $0 | |
| | | -------------------------- | |
| (=) Taxable Value: | = | $552,264 | |
Taxing Jurisdiction
| Owner: | HOUSTON, BRENT D | | |
| % Ownership: | 100.0000000000% | | |
| Total Value: | $552,264 | | |
| Tax Area: | 110 - APPRAISER-OH Schl Dist, outside OH, improved & 1 acre or less |
| CF | Conservation Futures | 0.0316035091 | $552,264 | $552,264 | $17.45 | | |
| CEM1 | Cemetery #1 | 0.0040320932 | $552,264 | $552,264 | $2.23 | | |
| FIRE2 | Fire & Rescue Dist #2 N Whidbey GEN | 0.5475949600 | $552,264 | $552,264 | $302.42 | | |
| HOBOND | Hospital BOND | 0.1910887512 | $552,264 | $552,264 | $105.53 | | |
| HOGEN | Hospital GEN | 0.3902502903 | $552,264 | $552,264 | $215.52 | | |
| CE | County Current Expense | 0.3708482477 | $552,264 | $552,264 | $204.81 | | |
| CR | County Roads | 0.4584763726 | $552,264 | $552,264 | $253.20 | | |
| ISLANDEMS | Hospital GEN (EMS) | 0.5000000000 | $552,264 | $552,264 | $276.13 | | |
| LIB | Library Sno-Isle GEN | 0.3153421757 | $552,264 | $552,264 | $174.15 | | |
| NWHIDPRMT | P & R N Whidbey GEN | 0.2004466701 | $552,264 | $552,264 | $110.70 | | |
| SCH201MO | School 201 Enrichment | 1.8559231640 | $552,264 | $552,264 | $1,024.96 | | |
| ST | State School | 1.3035497053 | $552,264 | $552,264 | $719.90 | | |
| ST2 | State School Part 2 | 0.8169543533 | $552,264 | $552,264 | $451.17 | | |
| | Total Tax Rate: | 6.9861102925 | | | | | |
| | | | | Taxes w/Current Exemptions: | $3,858.17 | | |
| | | | | Taxes w/o Exemptions: | $3,858.17 | | |
Improvement / Building
| Improvement #1: | RESIDENTIAL | State Code: | Y | 2400.0 sqft | Value: | $302,264 |
| Bathrooms: | 2.5 | Bedrooms: | 4 | | Ceiling: | DRY WALL SPRAYED | Exterior Wall/Cover: | PLY/HARDBOARD T-111 | | Floor Covering: | CARPET/VINYL 80-20 | Floor Structure: | WOOD W/SUBFLOOR | | Foundation: | CONCRETE | Heating: | BASEBOARD ELECTRIC | | Interior Finish: | DRYWALL PAINT | Plumbing Fixture Cnt: | 12 | | Roof Slope: | 5" IN 12" | Roof Structure/Cover: | CJ ASPHALT |
|
| | Type | Description | Class CD | Sub Class CD | Year Built | Area |
| | BAS | BASE/MAIN FLOOR | 3 | 0 | 1973 | 1388.0 |
| | OP2 | OPEN PORCH W/STEPS | 3 | 0 | 1973 | 59.5 |
| | AGR | ATTACHED GARAGE | 3 | 0 | 1973 | 288.0 |
| | BIG | BUILT IN GARAGE | 3 | 0 | 1973 | 288.0 |
| | OWP | OPEN WOOD PORCH W/STEPS | 3 | 0 | 1973 | 69.0 |
| | OWP | OPEN WOOD PORCH W/STEPS | 3 | 0 | 1973 | 90.0 |
| | DWN | DOWNSTAIRS LIVING AREA | 3 | 0 | 1973 | 1012.0 |
Sketch
Property Image
Land
| 1 | 15 | SQ (12001-21780) | 0.0000 | 0.00 | 0.00 | 0.00 | 1.00 | $250,000 | $0 |
Roll Value History
| 2026 | N/A | N/A | N/A | N/A | N/A |
| 2025 | $302,264 | $250,000 | $0 | $552,264 | $552,264 |
| 2024 | $312,866 | $220,000 | $0 | $532,866 | $532,866 |
| 2023 | $308,966 | $220,000 | $0 | $528,966 | $528,966 |
| 2022 | $283,288 | $220,000 | $0 | $503,288 | $503,288 |
| 2021 | $249,408 | $160,000 | $0 | $409,408 | $409,408 |
| 2020 | $243,335 | $110,000 | $0 | $353,335 | $353,335 |
| 2019 | $187,654 | $150,000 | $0 | $337,654 | $337,654 |
| 2018 | $188,217 | $140,000 | $0 | $328,217 | $328,217 |
| 2017 | $137,928 | $120,000 | $0 | $257,928 | $257,928 |
| 2016 | $140,152 | $110,000 | $0 | $250,152 | $100,061 |
| 2015 | $142,376 | $75,000 | $0 | $217,376 | $86,950 |
| 2014 | $144,603 | $68,000 | $0 | $212,603 | $85,041 |
| 2013 | $146,824 | $68,000 | $0 | $214,824 | $85,930 |
| 2012 | $149,050 | $68,000 | $0 | $217,050 | $86,820 |
| 2011 | $151,541 | $80,000 | $0 | $231,541 | $92,616 |
| 2010 | $165,587 | $80,000 | $0 | $245,587 | $98,235 |
| 2009 | $172,785 | $100,000 | $0 | $272,785 | $202,785 |
| 2008 | $175,735 | $112,355 | $0 | $288,090 | $218,090 |
| 2007 | $177,391 | $95,500 | $0 | $272,891 | $272,891 |
Deed and Sales History
| 1 | 11/06/2017 | WD | Warranty Deed | MCKINLEY, GLORIA J | HOUSTON, BRENT D | | | $360,000.00 | 31928 | 4434238 |
| 2 | 05/02/2017 | QCD | Quit Claim Deed | MCKINLEY, STEVE E. | MCKINLEY, GLORIA J | | | $0.00 | 29114 | 4421734 |
| 3 | 02/23/2015 | QCD | Quit Claim Deed | MCKINLEY, GLORIA J | MCKINLEY LE, GLORIA J. | | | $0.00 | 18679 | 4374373 |
| 4 | 02/23/2015 | QCD | Quit Claim Deed | MCKINLEY, GLORIA J | MCKINLEY, STEVE E. | | | $0.00 | 18562 | 4373726 |
| 5 | 02/01/1997 | OTHER | Other - Misc. Documents | MCKINLEY, CHARLES E | MCKINLEY, GLORIA J | | | $0.00 | 67232 | 94007702 |
| 6 | 01/01/1900 | OTHER | Other - Misc. Documents | Unknown | MCKINLEY, CHARLES E | | | $0.00 | 0 | 0 |
Payout Agreement
| No payout information available.. |