Property
Account |
| Property ID: | 730392 | Abbreviated Legal Description: | 87-E/2 NE NE SE EX E30' TGW EZ (TR D SURVEY AF#288076) |
| Geographic ID: | R32905-226-5360 | Agent Code: | |
| Type: | Real | | |
| Tax Area: | 712 - APPRAISER-S Whid Schl Dist, outside Langley, improved, greater than 1 acre | Land Use Code | 11 |
| Open Space: | N | DFL | N |
| Historic Property: | N | Remodel Property: | N |
| Multi-Family Redevelopment: | N | | |
| Township: | 29 | Section: | 05 |
| Range: | R3 |
Location |
| Address: | 5014 CRAWFORD RD LANGLEY, WA 98260 | Mapsco: | |
| Neighborhood: | Cycle 4 | Map ID: | 733 |
| Neighborhood CD: | 4 |
Owner |
| Name: | BRYAN, MARY ANNE | Owner ID: | 281415 |
| Mailing Address: | ROGER L BRYAN 220 2ND ST #4 LANGLEY, WA 98260 | % Ownership: | 100.0000000000% |
| | | Exemptions: | |
Taxes and Assessment Details
Values
| (+) Improvement Homesite Value: | + | $0 | |
| (+) Improvement Non-Homesite Value: | + | $159,619 | |
| (+) Land Homesite Value: | + | $0 | |
| (+) Land Non-Homesite Value: | + | $380,000 | |
| (+) Curr Use (HS): | + | $0 | $0 |
| (+) Curr Use (NHS): | + | $0 | $0 |
| | | -------------------------- | |
| (=) Market Value: | = | $539,619 | |
| (–) Productivity Loss: | – | $0 | |
| | | -------------------------- | |
| (=) Subtotal: | = | $539,619 | |
| (+) Senior Appraised Value: | + | $0 | |
| (+) Non-Senior Appraised Value: | + | $539,619 | |
| | | -------------------------- | |
| (=) Total Appraised Value: | = | $539,619 | |
| (–) Senior Exemption Loss: | – | $0 | |
| (–) Exemption Loss: | – | $0 | |
| | | -------------------------- | |
| (=) Taxable Value: | = | $539,619 | |
Taxing Jurisdiction
| Owner: | BRYAN, MARY ANNE | | |
| % Ownership: | 100.0000000000% | | |
| Total Value: | $539,619 | | |
| Tax Area: | 712 - APPRAISER-S Whid Schl Dist, outside Langley, improved, greater than 1 acre |
| CF | Conservation Futures | 0.0316035091 | $539,619 | $539,619 | $17.05 | | |
| FIRE3 | Fire & Rescue Dist #3 S Whidbey GEN | 1.2004855531 | $539,619 | $539,619 | $647.80 | | |
| HOBOND | Hospital BOND | 0.1910887512 | $539,619 | $539,619 | $103.12 | | |
| HOGEN | Hospital GEN | 0.3902502903 | $539,619 | $539,619 | $210.59 | | |
| CE | County Current Expense | 0.3708482477 | $539,619 | $539,619 | $200.12 | | |
| CR | County Roads | 0.4584763726 | $539,619 | $539,619 | $247.40 | | |
| ISLANDEMS | Hospital GEN (EMS) | 0.5000000000 | $539,619 | $539,619 | $269.81 | | |
| LIB | Library Sno-Isle GEN | 0.3153421757 | $539,619 | $539,619 | $170.16 | | |
| PORTWHID | Port of S Whidbey GEN | 0.1094540357 | $539,619 | $539,619 | $59.06 | | |
| SCH206BOND | School 206 BOND | 0.3161759235 | $539,619 | $539,619 | $170.61 | | |
| SCH206MO | School 206 Enrichment | 0.4547169547 | $539,619 | $539,619 | $245.37 | | |
| ST | State School | 1.3035497053 | $539,619 | $539,619 | $703.42 | | |
| ST2 | State School Part 2 | 0.8169543533 | $539,619 | $539,619 | $440.84 | | |
| SWHIDPRBD | P & R S Whidbey BOND | 0.0152817568 | $539,619 | $539,619 | $8.25 | | |
| SWHIDPRBD2 | P & R S Whidbey BOND2 | 0.0138911264 | $539,619 | $539,619 | $7.50 | | |
| SWHIDPRMT | P & R S Whidbey GEN | 0.2053334452 | $539,619 | $539,619 | $110.80 | | |
| | Total Tax Rate: | 6.6934522006 | | | | | |
| | | | | Taxes w/Current Exemptions: | $3,611.90 | | |
| | | | | Taxes w/o Exemptions: | $3,611.90 | | |
Improvement / Building
| Improvement #1: | MANUFACTURED HOME | State Code: | Y | 1404.0 sqft | Value: | $69,043 |
| Bathrooms: | 0 | Bedrooms: | 0 | | Ceiling: | PLASTER PAINTED | Cooling: | EVAP NO DUCT | | Exterior Wall/Cover: | VINYL | Floor Covering: | CARPET 100% | | Floor Structure: | SLAB ON GRADE | Foundation: | SLAB | | Heating: | FHA ELECTRIC | Interior Finish: | PLASTER | | Plumbing Fixture Cnt: | 1 | Roof Slope: | FLAT | | Roof Structure/Cover: | CJ ALUMINIUM HEAVY |   |   |
|
| Improvement #2: | RESIDENTIAL | State Code: | Y | 544.0 sqft | Value: | $90,576 |
| Bathrooms: | 1 | Bedrooms: | 1 | | Ceiling: | PLYWOOD PAINTED | Exterior Wall/Cover: | PLY/HARDBOARD T-111 | | Floor Covering: | SOFTWOOD 100% | Floor Structure: | WOOD W/SUBFLOOR | | Foundation: | CONCRETE | Interior Finish: | DRYWALL PAINT | | Plumbing Fixture Cnt: | 5 | Roof Slope: | 6" IN 12" | | Roof Structure/Cover: | CJ ALUMINIUM HEAVY |   |   |
|
| | Type | Description | Class CD | Sub Class CD | Year Built | Area |
| | BAS | BASE/MAIN FLOOR | 2 | 0 | 1950 | 544.0 |
| | OWR | OPEN WOOD PORCH W/STEPS/ROOF | 2 | 0 | 1950 | 24.0 |
Sketch
Property Image
Land
| 1 | 32 | AC (03.01-09.99) | 4.5500 | 0.00 | 0.00 | 0.00 | 1.00 | $380,000 | $0 |
Roll Value History
| 2026 | N/A | N/A | N/A | N/A | N/A |
| 2025 | $159,619 | $380,000 | $0 | $539,619 | $539,619 |
| 2024 | $163,125 | $350,000 | $0 | $513,125 | $513,125 |
| 2023 | $166,630 | $330,000 | $0 | $496,630 | $496,630 |
| 2022 | $154,065 | $290,000 | $0 | $444,065 | $444,065 |
| 2021 | $136,731 | $230,000 | $0 | $366,731 | $366,731 |
| 2020 | $94,367 | $190,000 | $0 | $284,367 | $284,367 |
| 2019 | $73,143 | $250,000 | $0 | $323,143 | $323,143 |
| 2018 | $74,690 | $210,000 | $0 | $284,690 | $284,690 |
| 2017 | $80,201 | $190,000 | $0 | $270,201 | $270,201 |
| 2016 | $82,267 | $135,000 | $0 | $217,267 | $86,907 |
| 2015 | $85,024 | $135,000 | $0 | $220,024 | $88,010 |
| 2014 | $86,276 | $122,850 | $0 | $209,126 | $83,650 |
| 2013 | $88,363 | $122,850 | $0 | $211,213 | $84,485 |
| 2012 | $90,451 | $122,850 | $0 | $213,301 | $85,320 |
| 2011 | $92,538 | $122,850 | $0 | $215,388 | $86,155 |
| 2010 | $93,736 | $122,850 | $0 | $216,586 | $86,634 |
| 2009 | $98,838 | $200,200 | $0 | $299,038 | $118,810 |
| 2008 | $100,145 | $194,400 | $0 | $294,545 | $224,545 |
| 2007 | $71,286 | $225,737 | $0 | $297,023 | $117,818 |
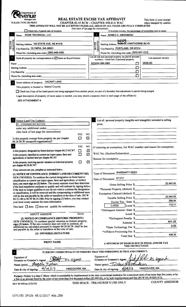
Deed and Sales History
| 1 | 08/15/2017 | WD | Warranty Deed | STEELE, CAROL Z | BRYAN, MARY ANNE | | | $200,000.00 | 30673 | 4428330 |
| 2 | 09/15/2008 | QCD | Quit Claim Deed | JACOBSON TRUSTEE, HARVEY H | STEELE, CAROL Z | | | $0.00 | 82541 | 4237475 |
| 3 | 03/25/2004 | QCD | Quit Claim Deed | JACOBSON, HARVEY H | JACOBSON TRUSTEE, HARVEY H | | | $0.00 | 41266 | 4095846 |
| 4 | 04/01/1991 | OTHER | Other - Misc. Documents | Unknown | JACOBSON, HARVEY H | | | $0.00 | 11396 | 0 |
| 5 | 01/01/1979 | OTHER | Other - Misc. Documents | JACOBSON, HARVEY H | JACOBSON, HARVEY H | | | $12,500.00 | 90290 | 346236 |
Payout Agreement
| No payout information available.. |