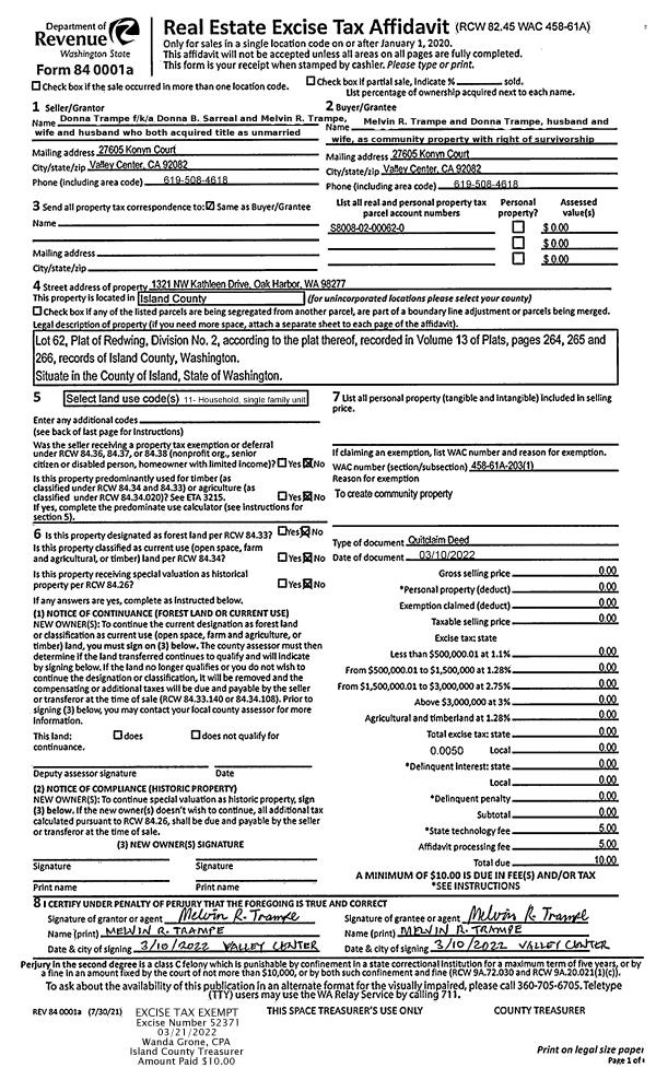
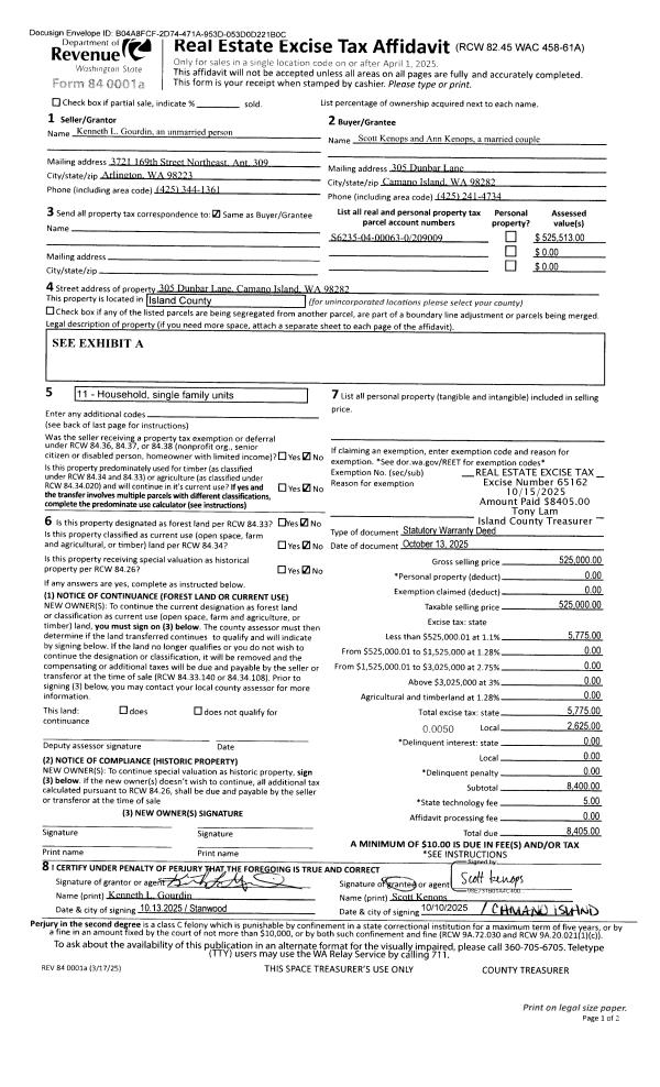
Property
Account |
| Property ID: | 73048 | Abbreviated Legal Description: | 11 - IN GL 3 INCL ADJ TIDES |
| Geographic ID: | R23103-322-2670 | Agent Code: | |
| Type: | Real | | |
| Tax Area: | 510 - APPRAISER-Stan/Cam Schl Dist, improved & 1 acre or less | Land Use Code | 11 |
| Open Space: | N | DFL | N |
| Historic Property: | N | Remodel Property: | N |
| Multi-Family Redevelopment: | N | | |
| Township: | 31 | Section: | 03 |
| Range: | R2 |
Location |
| Address: | 156 GOLDEN EYE LN CAMANO ISLAND, WA 98282 | Mapsco: | |
| Neighborhood: | Cycle 5 | Map ID: | 458 |
| Neighborhood CD: | 5 |
Owner |
| Name: | BOLENDER, CHARLES L | Owner ID: | 3270 |
| Mailing Address: | 16730 32ND PL NE LAKE FOREST PARK, WA 98155-5330 | % Ownership: | 100.0000000000% |
| | | Exemptions: | |
Taxes and Assessment Details
Values
| (+) Improvement Homesite Value: | + | $0 | |
| (+) Improvement Non-Homesite Value: | + | $126,588 | |
| (+) Land Homesite Value: | + | $0 | |
| (+) Land Non-Homesite Value: | + | $525,400 | |
| (+) Curr Use (HS): | + | $0 | $0 |
| (+) Curr Use (NHS): | + | $0 | $0 |
| | | -------------------------- | |
| (=) Market Value: | = | $651,988 | |
| (–) Productivity Loss: | – | $0 | |
| | | -------------------------- | |
| (=) Subtotal: | = | $651,988 | |
| (+) Senior Appraised Value: | + | $0 | |
| (+) Non-Senior Appraised Value: | + | $651,988 | |
| | | -------------------------- | |
| (=) Total Appraised Value: | = | $651,988 | |
| (–) Senior Exemption Loss: | – | $0 | |
| (–) Exemption Loss: | – | $0 | |
| | | -------------------------- | |
| (=) Taxable Value: | = | $651,988 | |
Taxing Jurisdiction
| Owner: | BOLENDER, CHARLES L | | |
| % Ownership: | 100.0000000000% | | |
| Total Value: | $651,988 | | |
| Tax Area: | 510 - APPRAISER-Stan/Cam Schl Dist, improved & 1 acre or less |
| CF | Conservation Futures | 0.0316035091 | $651,988 | $651,988 | $20.61 | | |
| EMS1 | Fire & Rescue Dist #1 Camano GEN (EMS) | 0.3677864386 | $651,988 | $651,988 | $239.79 | | |
| FIRE1 | Fire & Rescue Dist #1 Camano GEN | 1.2502910536 | $651,988 | $651,988 | $815.17 | | |
| FIRE1BOND | Fire & Rescue Dist #1 Camano BOND | 0.1570001679 | $651,988 | $651,988 | $102.36 | | |
| CE | County Current Expense | 0.3708482477 | $651,988 | $651,988 | $241.79 | | |
| CR | County Roads | 0.4584763726 | $651,988 | $651,988 | $298.92 | | |
| LCIB | Library Sno-Isle BOND (Camano Island) | 0.0396325772 | $651,988 | $651,988 | $25.84 | | |
| LIB | Library Sno-Isle GEN | 0.3153421757 | $651,988 | $651,988 | $205.60 | | |
| SCH205_401 | School 205-401 Enrichment | 1.2698420524 | $651,988 | $651,988 | $827.92 | | |
| SCH205BOND | School 205-401 BOND | 0.9396497583 | $651,988 | $651,988 | $612.64 | | |
| ST | State School | 1.3035497053 | $651,988 | $651,988 | $849.90 | | |
| ST2 | State School Part 2 | 0.8169543533 | $651,988 | $651,988 | $532.64 | | |
| | Total Tax Rate: | 7.3209764117 | | | | | |
| | | | | Taxes w/Current Exemptions: | $4,773.18 | | |
| | | | | Taxes w/o Exemptions: | $4,773.18 | | |
Improvement / Building
| Improvement #1: | RESIDENTIAL | State Code: | Y | 1148.8 sqft | Value: | $126,588 |
| Bathrooms: | 2 | Bedrooms: | 1 | | Ceiling: | TONGUE & GROOVE | Exterior Wall/Cover: | WOOD SIDING | | Floor Covering: | CARPET/VINYL 80-20 | Floor Structure: | WOOD W/SUBFLOOR | | Foundation: | CONCRETE | Heating: | BASEBOARD ELECTRIC | | Interior Finish: | DRYWALL PAINT | Plumbing Fixture Cnt: | 8 | | Roof Slope: | FLAT | Roof Structure/Cover: | BEAM ROLL COMPOSITION |
|
| | Type | Description | Class CD | Sub Class CD | Year Built | Area |
| | BAS | BASE/MAIN FLOOR | 3 | 0 | 1959 | 868.8 |
| | DWN | DOWNSTAIRS LIVING AREA | 3 | 0 | 1959 | 280.0 |
| | BIG | BUILT IN GARAGE | 3 | 0 | 1959 | 605.0 |
| | OWP | OPEN WOOD PORCH W/STEPS | 3 | 0 | 1959 | 135.0 |
Sketch
Property Image
Land
| 1 | LB | LOW BANK | 0.1500 | 6534.00 | 39.00 | 0.00 | 1.00 | $525,000 | $0 |
| 2 | 55 | TIDES | 0.0000 | 0.00 | 40.00 | 0.00 | 1.00 | $400 | $0 |
Roll Value History
| 2026 | N/A | N/A | N/A | N/A | N/A |
| 2025 | $126,588 | $525,400 | $0 | $651,988 | $651,988 |
| 2024 | $131,742 | $525,400 | $0 | $657,142 | $657,142 |
| 2023 | $134,002 | $525,400 | $0 | $659,402 | $659,402 |
| 2022 | $123,388 | $500,400 | $0 | $623,788 | $623,788 |
| 2021 | $99,640 | $400,400 | $0 | $500,040 | $500,040 |
| 2020 | $97,218 | $400,400 | $0 | $497,618 | $497,618 |
| 2019 | $68,743 | $400,400 | $0 | $469,143 | $469,143 |
| 2018 | $69,025 | $400,400 | $0 | $469,425 | $469,425 |
| 2017 | $69,558 | $400,400 | $0 | $469,958 | $469,958 |
| 2016 | $70,678 | $400,400 | $0 | $471,078 | $471,078 |
| 2015 | $52,322 | $400,400 | $0 | $452,722 | $452,722 |
| 2014 | $53,387 | $400,400 | $0 | $453,787 | $453,787 |
| 2013 | $54,451 | $311,123 | $0 | $365,574 | $365,574 |
| 2012 | $55,513 | $311,123 | $0 | $366,636 | $366,636 |
| 2011 | $56,575 | $388,804 | $0 | $445,379 | $445,379 |
| 2010 | $66,860 | $388,804 | $0 | $455,664 | $455,664 |
| 2009 | $68,809 | $417,967 | $0 | $486,776 | $486,776 |
| 2008 | $69,891 | $283,307 | $0 | $353,198 | $353,198 |
| 2007 | $70,974 | $283,027 | $0 | $354,001 | $354,001 |
Deed and Sales History
| 1 | 04/18/2019 | CPADC | Comm Prop Agmnt & Death Cert | BOLENDER, CHARLES L | BOLENDER, MAMIE J | | | $0.00 | 64602 | 4590079 |
| 2 | 11/01/1980 | EXECUTORD | Executor Deed | HUTCHISON, A L | BOLENDER, CHARLES L | | | $89,500.00 | 3886 | 376552 |
| 3 | 01/01/1900 | OTHER | Other - Misc. Documents | Unknown | HUTCHISON, A L | | | $0.00 | 0 | 0 |
Payout Agreement
| No payout information available.. |