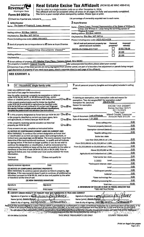
Property
Account |
| Property ID: | 730506 | Abbreviated Legal Description: | SYNDICATE ADD W200'OF LOT 40 & N10'OF W190'OF LOT 41 |
| Geographic ID: | S8290-00-00040-2 | Agent Code: | |
| Type: | Real | | |
| Tax Area: | 760 - APPRAISER-S Whid Schl Dist, Special District, improved & less than 1 acre | Land Use Code | 11 |
| Open Space: | N | DFL | N |
| Historic Property: | N | Remodel Property: | N |
| Multi-Family Redevelopment: | N | | |
| Township: | | Section: | |
| Range: | |
Location |
| Address: | 5335 HONEYMOON BAY RD FREELAND, WA 98249 | Mapsco: | |
| Neighborhood: | Cycle 3 | Map ID: | 311 |
| Neighborhood CD: | 3 |
Owner |
| Name: | THELEN JR, PETER H | Owner ID: | 101590 |
| Mailing Address: | 5335 HONEYMOON BAY RD FREELAND, WA 98249-9712 | % Ownership: | 100.0000000000% |
| | | Exemptions: | SNR/DSBL |
Taxes and Assessment Details
Values
| (+) Improvement Homesite Value: | + | $169,256 | |
| (+) Improvement Non-Homesite Value: | + | $0 | |
| (+) Land Homesite Value: | + | $280,000 | |
| (+) Land Non-Homesite Value: | + | $0 | |
| (+) Curr Use (HS): | + | $0 | $0 |
| (+) Curr Use (NHS): | + | $0 | $0 |
| | | -------------------------- | |
| (=) Market Value: | = | $449,256 | |
| (–) Productivity Loss: | – | $0 | |
| | | -------------------------- | |
| (=) Subtotal: | = | $449,256 | |
| (+) Senior Appraised Value: | + | $86,796 | |
| (+) Non-Senior Appraised Value: | + | $0 | |
| | | -------------------------- | |
| (=) Total Appraised Value: | = | $86,796 | |
| (–) Senior Exemption Loss: | – | $60,000 | |
| (–) Exemption Loss: | – | $0 | |
| | | -------------------------- | |
| (=) Taxable Value: | = | $26,796 | |
Taxing Jurisdiction
| Owner: | THELEN JR, PETER H | | |
| % Ownership: | 100.0000000000% | | |
| Total Value: | $449,256 | | |
| Tax Area: | 760 - APPRAISER-S Whid Schl Dist, Special District, improved & less than 1 acre |
| CF | Conservation Futures | 0.0316035091 | $449,256 | $26,796 | $0.85 | | |
| FIRE3 | Fire & Rescue Dist #3 S Whidbey GEN | 1.2004855531 | $449,256 | $26,796 | $32.17 | | |
| HOBOND | Hospital BOND | 0.0000000000 | $449,256 | $0 | $0.00 | | |
| HOGEN | Hospital GEN | 0.3902502903 | $449,256 | $26,796 | $10.46 | | |
| CE | County Current Expense | 0.3708482477 | $449,256 | $26,796 | $9.94 | | |
| CR | County Roads | 0.4584763726 | $449,256 | $26,796 | $12.29 | | |
| ISLANDEMS | Hospital GEN (EMS) | 0.5000000000 | $449,256 | $26,796 | $13.40 | | |
| LIB | Library Sno-Isle GEN | 0.3153421757 | $449,256 | $26,796 | $8.45 | | |
| PORTWHID | Port of S Whidbey GEN | 0.1094540357 | $449,256 | $26,796 | $2.93 | | |
| SCH206BOND | School 206 BOND | 0.3161759235 | $449,256 | $26,796 | $8.47 | | |
| SCH206MO | School 206 Enrichment | 0.0000000000 | $449,256 | $0 | $0.00 | | |
| ST | State School | 1.3035497053 | $449,256 | $26,796 | $34.93 | | |
| ST2 | State School Part 2 | 0.0000000000 | $449,256 | $0 | $0.00 | | |
| SWHIDPRBD | P & R S Whidbey BOND | 0.0000000000 | $449,256 | $0 | $0.00 | | |
| SWHIDPRBD2 | P & R S Whidbey BOND2 | 0.0000000000 | $449,256 | $0 | $0.00 | | |
| SWHIDPRMT | P & R S Whidbey GEN | 0.2053334452 | $449,256 | $26,796 | $5.50 | | |
| | Total Tax Rate: | 5.2015192582 | | | | | |
| | | | | Taxes w/Current Exemptions: | $139.39 | | |
| | | | | Taxes w/o Exemptions: | $3,007.08 | | |
Improvement / Building
| Improvement #1: | RESIDENTIAL | State Code: | Y | 1172.0 sqft | Value: | $169,256 |
| Bathrooms: | 2 | Bedrooms: | 3 | | Ceiling: | PLYWOOD PAINTED | Exterior Wall/Cover: | SHINGLE | | Floor Covering: | CARPET/VINYL 20-80 | Floor Structure: | WOOD W/SUBFLOOR | | Foundation: | WOOD BLOCKS | Heating: | BASEBOARD ELECTRIC | | Interior Finish: | DRYWALL PAINT | Plumbing Fixture Cnt: | 9 | | Roof Slope: | 5" IN 12" | Roof Structure/Cover: | CJ ALUMINIUM HEAVY |
|
| | Type | Description | Class CD | Sub Class CD | Year Built | Area |
| | BAS | BASE/MAIN FLOOR | 3 | 0 | 1948 | 1172.0 |
| | OWR | OPEN WOOD PORCH W/STEPS/ROOF | 3 | 0 | 1948 | 30.0 |
| | OWR | OPEN WOOD PORCH W/STEPS/ROOF | 3 | 0 | 1948 | 96.0 |
| | DGR | DETACHED GARAGE | 3 | 0 | 1948 | 448.0 |
| | UTY | STORAGE/UTILITY | 3 | 0 | 1948 | 225.0 |
Sketch
Property Image
Land
| 1 | 15 | SQ (12001-21780) | 0.0000 | 0.00 | 0.00 | 0.00 | 1.00 | $280,000 | $0 |
Roll Value History
| 2026 | N/A | N/A | N/A | N/A | N/A |
| 2025 | $169,256 | $280,000 | $0 | $449,256 | $26,796 |
| 2024 | $175,541 | $260,000 | $0 | $435,541 | $26,796 |
| 2023 | $178,407 | $260,000 | $0 | $438,407 | $26,796 |
| 2022 | $164,147 | $240,000 | $0 | $404,147 | $36,796 |
| 2021 | $144,994 | $190,000 | $0 | $334,994 | $36,796 |
| 2020 | $141,509 | $170,000 | $0 | $311,509 | $36,796 |
| 2019 | $82,474 | $210,000 | $0 | $292,474 | $36,796 |
| 2018 | $82,804 | $180,000 | $0 | $262,804 | $36,796 |
| 2017 | $83,460 | $100,000 | $0 | $183,460 | $26,796 |
| 2016 | $84,773 | $100,000 | $0 | $184,773 | $26,796 |
| 2015 | $86,088 | $100,000 | $0 | $186,088 | $26,796 |
| 2014 | $87,402 | $100,000 | $0 | $187,402 | $36,796 |
| 2013 | $63,762 | $100,000 | $0 | $163,762 | $36,796 |
| 2012 | $64,841 | $97,750 | $0 | $162,591 | $36,796 |
| 2011 | $65,920 | $115,000 | $0 | $180,920 | $36,796 |
| 2010 | $76,468 | $115,000 | $0 | $191,468 | $36,796 |
| 2009 | $80,573 | $179,340 | $0 | $259,913 | $36,795 |
| 2008 | $80,991 | $180,271 | $0 | $261,262 | $36,795 |
| 2007 | $80,724 | $179,676 | $0 | $260,400 | $34,474 |
Deed and Sales History
| 1 | 09/03/2024 | PRD | Personal Representatives Deed | THELEN JR, PETER H | THELEN JR, PETER H | | | $0.00 | 61134 | 4576545 |
Payout Agreement
| No payout information available.. |