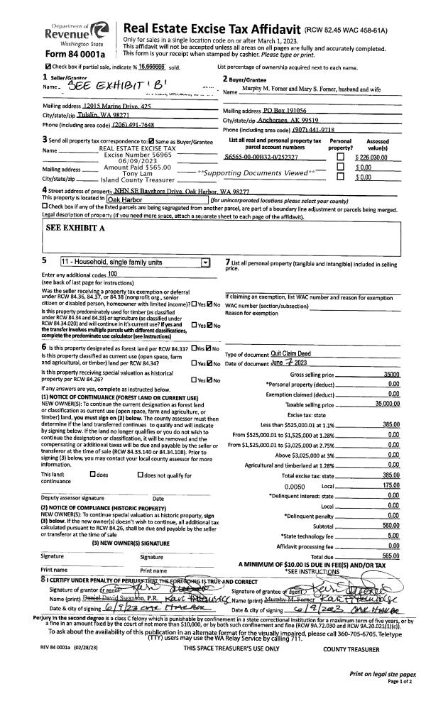
Property
Account |
| Property ID: | 730524 | Abbreviated Legal Description: | UTSA PT TR 3 LOT 30 & E2.50' OF LOT 31 & PT OF LOT 31: BG SWCR OF E2.50' OF LOT 31 N ALG WLN OF SD E2.50' 132.59' TPB N71.05' W10' S71.05' E10' TPB |
| Geographic ID: | S8355-03-00030-0 | Agent Code: | |
| Type: | Real | | |
| Tax Area: | 510 - APPRAISER-Stan/Cam Schl Dist, improved & 1 acre or less | Land Use Code | 11 |
| Open Space: | N | DFL | N |
| Historic Property: | N | Remodel Property: | N |
| Multi-Family Redevelopment: | N | | |
| Township: | | Section: | |
| Range: | |
Location |
| Address: | | Mapsco: | |
| Neighborhood: | North Camano | Map ID: | 557 |
| Neighborhood CD: | 06-C |
Owner |
| Name: | PLAZA, ROBERTO | Owner ID: | 254258 |
| Mailing Address: | MELISSA SYDNEY DALE 536 MAPLE GROVE RD CAMANO ISLAND, WA 98282-8650 | % Ownership: | 100.0000000000% |
| | | Exemptions: | |
Taxes and Assessment Details
Values
| (+) Improvement Homesite Value: | + | $0 | |
| (+) Improvement Non-Homesite Value: | + | $274,019 | |
| (+) Land Homesite Value: | + | $0 | |
| (+) Land Non-Homesite Value: | + | $700,620 | |
| (+) Curr Use (HS): | + | $0 | $0 |
| (+) Curr Use (NHS): | + | $0 | $0 |
| | | -------------------------- | |
| (=) Market Value: | = | $974,639 | |
| (–) Productivity Loss: | – | $0 | |
| | | -------------------------- | |
| (=) Subtotal: | = | $974,639 | |
| (+) Senior Appraised Value: | + | $0 | |
| (+) Non-Senior Appraised Value: | + | $974,639 | |
| | | -------------------------- | |
| (=) Total Appraised Value: | = | $974,639 | |
| (–) Senior Exemption Loss: | – | $0 | |
| (–) Exemption Loss: | – | $0 | |
| | | -------------------------- | |
| (=) Taxable Value: | = | $974,639 | |
Taxing Jurisdiction
| Owner: | PLAZA, ROBERTO | | |
| % Ownership: | 100.0000000000% | | |
| Total Value: | $974,639 | | |
| Tax Area: | 510 - APPRAISER-Stan/Cam Schl Dist, improved & 1 acre or less |
| CF | Conservation Futures | 0.0316035091 | $974,639 | $974,639 | $30.80 | | |
| EMS1 | Fire & Rescue Dist #1 Camano GEN (EMS) | 0.3677864386 | $974,639 | $974,639 | $358.46 | | |
| FIRE1 | Fire & Rescue Dist #1 Camano GEN | 1.2502910536 | $974,639 | $974,639 | $1,218.58 | | |
| FIRE1BOND | Fire & Rescue Dist #1 Camano BOND | 0.1570001679 | $974,639 | $974,639 | $153.02 | | |
| CE | County Current Expense | 0.3708482477 | $974,639 | $974,639 | $361.44 | | |
| CR | County Roads | 0.4584763726 | $974,639 | $974,639 | $446.85 | | |
| LCIB | Library Sno-Isle BOND (Camano Island) | 0.0396325772 | $974,639 | $974,639 | $38.63 | | |
| LIB | Library Sno-Isle GEN | 0.3153421757 | $974,639 | $974,639 | $307.34 | | |
| SCH205_401 | School 205-401 Enrichment | 1.2698420524 | $974,639 | $974,639 | $1,237.64 | | |
| SCH205BOND | School 205-401 BOND | 0.9396497583 | $974,639 | $974,639 | $915.82 | | |
| ST | State School | 1.3035497053 | $974,639 | $974,639 | $1,270.49 | | |
| ST2 | State School Part 2 | 0.8169543533 | $974,639 | $974,639 | $796.24 | | |
| | Total Tax Rate: | 7.3209764117 | | | | | |
| | | | | Taxes w/Current Exemptions: | $7,135.31 | | |
| | | | | Taxes w/o Exemptions: | $7,135.31 | | |
Improvement / Building
| Improvement #1: | RESIDENTIAL | State Code: | Y | 2806.3 sqft | Value: | $274,019 |
| Bathrooms: | 2.5 | Bedrooms: | 2 | | Ceiling: | TONGUE & GROOVE | Cooling: | HEAT PUMP/CONV/V | | Exterior Wall/Cover: | PLY/HARDBOARD T-111 | Floor Covering: | CARPET/VINYL 80-20 | | Floor Structure: | SLAB ON GRADE | Foundation: | SLAB/CONCRETE | | Interior Finish: | DRYWALL PAINT | Plumbing Fixture Cnt: | 11 | | Roof Slope: | FLAT | Roof Structure/Cover: | BEAM BUILT-UP ROCK |
|
| | Type | Description | Class CD | Sub Class CD | Year Built | Area |
| | BAS | BASE/MAIN FLOOR | 3 | 0 | 1962 | 1576.2 |
| | OP4 | OPEN PORCH W/CEILING-ROOF | 3 | 0 | 1962 | 124.9 |
| | OWR | OPEN WOOD PORCH W/STEPS/ROOF | 3 | 0 | 1962 | 155.3 |
| | DWN | DOWNSTAIRS LIVING AREA | 3 | 0 | 1962 | 1230.1 |
| | ENP | ENCLOSED PORCH | 3 | 0 | 1962 | 389.2 |
| | UTY | STORAGE/UTILITY | 3 | 0 | 1962 | 174.9 |
| | DGR | DETACHED GARAGE | 3 | 0 | 1962 | 1303.6 |
Sketch
Property Image
Land
| 1 | HB | HIGH BLUFF | 0.6400 | 27878.40 | 62.00 | 0.00 | 1.00 | $700,000 | $0 |
| 2 | 55 | TIDES | 0.0000 | 0.00 | 62.00 | 0.00 | 1.00 | $620 | $0 |
Roll Value History
| 2026 | N/A | N/A | N/A | N/A | N/A |
| 2025 | $274,019 | $700,620 | $0 | $974,639 | $974,639 |
| 2024 | $278,644 | $700,620 | $0 | $979,264 | $979,264 |
| 2023 | $283,269 | $615,620 | $0 | $898,889 | $898,889 |
| 2022 | $252,330 | $560,620 | $0 | $812,950 | $812,950 |
| 2021 | $229,527 | $375,620 | $0 | $605,147 | $605,147 |
| 2020 | $225,162 | $350,620 | $0 | $575,782 | $575,782 |
| 2019 | $182,429 | $350,620 | $0 | $533,049 | $533,049 |
| 2018 | $183,149 | $300,620 | $0 | $483,769 | $483,769 |
| 2017 | $184,119 | $300,620 | $0 | $484,739 | $484,739 |
| 2016 | $176,681 | $300,620 | $0 | $477,301 | $477,301 |
| 2015 | $179,486 | $300,620 | $0 | $480,106 | $480,106 |
| 2014 | $182,289 | $300,620 | $0 | $482,909 | $482,909 |
| 2013 | $185,096 | $250,006 | $0 | $435,102 | $435,102 |
| 2012 | $187,901 | $250,006 | $0 | $437,907 | $437,907 |
| 2011 | $190,702 | $263,132 | $0 | $453,834 | $453,834 |
| 2010 | $230,984 | $263,132 | $0 | $494,116 | $494,116 |
| 2009 | $241,194 | $292,301 | $0 | $533,495 | $533,495 |
| 2008 | $244,818 | $292,301 | $0 | $537,119 | $537,119 |
| 2007 | $248,244 | $291,867 | $0 | $540,111 | $540,111 |
Deed and Sales History
| 1 | 04/29/2011 | WD | Warranty Deed | GATES, AUSTIN LYNNE | PLAZA, ROBERTO | | | $407,000.00 | 4337 | 4294726 |
| 2 | 08/25/2008 | WD | Warranty Deed | HAWKINS, LOYD G | GATES, AUSTIN LYNNE | | | $565,000.00 | 82298 | 4235874 |
| 3 | 09/30/2005 | WD | Warranty Deed | HAWKINS, LOYD G | HAWKINS, LOYD G | | | $0.00 | 61163 | 4165165 |
| 4 | 09/30/2005 | WD | Warranty Deed | STUART, TRUDY | HAWKINS, LOYD G | | | $600,000.00 | 55045 | 4149962 |
| 5 | 03/01/1995 | WD | Warranty Deed | Unknown | STUART, TRUDY | | | $217,000.00 | 51110 | 95005217 |
Payout Agreement
| No payout information available.. |