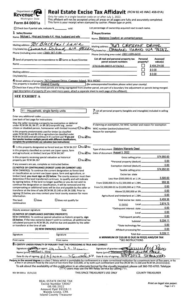
Property
Account |
| Property ID: | 731140 | Abbreviated Legal Description: | TL167 IN SW NE: BG SWCR SE SW NE N0*W240'TPB N0*W160' S70*E 165.95'TO WLN CIRCLE DR SWLY TP N89*E FR TPB S89*W TPB FR 301-3370 & 295-3370 COMB 11/95 |
| Geographic ID: | R23114-299-3370 | Agent Code: | |
| Type: | Real | | |
| Tax Area: | 510 - APPRAISER-Stan/Cam Schl Dist, improved & 1 acre or less | Land Use Code | 11 |
| Open Space: | N | DFL | N |
| Historic Property: | N | Remodel Property: | N |
| Multi-Family Redevelopment: | N | | |
| Township: | 31 | Section: | 14 |
| Range: | R2 |
Location |
| Address: | 990 CIRCLE DR CAMANO ISLAND, WA 98282 | Mapsco: | |
| Neighborhood: | Cycle 5 | Map ID: | 484 |
| Neighborhood CD: | 5 |
Owner |
| Name: | MULROONEY, JOHN | Owner ID: | 201377 |
| Mailing Address: | JILL MULROONEY 990 CIRCLE DR CAMANO ISLAND, WA 98282 | % Ownership: | 100.0000000000% |
| | | Exemptions: | |
Taxes and Assessment Details
Values
| (+) Improvement Homesite Value: | + | $0 | |
| (+) Improvement Non-Homesite Value: | + | $205,758 | |
| (+) Land Homesite Value: | + | $0 | |
| (+) Land Non-Homesite Value: | + | $240,000 | |
| (+) Curr Use (HS): | + | $0 | $0 |
| (+) Curr Use (NHS): | + | $0 | $0 |
| | | -------------------------- | |
| (=) Market Value: | = | $445,758 | |
| (–) Productivity Loss: | – | $0 | |
| | | -------------------------- | |
| (=) Subtotal: | = | $445,758 | |
| (+) Senior Appraised Value: | + | $0 | |
| (+) Non-Senior Appraised Value: | + | $445,758 | |
| | | -------------------------- | |
| (=) Total Appraised Value: | = | $445,758 | |
| (–) Senior Exemption Loss: | – | $0 | |
| (–) Exemption Loss: | – | $0 | |
| | | -------------------------- | |
| (=) Taxable Value: | = | $445,758 | |
Taxing Jurisdiction
| Owner: | MULROONEY, JOHN | | |
| % Ownership: | 100.0000000000% | | |
| Total Value: | $445,758 | | |
| Tax Area: | 510 - APPRAISER-Stan/Cam Schl Dist, improved & 1 acre or less |
| CF | Conservation Futures | 0.0316035091 | $445,758 | $445,758 | $14.09 | | |
| EMS1 | Fire & Rescue Dist #1 Camano GEN (EMS) | 0.3677864386 | $445,758 | $445,758 | $163.94 | | |
| FIRE1 | Fire & Rescue Dist #1 Camano GEN | 1.2502910536 | $445,758 | $445,758 | $557.33 | | |
| FIRE1BOND | Fire & Rescue Dist #1 Camano BOND | 0.1570001679 | $445,758 | $445,758 | $69.98 | | |
| CE | County Current Expense | 0.3708482477 | $445,758 | $445,758 | $165.31 | | |
| CR | County Roads | 0.4584763726 | $445,758 | $445,758 | $204.37 | | |
| LCIB | Library Sno-Isle BOND (Camano Island) | 0.0396325772 | $445,758 | $445,758 | $17.67 | | |
| LIB | Library Sno-Isle GEN | 0.3153421757 | $445,758 | $445,758 | $140.57 | | |
| SCH205_401 | School 205-401 Enrichment | 1.2698420524 | $445,758 | $445,758 | $566.04 | | |
| SCH205BOND | School 205-401 BOND | 0.9396497583 | $445,758 | $445,758 | $418.86 | | |
| ST | State School | 1.3035497053 | $445,758 | $445,758 | $581.07 | | |
| ST2 | State School Part 2 | 0.8169543533 | $445,758 | $445,758 | $364.16 | | |
| | Total Tax Rate: | 7.3209764117 | | | | | |
| | | | | Taxes w/Current Exemptions: | $3,263.39 | | |
| | | | | Taxes w/o Exemptions: | $3,263.39 | | |
Improvement / Building
| Improvement #1: | MANUFACTURED HOME | State Code: | Y | 2212.2 sqft | Value: | $205,758 |
| Bathrooms: | 0 | Bedrooms: | 0 | | Ceiling: | PLASTER PAINTED | Cooling: | EVAP NO DUCT | | Exterior Wall/Cover: | VINYL | Floor Covering: | CARPET 100% | | Floor Structure: | SLAB ON GRADE | Foundation: | SLAB | | Heating: | FHA ELECTRIC | Interior Finish: | PLASTER | | Plumbing Fixture Cnt: | 1 | Roof Slope: | FLAT | | Roof Structure/Cover: | CJ ALUMINIUM HEAVY |   |   |
|
| | Type | Description | Class CD | Sub Class CD | Year Built | Area |
| | BAS | BASE/MAIN FLOOR | 4 | 0 | 2006 | 2212.2 |
| | OWP | OPEN WOOD PORCH W/STEPS | 4 | 0 | 2006 | 197.5 |
| | OWP | OPEN WOOD PORCH W/STEPS | 4 | 0 | 2006 | 948.0 |
| | DGR | DETACHED GARAGE | 4 | 0 | 2006 | 576.0 |
Sketch
Property Image
Land
| 1 | 15 | SQ (12001-21780) | 0.4500 | 19602.00 | 0.00 | 0.00 | 1.00 | $240,000 | $0 |
Roll Value History
| 2026 | N/A | N/A | N/A | N/A | N/A |
| 2025 | $205,758 | $240,000 | $0 | $445,758 | $445,758 |
| 2024 | $210,603 | $220,000 | $0 | $430,603 | $430,603 |
| 2023 | $189,221 | $210,000 | $0 | $399,221 | $399,221 |
| 2022 | $176,513 | $210,000 | $0 | $386,513 | $386,513 |
| 2021 | $152,048 | $150,000 | $0 | $302,048 | $302,048 |
| 2020 | $151,247 | $120,000 | $0 | $271,247 | $271,247 |
| 2019 | $123,481 | $160,000 | $0 | $283,481 | $283,481 |
| 2018 | $124,749 | $130,000 | $0 | $254,749 | $254,749 |
| 2017 | $127,276 | $100,000 | $0 | $227,276 | $227,276 |
| 2016 | $128,545 | $100,000 | $0 | $228,545 | $228,545 |
| 2015 | $147,655 | $65,000 | $0 | $212,655 | $212,655 |
| 2014 | $148,849 | $65,000 | $0 | $213,849 | $213,849 |
| 2013 | $151,237 | $41,600 | $0 | $192,837 | $192,837 |
| 2012 | $152,431 | $41,600 | $0 | $194,031 | $194,031 |
| 2011 | $153,625 | $52,000 | $0 | $205,625 | $205,625 |
| 2010 | $162,916 | $52,000 | $0 | $214,916 | $214,916 |
| 2009 | $144,113 | $125,000 | $0 | $269,113 | $269,113 |
| 2008 | $145,646 | $75,504 | $0 | $221,150 | $221,150 |
| 2007 | $147,196 | $75,504 | $0 | $222,700 | $222,700 |
Deed and Sales History
| 1 | 05/21/2009 | QCD | Quit Claim Deed | MULROONEY, JOHN | MULROONEY, JOHN | | | $0.00 | 91151 | 4252330 |
| 2 | 07/19/2006 | EZ | Easement | MULROONEY, JOHN | MULROONEY, JOHN | | | $2,000.00 | 632117 | 4177212 |
| 3 | 12/26/2005 | ESTSEPPROP | Establish Separate Property | MULROONEY, JOHN | MULROONEY, JOHN | | | $0.00 | 60045 | 4158936 |
| 4 | 02/23/2005 | WD | Warranty Deed | DERY, DONALD G | MULROONEY, JOHN | | | $43,000.00 | 50885 | 4127494 |
| 5 | 11/01/1995 | OTHER | Other - Misc. Documents | ERICKSON, MARK L | ERICKSON, MARK L | | | $0.00 | 66719 | 95018476 |
| 6 | 04/01/1991 | WD | Warranty Deed | Unknown | ERICKSON, MARK L | | | $4,000.00 | 11473 | 91006209 |
| 7 | 01/01/1900 | OTHER | Other - Misc. Documents | ERICKSON, MARK L | DERY, DONALD G | | | $0.00 | 82295 | 98011982 |
Payout Agreement
| No payout information available.. |