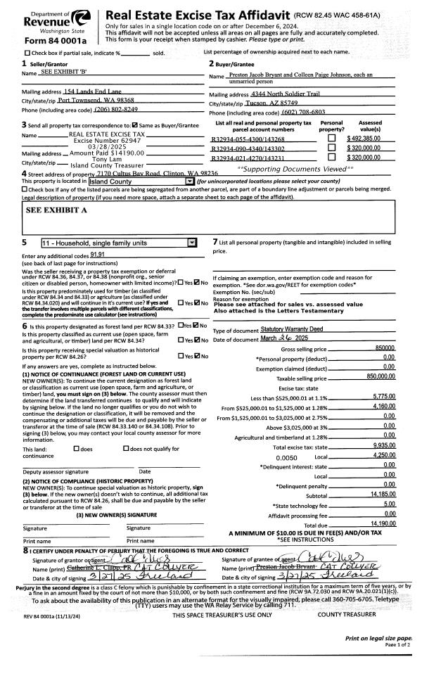
Property
Account |
| Property ID: | 731943 | Abbreviated Legal Description: | 1990 OAKMANOR 27X44 VIN# 06910398ZAB |
| Geographic ID: | M91300000067-1 | Agent Code: | |
| Type: | Mobile Home | | |
| Tax Area: | 300 - APPRAISER-Cpvl Schl Dist, in Cpvl | Land Use Code | 11 |
| Open Space: | N | DFL | N |
| Historic Property: | N | Remodel Property: | N |
| Multi-Family Redevelopment: | N | | |
| Township: | | Section: | |
| Range: | |
Location |
| Address: | 204 SW TERRY RD # 67 COUPEVILLE, WA 98239 | Mapsco: | |
| Neighborhood: | Cycle 2 | Map ID: | |
| Neighborhood CD: | 2 |
Owner |
| Name: | TENNANT, MARGOT E | Owner ID: | 253825 |
| Mailing Address: | PO BOX 1200 COUPEVILLE, WA 98239-1200 | % Ownership: | 100.0000000000% |
| | | Exemptions: | |
Taxes and Assessment Details
Values
| (+) Improvement Homesite Value: | + | $0 | |
| (+) Improvement Non-Homesite Value: | + | $110,522 | |
| (+) Land Homesite Value: | + | $0 | |
| (+) Land Non-Homesite Value: | + | $0 | |
| (+) Curr Use (HS): | + | $0 | $0 |
| (+) Curr Use (NHS): | + | $0 | $0 |
| | | -------------------------- | |
| (=) Market Value: | = | $110,522 | |
| (–) Productivity Loss: | – | $0 | |
| | | -------------------------- | |
| (=) Subtotal: | = | $110,522 | |
| (+) Senior Appraised Value: | + | $0 | |
| (+) Non-Senior Appraised Value: | + | $110,522 | |
| | | -------------------------- | |
| (=) Total Appraised Value: | = | $110,522 | |
| (–) Senior Exemption Loss: | – | $0 | |
| (–) Exemption Loss: | – | $0 | |
| | | -------------------------- | |
| (=) Taxable Value: | = | $110,522 | |
Taxing Jurisdiction
| Owner: | TENNANT, MARGOT E | | |
| % Ownership: | 100.0000000000% | | |
| Total Value: | $110,522 | | |
| Tax Area: | 300 - APPRAISER-Cpvl Schl Dist, in Cpvl |
| CF | Conservation Futures | 0.0316035091 | $110,522 | $110,522 | $3.49 | | |
| CEM2 | Cemetery #2 | 0.0095056933 | $110,522 | $110,522 | $1.05 | | |
| COUP | City: Town of Coupeville | 0.8426414490 | $110,522 | $110,522 | $93.13 | | |
| FIRE5 | Fire & Rescue Dist #5 C Whidbey GEN | 1.2008080668 | $110,522 | $110,522 | $132.72 | | |
| FIRE5BOND | Fire & Rescue Dist #5 C Whidbey BOND | 0.1400090713 | $110,522 | $110,522 | $15.47 | | |
| HOBOND | Hospital BOND | 0.1910887512 | $110,522 | $110,522 | $21.12 | | |
| HOGEN | Hospital GEN | 0.3902502903 | $110,522 | $110,522 | $43.13 | | |
| CE | County Current Expense | 0.3708482477 | $110,522 | $110,522 | $40.99 | | |
| ISLANDEMS | Hospital GEN (EMS) | 0.5000000000 | $110,522 | $110,522 | $55.26 | | |
| LIB | Library Sno-Isle GEN | 0.3153421757 | $110,522 | $110,522 | $34.85 | | |
| LIBCAP | Library Sno-Isle BOND (Cap Fac Imp Area) | 0.0543427938 | $110,522 | $110,522 | $6.01 | | |
| POCOUP | Port of Coupeville GEN | 0.1093371703 | $110,522 | $110,522 | $12.08 | | |
| POCOUPIDD | Port of Coupeville IDD | 0.3409740022 | $110,522 | $110,522 | $37.69 | | |
| COUPSDTECH | School 204 CP (TECH) | 0.7545480007 | $110,522 | $110,522 | $83.39 | | |
| SCH204MO | School 204 Enrichment | 0.6716186034 | $110,522 | $110,522 | $74.23 | | |
| ST | State School | 1.3035497053 | $110,522 | $110,522 | $144.07 | | |
| ST2 | State School Part 2 | 0.8169543533 | $110,522 | $110,522 | $90.29 | | |
| | Total Tax Rate: | 8.0434218834 | | | | | |
| | | | | Taxes w/Current Exemptions: | $888.97 | | |
| | | | | Taxes w/o Exemptions: | $888.97 | | |
Improvement / Building
| Improvement #1: | MANUFACTURED HOME | State Code: | Y | 1188.0 sqft | Value: | $110,522 |
| Bathrooms: | 0 | Bedrooms: | 0 | | Ceiling: | PLASTER PAINTED | Cooling: | EVAP NO DUCT | | Exterior Wall/Cover: | VINYL | Floor Covering: | CARPET 100% | | Floor Structure: | SLAB ON GRADE | Foundation: | SLAB | | Heating: | FHA ELECTRIC | Interior Finish: | PLASTER | | Plumbing Fixture Cnt: | 1 | Roof Slope: | FLAT | | Roof Structure/Cover: | CJ ALUMINIUM HEAVY |   |   |
|
Sketch
Property Image
Land
No land segments exist for this property.
Roll Value History
| 2026 | N/A | N/A | N/A | N/A | N/A |
| 2025 | $110,522 | $0 | $0 | $110,522 | $110,522 |
| 2024 | $89,137 | $0 | $0 | $89,137 | $89,137 |
| 2023 | $41,783 | $0 | $0 | $41,783 | $41,783 |
| 2022 | $39,318 | $0 | $0 | $39,318 | $39,318 |
| 2021 | $35,480 | $0 | $0 | $35,480 | $35,480 |
| 2020 | $35,698 | $0 | $0 | $35,698 | $35,698 |
| 2019 | $29,601 | $0 | $0 | $29,601 | $29,601 |
| 2018 | $13,971 | $0 | $0 | $13,971 | $13,971 |
| 2017 | $14,459 | $0 | $0 | $14,459 | $14,459 |
| 2016 | $15,193 | $0 | $0 | $15,193 | $15,193 |
| 2015 | $15,683 | $0 | $0 | $15,683 | $15,683 |
| 2014 | $16,173 | $0 | $0 | $16,173 | $16,173 |
| 2013 | $16,663 | $0 | $0 | $16,663 | $16,663 |
| 2012 | $16,599 | $0 | $0 | $16,599 | $16,599 |
| 2011 | $23,262 | $0 | $0 | $23,262 | $23,262 |
| 2010 | $24,042 | $0 | $0 | $24,042 | $0 |
| 2009 | $25,632 | $0 | $0 | $25,632 | $0 |
| 2008 | $26,487 | $0 | $0 | $26,487 | $0 |
| 2007 | $27,347 | $0 | $0 | $27,347 | $0 |
Deed and Sales History
| 1 | 02/01/2011 | OTHER | Other - Misc. Documents | COOPER, FLORENCE L | TENNANT, MARGOT E | | | $35,000.00 | 3521 | |
| 2 | 10/01/1989 | OTHER | Other - Misc. Documents | Unknown | COOPER, FLORENCE L | | | $27,790.00 | 11111111 | 0 |
Payout Agreement
| No payout information available.. |