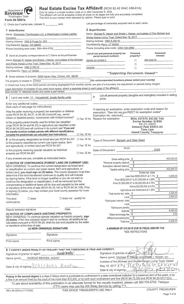
Property
Account |
| Property ID: | 732 | Abbreviated Legal Description: | 39 - E485' OF N224.55' OF S449.1' OF GL2 EX E30' EX PT TO IS CO AF#4085420 (LOT A SP 77-71 AF#321380) |
| Geographic ID: | R03224-297-3640 | Agent Code: | |
| Type: | Real | | |
| Tax Area: | 332 - APPRAISER-Cpvl Schl Dist, Special Dist, improved, greater than 1 acre | Land Use Code | 11 |
| Open Space: | N | DFL | N |
| Historic Property: | N | Remodel Property: | N |
| Multi-Family Redevelopment: | N | | |
| Township: | 32 | Section: | 24 |
| Range: | R0 |
Location |
| Address: | 1035 WEST BEACH RD COUPEVILLE, WA 98239 | Mapsco: | |
| Neighborhood: | Cycle 2 | Map ID: | 5 |
| Neighborhood CD: | 2 |
Owner |
| Name: | BUYS, SHANNON T | Owner ID: | 81383 |
| Mailing Address: | DENISE A BUYS 1035 W BEACH RD COUPEVILLE, WA 98239-9777 | % Ownership: | 100.0000000000% |
| | | Exemptions: | |
Taxes and Assessment Details
Values
| (+) Improvement Homesite Value: | + | $0 | |
| (+) Improvement Non-Homesite Value: | + | $724,279 | |
| (+) Land Homesite Value: | + | $0 | |
| (+) Land Non-Homesite Value: | + | $298,149 | |
| (+) Curr Use (HS): | + | $0 | $0 |
| (+) Curr Use (NHS): | + | $0 | $0 |
| | | -------------------------- | |
| (=) Market Value: | = | $1,022,428 | |
| (–) Productivity Loss: | – | $0 | |
| | | -------------------------- | |
| (=) Subtotal: | = | $1,022,428 | |
| (+) Senior Appraised Value: | + | $0 | |
| (+) Non-Senior Appraised Value: | + | $1,022,428 | |
| | | -------------------------- | |
| (=) Total Appraised Value: | = | $1,022,428 | |
| (–) Senior Exemption Loss: | – | $0 | |
| (–) Exemption Loss: | – | $0 | |
| | | -------------------------- | |
| (=) Taxable Value: | = | $1,022,428 | |
Taxing Jurisdiction
| Owner: | BUYS, SHANNON T | | |
| % Ownership: | 100.0000000000% | | |
| Total Value: | $1,022,428 | | |
| Tax Area: | 332 - APPRAISER-Cpvl Schl Dist, Special Dist, improved, greater than 1 acre |
| CF | Conservation Futures | 0.0316035091 | $1,022,428 | $1,022,428 | $32.31 | | |
| CEM2 | Cemetery #2 | 0.0095056933 | $1,022,428 | $1,022,428 | $9.72 | | |
| FIRE2 | Fire & Rescue Dist #2 N Whidbey GEN | 0.5475949600 | $1,022,428 | $1,022,428 | $559.88 | | |
| HOBOND | Hospital BOND | 0.1910887512 | $1,022,428 | $1,022,428 | $195.37 | | |
| HOGEN | Hospital GEN | 0.3902502903 | $1,022,428 | $1,022,428 | $399.00 | | |
| CE | County Current Expense | 0.3708482477 | $1,022,428 | $1,022,428 | $379.17 | | |
| CR | County Roads | 0.4584763726 | $1,022,428 | $1,022,428 | $468.76 | | |
| ISLANDEMS | Hospital GEN (EMS) | 0.5000000000 | $1,022,428 | $1,022,428 | $511.21 | | |
| LIB | Library Sno-Isle GEN | 0.3153421757 | $1,022,428 | $1,022,428 | $322.41 | | |
| LIBCAP | Library Sno-Isle BOND (Cap Fac Imp Area) | 0.0543427938 | $1,022,428 | $1,022,428 | $55.56 | | |
| POCOUP | Port of Coupeville GEN | 0.1093371703 | $1,022,428 | $1,022,428 | $111.79 | | |
| POCOUPIDD | Port of Coupeville IDD | 0.3409740022 | $1,022,428 | $1,022,428 | $348.62 | | |
| COUPSDTECH | School 204 CP (TECH) | 0.7545480007 | $1,022,428 | $1,022,428 | $771.47 | | |
| SCH204MO | School 204 Enrichment | 0.6716186034 | $1,022,428 | $1,022,428 | $686.68 | | |
| ST | State School | 1.3035497053 | $1,022,428 | $1,022,428 | $1,332.79 | | |
| ST2 | State School Part 2 | 0.8169543533 | $1,022,428 | $1,022,428 | $835.28 | | |
| | Total Tax Rate: | 6.8660346289 | | | | | |
| | | | | Taxes w/Current Exemptions: | $7,020.02 | | |
| | | | | Taxes w/o Exemptions: | $7,020.02 | | |
Improvement / Building
| Improvement #1: | RESIDENTIAL | State Code: | Y | 4176.3 sqft | Value: | $724,279 |
| Bathrooms: | 2.5 | Bedrooms: | 3 | | Ceiling: | DRYWALL PAINTED | Exterior Wall/Cover: | SHINGLE | | Floor Covering: | HARDWOOD/CARP 60-40 | Floor Structure: | WOOD W/SUBFLOOR | | Foundation: | CONCRETE | Heating: | FHA ELECTRIC | | Interior Finish: | DRYWALL PAINT | Plumbing Fixture Cnt: | 11 | | Roof Slope: | 12" IN 12" | Roof Structure/Cover: | CJ ASPHALT |
|
| | Type | Description | Class CD | Sub Class CD | Year Built | Area |
| | BAS | BASE/MAIN FLOOR | 4 | 0 | 2002 | 1532.9 |
| | BIG | BUILT IN GARAGE | 4 | 0 | 2002 | 967.5 |
| | UPS | UPPER STORY | 4 | 0 | 2002 | 1327.9 |
| | OWP | OPEN WOOD PORCH W/STEPS | 4 | 0 | 2002 | 342.0 |
| | OWP | OPEN WOOD PORCH W/STEPS | 4 | 0 | 2002 | 84.3 |
| | OWC | OPEN WOOD PORCH W/STEPS/ROOF/C | 4 | 0 | 2002 | 132.8 |
| | UPH | HALF STORY | 4 | 0 | 2002 | 864.0 |
| | BIG | BUILT IN GARAGE | 4 | 0 | 2002 | 1392.0 |
| | UPH | HALF STORY | 4 | 0 | 2002 | 451.5 |
Sketch
Property Image
Land
| 1 | HS | HOMESITE | 1.0000 | 43560.00 | 0.00 | 0.00 | 1.00 | $270,000 | $0 |
| 2 | 91 | UNDEVELOPED LAND-METES AND BOUNDS | 1.3100 | 57063.60 | 0.00 | 0.00 | 1.00 | $28,149 | $0 |
Roll Value History
| 2026 | N/A | N/A | N/A | N/A | N/A |
| 2025 | $724,279 | $298,149 | $0 | $1,022,428 | $1,022,428 |
| 2024 | $681,799 | $300,000 | $0 | $981,799 | $981,799 |
| 2023 | $690,296 | $300,000 | $0 | $990,296 | $990,296 |
| 2022 | $632,767 | $280,000 | $0 | $912,767 | $912,767 |
| 2021 | $556,908 | $190,000 | $0 | $746,908 | $746,908 |
| 2020 | $545,030 | $175,000 | $0 | $720,030 | $720,030 |
| 2019 | $460,544 | $210,000 | $0 | $670,544 | $670,544 |
| 2018 | $428,563 | $190,000 | $0 | $618,563 | $618,563 |
| 2017 | $430,885 | $170,000 | $0 | $600,885 | $600,885 |
| 2016 | $436,015 | $140,000 | $0 | $576,015 | $576,015 |
| 2015 | $441,144 | $125,000 | $0 | $566,144 | $566,144 |
| 2014 | $446,273 | $85,000 | $0 | $531,273 | $531,273 |
| 2013 | $451,404 | $85,000 | $0 | $536,404 | $536,404 |
| 2012 | $452,310 | $85,000 | $0 | $537,310 | $537,310 |
| 2011 | $456,520 | $100,000 | $0 | $556,520 | $556,520 |
| 2010 | $474,130 | $100,000 | $0 | $574,130 | $574,130 |
| 2009 | $488,411 | $124,000 | $0 | $612,411 | $612,411 |
| 2008 | $494,603 | $129,200 | $0 | $623,803 | $623,803 |
| 2007 | $505,272 | $115,000 | $0 | $620,272 | $620,272 |
Deed and Sales History
| 1 | 07/13/2004 | QCD | Quit Claim Deed | BUYS, SHANNON T | BUYS, SHANNON T | | | $3,000.00 | 70315 | 4085420 |
| 2 | 03/21/2001 | WD | Warranty Deed | BUYS, SHANNON T | BUYS, SHANNON T | | | $49,500.00 | 10854 | 20027708 |
| 3 | 03/08/2001 | WD | Warranty Deed | PRATER, JONATHAN M | BUYS, SHANNON T | | | $49,500.00 | 10846 | 20027641 |
| 4 | 10/01/1994 | WD | Warranty Deed | PRATER, JONATHAN M | PRATER, JONATHAN M | | | $0.00 | 44301 | 94022185 |
| 5 | 01/01/1990 | WD | Warranty Deed | CULVER, DONALD A | PRATER, JONATHAN M | | | $25,000.00 | 690 | 90002260 |
| 6 | 01/01/1900 | OTHER | Other - Misc. Documents | Unknown | CULVER, DONALD A | | | $0.00 | 0 | 0 |
Payout Agreement
| No payout information available.. |