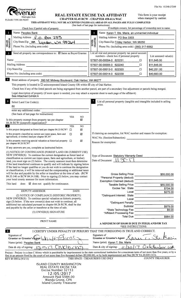
Property
Account |
| Property ID: | 732336 | Abbreviated Legal Description: | WALDEN'S PRD #1 LOT 4 |
| Geographic ID: | S8377-00-00004-0 | Agent Code: | |
| Type: | Real | | |
| Tax Area: | 119 - APPRAISER-OH Schl Dist, outside OH, vacant & 50 acres or less | Land Use Code | 99 |
| Open Space: | N | DFL | N |
| Historic Property: | N | Remodel Property: | N |
| Multi-Family Redevelopment: | N | | |
| Township: | | Section: | |
| Range: | |
Location |
| Address: | 1946 CHASE DR OAK HARBOR, WA 98277 | Mapsco: | |
| Neighborhood: | Cycle 6 | Map ID: | 539 |
| Neighborhood CD: | 6 |
Owner |
| Name: | CUBIAS, LUCY EMERALD | Owner ID: | 282484 |
| Mailing Address: | 2729 SOUTH WALKER AVE SAN PEDRO, CA 90731 | % Ownership: | 100.0000000000% |
| | | Exemptions: | |
Taxes and Assessment Details
Values
| (+) Improvement Homesite Value: | + | $0 | |
| (+) Improvement Non-Homesite Value: | + | $0 | |
| (+) Land Homesite Value: | + | $0 | |
| (+) Land Non-Homesite Value: | + | $325,000 | |
| (+) Curr Use (HS): | + | $0 | $0 |
| (+) Curr Use (NHS): | + | $0 | $0 |
| | | -------------------------- | |
| (=) Market Value: | = | $325,000 | |
| (–) Productivity Loss: | – | $0 | |
| | | -------------------------- | |
| (=) Subtotal: | = | $325,000 | |
| (+) Senior Appraised Value: | + | $0 | |
| (+) Non-Senior Appraised Value: | + | $325,000 | |
| | | -------------------------- | |
| (=) Total Appraised Value: | = | $325,000 | |
| (–) Senior Exemption Loss: | – | $0 | |
| (–) Exemption Loss: | – | $0 | |
| | | -------------------------- | |
| (=) Taxable Value: | = | $325,000 | |
Taxing Jurisdiction
| Owner: | CUBIAS, LUCY EMERALD | | |
| % Ownership: | 100.0000000000% | | |
| Total Value: | $325,000 | | |
| Tax Area: | 119 - APPRAISER-OH Schl Dist, outside OH, vacant & 50 acres or less |
| CF | Conservation Futures | 0.0316035091 | $325,000 | $325,000 | $10.27 | | |
| CEM1 | Cemetery #1 | 0.0040320932 | $325,000 | $325,000 | $1.31 | | |
| HOBOND | Hospital BOND | 0.1910887512 | $325,000 | $325,000 | $62.10 | | |
| HOGEN | Hospital GEN | 0.3902502903 | $325,000 | $325,000 | $126.83 | | |
| CE | County Current Expense | 0.3708482477 | $325,000 | $325,000 | $120.53 | | |
| CR | County Roads | 0.4584763726 | $325,000 | $325,000 | $149.00 | | |
| ISLANDEMS | Hospital GEN (EMS) | 0.5000000000 | $325,000 | $325,000 | $162.50 | | |
| LIB | Library Sno-Isle GEN | 0.3153421757 | $325,000 | $325,000 | $102.49 | | |
| NWHIDPRMT | P & R N Whidbey GEN | 0.2004466701 | $325,000 | $325,000 | $65.15 | | |
| SCH201MO | School 201 Enrichment | 1.8559231640 | $325,000 | $325,000 | $603.18 | | |
| ST | State School | 1.3035497053 | $325,000 | $325,000 | $423.65 | | |
| ST2 | State School Part 2 | 0.8169543533 | $325,000 | $325,000 | $265.51 | | |
| | Total Tax Rate: | 6.4385153325 | | | | | |
| | | | | Taxes w/Current Exemptions: | $2,092.52 | | |
| | | | | Taxes w/o Exemptions: | $2,092.52 | | |
Improvement / Building
Sketch
| No sketches available for this property. |
Property Image
Land
| 1 | HB | HIGH BLUFF | 1.0000 | 43560.00 | 133.00 | 0.00 | 1.00 | $325,000 | $0 |
Roll Value History
| 2026 | N/A | N/A | N/A | N/A | N/A |
| 2025 | $0 | $325,000 | $0 | $325,000 | $325,000 |
| 2024 | $0 | $275,000 | $0 | $275,000 | $275,000 |
| 2023 | $0 | $250,000 | $0 | $250,000 | $250,000 |
| 2022 | $0 | $250,000 | $0 | $250,000 | $250,000 |
| 2021 | $0 | $250,000 | $0 | $250,000 | $250,000 |
| 2020 | $0 | $225,000 | $0 | $225,000 | $225,000 |
| 2019 | $0 | $250,000 | $0 | $250,000 | $250,000 |
| 2018 | $0 | $200,000 | $0 | $200,000 | $200,000 |
| 2017 | $0 | $200,000 | $0 | $200,000 | $200,000 |
| 2016 | $0 | $200,000 | $0 | $200,000 | $200,000 |
| 2015 | $0 | $200,000 | $0 | $200,000 | $200,000 |
| 2014 | $0 | $200,000 | $0 | $200,000 | $200,000 |
| 2013 | $0 | $203,658 | $0 | $203,658 | $203,658 |
| 2012 | $0 | $203,658 | $0 | $203,658 | $203,658 |
| 2011 | $0 | $203,658 | $0 | $203,658 | $203,658 |
| 2010 | $0 | $203,658 | $0 | $203,658 | $203,658 |
| 2009 | $0 | $237,070 | $0 | $237,070 | $237,070 |
| 2008 | $0 | $237,070 | $0 | $237,070 | $237,070 |
| 2007 | $0 | $261,826 | $0 | $261,826 | $261,826 |
Deed and Sales History
| 1 | 10/04/2017 | WD | Warranty Deed | GRETCHEN, PATRICK C | CUBIAS, LUCY EMERALD | | | $200,000.00 | 31554 | 4432322 |
| 2 | 07/23/2002 | WD | Warranty Deed | WALDEN, STEPHEN M | GRETCHEN, PATRICK C | | | $130,000.00 | 22989 | 4027137 |
| 3 | 01/01/1900 | OTHER | Other - Misc. Documents | Unknown | WALDEN, STEPHEN M | | | $0.00 | 1666 | 90005396 |
Payout Agreement
| No payout information available.. |