Property
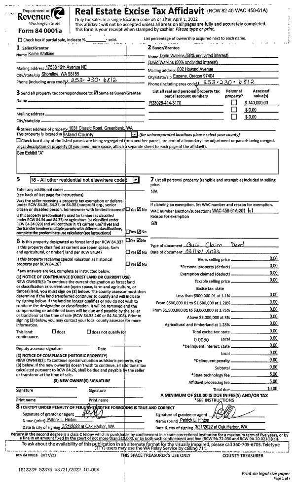
Account |
| Property ID: | 73306 | Abbreviated Legal Description: | 20 - IN GL 3 & ADJ TIDES AS FOL:BG NE CR GL3 W1301.29' S8*E21.9' W11' S8*E60.54' TPB W120' S8*E60.54' E120' N8*W60.54' TPB |
| Geographic ID: | R23103-384-2580 | Agent Code: | |
| Type: | Real | | |
| Tax Area: | 510 - APPRAISER-Stan/Cam Schl Dist, improved & 1 acre or less | Land Use Code | 11 |
| Open Space: | N | DFL | N |
| Historic Property: | N | Remodel Property: | N |
| Multi-Family Redevelopment: | N | | |
| Township: | 31 | Section: | 03 |
| Range: | R2 |
Location |
| Address: | 1112 ROCKAWAY LN CAMANO ISLAND, WA 98282 | Mapsco: | |
| Neighborhood: | Cycle 5 | Map ID: | 458 |
| Neighborhood CD: | 5 |
Owner |
| Name: | HOLT, STEPHEN M | Owner ID: | 299802 |
| Mailing Address: | WHITNEY A HOLT 13600 212TH DR NE WOODINVILLE, WA 98077 | % Ownership: | 100.0000000000% |
| | | Exemptions: | |
Taxes and Assessment Details
Values
| (+) Improvement Homesite Value: | + | $0 | |
| (+) Improvement Non-Homesite Value: | + | $460,851 | |
| (+) Land Homesite Value: | + | $0 | |
| (+) Land Non-Homesite Value: | + | $525,600 | |
| (+) Curr Use (HS): | + | $0 | $0 |
| (+) Curr Use (NHS): | + | $0 | $0 |
| | | -------------------------- | |
| (=) Market Value: | = | $986,451 | |
| (–) Productivity Loss: | – | $0 | |
| | | -------------------------- | |
| (=) Subtotal: | = | $986,451 | |
| (+) Senior Appraised Value: | + | $0 | |
| (+) Non-Senior Appraised Value: | + | $986,451 | |
| | | -------------------------- | |
| (=) Total Appraised Value: | = | $986,451 | |
| (–) Senior Exemption Loss: | – | $0 | |
| (–) Exemption Loss: | – | $0 | |
| | | -------------------------- | |
| (=) Taxable Value: | = | $986,451 | |
Taxing Jurisdiction
| Owner: | HOLT, STEPHEN M | | |
| % Ownership: | 100.0000000000% | | |
| Total Value: | $986,451 | | |
| Tax Area: | 510 - APPRAISER-Stan/Cam Schl Dist, improved & 1 acre or less |
| CF | Conservation Futures | 0.0316035091 | $986,451 | $986,451 | $31.18 | | |
| EMS1 | Fire & Rescue Dist #1 Camano GEN (EMS) | 0.3677864386 | $986,451 | $986,451 | $362.80 | | |
| FIRE1 | Fire & Rescue Dist #1 Camano GEN | 1.2502910536 | $986,451 | $986,451 | $1,233.35 | | |
| FIRE1BOND | Fire & Rescue Dist #1 Camano BOND | 0.1570001679 | $986,451 | $986,451 | $154.87 | | |
| CE | County Current Expense | 0.3708482477 | $986,451 | $986,451 | $365.82 | | |
| CR | County Roads | 0.4584763726 | $986,451 | $986,451 | $452.26 | | |
| LCIB | Library Sno-Isle BOND (Camano Island) | 0.0396325772 | $986,451 | $986,451 | $39.10 | | |
| LIB | Library Sno-Isle GEN | 0.3153421757 | $986,451 | $986,451 | $311.07 | | |
| SCH205_401 | School 205-401 Enrichment | 1.2698420524 | $986,451 | $986,451 | $1,252.64 | | |
| SCH205BOND | School 205-401 BOND | 0.9396497583 | $986,451 | $986,451 | $926.92 | | |
| ST | State School | 1.3035497053 | $986,451 | $986,451 | $1,285.89 | | |
| ST2 | State School Part 2 | 0.8169543533 | $986,451 | $986,451 | $805.89 | | |
| | Total Tax Rate: | 7.3209764117 | | | | | |
| | | | | Taxes w/Current Exemptions: | $7,221.79 | | |
| | | | | Taxes w/o Exemptions: | $7,221.79 | | |
Improvement / Building
| Improvement #1: | RESIDENTIAL | State Code: | Y | 2053.0 sqft | Value: | $460,851 |
| Bathrooms: | 1.75 | Bedrooms: | 2 | | Ceiling: | DRYWALL PAINTED | Exterior Wall/Cover: | WOOD SIDING | | Floor Covering: | CERAMIC TILE/CPT 40-60 | Floor Structure: | WOOD W/SUBFLOOR | | Foundation: | CONCRETE | Heating: | RADIANT FLOOR | | Interior Finish: | DRYWALL PAINT | Plumbing Fixture Cnt: | 12 | | Roof Slope: | 6" IN 12" | Roof Structure/Cover: | CJ ASPHALT |
|
| | Type | Description | Class CD | Sub Class CD | Year Built | Area |
| | BAS | BASE/MAIN FLOOR | 4 | 0 | 1996 | 928.0 |
| | AGR | ATTACHED GARAGE | 4 | 0 | 1996 | 64.0 |
| | BIG | BUILT IN GARAGE | 4 | 0 | 1996 | 192.0 |
| | UPS | UPPER STORY | 4 | 0 | 1996 | 1125.0 |
| | OWP | OPEN WOOD PORCH W/STEPS | 4 | 0 | 1996 | 102.0 |
| | OWP | OPEN WOOD PORCH W/STEPS | 4 | 0 | 1996 | 288.0 |
Sketch
Property Image
Land
| 1 | LB | LOW BANK | 0.1600 | 6969.60 | 60.00 | 0.00 | 1.00 | $525,000 | $0 |
| 2 | 55 | TIDES | 0.0000 | 0.00 | 60.00 | 0.00 | 1.00 | $600 | $0 |
Roll Value History
| 2026 | N/A | N/A | N/A | N/A | N/A |
| 2025 | $460,851 | $525,600 | $0 | $986,451 | $986,451 |
| 2024 | $466,133 | $525,600 | $0 | $991,733 | $991,733 |
| 2023 | $471,414 | $525,600 | $0 | $997,014 | $997,014 |
| 2022 | $430,474 | $500,600 | $0 | $931,074 | $931,074 |
| 2021 | $350,407 | $350,600 | $0 | $701,007 | $701,007 |
| 2020 | $341,407 | $350,600 | $0 | $692,007 | $692,007 |
| 2019 | $255,941 | $300,600 | $0 | $556,541 | $556,541 |
| 2018 | $256,682 | $250,600 | $0 | $507,282 | $507,282 |
| 2017 | $258,166 | $250,600 | $0 | $508,766 | $508,766 |
| 2016 | $261,133 | $250,600 | $0 | $511,733 | $511,733 |
| 2015 | $222,602 | $250,600 | $0 | $473,202 | $473,202 |
| 2014 | $225,347 | $250,600 | $0 | $475,947 | $475,947 |
| 2013 | $228,093 | $291,766 | $0 | $519,859 | $519,859 |
| 2012 | $230,838 | $291,766 | $0 | $522,604 | $522,604 |
| 2011 | $180,400 | $334,600 | $0 | $515,000 | $515,000 |
| 2010 | $242,868 | $364,558 | $0 | $607,426 | $607,426 |
| 2009 | $252,906 | $391,887 | $0 | $644,793 | $644,793 |
| 2008 | $256,378 | $273,135 | $0 | $529,513 | $529,513 |
| 2007 | $267,746 | $272,715 | $0 | $540,461 | $540,461 |
Deed and Sales History
| 1 | 06/14/2021 | WD | Warranty Deed | RAKES, STEVEN ELDEN | HOLT, STEPHEN M | | | $1,283,800.00 | 48700 | 4521964 |
| 2 | 08/25/2011 | WD | Warranty Deed | KITCHEL, LEE A & VIRGINIA M | RAKES, STEVEN ELDEN | | | $500,000.00 | 5392 | 4300334 |
| 3 | 01/01/1900 | OTHER | Other - Misc. Documents | Unknown | KITCHEL, LEE A & VIRGINIA M | | | $0.00 | 0 | 0 |
Payout Agreement
| No payout information available.. |