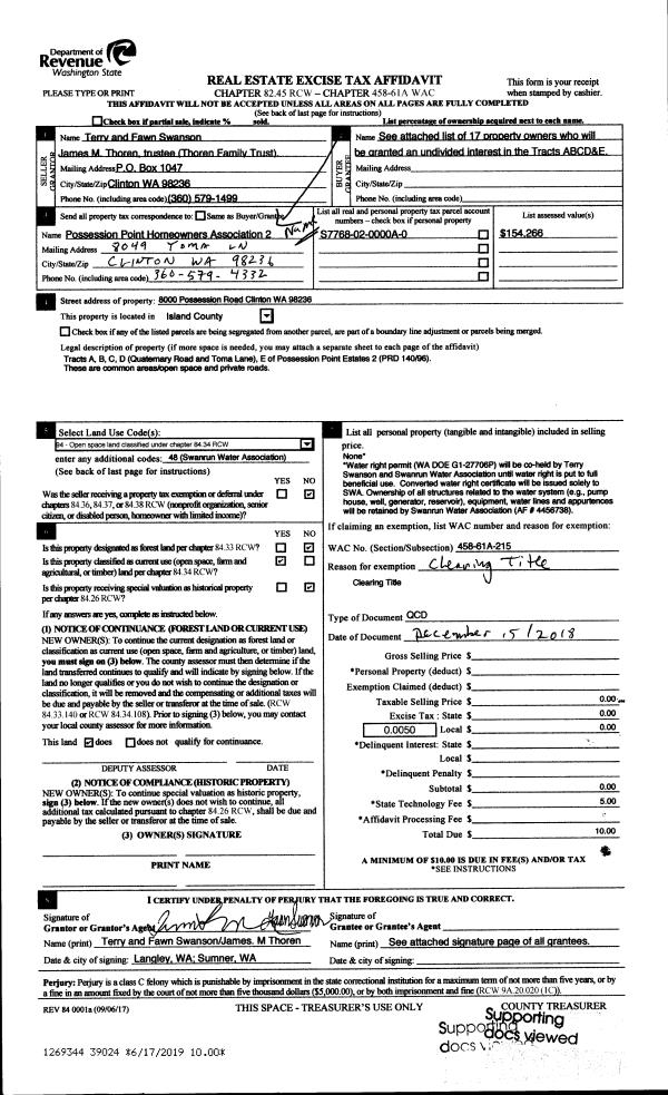
Property
Account |
| Property ID: | 733549 | Abbreviated Legal Description: | HIGHLANDS WEST #5 LOT 20 |
| Geographic ID: | S7132-05-00020-0 | Agent Code: | |
| Type: | Real | | |
| Tax Area: | 100 - APPRAISER-OH Schl Dist, in OH | Land Use Code | 11 |
| Open Space: | N | DFL | N |
| Historic Property: | N | Remodel Property: | N |
| Multi-Family Redevelopment: | N | | |
| Township: | | Section: | |
| Range: | |
Location |
| Address: | 325 SW ROODZANT ST OAK HARBOR, WA 98277 | Mapsco: | |
| Neighborhood: | Cycle 1 | Map ID: | 97 |
| Neighborhood CD: | 1 |
Owner |
| Name: | CISNEROS JR, RAMON | Owner ID: | 300396 |
| Mailing Address: | 325 SW ROODZANT ST OAK HARBOR, WA 98277 | % Ownership: | 100.0000000000% |
| | | Exemptions: | |
Taxes and Assessment Details
Values
| (+) Improvement Homesite Value: | + | $0 | |
| (+) Improvement Non-Homesite Value: | + | $245,096 | |
| (+) Land Homesite Value: | + | $0 | |
| (+) Land Non-Homesite Value: | + | $210,000 | |
| (+) Curr Use (HS): | + | $0 | $0 |
| (+) Curr Use (NHS): | + | $0 | $0 |
| | | -------------------------- | |
| (=) Market Value: | = | $455,096 | |
| (–) Productivity Loss: | – | $0 | |
| | | -------------------------- | |
| (=) Subtotal: | = | $455,096 | |
| (+) Senior Appraised Value: | + | $0 | |
| (+) Non-Senior Appraised Value: | + | $455,096 | |
| | | -------------------------- | |
| (=) Total Appraised Value: | = | $455,096 | |
| (–) Senior Exemption Loss: | – | $0 | |
| (–) Exemption Loss: | – | $0 | |
| | | -------------------------- | |
| (=) Taxable Value: | = | $455,096 | |
Taxing Jurisdiction
| Owner: | CISNEROS JR, RAMON | | |
| % Ownership: | 100.0000000000% | | |
| Total Value: | $455,096 | | |
| Tax Area: | 100 - APPRAISER-OH Schl Dist, in OH |
| CF | Conservation Futures | 0.0316035091 | $455,096 | $455,096 | $14.38 | | |
| CEM1 | Cemetery #1 | 0.0040320932 | $455,096 | $455,096 | $1.83 | | |
| COH | City of Oak Harbor | 2.3001546061 | $455,096 | $455,096 | $1,046.79 | | |
| OAKBOND | City of Oak Harbor BOND | 0.1926904192 | $455,096 | $455,096 | $87.69 | | |
| HOBOND | Hospital BOND | 0.1910887512 | $455,096 | $455,096 | $86.96 | | |
| HOGEN | Hospital GEN | 0.3902502903 | $455,096 | $455,096 | $177.60 | | |
| CE | County Current Expense | 0.3708482477 | $455,096 | $455,096 | $168.77 | | |
| ISLANDEMS | Hospital GEN (EMS) | 0.5000000000 | $455,096 | $455,096 | $227.55 | | |
| LIB | Library Sno-Isle GEN | 0.3153421757 | $455,096 | $455,096 | $143.51 | | |
| NWHIDPRMT | P & R N Whidbey GEN | 0.2004466701 | $455,096 | $455,096 | $91.22 | | |
| SCH201MO | School 201 Enrichment | 1.8559231640 | $455,096 | $455,096 | $844.62 | | |
| ST | State School | 1.3035497053 | $455,096 | $455,096 | $593.24 | | |
| ST2 | State School Part 2 | 0.8169543533 | $455,096 | $455,096 | $371.79 | | |
| | Total Tax Rate: | 8.4728839852 | | | | | |
| | | | | Taxes w/Current Exemptions: | $3,855.95 | | |
| | | | | Taxes w/o Exemptions: | $3,855.95 | | |
Improvement / Building
| Improvement #1: | RESIDENTIAL | State Code: | Y | 1275.7 sqft | Value: | $245,096 |
| Bathrooms: | 1.75 | Bedrooms: | 3 | | Ceiling: | DRYWALL PAINTED | Exterior Wall/Cover: | PLY/HARDBOARD T-111 | | Floor Covering: | CARPET/VINYL 60-40 | Floor Structure: | WOOD W/SUBFLOOR | | Foundation: | CONCRETE | Heating: | FHA GAS | | Interior Finish: | DRYWALL PAINT | Plumbing Fixture Cnt: | 9 | | Roof Slope: | 6" IN 12" | Roof Structure/Cover: | CJ ASPHALT |
|
| | Type | Description | Class CD | Sub Class CD | Year Built | Area |
| | BAS | BASE/MAIN FLOOR | 3 | 0 | 1995 | 1275.7 |
| | OP1 | OPEN PORCH SLAB | 3 | 0 | 1995 | 240.3 |
| | AGR | ATTACHED GARAGE | 3 | 0 | 1995 | 511.2 |
| | OWC | OPEN WOOD PORCH W/STEPS/ROOF/C | 3 | 0 | 1995 | 87.6 |
Sketch
Property Image
Land
| 1 | 14 | SQ (08001-12000) | 0.0000 | 0.00 | 0.00 | 0.00 | 1.00 | $210,000 | $0 |
Roll Value History
| 2026 | N/A | N/A | N/A | N/A | N/A |
| 2025 | $245,096 | $210,000 | $0 | $455,096 | $455,096 |
| 2024 | $248,112 | $190,000 | $0 | $438,112 | $438,112 |
| 2023 | $251,128 | $190,000 | $0 | $441,128 | $441,128 |
| 2022 | $230,140 | $180,000 | $0 | $410,140 | $410,140 |
| 2021 | $202,489 | $120,000 | $0 | $322,489 | $322,489 |
| 2020 | $196,973 | $100,000 | $0 | $296,973 | $296,973 |
| 2019 | $135,921 | $150,000 | $0 | $285,921 | $285,921 |
| 2018 | $136,319 | $130,000 | $0 | $266,319 | $266,319 |
| 2017 | $136,495 | $110,000 | $0 | $246,495 | $246,495 |
| 2016 | $112,739 | $90,000 | $0 | $202,739 | $202,739 |
| 2015 | $114,184 | $70,000 | $0 | $184,184 | $184,184 |
| 2014 | $115,630 | $55,000 | $0 | $170,630 | $170,630 |
| 2013 | $117,075 | $55,000 | $0 | $172,075 | $172,075 |
| 2012 | $118,521 | $68,000 | $0 | $186,521 | $186,521 |
| 2011 | $120,488 | $68,000 | $0 | $188,488 | $188,488 |
| 2010 | $124,422 | $68,000 | $0 | $192,422 | $192,422 |
| 2009 | $130,087 | $75,000 | $0 | $205,087 | $205,087 |
| 2008 | $132,022 | $100,000 | $0 | $232,022 | $232,022 |
| 2007 | $133,955 | $100,000 | $0 | $233,955 | $233,955 |
Deed and Sales History
| 1 | 07/23/2021 | QCD | Quit Claim Deed | CISNEROS JR, RAMON | CISNEROS JR, RAMON | | | $0.00 | 49382 | 4525585 |
| 2 | 06/12/2019 | WD | Warranty Deed | HITTLE, ERIN E | CISNEROS JR, RAMON | | | $335,000.00 | 39070 | 4465785 |
| 3 | 10/04/2016 | WD | Warranty Deed | FERRELL, MICHAEL V | HITTLE, ERIN E | | | $259,500.00 | 26471 | 4408876 |
| 4 | 11/17/2009 | WD | Warranty Deed | GRAVELY JR, DONALD L | FERRELL, MICHAEL V | | | $222,000.00 | 92869 | 4264155 |
| 5 | 05/14/2003 | WD | Warranty Deed | GENTRY, GREGORY E | GRAVELY JR, DONALD L | | | $158,000.00 | 32078 | 4059414 |
| 6 | 08/16/1999 | ESTSEPPROP | Establish Separate Property | GENTRY, GREGORY E | GENTRY, GREGORY E | | | $0.00 | 93372 | 99019356 |
| 7 | 05/18/1999 | QCD | Quit Claim Deed | GENTRY, GREGORY E | GENTRY, GREGORY E | | | $0.00 | 91915 | 99012094 |
| 8 | 03/01/1996 | WD | Warranty Deed | VANDERVOET, LESLIE R | GENTRY, GREGORY E | | | $136,900.00 | 60936 | 96004910 |
| 9 | 10/01/1995 | WD | Warranty Deed | K, & E | VANDERVOET, LESLIE R | | | $37,667.00 | 53688 | 95016936 |
| 10 | 01/01/1900 | OTHER | Other - Misc. Documents | Unknown | K, & E | | | $0.00 | 51658 | 95007837 |
Payout Agreement
| No payout information available.. |