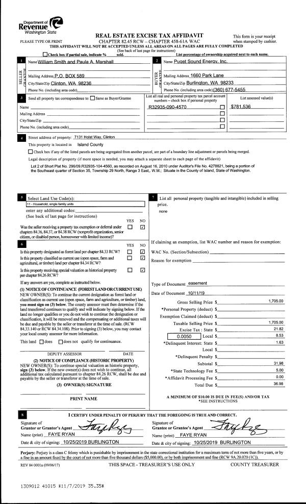
Property
Account |
| Property ID: | 733763 | Abbreviated Legal Description: | 134 - IN GL2: PT FOLL DESC LY S OF RD: BG 4/CR SECS 10 |
| Geographic ID: | R22911-246-0210 | Agent Code: | |
| Type: | Real | | |
| Tax Area: | 760 - APPRAISER-S Whid Schl Dist, Special District, improved & less than 1 acre | Land Use Code | 11 |
| Open Space: | N | DFL | N |
| Historic Property: | N | Remodel Property: | N |
| Multi-Family Redevelopment: | N | | |
| Township: | 29 | Section: | 11 |
| Range: | R2 |
Location |
| Address: | 1612 STEWART RD FREELAND, WA 98249 | Mapsco: | |
| Neighborhood: | Cycle 3 | Map ID: | 313 |
| Neighborhood CD: | 3 |
Owner |
| Name: | BEVERS, CHERIE Y | Owner ID: | 294030 |
| Mailing Address: | 20610 223RD ST SE MONROE, WA 98272 | % Ownership: | 100.0000000000% |
| | | Exemptions: | |
Taxes and Assessment Details
Values
| (+) Improvement Homesite Value: | + | $0 | |
| (+) Improvement Non-Homesite Value: | + | $33,427 | |
| (+) Land Homesite Value: | + | $0 | |
| (+) Land Non-Homesite Value: | + | $340,000 | |
| (+) Curr Use (HS): | + | $0 | $0 |
| (+) Curr Use (NHS): | + | $0 | $0 |
| | | -------------------------- | |
| (=) Market Value: | = | $373,427 | |
| (–) Productivity Loss: | – | $0 | |
| | | -------------------------- | |
| (=) Subtotal: | = | $373,427 | |
| (+) Senior Appraised Value: | + | $0 | |
| (+) Non-Senior Appraised Value: | + | $373,427 | |
| | | -------------------------- | |
| (=) Total Appraised Value: | = | $373,427 | |
| (–) Senior Exemption Loss: | – | $0 | |
| (–) Exemption Loss: | – | $0 | |
| | | -------------------------- | |
| (=) Taxable Value: | = | $373,427 | |
Taxing Jurisdiction
| Owner: | BEVERS, CHERIE Y | | |
| % Ownership: | 100.0000000000% | | |
| Total Value: | $373,427 | | |
| Tax Area: | 760 - APPRAISER-S Whid Schl Dist, Special District, improved & less than 1 acre |
| CF | Conservation Futures | 0.0316035091 | $373,427 | $373,427 | $11.80 | | |
| FIRE3 | Fire & Rescue Dist #3 S Whidbey GEN | 1.2004855531 | $373,427 | $373,427 | $448.29 | | |
| HOBOND | Hospital BOND | 0.1910887512 | $373,427 | $373,427 | $71.36 | | |
| HOGEN | Hospital GEN | 0.3902502903 | $373,427 | $373,427 | $145.73 | | |
| CE | County Current Expense | 0.3708482477 | $373,427 | $373,427 | $138.48 | | |
| CR | County Roads | 0.4584763726 | $373,427 | $373,427 | $171.21 | | |
| ISLANDEMS | Hospital GEN (EMS) | 0.5000000000 | $373,427 | $373,427 | $186.71 | | |
| LIB | Library Sno-Isle GEN | 0.3153421757 | $373,427 | $373,427 | $117.76 | | |
| PORTWHID | Port of S Whidbey GEN | 0.1094540357 | $373,427 | $373,427 | $40.87 | | |
| SCH206BOND | School 206 BOND | 0.3161759235 | $373,427 | $373,427 | $118.07 | | |
| SCH206MO | School 206 Enrichment | 0.4547169547 | $373,427 | $373,427 | $169.80 | | |
| ST | State School | 1.3035497053 | $373,427 | $373,427 | $486.78 | | |
| ST2 | State School Part 2 | 0.8169543533 | $373,427 | $373,427 | $305.07 | | |
| SWHIDPRBD | P & R S Whidbey BOND | 0.0152817568 | $373,427 | $373,427 | $5.71 | | |
| SWHIDPRBD2 | P & R S Whidbey BOND2 | 0.0138911264 | $373,427 | $373,427 | $5.19 | | |
| SWHIDPRMT | P & R S Whidbey GEN | 0.2053334452 | $373,427 | $373,427 | $76.68 | | |
| | Total Tax Rate: | 6.6934522006 | | | | | |
| | | | | Taxes w/Current Exemptions: | $2,499.51 | | |
| | | | | Taxes w/o Exemptions: | $2,499.51 | | |
Improvement / Building
| Improvement #1: | MANUFACTURED HOME | State Code: | Y | 1440.0 sqft | Value: | $33,427 |
| Bathrooms: | 0 | Bedrooms: | 0 | | Ceiling: | PLASTER PAINTED | Cooling: | EVAP NO DUCT | | Exterior Wall/Cover: | VINYL | Floor Covering: | CARPET 100% | | Floor Structure: | SLAB ON GRADE | Foundation: | SLAB | | Heating: | FHA ELECTRIC | Interior Finish: | PLASTER | | Plumbing Fixture Cnt: | 1 | Roof Slope: | FLAT | | Roof Structure/Cover: | CJ ALUMINIUM HEAVY |   |   |
|
| | Type | Description | Class CD | Sub Class CD | Year Built | Area |
| | BAS | BASE/MAIN FLOOR | 3 | 0 | 1978 | 1440.0 |
| | ENP | ENCLOSED PORCH | 3 | 0 | 1978 | 328.0 |
| | ENP | ENCLOSED PORCH | 3 | 0 | 1978 | 378.0 |
| | OWP | OPEN WOOD PORCH W/STEPS | 3 | 0 | 1978 | 65.0 |
| | oSIT | Site Improvements | 3 | 0 | 1978 | 0.0 |
Sketch
Property Image
Land
| 1 | 15 | SQ (12001-21780) | 0.0000 | 0.00 | 0.00 | 0.00 | 1.00 | $340,000 | $0 |
Roll Value History
| 2026 | N/A | N/A | N/A | N/A | N/A |
| 2025 | $33,427 | $340,000 | $0 | $373,427 | $373,427 |
| 2024 | $34,605 | $320,000 | $0 | $354,605 | $354,605 |
| 2023 | $36,959 | $360,000 | $0 | $396,959 | $396,959 |
| 2022 | $35,020 | $280,000 | $0 | $315,020 | $315,020 |
| 2021 | $32,982 | $190,000 | $0 | $222,982 | $222,982 |
| 2020 | $33,069 | $170,000 | $0 | $203,069 | $203,069 |
| 2019 | $24,310 | $190,000 | $0 | $214,310 | $214,310 |
| 2018 | $25,019 | $150,000 | $0 | $175,019 | $175,019 |
| 2017 | $26,437 | $140,000 | $0 | $166,437 | $166,437 |
| 2016 | $27,145 | $90,000 | $0 | $117,145 | $117,145 |
| 2015 | $28,563 | $90,000 | $0 | $118,563 | $118,563 |
| 2014 | $29,981 | $90,000 | $0 | $119,981 | $119,981 |
| 2013 | $33,485 | $59,000 | $0 | $92,485 | $92,485 |
| 2012 | $39,097 | $106,250 | $0 | $145,347 | $145,347 |
| 2011 | $40,507 | $125,000 | $0 | $165,507 | $66,203 |
| 2010 | $42,881 | $125,000 | $0 | $167,881 | $67,152 |
| 2009 | $45,421 | $132,255 | $0 | $177,676 | $177,676 |
| 2008 | $46,611 | $132,661 | $0 | $179,272 | $115,571 |
| 2007 | $49,304 | $91,565 | $0 | $140,869 | $46,228 |
Deed and Sales History
| 1 | 04/23/2020 | MANHOME | Manufactured Home | KELZER, KARL QUINTIN | BEVERS, CHERIE Y | | | $24,310.00 | 42821 | |
| 2 | 04/14/2020 | WD | Warranty Deed | KELZER, KARL QUINTIN | BEVERS, CHERIE Y | | | $250,690.00 | 42820 | 4485344 |
| 3 | 07/16/2012 | WD | Warranty Deed | MACK, MARY LOU | KELZER, KARL QUINTIN | | | $130,000.00 | 8218 | 4319242 |
|   | |
| 4 | 07/22/2009 | QCD | Quit Claim Deed | MACK, WILLIAM A | MACK, MARY LOU | | | $0.00 | 91806 | 4257889 |
| 5 | 02/01/1996 | QCD | Quit Claim Deed | MACK, WILLIAM A | MACK, WILLIAM A | | | $0.00 | 60361 | 96001943 |
| 6 | 02/01/1996 | QCD | Quit Claim Deed | MACK, WILLIAM A | MACK, WILLIAM A | | | $0.00 | 60552 | 96002967 |
| 7 | 02/01/1996 | QCD | Quit Claim Deed | MACK, WILLIAM A | MACK, WILLIAM A | | | $0.00 | 60361 | 96001943 |
| 8 | 02/01/1996 | QCD | Quit Claim Deed | MACK, WILLIAM A | MACK, WILLIAM A | | | $0.00 | 60552 | 96002967 |
| 9 | 01/01/1900 | OTHER | Other - Misc. Documents | Unknown | MACK, WILLIAM A | | | $28,500.00 | 0 | 0 |
| 10 | 01/01/1900 | OTHER | Other - Misc. Documents | MACK, WILLIAM A | MACK, WILLIAM A | | | $0.00 | 0 | 0 |
Payout Agreement
| No payout information available.. |