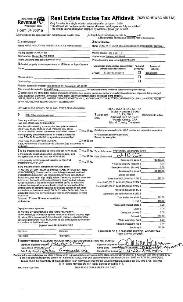
Property
Account |
| Property ID: | 733816 | Abbreviated Legal Description: | PT SE DESC: BG NWCR S/2 S/2 NW SE N89*E239.96'TPB N89*E 234.82' S15*E440.76' S34*E 387.25' N88*W374.16' N27*W 327.87' N05*W448.93'TPB EX N30'TO IS CO AF#193154 FR 148-3310 & 098-3090 |
| Geographic ID: | R33231-123-3100 | Agent Code: | |
| Type: | Real | | |
| Tax Area: | 592 - APPRAISER-Stan/Cam Schl Dist, Special Dist, improved, greater than 1 acre | Land Use Code | 11 |
| Open Space: | N | DFL | N |
| Historic Property: | N | Remodel Property: | N |
| Multi-Family Redevelopment: | N | | |
| Township: | 32 | Section: | 31 |
| Range: | R3 |
Location |
| Address: | 220 DURR RD CAMANO ISLAND, WA 98282 | Mapsco: | |
| Neighborhood: | Cycle 5 | Map ID: | 993 |
| Neighborhood CD: | 5 |
Owner |
| Name: | WICKSTROM, BLAKE | Owner ID: | 267909 |
| Mailing Address: | MONICA WICKSTROM 220 DURR RD CAMANO ISLAND, WA 98282 | % Ownership: | 100.0000000000% |
| | | Exemptions: | |
Taxes and Assessment Details
Values
| (+) Improvement Homesite Value: | + | $0 | |
| (+) Improvement Non-Homesite Value: | + | $549,467 | |
| (+) Land Homesite Value: | + | $0 | |
| (+) Land Non-Homesite Value: | + | $360,000 | |
| (+) Curr Use (HS): | + | $0 | $0 |
| (+) Curr Use (NHS): | + | $0 | $0 |
| | | -------------------------- | |
| (=) Market Value: | = | $909,467 | |
| (–) Productivity Loss: | – | $0 | |
| | | -------------------------- | |
| (=) Subtotal: | = | $909,467 | |
| (+) Senior Appraised Value: | + | $0 | |
| (+) Non-Senior Appraised Value: | + | $909,467 | |
| | | -------------------------- | |
| (=) Total Appraised Value: | = | $909,467 | |
| (–) Senior Exemption Loss: | – | $0 | |
| (–) Exemption Loss: | – | $0 | |
| | | -------------------------- | |
| (=) Taxable Value: | = | $909,467 | |
Taxing Jurisdiction
| Owner: | WICKSTROM, BLAKE | | |
| % Ownership: | 100.0000000000% | | |
| Total Value: | $909,467 | | |
| Tax Area: | 592 - APPRAISER-Stan/Cam Schl Dist, Special Dist, improved, greater than 1 acre |
| CF | Conservation Futures | 0.0316035091 | $909,467 | $909,467 | $28.74 | | |
| EMS1 | Fire & Rescue Dist #1 Camano GEN (EMS) | 0.3677864386 | $909,467 | $909,467 | $334.49 | | |
| FIRE1 | Fire & Rescue Dist #1 Camano GEN | 1.2502910536 | $909,467 | $909,467 | $1,137.10 | | |
| FIRE1BOND | Fire & Rescue Dist #1 Camano BOND | 0.1570001679 | $909,467 | $909,467 | $142.79 | | |
| CE | County Current Expense | 0.3708482477 | $909,467 | $909,467 | $337.27 | | |
| CR | County Roads | 0.4584763726 | $909,467 | $909,467 | $416.97 | | |
| LCIB | Library Sno-Isle BOND (Camano Island) | 0.0396325772 | $909,467 | $909,467 | $36.04 | | |
| LIB | Library Sno-Isle GEN | 0.3153421757 | $909,467 | $909,467 | $286.79 | | |
| SCH205_401 | School 205-401 Enrichment | 1.2698420524 | $909,467 | $909,467 | $1,154.88 | | |
| SCH205BOND | School 205-401 BOND | 0.9396497583 | $909,467 | $909,467 | $854.58 | | |
| ST | State School | 1.3035497053 | $909,467 | $909,467 | $1,185.54 | | |
| ST2 | State School Part 2 | 0.8169543533 | $909,467 | $909,467 | $742.99 | | |
| | Total Tax Rate: | 7.3209764117 | | | | | |
| | | | | Taxes w/Current Exemptions: | $6,658.18 | | |
| | | | | Taxes w/o Exemptions: | $6,658.18 | | |
Improvement / Building
| Improvement #1: | RESIDENTIAL | State Code: | Y | 2350.0 sqft | Value: | $549,467 |
| Bathrooms: | 2.5 | Bedrooms: | 3 | | Ceiling: | DRYWALL PAINTED | Cooling: | HEAT PUMP/CONV/V | | Exterior Wall/Cover: | CEMENT FIBER | Floor Covering: | CARPET/VINYL 60-40 | | Floor Structure: | WOOD W/SUBFLOOR | Foundation: | CONCRETE | | Interior Finish: | DRYWALL PAINT | Plumbing Fixture Cnt: | 14 | | Roof Slope: | 6" IN 12" | Roof Structure/Cover: | CJ ASPHALT |
|
| | Type | Description | Class CD | Sub Class CD | Year Built | Area |
| | BAS | BASE/MAIN FLOOR | 4 | 0 | 2015 | 1384.0 |
| | OP4 | OPEN PORCH W/CEILING-ROOF | 4 | 0 | 2015 | 70.0 |
| | OWC | OPEN WOOD PORCH W/STEPS/ROOF/C | 4 | 0 | 2015 | 288.0 |
| | BIG | BUILT IN GARAGE | 4 | 0 | 2015 | 624.0 |
| | OWP | OPEN WOOD PORCH W/STEPS | 4 | 0 | 2015 | 204.0 |
| | UPS | UPPER STORY | 4 | 0 | 2015 | 966.0 |
| | DGR | DETACHED GARAGE | 4 | 0 | 2015 | 1124.0 |
| | CPD | OPEN CARPORT DIRT FLOOR | 4 | 0 | 2015 | 384.0 |
Sketch
Property Image
Land
| 1 | 32 | AC (03.01-09.99) | 5.0000 | 0.00 | 0.00 | 0.00 | 1.00 | $360,000 | $0 |
Roll Value History
| 2026 | N/A | N/A | N/A | N/A | N/A |
| 2025 | $549,467 | $360,000 | $0 | $909,467 | $909,467 |
| 2024 | $553,702 | $340,000 | $0 | $893,702 | $893,702 |
| 2023 | $558,241 | $320,000 | $0 | $878,241 | $878,241 |
| 2022 | $509,602 | $300,000 | $0 | $809,602 | $809,602 |
| 2021 | $443,122 | $230,000 | $0 | $673,122 | $673,122 |
| 2020 | $429,899 | $190,000 | $0 | $619,899 | $619,899 |
| 2019 | $322,311 | $220,000 | $0 | $542,311 | $542,311 |
| 2018 | $323,147 | $190,000 | $0 | $513,147 | $513,147 |
| 2017 | $324,820 | $150,000 | $0 | $474,820 | $474,820 |
| 2016 | $287,174 | $135,000 | $0 | $422,174 | $422,174 |
| 2015 | $0 | $100,000 | $0 | $100,000 | $100,000 |
| 2014 | $0 | $125,000 | $0 | $125,000 | $125,000 |
| 2013 | $0 | $120,000 | $0 | $120,000 | $120,000 |
| 2012 | $0 | $120,000 | $0 | $120,000 | $120,000 |
| 2011 | $0 | $120,000 | $0 | $120,000 | $120,000 |
| 2010 | $0 | $120,000 | $0 | $120,000 | $120,000 |
| 2009 | $0 | $150,000 | $0 | $150,000 | $150,000 |
| 2008 | $0 | $175,000 | $0 | $175,000 | $175,000 |
| 2007 | $0 | $160,000 | $0 | $160,000 | $160,000 |
Deed and Sales History
| 1 | 09/23/2014 | WD | Warranty Deed | DAVIS, CALVIN M | WICKSTROM, BLAKE | | | $91,000.00 | 17029 | 4366385 |
| 2 | 10/30/2010 | QCD | Quit Claim Deed | DAVIS, CHAD | DAVIS, CALVIN M | | | $0.00 | 3058 | 4286357 |
| 3 | 08/11/2008 | QCD | Quit Claim Deed | J & S INVESTMENT ONE, LLC, | DAVIS, CHAD | | | $0.00 | 82197 | 4235440 |
| 4 | 10/30/2006 | WD | Warranty Deed | DAVIS, CHAD J | J & S INVESTMENT ONE, LLC, | | | $225,000.00 | 64529 | 4184848 |
| 5 | 05/30/2001 | WD | Warranty Deed | DAVIS, CHAD J | DAVIS, CHAD J | | | $0.00 | 63191 | 4176988 |
| 6 | 05/30/2001 | WD | Warranty Deed | BARTLETT, MORGAN L | DAVIS, CHAD J | | | $75,000.00 | 12030 | 20033886 |
| 7 | 02/15/2000 | WD | Warranty Deed | BARTLETT, MORGAN L | BARTLETT, MORGAN L | | | $0.00 | 63104 | 416295 |
| 8 | 02/15/2000 | QCD | Quit Claim Deed | BARTLETT, MORGAN L | BARTLETT, MORGAN L | | | $0.00 | 622 | 20003393 |
| 9 | 02/14/2000 | WD | Warranty Deed | BARTLETT, MORGAN L | BARTLETT, MORGAN L | | | $0.00 | 63103 | 4176295 |
| 10 | 02/14/2000 | QCD | Quit Claim Deed | BARTLETT JR, MORGAN L | BARTLETT, MORGAN L | | | $0.00 | 621 | 20003392 |
| 11 | 05/28/1998 | QCD | Quit Claim Deed | BARTLETT, MORGAN L | BARTLETT JR, MORGAN L | | | $0.00 | 82624 | 98013507 |
| 12 | 02/01/1996 | OTHER | Other - Misc. Documents | BARTLETT, MORGAN L | BARTLETT, MORGAN L | | | $0.00 | 66795 | 96002005 |
| 13 | 01/01/1900 | OTHER | Other - Misc. Documents | Unknown | BARTLETT, MORGAN L | | | $0.00 | 53120 | 85012316 |
| 14 | 01/01/1900 | OTHER | Other - Misc. Documents | BARTLETT, MORGAN L | BARTLETT, MORGAN L | | | $0.00 | 82624 | 98013507 |
Payout Agreement
| No payout information available.. |