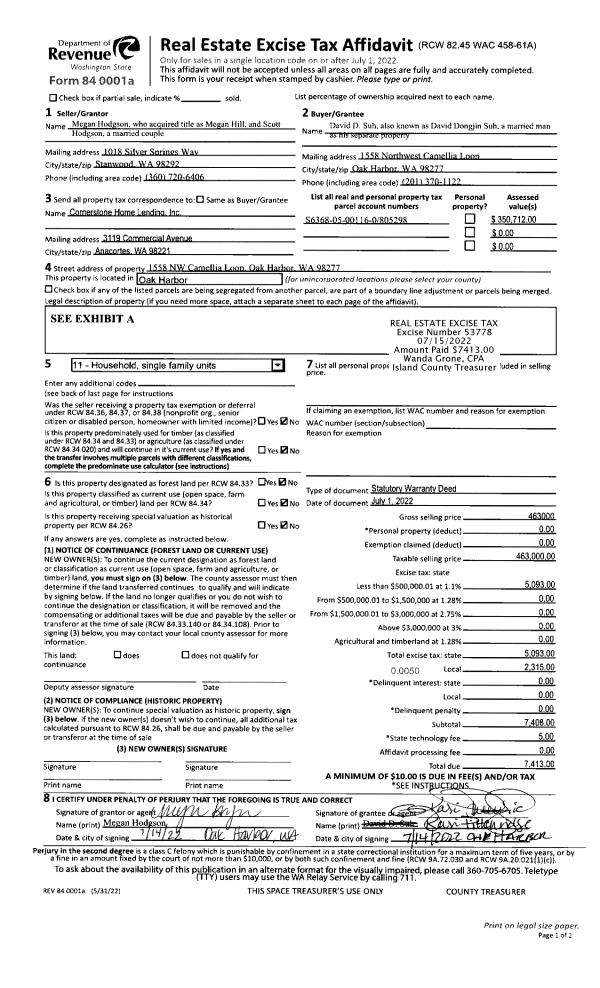
Property
Account |
| Property ID: | 733825 | Abbreviated Legal Description: | PT SE DESC: BG S/4 CR N1*E 937.01' S88*E451.64' S46*W 347.46' S0*W690.59' N89*W 215.55'TPB FR 098-3090 & 030-3090 |
| Geographic ID: | R33231-046-2750 | Agent Code: | |
| Type: | Real | | |
| Tax Area: | 592 - APPRAISER-Stan/Cam Schl Dist, Special Dist, improved, greater than 1 acre | Land Use Code | 11 |
| Open Space: | N | DFL | N |
| Historic Property: | N | Remodel Property: | N |
| Multi-Family Redevelopment: | N | | |
| Township: | 32 | Section: | 31 |
| Range: | R3 |
Location |
| Address: | 211 KOWNTEE ST CAMANO ISLAND, WA 98282 | Mapsco: | |
| Neighborhood: | Cycle 5 | Map ID: | 993 |
| Neighborhood CD: | 5 |
Owner |
| Name: | MCMURRAY, KEVIN W | Owner ID: | 258065 |
| Mailing Address: | 211 KOWNTEE ST CAMANO ISLAND, WA 98282 | % Ownership: | 100.0000000000% |
| | | Exemptions: | |
Taxes and Assessment Details
Values
| (+) Improvement Homesite Value: | + | $0 | |
| (+) Improvement Non-Homesite Value: | + | $374,193 | |
| (+) Land Homesite Value: | + | $0 | |
| (+) Land Non-Homesite Value: | + | $360,000 | |
| (+) Curr Use (HS): | + | $0 | $0 |
| (+) Curr Use (NHS): | + | $0 | $0 |
| | | -------------------------- | |
| (=) Market Value: | = | $734,193 | |
| (–) Productivity Loss: | – | $0 | |
| | | -------------------------- | |
| (=) Subtotal: | = | $734,193 | |
| (+) Senior Appraised Value: | + | $0 | |
| (+) Non-Senior Appraised Value: | + | $734,193 | |
| | | -------------------------- | |
| (=) Total Appraised Value: | = | $734,193 | |
| (–) Senior Exemption Loss: | – | $0 | |
| (–) Exemption Loss: | – | $0 | |
| | | -------------------------- | |
| (=) Taxable Value: | = | $734,193 | |
Taxing Jurisdiction
| Owner: | MCMURRAY, KEVIN W | | |
| % Ownership: | 100.0000000000% | | |
| Total Value: | $734,193 | | |
| Tax Area: | 592 - APPRAISER-Stan/Cam Schl Dist, Special Dist, improved, greater than 1 acre |
| CF | Conservation Futures | 0.0316035091 | $734,193 | $734,193 | $23.20 | | |
| EMS1 | Fire & Rescue Dist #1 Camano GEN (EMS) | 0.3677864386 | $734,193 | $734,193 | $270.03 | | |
| FIRE1 | Fire & Rescue Dist #1 Camano GEN | 1.2502910536 | $734,193 | $734,193 | $917.95 | | |
| FIRE1BOND | Fire & Rescue Dist #1 Camano BOND | 0.1570001679 | $734,193 | $734,193 | $115.27 | | |
| CE | County Current Expense | 0.3708482477 | $734,193 | $734,193 | $272.27 | | |
| CR | County Roads | 0.4584763726 | $734,193 | $734,193 | $336.61 | | |
| LCIB | Library Sno-Isle BOND (Camano Island) | 0.0396325772 | $734,193 | $734,193 | $29.10 | | |
| LIB | Library Sno-Isle GEN | 0.3153421757 | $734,193 | $734,193 | $231.52 | | |
| SCH205_401 | School 205-401 Enrichment | 1.2698420524 | $734,193 | $734,193 | $932.31 | | |
| SCH205BOND | School 205-401 BOND | 0.9396497583 | $734,193 | $734,193 | $689.88 | | |
| ST | State School | 1.3035497053 | $734,193 | $734,193 | $957.06 | | |
| ST2 | State School Part 2 | 0.8169543533 | $734,193 | $734,193 | $599.80 | | |
| | Total Tax Rate: | 7.3209764117 | | | | | |
| | | | | Taxes w/Current Exemptions: | $5,375.00 | | |
| | | | | Taxes w/o Exemptions: | $5,375.00 | | |
Improvement / Building
| Improvement #1: | RESIDENTIAL | State Code: | Y | 1680.0 sqft | Value: | $374,193 |
| Bathrooms: | 2.5 | Bedrooms: | 3 | | Ceiling: | DRYWALL PAINTED | Exterior Wall/Cover: | CEMENT FIBER | | Floor Covering: | HARDWOOD/CARP 60-40 | Floor Structure: | WOOD W/SUBFLOOR | | Foundation: | CONCRETE | Heating: | FHA ELECTRIC | | Interior Finish: | DRYWALL PAINT | Plumbing Fixture Cnt: | 12 | | Roof Slope: | 5" IN 12" | Roof Structure/Cover: | CJ ASPHALT |
|
| | Type | Description | Class CD | Sub Class CD | Year Built | Area |
| | BAS | BASE/MAIN FLOOR | 3 | 0 | 1999 | 840.0 |
| | AGR | ATTACHED GARAGE | 3 | 0 | 1999 | 528.0 |
| | UPS | UPPER STORY | 3 | 0 | 1999 | 840.0 |
| | OWP | OPEN WOOD PORCH W/STEPS | 3 | 0 | 1999 | 312.0 |
| | DGR | DETACHED GARAGE | 3 | 0 | 1999 | 1200.0 |
Sketch
Property Image
Land
| 1 | 32 | AC (03.01-09.99) | 5.0000 | 0.00 | 0.00 | 0.00 | 1.00 | $360,000 | $0 |
Roll Value History
| 2026 | N/A | N/A | N/A | N/A | N/A |
| 2025 | $374,193 | $360,000 | $0 | $734,193 | $734,193 |
| 2024 | $378,689 | $340,000 | $0 | $718,689 | $718,689 |
| 2023 | $383,183 | $320,000 | $0 | $703,183 | $703,183 |
| 2022 | $351,037 | $300,000 | $0 | $651,037 | $651,037 |
| 2021 | $298,195 | $190,000 | $0 | $488,195 | $488,195 |
| 2020 | $290,181 | $150,000 | $0 | $440,181 | $440,181 |
| 2019 | $210,882 | $190,000 | $0 | $400,882 | $400,882 |
| 2018 | $211,494 | $180,000 | $0 | $391,494 | $391,494 |
| 2017 | $212,715 | $135,000 | $0 | $347,715 | $347,715 |
| 2016 | $215,162 | $135,000 | $0 | $350,162 | $350,162 |
| 2015 | $157,138 | $100,000 | $0 | $257,138 | $257,138 |
| 2014 | $158,966 | $100,000 | $0 | $258,966 | $258,966 |
| 2013 | $160,793 | $112,000 | $0 | $272,793 | $272,793 |
| 2012 | $157,138 | $112,000 | $0 | $269,138 | $269,138 |
| 2011 | $158,966 | $140,000 | $0 | $298,966 | $298,966 |
| 2010 | $166,278 | $140,000 | $0 | $306,278 | $306,278 |
| 2009 | $174,145 | $160,000 | $0 | $334,145 | $334,145 |
| 2008 | $176,096 | $175,000 | $0 | $351,096 | $351,096 |
| 2007 | $178,027 | $160,000 | $0 | $338,027 | $338,027 |
Deed and Sales History
| 1 | 06/27/2012 | WD | Warranty Deed | ADKINS, JENNIFER L | MCMURRAY, KEVIN W | | | $225,000.00 | 8102 | 4318200 |
| 2 | 07/05/1998 | QCD | Quit Claim Deed | ADKINS, JENNIFER L | ADKINS, JENNIFER L | | | $0.00 | 82623 | 98013506 |
| 3 | 02/01/1996 | OTHER | Other - Misc. Documents | BARTLETT, MORGAN L | BARTLETT, MORGAN L | | | $0.00 | 66795 | 96002005 |
| 4 | 01/01/1900 | OTHER | Other - Misc. Documents | Unknown | BARTLETT, MORGAN L | | | $0.00 | 53120 | 85012316 |
Payout Agreement
| No payout information available.. |