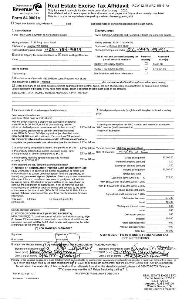
Property
Account |
| Property ID: | 734021 | Abbreviated Legal Description: | 79 - BG NWCR SW NE SW E330' S200' TPB S120' E135' N120' |
| Geographic ID: | R23114-184-1750 | Agent Code: | |
| Type: | Real | | |
| Tax Area: | 510 - APPRAISER-Stan/Cam Schl Dist, improved & 1 acre or less | Land Use Code | 11 |
| Open Space: | N | DFL | N |
| Historic Property: | N | Remodel Property: | N |
| Multi-Family Redevelopment: | N | | |
| Township: | 31 | Section: | 14 |
| Range: | R2 |
Location |
| Address: | 1072 ELLIE LN CAMANO ISLAND, WA 98282 | Mapsco: | |
| Neighborhood: | Cycle 5 | Map ID: | 481 |
| Neighborhood CD: | 5 |
Owner |
| Name: | KALK TTEE, JOSPEH HOBSON | Owner ID: | 293798 |
| Mailing Address: | LISA GLORIA SHEA, TTEE 1072 ELLIE LN CAMANO ISLAND, WA 98282 | % Ownership: | 100.0000000000% |
| | | Exemptions: | |
Taxes and Assessment Details
Values
| (+) Improvement Homesite Value: | + | $0 | |
| (+) Improvement Non-Homesite Value: | + | $336,715 | |
| (+) Land Homesite Value: | + | $0 | |
| (+) Land Non-Homesite Value: | + | $280,000 | |
| (+) Curr Use (HS): | + | $0 | $0 |
| (+) Curr Use (NHS): | + | $0 | $0 |
| | | -------------------------- | |
| (=) Market Value: | = | $616,715 | |
| (–) Productivity Loss: | – | $0 | |
| | | -------------------------- | |
| (=) Subtotal: | = | $616,715 | |
| (+) Senior Appraised Value: | + | $0 | |
| (+) Non-Senior Appraised Value: | + | $616,715 | |
| | | -------------------------- | |
| (=) Total Appraised Value: | = | $616,715 | |
| (–) Senior Exemption Loss: | – | $0 | |
| (–) Exemption Loss: | – | $0 | |
| | | -------------------------- | |
| (=) Taxable Value: | = | $616,715 | |
Taxing Jurisdiction
| Owner: | KALK TTEE, JOSPEH HOBSON | | |
| % Ownership: | 100.0000000000% | | |
| Total Value: | $616,715 | | |
| Tax Area: | 510 - APPRAISER-Stan/Cam Schl Dist, improved & 1 acre or less |
| CF | Conservation Futures | 0.0316035091 | $616,715 | $616,715 | $19.49 | | |
| EMS1 | Fire & Rescue Dist #1 Camano GEN (EMS) | 0.3677864386 | $616,715 | $616,715 | $226.82 | | |
| FIRE1 | Fire & Rescue Dist #1 Camano GEN | 1.2502910536 | $616,715 | $616,715 | $771.07 | | |
| FIRE1BOND | Fire & Rescue Dist #1 Camano BOND | 0.1570001679 | $616,715 | $616,715 | $96.82 | | |
| CE | County Current Expense | 0.3708482477 | $616,715 | $616,715 | $228.71 | | |
| CR | County Roads | 0.4584763726 | $616,715 | $616,715 | $282.75 | | |
| LCIB | Library Sno-Isle BOND (Camano Island) | 0.0396325772 | $616,715 | $616,715 | $24.44 | | |
| LIB | Library Sno-Isle GEN | 0.3153421757 | $616,715 | $616,715 | $194.48 | | |
| SCH205_401 | School 205-401 Enrichment | 1.2698420524 | $616,715 | $616,715 | $783.13 | | |
| SCH205BOND | School 205-401 BOND | 0.9396497583 | $616,715 | $616,715 | $579.50 | | |
| ST | State School | 1.3035497053 | $616,715 | $616,715 | $803.92 | | |
| ST2 | State School Part 2 | 0.8169543533 | $616,715 | $616,715 | $503.83 | | |
| | Total Tax Rate: | 7.3209764117 | | | | | |
| | | | | Taxes w/Current Exemptions: | $4,514.96 | | |
| | | | | Taxes w/o Exemptions: | $4,514.96 | | |
Improvement / Building
| Improvement #1: | RESIDENTIAL | State Code: | Y | 1854.0 sqft | Value: | $336,715 |
| Bathrooms: | 2 | Bedrooms: | 3 | | Ceiling: | DRYWALL PAINTED | Exterior Wall/Cover: | CEMENT FIBER | | Floor Covering: | CARPET/VINYL 80-20 | Floor Structure: | WOOD W/SUBFLOOR | | Foundation: | CONCRETE | Heating: | WALL HEAT ELECTRIC | | Interior Finish: | DRYWALL PAINT | Plumbing Fixture Cnt: | 9 | | Roof Slope: | 5" IN 12" | Roof Structure/Cover: | CJ ASPHALT |
|
| | Type | Description | Class CD | Sub Class CD | Year Built | Area |
| | BAS | BASE/MAIN FLOOR | 3 | 0 | 1995 | 1854.0 |
| | UB8 | BASEMENT UNFINISHED 8" | 3 | 0 | 1995 | 1184.0 |
| | BGR | BASEMENT GARAGE | 3 | 0 | 1995 | 670.0 |
| | OWP | OPEN WOOD PORCH W/STEPS | 3 | 0 | 1995 | 418.0 |
| | OWP | OPEN WOOD PORCH W/STEPS | 3 | 0 | 1995 | 166.0 |
Sketch
Property Image
Land
| 1 | 15 | SQ (12001-21780) | 0.3600 | 15681.60 | 0.00 | 0.00 | 1.00 | $280,000 | $0 |
Roll Value History
| 2026 | N/A | N/A | N/A | N/A | N/A |
| 2025 | $336,715 | $280,000 | $0 | $616,715 | $616,715 |
| 2024 | $340,860 | $270,000 | $0 | $610,860 | $610,860 |
| 2023 | $345,005 | $270,000 | $0 | $615,005 | $615,005 |
| 2022 | $316,156 | $240,000 | $0 | $556,156 | $556,156 |
| 2021 | $258,593 | $160,000 | $0 | $418,593 | $418,593 |
| 2020 | $252,401 | $150,000 | $0 | $402,401 | $402,401 |
| 2019 | $191,908 | $180,000 | $0 | $371,908 | $371,908 |
| 2018 | $192,498 | $150,000 | $0 | $342,498 | $342,498 |
| 2017 | $191,186 | $150,000 | $0 | $341,186 | $341,186 |
| 2016 | $193,519 | $130,000 | $0 | $323,519 | $323,519 |
| 2015 | $197,540 | $82,400 | $0 | $279,940 | $279,940 |
| 2014 | $199,987 | $82,400 | $0 | $282,387 | $282,387 |
| 2013 | $202,438 | $82,400 | $0 | $284,838 | $284,838 |
| 2012 | $204,885 | $82,400 | $0 | $287,285 | $287,285 |
| 2011 | $207,335 | $103,000 | $0 | $310,335 | $310,335 |
| 2010 | $191,501 | $103,000 | $0 | $294,501 | $294,501 |
| 2009 | $200,565 | $125,000 | $0 | $325,565 | $325,565 |
| 2008 | $204,016 | $88,275 | $0 | $292,291 | $292,291 |
| 2007 | $207,526 | $88,275 | $0 | $295,801 | $295,801 |
Deed and Sales History
| 1 | 03/02/2020 | QCD | Quit Claim Deed | KALK, JOSEPH | KALK TTEE, JOSPEH HOBSON | | | $0.00 | 42442 | 4483365 |
| 2 | 12/26/2019 | QCD | Quit Claim Deed | KALK, JOE | KALK, JOSEPH | | | $0.00 | 41856 | 4479682 |
| 3 | 08/20/2012 | BARGSLD | Bargain And Sale Deed | HOMESALES INC | KALK, JOE | | | $160,000.00 | 8622 | 4321688 |
| 4 | 07/20/2011 | TRUSTEED | Trustee's Deed | GRIFFIN, JANETTE L | HOMESALES INC | | | $220,330.00 | 5025 | 4298463 |
| 5 | 03/19/2009 | TRUSTEED | Trustee's Deed | DEUTSCHE BANK NATIONAL TRUST C | GRIFFIN, JANETTE L | | | $194,000.00 | 90861 | 4249453 |
| 6 | 10/31/2008 | TRUSTEED | Trustee's Deed | DAVIDSON, SANDRA Y | DEUTSCHE BANK NATIONAL TRUST C | | | $278,171.00 | 82903 | 4239653 |
| 7 | 01/19/2007 | WD | Warranty Deed | ROOT, KENNETH L | DAVIDSON, SANDRA Y | | | $323,500.00 | 70250 | 4192586 |
| 8 | 03/01/1991 | WD | Warranty Deed | SKOOR, CHARLES I | ROOT, KENNETH L | | | $25,000.00 | 10907 | 91003974 |
| 9 | 01/01/1900 | OTHER | Other - Misc. Documents | Unknown | SKOOR, CHARLES I | | | $0.00 | 0 | 0 |
Payout Agreement
| No payout information available.. |