Property
Account |
| Property ID: | 73413 | Abbreviated Legal Description: | 6 - IN GL 4 TR D SP 71-051 BG SE CR HILLSIDE DR N0*W 30' N89*E199.60' ALG CUR/R 97.92'TPB ALG SD CUR 87.14' S34*E309.90' E ALG CUR/R 55.68' N30*W125.21' S79*W 31.81' N30*E80'N59*E125.13' NLY ALG CUR/L 299.45' S31*W 176.04' TPB |
| Geographic ID: | R23103-507-3590 | Agent Code: | |
| Type: | Real | | |
| Tax Area: | 519 - APPRAISER-Stan/Cam Schl Dist, vacant & 50 acres or less | Land Use Code | 91 |
| Open Space: | N | DFL | N |
| Historic Property: | N | Remodel Property: | N |
| Multi-Family Redevelopment: | N | | |
| Township: | 31 | Section: | 03 |
| Range: | R2 |
Location |
| Address: | 22 S SUNSET DR CAMANO ISLAND, WA 98282 | Mapsco: | |
| Neighborhood: | Cycle 5 | Map ID: | 458 |
| Neighborhood CD: | 5 |
Owner |
| Name: | YUHURA, DERRON J | Owner ID: | 304469 |
| Mailing Address: | 124 16TH AVENUE SEATTLE, WA 98122 | % Ownership: | 100.0000000000% |
| | | Exemptions: | |
Taxes and Assessment Details
Values
| (+) Improvement Homesite Value: | + | $0 | |
| (+) Improvement Non-Homesite Value: | + | $0 | |
| (+) Land Homesite Value: | + | $0 | |
| (+) Land Non-Homesite Value: | + | $12,000 | |
| (+) Curr Use (HS): | + | $0 | $0 |
| (+) Curr Use (NHS): | + | $0 | $0 |
| | | -------------------------- | |
| (=) Market Value: | = | $12,000 | |
| (–) Productivity Loss: | – | $0 | |
| | | -------------------------- | |
| (=) Subtotal: | = | $12,000 | |
| (+) Senior Appraised Value: | + | $0 | |
| (+) Non-Senior Appraised Value: | + | $12,000 | |
| | | -------------------------- | |
| (=) Total Appraised Value: | = | $12,000 | |
| (–) Senior Exemption Loss: | – | $0 | |
| (–) Exemption Loss: | – | $0 | |
| | | -------------------------- | |
| (=) Taxable Value: | = | $12,000 | |
Taxing Jurisdiction
| Owner: | YUHURA, DERRON J | | |
| % Ownership: | 100.0000000000% | | |
| Total Value: | $12,000 | | |
| Tax Area: | 519 - APPRAISER-Stan/Cam Schl Dist, vacant & 50 acres or less |
| CF | Conservation Futures | 0.0316035091 | $12,000 | $12,000 | $0.38 | | |
| EMS1 | Fire & Rescue Dist #1 Camano GEN (EMS) | 0.3677864386 | $12,000 | $12,000 | $4.41 | | |
| CE | County Current Expense | 0.3708482477 | $12,000 | $12,000 | $4.45 | | |
| CR | County Roads | 0.4584763726 | $12,000 | $12,000 | $5.50 | | |
| LCIB | Library Sno-Isle BOND (Camano Island) | 0.0396325772 | $12,000 | $12,000 | $0.48 | | |
| LIB | Library Sno-Isle GEN | 0.3153421757 | $12,000 | $12,000 | $3.78 | | |
| SCH205_401 | School 205-401 Enrichment | 1.2698420524 | $12,000 | $12,000 | $15.24 | | |
| SCH205BOND | School 205-401 BOND | 0.9396497583 | $12,000 | $12,000 | $11.28 | | |
| ST | State School | 1.3035497053 | $12,000 | $12,000 | $15.64 | | |
| ST2 | State School Part 2 | 0.8169543533 | $12,000 | $12,000 | $9.80 | | |
| | Total Tax Rate: | 5.9136851902 | | | | | |
| | | | | Taxes w/Current Exemptions: | $70.96 | | |
| | | | | Taxes w/o Exemptions: | $70.96 | | |
Improvement / Building
Sketch
| No sketches available for this property. |
Property Image
Land
| 1 | 16 | AC (00.51-01.00) | 0.9800 | 42688.80 | 0.00 | 0.00 | 1.00 | $12,000 | $0 |
Roll Value History
| 2026 | N/A | N/A | N/A | N/A | N/A |
| 2025 | $0 | $12,000 | $0 | $12,000 | $12,000 |
| 2024 | $0 | $12,000 | $0 | $12,000 | $12,000 |
| 2023 | $0 | $9,000 | $0 | $9,000 | $9,000 |
| 2022 | $0 | $9,000 | $0 | $9,000 | $9,000 |
| 2021 | $0 | $7,000 | $0 | $7,000 | $7,000 |
| 2020 | $0 | $7,000 | $0 | $7,000 | $7,000 |
| 2019 | $0 | $7,000 | $0 | $7,000 | $7,000 |
| 2018 | $0 | $7,000 | $0 | $7,000 | $7,000 |
| 2017 | $0 | $5,000 | $0 | $5,000 | $5,000 |
| 2016 | $0 | $5,000 | $0 | $5,000 | $5,000 |
| 2015 | $0 | $5,000 | $0 | $5,000 | $5,000 |
| 2014 | $0 | $5,000 | $0 | $5,000 | $5,000 |
| 2013 | $0 | $4,700 | $0 | $4,700 | $4,700 |
| 2012 | $0 | $4,700 | $0 | $4,700 | $4,700 |
| 2011 | $0 | $4,700 | $0 | $4,700 | $4,700 |
| 2010 | $0 | $35,000 | $0 | $35,000 | $35,000 |
| 2009 | $0 | $40,500 | $0 | $40,500 | $40,500 |
| 2008 | $0 | $40,500 | $0 | $40,500 | $40,500 |
| 2007 | $0 | $23,750 | $0 | $23,750 | $23,750 |
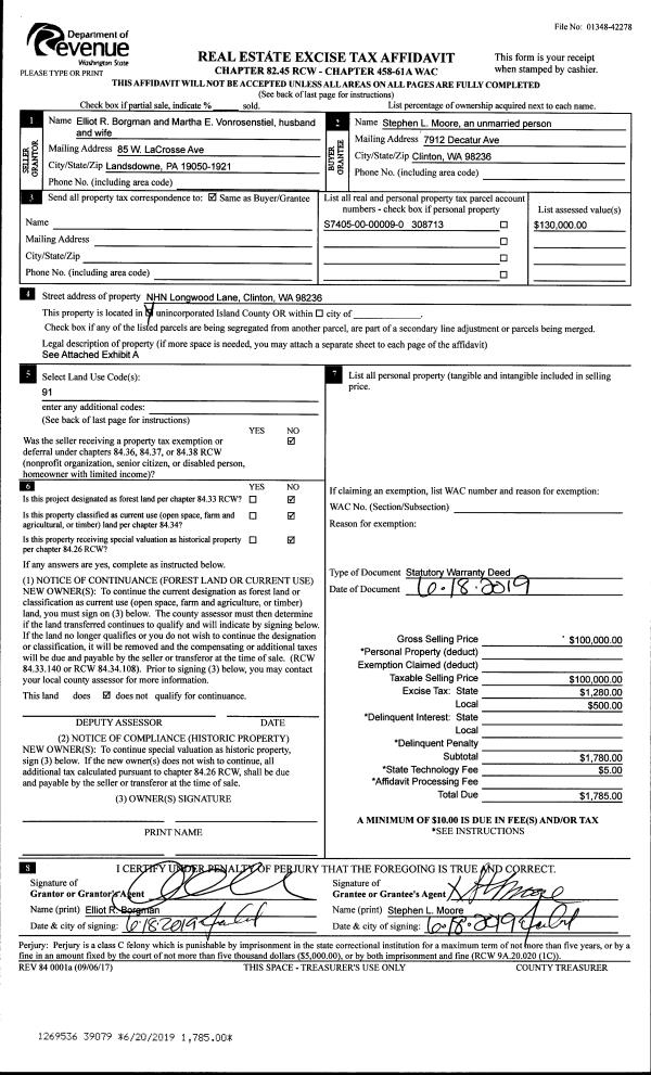
Deed and Sales History
| 1 | 05/26/2022 | WD | Warranty Deed | HALLIDAY, DAVID G | YUHURA, DERRON J | | | $55,000.00 | 53272 | 4545922 |
| 2 | 06/10/2019 | WD | Warranty Deed | RUBIO, JOHN | HALLIDAY, DAVID G | | | $30,000.00 | 39250 | 4466503 |
| 3 | 05/28/2000 | TRUSTEED | Trustee's Deed | L, & C | RUBIO, JOHN | | | $19,800.00 | 2268 | 20010870 |
| 4 | 05/01/1997 | QCD | Quit Claim Deed | PALZER, CATHERINE A | L, & C | | | $0.00 | 71606 | 97007438 |
| 5 | 06/01/1996 | OTHER | Other - Misc. Documents | PALZER, CHRIS & | PALZER, CATHERINE A | | | $0.00 | 66979 | 89006596 |
| 6 | 03/01/1984 | TTAXD | Treasurer's Tax Deed | WILDING, DAVID R | PALZER, CHRIS & | | | $3,200.00 | 40643 | 422064 |
| 7 | 01/01/1900 | OTHER | Other - Misc. Documents | Unknown | WILDING, DAVID R | | | $0.00 | 0 | 0 |
Payout Agreement
| No payout information available.. |