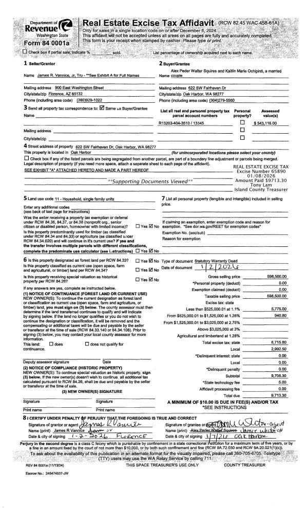
Property
Account |
| Property ID: | 734307 | Abbreviated Legal Description: | 76 - BG SE CR GL3 N1*W355. 45' S88*W35.38' TO WLN W |
| Geographic ID: | R33023-164-2550 | Agent Code: | |
| Type: | Real | | |
| Tax Area: | 540 - APPRAISER-Stan/Cam Schl Dist, Special Dist, improved & less than 1 acre | Land Use Code | 11 |
| Open Space: | N | DFL | N |
| Historic Property: | N | Remodel Property: | N |
| Multi-Family Redevelopment: | N | | |
| Township: | 30 | Section: | 23 |
| Range: | R3 |
Location |
| Address: | 4460 S CAMANO DR CAMANO ISLAND, WA 98282 | Mapsco: | |
| Neighborhood: | 58RscamS-South Cam | Map ID: | 882 |
| Neighborhood CD: | 58RscamS |
Owner |
| Name: | STEIGER, JOHN THOMAS | Owner ID: | 315029 |
| Mailing Address: | JAMIE ELIZABETH MCDOWELL 1012 FILLMORE ST DENVER, CO 80206 | % Ownership: | 100.0000000000% |
| | | Exemptions: | |
Taxes and Assessment Details
Values
| (+) Improvement Homesite Value: | + | $0 | |
| (+) Improvement Non-Homesite Value: | + | $471,758 | |
| (+) Land Homesite Value: | + | $0 | |
| (+) Land Non-Homesite Value: | + | $260,000 | |
| (+) Curr Use (HS): | + | $0 | $0 |
| (+) Curr Use (NHS): | + | $0 | $0 |
| | | -------------------------- | |
| (=) Market Value: | = | $731,758 | |
| (–) Productivity Loss: | – | $0 | |
| | | -------------------------- | |
| (=) Subtotal: | = | $731,758 | |
| (+) Senior Appraised Value: | + | $0 | |
| (+) Non-Senior Appraised Value: | + | $731,758 | |
| | | -------------------------- | |
| (=) Total Appraised Value: | = | $731,758 | |
| (–) Senior Exemption Loss: | – | $0 | |
| (–) Exemption Loss: | – | $0 | |
| | | -------------------------- | |
| (=) Taxable Value: | = | $731,758 | |
Taxing Jurisdiction
| Owner: | STEIGER, JOHN THOMAS | | |
| % Ownership: | 100.0000000000% | | |
| Total Value: | $731,758 | | |
| Tax Area: | 540 - APPRAISER-Stan/Cam Schl Dist, Special Dist, improved & less than 1 acre |
| CF | Conservation Futures | 0.0316035091 | $731,758 | $731,758 | $23.13 | | |
| EMS1 | Fire & Rescue Dist #1 Camano GEN (EMS) | 0.3677864386 | $731,758 | $731,758 | $269.13 | | |
| FIRE1 | Fire & Rescue Dist #1 Camano GEN | 1.2502910536 | $731,758 | $731,758 | $914.91 | | |
| FIRE1BOND | Fire & Rescue Dist #1 Camano BOND | 0.1570001679 | $731,758 | $731,758 | $114.89 | | |
| CE | County Current Expense | 0.3708482477 | $731,758 | $731,758 | $271.37 | | |
| CR | County Roads | 0.4584763726 | $731,758 | $731,758 | $335.49 | | |
| LCIB | Library Sno-Isle BOND (Camano Island) | 0.0396325772 | $731,758 | $731,758 | $29.00 | | |
| LIB | Library Sno-Isle GEN | 0.3153421757 | $731,758 | $731,758 | $230.75 | | |
| SCH205_401 | School 205-401 Enrichment | 1.2698420524 | $731,758 | $731,758 | $929.22 | | |
| SCH205BOND | School 205-401 BOND | 0.9396497583 | $731,758 | $731,758 | $687.60 | | |
| ST | State School | 1.3035497053 | $731,758 | $731,758 | $953.88 | | |
| ST2 | State School Part 2 | 0.8169543533 | $731,758 | $731,758 | $597.81 | | |
| | Total Tax Rate: | 7.3209764117 | | | | | |
| | | | | Taxes w/Current Exemptions: | $5,357.18 | | |
| | | | | Taxes w/o Exemptions: | $5,357.18 | | |
Improvement / Building
| Improvement #1: | RESIDENTIAL | State Code: | Y | 1828.0 sqft | Value: | $471,758 |
| Bathrooms: | 2 | Bedrooms: | 3 | | Ceiling: | TONGUE & GROOVE | Exterior Wall/Cover: | WOOD SIDING | | Floor Covering: | CERAMIC TILE/HWD 40/60 | Floor Structure: | WOOD W/SUBFLOOR | | Foundation: | CONCRETE | Heating: | FHA ELECTRIC | | Interior Finish: | DRYWALL PAINT | Plumbing Fixture Cnt: | 12 | | Roof Slope: | 4" IN 12" | Roof Structure/Cover: | BEAM WOOD SHAKES |
|
| | Type | Description | Class CD | Sub Class CD | Year Built | Area |
| | BAS | BASE/MAIN FLOOR | 4 | 0 | 1970 | 1184.0 |
| | BIG | BUILT IN GARAGE | 4 | 0 | 1970 | 432.0 |
| | OWP | OPEN WOOD PORCH W/STEPS | 4 | 0 | 1970 | 553.0 |
| | OWC | OPEN WOOD PORCH W/STEPS/ROOF/C | 4 | 0 | 1970 | 103.0 |
| | DWN | DOWNSTAIRS LIVING AREA | 4 | 0 | 1970 | 644.0 |
Sketch
Property Image
Land
| 1 | 14 | SQ (08001-12000) | 0.2900 | 12632.40 | 0.00 | 0.00 | 1.00 | $260,000 | $0 |
Roll Value History
| 2026 | N/A | N/A | N/A | N/A | N/A |
| 2025 | $471,758 | $260,000 | $0 | $731,758 | $731,758 |
| 2024 | $477,291 | $250,000 | $0 | $727,291 | $727,291 |
| 2023 | $482,825 | $250,000 | $0 | $732,825 | $732,825 |
| 2022 | $442,222 | $220,000 | $0 | $662,222 | $662,222 |
| 2021 | $378,292 | $140,000 | $0 | $518,292 | $518,292 |
| 2020 | $367,096 | $100,000 | $0 | $467,096 | $467,096 |
| 2019 | $223,338 | $130,000 | $0 | $353,338 | $353,338 |
| 2018 | $223,963 | $100,000 | $0 | $323,963 | $323,963 |
| 2017 | $205,196 | $75,000 | $0 | $280,196 | $280,196 |
| 2016 | $207,699 | $65,000 | $0 | $272,699 | $272,699 |
| 2015 | $140,505 | $50,000 | $0 | $190,505 | $190,505 |
| 2014 | $142,603 | $50,000 | $0 | $192,603 | $192,603 |
| 2013 | $144,699 | $50,000 | $0 | $194,699 | $194,699 |
| 2012 | $146,798 | $66,400 | $0 | $213,198 | $213,198 |
| 2011 | $148,894 | $83,000 | $0 | $231,894 | $231,894 |
| 2010 | $158,115 | $83,000 | $0 | $241,115 | $241,115 |
| 2009 | $213,533 | $120,000 | $0 | $333,533 | $333,533 |
| 2008 | $216,153 | $99,000 | $0 | $315,153 | $315,153 |
| 2007 | $218,773 | $86,000 | $0 | $304,773 | $304,773 |
Deed and Sales History
| 1 | 12/24/2024 | WD | Warranty Deed | THE SECRETARY OF VETERANS AFFAIRS | STEIGER, JOHN THOMAS | | | $0.00 | 64101 | 4588030 |
| 2 | 12/24/2024 | WD | Warranty Deed | THE SECRETARY OF VETERANS AFFAIRS | STEIGER, JOHN THOMAS | | | $0.00 | 62234 | 4580927 |
| 3 | 12/24/2024 | WD | Warranty Deed | THE SECRETARY OF VETERANS AFFAIRS | STEIGER, JOHN THOMAS | | | $0.00 | 62231 | 4580905 |
| 4 | 01/26/2024 | WD | Warranty Deed | NATIONSTAR MORTGAGE LLC | THE SECRETARY OF VETERANS AFFAIRS | | | $0.00 | 59445 | 4570431 |
| 5 | 01/12/2024 | TRUSTEED | Trustee's Deed | QUALITY LOAN SERVICE CORPORATION | NATIONSTAR MORTGAGE LLC | | | $0.00 | 59003 | 4568551 |
| 6 | 08/19/2021 | WD | Warranty Deed | AHMAD, ADAM | LADUKE JR, DANIEL RAYMOND | | | $651,555.00 | 49850 | 4528070 |
| 7 | 05/07/2020 | WD | Warranty Deed | CUDDEBACK, ZACHARY J | AHMAD, ADAM | | | $500,000.00 | 42975 | 4486442 |
| 8 | 09/20/2017 | WD | Warranty Deed | PAGE TRUSTEE, MAXINE A | CUDDEBACK, ZACHARY J | | | $319,000.00 | 31235 | 4430870 |
| 9 | 02/10/2004 | 5 | DNU - Marriage License/Name Change | PAGE, MAXINE A | PAGE TRUSTEE, MAXINE A | | | $0.00 | 41068 | 4094820 |
| 10 | 08/22/2000 | WD | Warranty Deed | THORESON, DAVID L | PAGE, MAXINE A | | | $205,000.00 | 3338 | 20015557 |
| 11 | 01/01/1900 | OTHER | Other - Misc. Documents | Unknown | THORESON, DAVID L | | | $0.00 | 0 | 0 |
Payout Agreement
| No payout information available.. |