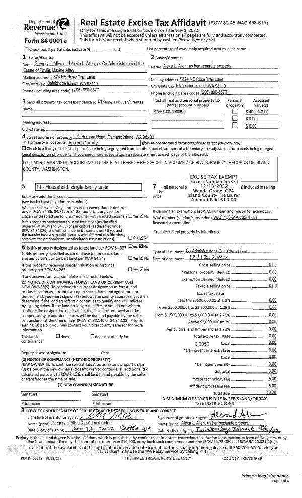
Property
Account |
| Property ID: | 734496 | Abbreviated Legal Description: | PT W/2 SEC 12: BG NWCR NE SW S0*E1252' N89*E300' N0*W 1452' S89*W300' S0*E200'TPB TGW EZ AF#93001202 FR 299-1650 & 230-1970 |
| Geographic ID: | R23112-228-1450 | Agent Code: | |
| Type: | Real | | |
| Tax Area: | 512 - APPRAISER-Stan/Cam Schl Dist, improved, greater than 1 acre | Land Use Code | 83 |
| Open Space: | Y | DFL | N |
| Historic Property: | N | Remodel Property: | N |
| Multi-Family Redevelopment: | N | | |
| Township: | 31 | Section: | 12 |
| Range: | R2 |
Location |
| Address: | | Mapsco: | |
| Neighborhood: | Cycle 5 | Map ID: | 473 |
| Neighborhood CD: | 5 |
Owner |
| Name: | NECH TTEE, AARON | Owner ID: | 315102 |
| Mailing Address: | TERNESSA NECH TTEE 345 W CAMANO HILL RD CAMANO ISLAND, WA 98282 | % Ownership: | 100.0000000000% |
| | | Exemptions: | |
Taxes and Assessment Details
Values
| (+) Improvement Homesite Value: | + | $0 | |
| (+) Improvement Non-Homesite Value: | + | $664,524 | |
| (+) Land Homesite Value: | + | $0 | |
| (+) Land Non-Homesite Value: | + | $300,000 | |
| (+) Curr Use (HS): | + | $0 | $0 |
| (+) Curr Use (NHS): | + | $130,000 | $1,885 |
| | | -------------------------- | |
| (=) Market Value: | = | $1,094,524 | |
| (–) Productivity Loss: | – | $128,115 | |
| | | -------------------------- | |
| (=) Subtotal: | = | $966,409 | |
| (+) Senior Appraised Value: | + | $0 | |
| (+) Non-Senior Appraised Value: | + | $966,409 | |
| | | -------------------------- | |
| (=) Total Appraised Value: | = | $966,409 | |
| (–) Senior Exemption Loss: | – | $0 | |
| (–) Exemption Loss: | – | $0 | |
| | | -------------------------- | |
| (=) Taxable Value: | = | $966,409 | |
Taxing Jurisdiction
| Owner: | NECH TTEE, AARON | | |
| % Ownership: | 100.0000000000% | | |
| Total Value: | $1,094,524 | | |
| Tax Area: | 512 - APPRAISER-Stan/Cam Schl Dist, improved, greater than 1 acre |
| CF | Conservation Futures | 0.0316035091 | $966,409 | $966,409 | $30.54 | | |
| EMS1 | Fire & Rescue Dist #1 Camano GEN (EMS) | 0.3677864386 | $966,409 | $966,409 | $355.43 | | |
| FIRE1 | Fire & Rescue Dist #1 Camano GEN | 1.2502910536 | $966,409 | $966,409 | $1,208.29 | | |
| FIRE1BOND | Fire & Rescue Dist #1 Camano BOND | 0.1570001679 | $966,409 | $966,409 | $151.73 | | |
| CE | County Current Expense | 0.3708482477 | $966,409 | $966,409 | $358.39 | | |
| CR | County Roads | 0.4584763726 | $966,409 | $966,409 | $443.08 | | |
| LCIB | Library Sno-Isle BOND (Camano Island) | 0.0396325772 | $966,409 | $966,409 | $38.30 | | |
| LIB | Library Sno-Isle GEN | 0.3153421757 | $966,409 | $966,409 | $304.75 | | |
| SCH205_401 | School 205-401 Enrichment | 1.2698420524 | $966,409 | $966,409 | $1,227.19 | | |
| SCH205BOND | School 205-401 BOND | 0.9396497583 | $966,409 | $966,409 | $908.09 | | |
| ST | State School | 1.3035497053 | $966,409 | $966,409 | $1,259.76 | | |
| ST2 | State School Part 2 | 0.8169543533 | $966,409 | $966,409 | $789.51 | | |
| | Total Tax Rate: | 7.3209764117 | | | | | |
| | | | | Taxes w/Current Exemptions: | $7,075.06 | | |
| | | | | Taxes w/o Exemptions: | $7,075.06 | | |
Improvement / Building
| Improvement #1: | RESIDENTIAL | State Code: | Y | 2387.5 sqft | Value: | $664,524 |
| Bathrooms: | 3 | Bedrooms: | 3 | | Ceiling: | DRYWALL PAINTED | Cooling: | HEAT PUMP/CONV/V | | Exterior Wall/Cover: | COMMON BRICK VENEER | Floor Covering: | VINYL 100% | | Floor Structure: | WOOD W/SUBFLOOR | Foundation: | CONCRETE | | Interior Finish: | DRYWALL PAINT | Plumbing Fixture Cnt: | 14 | | Roof Slope: | 5" IN 12" | Roof Structure/Cover: | CJ CONCRETE TILE |
|
| | Type | Description | Class CD | Sub Class CD | Year Built | Area |
| | BAS | BASE/MAIN FLOOR | 4 | 0 | 1993 | 2387.5 |
| | OP4 | OPEN PORCH W/CEILING-ROOF | 4 | 0 | 1993 | 216.0 |
| | OP4 | OPEN PORCH W/CEILING-ROOF | 4 | 0 | 1993 | 523.4 |
| | AGR | ATTACHED GARAGE | 4 | 0 | 1993 | 595.0 |
| | ENP | ENCLOSED PORCH | 4 | 0 | 1993 | 180.0 |
| | DGR | DETACHED GARAGE | 4 | 0 | 1993 | 1296.0 |
Sketch
Property Image
Land
| 1 | 83 | OPEN AGRICULTURE | 9.0000 | 392040.00 | 0.00 | 0.00 | 1.00 | $130,000 | $1,885 |
| 2 | HS | HOMESITE | 1.0000 | 43560.00 | 0.00 | 0.00 | 1.00 | $300,000 | $0 |
Roll Value History
| 2026 | N/A | N/A | N/A | N/A | N/A |
| 2025 | $664,524 | $430,000 | $1,885 | $966,409 | $966,409 |
| 2024 | $672,909 | $400,000 | $1,885 | $964,794 | $964,794 |
| 2023 | $681,295 | $390,000 | $1,885 | $722,180 | $722,180 |
| 2022 | $624,495 | $330,000 | $1,885 | $659,380 | $659,380 |
| 2021 | $488,638 | $250,000 | $1,885 | $515,523 | $515,523 |
| 2020 | $476,684 | $230,000 | $1,885 | $501,569 | $501,569 |
| 2019 | $354,836 | $300,000 | $1,885 | $386,721 | $386,721 |
| 2018 | $355,927 | $220,000 | $1,885 | $379,812 | $379,812 |
| 2017 | $358,018 | $200,000 | $1,885 | $379,903 | $379,903 |
| 2016 | $339,797 | $153,000 | $2,094 | $341,891 | $341,891 |
| 2015 | $323,689 | $150,850 | $2,094 | $325,783 | $325,783 |
| 2014 | $327,722 | $150,850 | $2,094 | $329,816 | $329,816 |
| 2013 | $331,756 | $150,850 | $2,094 | $333,850 | $333,850 |
| 2012 | $0 | $150,850 | $2,094 | $2,094 | $2,094 |
| 2011 | $0 | $150,850 | $2,094 | $2,094 | $2,094 |
| 2010 | $0 | $150,850 | $2,094 | $2,094 | $2,094 |
| 2009 | $0 | $172,400 | $2,094 | $2,094 | $2,094 |
| 2008 | $0 | $137,920 | $2,094 | $2,094 | $2,094 |
| 2007 | $0 | $137,920 | $2,094 | $2,094 | $2,094 |
Deed and Sales History
| 1 | 01/10/2025 | WD | Warranty Deed | STACH ET AL, TAUBER | NECH TTEE, AARON | | | $2,450,000.00 | 62294 | 4581189 |
|   | |
| 2 | 02/17/2022 | QCD | Quit Claim Deed | STACH, TAUBER | STACH, TAUBER | | | $0.00 | 52061 | 4540313 |
| 3 | 02/17/2022 | BARGSLD | Bargain And Sale Deed | STACH, TAUBER | STACH, TAUBER | | | $460,000.00 | 52007 | 4540006 |
| 4 | 02/17/2022 | QCD | Quit Claim Deed | STACH, TAUBER | STACH, TAUBER | | | $0.00 | 52006 | 4540005 |
| 5 | 08/31/2021 | TRUSTEED | Trustee's Deed | STACH TRUSTEE, HORST | STACH, TAUBER | | | $0.00 | 50924 | 4533941 |
| 6 | 02/01/1996 | OTHER | Other - Misc. Documents | STACH, HORST O | STACH, HORST O | | | $0.00 | 66804 | 0 |
| 7 | 01/01/1900 | OTHER | Other - Misc. Documents | Unknown | STACH, HORST O | | | $0.00 | 0 | 0 |
Payout Agreement
| No payout information available.. |