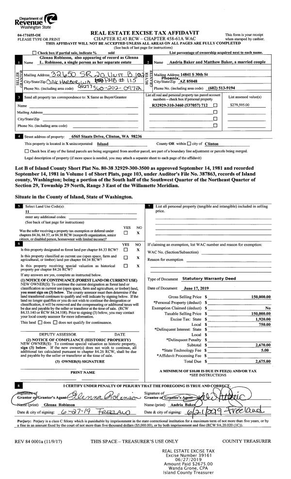
Property
Account |
| Property ID: | 734575 | Abbreviated Legal Description: | 1973 VILLAWEST 14X60 VIN# 20394 TPO @12500 |
| Geographic ID: | M910000000280 | Agent Code: | |
| Type: | Mobile Home | | |
| Tax Area: | 300 - APPRAISER-Cpvl Schl Dist, in Cpvl | Land Use Code | 11 |
| Open Space: | N | DFL | N |
| Historic Property: | N | Remodel Property: | N |
| Multi-Family Redevelopment: | N | | |
| Township: | | Section: | |
| Range: | |
Location |
| Address: | 701 S MAIN ST # 28 COUPEVILLE, WA 98239 | Mapsco: | |
| Neighborhood: | Cycle 2 | Map ID: | |
| Neighborhood CD: | 2 |
Owner |
| Name: | D'HAENE, SANDRA J | Owner ID: | 291614 |
| Mailing Address: | 701 S MAIN ST, #28 COUPEVILLE, WA 98239 | % Ownership: | 100.0000000000% |
| | | Exemptions: | |
Taxes and Assessment Details
Values
| (+) Improvement Homesite Value: | + | $0 | |
| (+) Improvement Non-Homesite Value: | + | $22,831 | |
| (+) Land Homesite Value: | + | $0 | |
| (+) Land Non-Homesite Value: | + | $0 | |
| (+) Curr Use (HS): | + | $0 | $0 |
| (+) Curr Use (NHS): | + | $0 | $0 |
| | | -------------------------- | |
| (=) Market Value: | = | $22,831 | |
| (–) Productivity Loss: | – | $0 | |
| | | -------------------------- | |
| (=) Subtotal: | = | $22,831 | |
| (+) Senior Appraised Value: | + | $0 | |
| (+) Non-Senior Appraised Value: | + | $22,831 | |
| | | -------------------------- | |
| (=) Total Appraised Value: | = | $22,831 | |
| (–) Senior Exemption Loss: | – | $0 | |
| (–) Exemption Loss: | – | $0 | |
| | | -------------------------- | |
| (=) Taxable Value: | = | $22,831 | |
Taxing Jurisdiction
| Owner: | D'HAENE, SANDRA J | | |
| % Ownership: | 100.0000000000% | | |
| Total Value: | $22,831 | | |
| Tax Area: | 300 - APPRAISER-Cpvl Schl Dist, in Cpvl |
| CF | Conservation Futures | 0.0316035091 | $22,831 | $22,831 | $0.72 | | |
| CEM2 | Cemetery #2 | 0.0095056933 | $22,831 | $22,831 | $0.22 | | |
| COUP | City: Town of Coupeville | 0.8426414490 | $22,831 | $22,831 | $19.24 | | |
| FIRE5 | Fire & Rescue Dist #5 C Whidbey GEN | 1.2008080668 | $22,831 | $22,831 | $27.42 | | |
| FIRE5BOND | Fire & Rescue Dist #5 C Whidbey BOND | 0.1400090713 | $22,831 | $22,831 | $3.20 | | |
| HOBOND | Hospital BOND | 0.1910887512 | $22,831 | $22,831 | $4.36 | | |
| HOGEN | Hospital GEN | 0.3902502903 | $22,831 | $22,831 | $8.91 | | |
| CE | County Current Expense | 0.3708482477 | $22,831 | $22,831 | $8.47 | | |
| ISLANDEMS | Hospital GEN (EMS) | 0.5000000000 | $22,831 | $22,831 | $11.42 | | |
| LIB | Library Sno-Isle GEN | 0.3153421757 | $22,831 | $22,831 | $7.20 | | |
| LIBCAP | Library Sno-Isle BOND (Cap Fac Imp Area) | 0.0543427938 | $22,831 | $22,831 | $1.24 | | |
| POCOUP | Port of Coupeville GEN | 0.1093371703 | $22,831 | $22,831 | $2.50 | | |
| POCOUPIDD | Port of Coupeville IDD | 0.3409740022 | $22,831 | $22,831 | $7.78 | | |
| COUPSDTECH | School 204 CP (TECH) | 0.7545480007 | $22,831 | $22,831 | $17.23 | | |
| SCH204MO | School 204 Enrichment | 0.6716186034 | $22,831 | $22,831 | $15.33 | | |
| ST | State School | 1.3035497053 | $22,831 | $22,831 | $29.76 | | |
| ST2 | State School Part 2 | 0.8169543533 | $22,831 | $22,831 | $18.65 | | |
| | Total Tax Rate: | 8.0434218834 | | | | | |
| | | | | Taxes w/Current Exemptions: | $183.65 | | |
| | | | | Taxes w/o Exemptions: | $183.65 | | |
Improvement / Building
| Improvement #1: | MANUFACTURED HOME | State Code: | Y | 840.0 sqft | Value: | $22,831 |
| Bathrooms: | 0 | Bedrooms: | 0 | | Ceiling: | PLASTER PAINTED | Cooling: | EVAP NO DUCT | | Exterior Wall/Cover: | VINYL | Floor Covering: | CARPET 100% | | Floor Structure: | SLAB ON GRADE | Foundation: | SLAB | | Heating: | FHA ELECTRIC | Interior Finish: | PLASTER | | Plumbing Fixture Cnt: | 1 | Roof Slope: | FLAT | | Roof Structure/Cover: | CJ ALUMINIUM HEAVY |   |   |
|
Sketch
Property Image
Land
No land segments exist for this property.
Roll Value History
| 2026 | N/A | N/A | N/A | N/A | N/A |
| 2025 | $22,831 | $0 | $0 | $22,831 | $22,831 |
| 2024 | $20,222 | $0 | $0 | $20,222 | $20,222 |
| 2023 | $11,010 | $0 | $0 | $11,010 | $11,010 |
| 2022 | $10,575 | $0 | $0 | $10,575 | $10,575 |
| 2021 | $9,985 | $0 | $0 | $9,985 | $9,985 |
| 2020 | $10,204 | $0 | $0 | $10,204 | $10,204 |
| 2019 | $8,439 | $0 | $0 | $8,439 | $8,439 |
| 2018 | $5,524 | $0 | $0 | $5,524 | $5,524 |
| 2017 | $5,996 | $0 | $0 | $5,996 | $5,996 |
| 2016 | $6,468 | $0 | $0 | $6,468 | $6,468 |
| 2015 | $6,704 | $0 | $0 | $6,704 | $6,704 |
| 2014 | $7,176 | $0 | $0 | $7,176 | $7,176 |
| 2013 | $7,412 | $0 | $0 | $7,412 | $7,412 |
| 2012 | $8,090 | $0 | $0 | $8,090 | $8,090 |
| 2011 | $8,326 | $0 | $0 | $8,326 | $8,326 |
| 2010 | $11,483 | $0 | $0 | $11,483 | $11,483 |
| 2009 | $11,801 | $0 | $0 | $11,801 | $11,801 |
| 2008 | $11,909 | $0 | $0 | $11,909 | $11,909 |
| 2007 | $12,018 | $0 | $0 | $12,018 | $12,018 |
Deed and Sales History
| 1 | 09/03/2019 | MANHOME | Manufactured Home | HOLLOMAN, JOYCE | D'HAENE, SANDRA J | | | $7,000.00 | 40100 | |
| 2 | 08/22/2013 | OTHER | Other - Misc. Documents | OFFRET, DALE E | HOLLOMAN, JOYCE | | | $13,000.00 | 12492 | |
| 3 | 05/25/2007 | OTHER | Other - Misc. Documents | SWISHER, JOHN / | OFFRET, DALE E | | | $15,750.00 | 71734 | 0 |
| 4 | 04/01/1995 | OTHER | Other - Misc. Documents | Unknown | SWISHER, JOHN / | | | $12,500.00 | 51157 | 0 |
Payout Agreement
| No payout information available.. |