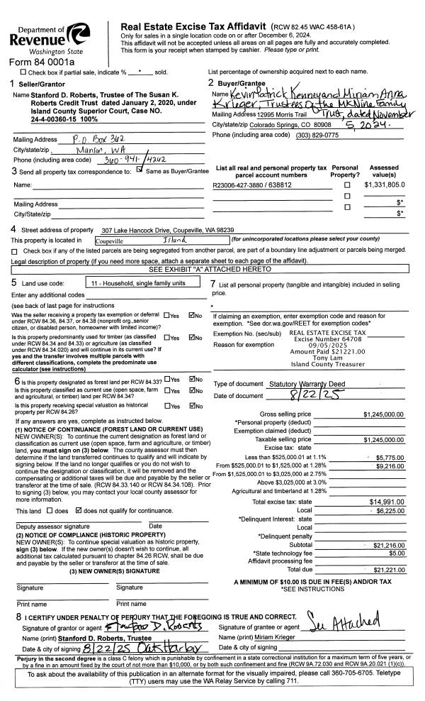
Property
Account |
| Property ID: | 735217 | Abbreviated Legal Description: | LONG PT MANOR LOT 12 BLK 2 DESC: BG MST NLY CR LOT 12 S68*E110.49' S32*W186.91' NWLY 99.39' N29*E169.28'TPB TGW LOT 13 BLK 2 |
| Geographic ID: | S7400-00-02012-0 | Agent Code: | |
| Type: | Real | | |
| Tax Area: | 310 - APPRAISER-Cpvl Schl Dist, outside Cpvl, improved & 1 acre or less | Land Use Code | 11 |
| Open Space: | N | DFL | N |
| Historic Property: | N | Remodel Property: | N |
| Multi-Family Redevelopment: | N | | |
| Township: | | Section: | |
| Range: | |
Location |
| Address: | 494 PARKER RD COUPEVILLE, WA 98239 | Mapsco: | |
| Neighborhood: | Cycle 2 | Map ID: | 184 |
| Neighborhood CD: | 2 |
Owner |
| Name: | SNYDER, MARK W | Owner ID: | 263018 |
| Mailing Address: | SALLY H SNYDER 494 PARKER RD COUPEVILLE, WA 98239 | % Ownership: | 100.0000000000% |
| | | Exemptions: | |
Taxes and Assessment Details
Values
| (+) Improvement Homesite Value: | + | $0 | |
| (+) Improvement Non-Homesite Value: | + | $293,788 | |
| (+) Land Homesite Value: | + | $0 | |
| (+) Land Non-Homesite Value: | + | $260,000 | |
| (+) Curr Use (HS): | + | $0 | $0 |
| (+) Curr Use (NHS): | + | $0 | $0 |
| | | -------------------------- | |
| (=) Market Value: | = | $553,788 | |
| (–) Productivity Loss: | – | $0 | |
| | | -------------------------- | |
| (=) Subtotal: | = | $553,788 | |
| (+) Senior Appraised Value: | + | $0 | |
| (+) Non-Senior Appraised Value: | + | $553,788 | |
| | | -------------------------- | |
| (=) Total Appraised Value: | = | $553,788 | |
| (–) Senior Exemption Loss: | – | $0 | |
| (–) Exemption Loss: | – | $0 | |
| | | -------------------------- | |
| (=) Taxable Value: | = | $553,788 | |
Taxing Jurisdiction
| Owner: | SNYDER, MARK W | | |
| % Ownership: | 100.0000000000% | | |
| Total Value: | $553,788 | | |
| Tax Area: | 310 - APPRAISER-Cpvl Schl Dist, outside Cpvl, improved & 1 acre or less |
| CF | Conservation Futures | 0.0316035091 | $553,788 | $553,788 | $17.50 | | |
| CEM2 | Cemetery #2 | 0.0095056933 | $553,788 | $553,788 | $5.26 | | |
| FIRE5 | Fire & Rescue Dist #5 C Whidbey GEN | 1.2008080668 | $553,788 | $553,788 | $664.99 | | |
| FIRE5BOND | Fire & Rescue Dist #5 C Whidbey BOND | 0.1400090713 | $553,788 | $553,788 | $77.54 | | |
| HOBOND | Hospital BOND | 0.1910887512 | $553,788 | $553,788 | $105.82 | | |
| HOGEN | Hospital GEN | 0.3902502903 | $553,788 | $553,788 | $216.12 | | |
| CE | County Current Expense | 0.3708482477 | $553,788 | $553,788 | $205.37 | | |
| CR | County Roads | 0.4584763726 | $553,788 | $553,788 | $253.90 | | |
| ISLANDEMS | Hospital GEN (EMS) | 0.5000000000 | $553,788 | $553,788 | $276.89 | | |
| LIB | Library Sno-Isle GEN | 0.3153421757 | $553,788 | $553,788 | $174.63 | | |
| LIBCAP | Library Sno-Isle BOND (Cap Fac Imp Area) | 0.0543427938 | $553,788 | $553,788 | $30.09 | | |
| POCOUP | Port of Coupeville GEN | 0.1093371703 | $553,788 | $553,788 | $60.55 | | |
| POCOUPIDD | Port of Coupeville IDD | 0.3409740022 | $553,788 | $553,788 | $188.83 | | |
| COUPSDTECH | School 204 CP (TECH) | 0.7545480007 | $553,788 | $553,788 | $417.86 | | |
| SCH204MO | School 204 Enrichment | 0.6716186034 | $553,788 | $553,788 | $371.93 | | |
| ST | State School | 1.3035497053 | $553,788 | $553,788 | $721.89 | | |
| ST2 | State School Part 2 | 0.8169543533 | $553,788 | $553,788 | $452.42 | | |
| | Total Tax Rate: | 7.6592568070 | | | | | |
| | | | | Taxes w/Current Exemptions: | $4,241.59 | | |
| | | | | Taxes w/o Exemptions: | $4,241.59 | | |
Improvement / Building
| Improvement #1: | RESIDENTIAL | State Code: | Y | 1659.0 sqft | Value: | $293,788 |
| Bathrooms: | 2 | Bedrooms: | 3 | | Ceiling: | BEAM PAINTED | Cooling: | HEAT PUMP/CONV/V | | Exterior Wall/Cover: | WOOD SIDING | Floor Covering: | CERAMIC TILE/CPT 40-60 | | Floor Structure: | WOOD W/SUBFLOOR | Foundation: | CONCRETE | | Interior Finish: | DRYWALL PAINT | Plumbing Fixture Cnt: | 9 | | Roof Slope: | 4" IN 12" | Roof Structure/Cover: | CJ ASPHALT |
|
| | Type | Description | Class CD | Sub Class CD | Year Built | Area |
| | BAS | BASE/MAIN FLOOR | 3 | 0 | 1973 | 1659.0 |
| | BIG | BUILT IN GARAGE | 3 | 0 | 1973 | 627.0 |
| | OWP | OPEN WOOD PORCH W/STEPS | 3 | 0 | 1973 | 806.6 |
| | OWR | OPEN WOOD PORCH W/STEPS/ROOF | 3 | 0 | 1973 | 96.0 |
Sketch
| No sketches available for this property. |
Property Image
Land
| 1 | 16 | AC (00.51-01.00) | 0.8200 | 35719.20 | 0.00 | 0.00 | 1.00 | $260,000 | $0 |
Roll Value History
| 2026 | N/A | N/A | N/A | N/A | N/A |
| 2025 | $293,788 | $260,000 | $0 | $553,788 | $553,788 |
| 2024 | $277,208 | $240,000 | $0 | $517,208 | $517,208 |
| 2023 | $281,045 | $240,000 | $0 | $521,045 | $521,045 |
| 2022 | $257,969 | $200,000 | $0 | $457,969 | $457,969 |
| 2021 | $227,332 | $160,000 | $0 | $387,332 | $387,332 |
| 2020 | $221,987 | $140,000 | $0 | $361,987 | $361,987 |
| 2019 | $163,523 | $180,000 | $0 | $343,523 | $343,523 |
| 2018 | $136,535 | $190,000 | $0 | $326,535 | $326,535 |
| 2017 | $137,546 | $155,000 | $0 | $292,546 | $292,546 |
| 2016 | $139,568 | $135,000 | $0 | $274,568 | $274,568 |
| 2015 | $141,592 | $100,000 | $0 | $241,592 | $241,592 |
| 2014 | $143,615 | $95,000 | $0 | $238,615 | $238,615 |
| 2013 | $143,558 | $95,000 | $0 | $238,558 | $238,558 |
| 2012 | $145,524 | $106,250 | $0 | $251,774 | $251,774 |
| 2011 | $147,489 | $125,000 | $0 | $272,489 | $272,489 |
| 2010 | $158,096 | $125,000 | $0 | $283,096 | $283,096 |
| 2009 | $164,946 | $145,000 | $0 | $309,946 | $309,946 |
| 2008 | $175,507 | $145,000 | $0 | $320,507 | $320,507 |
| 2007 | $177,797 | $145,000 | $0 | $322,797 | $322,797 |
Deed and Sales History
| 1 | 07/01/2013 | WD | Warranty Deed | SCHUTTE, ROBERT W | SNYDER, MARK W | | | $250,000.00 | 11923 | 4343484 |
| 2 | 01/12/2004 | 5 | DNU - Marriage License/Name Change | SCHUTTE, ROBERT W | SCHUTTE, ROBERT W | | | $0.00 | 40166 | 4088568 |
| 3 | 10/22/2001 | WD | Warranty Deed | MASSEY JR, PRESTON | SCHUTTE, ROBERT W | | | $195,000.00 | 14126 | 4000951 |
| 4 | 09/21/1999 | WD | Warranty Deed | COX, LOWELL D | MASSEY JR, PRESTON | | | $180,000.00 | 93936 | 99021929 |
| 5 | 06/24/1999 | BLA | DNU - Boundary Line Adjustment | COX, LOWELL D | COX, LOWELL D | | | $0.00 | 68320 | 99011300 |
| 6 | 02/01/1996 | OTHER | Other - Misc. Documents | COX, LOWELL D | COX, LOWELL D | | | $0.00 | 66820 | 96002826 |
| 7 | 01/01/1900 | OTHER | Other - Misc. Documents | Unknown | COX, LOWELL D | | | $0.00 | 34478 | 94016977 |
Payout Agreement
| No payout information available.. |