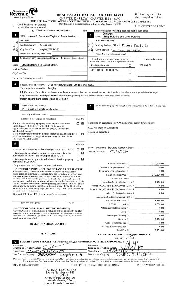
Property
Account |
| Property ID: | 735226 | Abbreviated Legal Description: | E430'OF NW NW EX S/2 S/2 NW NW EX SLEEPER RD FR 518-1290 & 482-1120 TGW EZ AF#96003933 |
| Geographic ID: | R23320-495-1180 | Agent Code: | |
| Type: | Real | | |
| Tax Area: | 112 - APPRAISER-OH Schl Dist, outside OH, improved, greater than 1 acre | Land Use Code | 11 |
| Open Space: | N | DFL | N |
| Historic Property: | N | Remodel Property: | N |
| Multi-Family Redevelopment: | N | | |
| Township: | 33 | Section: | 20 |
| Range: | R2 |
Location |
| Address: | 492 W SLEEPER RD OAK HARBOR, WA 98277 | Mapsco: | |
| Neighborhood: | Cycle 6 | Map ID: | 614 |
| Neighborhood CD: | 6 |
Owner |
| Name: | BLIVEN, DONALD | Owner ID: | 293215 |
| Mailing Address: | JESSICA BLIVEN 492 E SLEEPER RD OAK HARBOR, WA 98277 | % Ownership: | 100.0000000000% |
| | | Exemptions: | |
Taxes and Assessment Details
Values
| (+) Improvement Homesite Value: | + | $0 | |
| (+) Improvement Non-Homesite Value: | + | $479,377 | |
| (+) Land Homesite Value: | + | $0 | |
| (+) Land Non-Homesite Value: | + | $300,000 | |
| (+) Curr Use (HS): | + | $0 | $0 |
| (+) Curr Use (NHS): | + | $0 | $0 |
| | | -------------------------- | |
| (=) Market Value: | = | $779,377 | |
| (–) Productivity Loss: | – | $0 | |
| | | -------------------------- | |
| (=) Subtotal: | = | $779,377 | |
| (+) Senior Appraised Value: | + | $0 | |
| (+) Non-Senior Appraised Value: | + | $779,377 | |
| | | -------------------------- | |
| (=) Total Appraised Value: | = | $779,377 | |
| (–) Senior Exemption Loss: | – | $0 | |
| (–) Exemption Loss: | – | $0 | |
| | | -------------------------- | |
| (=) Taxable Value: | = | $779,377 | |
Taxing Jurisdiction
| Owner: | BLIVEN, DONALD | | |
| % Ownership: | 100.0000000000% | | |
| Total Value: | $779,377 | | |
| Tax Area: | 112 - APPRAISER-OH Schl Dist, outside OH, improved, greater than 1 acre |
| CF | Conservation Futures | 0.0316035091 | $779,377 | $779,377 | $24.63 | | |
| CEM1 | Cemetery #1 | 0.0040320932 | $779,377 | $779,377 | $3.14 | | |
| FIRE2 | Fire & Rescue Dist #2 N Whidbey GEN | 0.5475949600 | $779,377 | $779,377 | $426.78 | | |
| HOBOND | Hospital BOND | 0.1910887512 | $779,377 | $779,377 | $148.93 | | |
| HOGEN | Hospital GEN | 0.3902502903 | $779,377 | $779,377 | $304.15 | | |
| CE | County Current Expense | 0.3708482477 | $779,377 | $779,377 | $289.03 | | |
| CR | County Roads | 0.4584763726 | $779,377 | $779,377 | $357.33 | | |
| ISLANDEMS | Hospital GEN (EMS) | 0.5000000000 | $779,377 | $779,377 | $389.69 | | |
| LIB | Library Sno-Isle GEN | 0.3153421757 | $779,377 | $779,377 | $245.77 | | |
| NWHIDPRMT | P & R N Whidbey GEN | 0.2004466701 | $779,377 | $779,377 | $156.22 | | |
| SCH201MO | School 201 Enrichment | 1.8559231640 | $779,377 | $779,377 | $1,446.46 | | |
| ST | State School | 1.3035497053 | $779,377 | $779,377 | $1,015.96 | | |
| ST2 | State School Part 2 | 0.8169543533 | $779,377 | $779,377 | $636.72 | | |
| | Total Tax Rate: | 6.9861102925 | | | | | |
| | | | | Taxes w/Current Exemptions: | $5,444.81 | | |
| | | | | Taxes w/o Exemptions: | $5,444.81 | | |
Improvement / Building
| Improvement #1: | RESIDENTIAL | State Code: | Y | 2903.5 sqft | Value: | $479,377 |
| Bathrooms: | 3 | Bedrooms: | 3 | | Ceiling: | DRYWALL PAINTED | Exterior Wall/Cover: | CEMENT FIBER | | Floor Covering: | HARDWOOD/CARP 60-40 | Floor Structure: | WOOD W/SUBFLOOR | | Foundation: | CONCRETE | Heating: | FHA OIL | | Interior Finish: | DRYWALL PAINT | Plumbing Fixture Cnt: | 15 | | Roof Slope: | 4" IN 12" | Roof Structure/Cover: | BEAM ASPHALT |
|
| | Type | Description | Class CD | Sub Class CD | Year Built | Area |
| | BAS | BASE/MAIN FLOOR | 3 | 0 | 1966 | 1570.5 |
| | OP1 | OPEN PORCH SLAB | 3 | 0 | 1966 | 221.0 |
| | DGR | DETACHED GARAGE | 3 | 0 | 1966 | 405.0 |
| | UTY | STORAGE/UTILITY | 3 | 0 | 1966 | 495.0 |
| | DWN | DOWNSTAIRS LIVING AREA | 3 | 0 | 1966 | 1333.0 |
| | OWP | OPEN WOOD PORCH W/STEPS | 3 | 0 | 1966 | 497.5 |
| | OP4 | OPEN PORCH W/CEILING-ROOF | 3 | 0 | 1966 | 595.0 |
| | DGR | DETACHED GARAGE | 3 | 0 | 1966 | 600.0 |
| | UTY | STORAGE/UTILITY | 3 | 0 | 1966 | 384.0 |
| | CPD | OPEN CARPORT DIRT FLOOR | 3 | 0 | 1966 | 200.0 |
| | CPD | OPEN CARPORT DIRT FLOOR | 3 | 0 | 1966 | 480.0 |
| | CPD | OPEN CARPORT DIRT FLOOR | 3 | 0 | 1966 | 300.0 |
Sketch
Property Image
Land
| 1 | 32 | AC (03.01-09.99) | 9.5300 | 415126.80 | 0.00 | 0.00 | 1.00 | $300,000 | $0 |
Roll Value History
| 2026 | N/A | N/A | N/A | N/A | N/A |
| 2025 | $479,377 | $300,000 | $0 | $779,377 | $779,377 |
| 2024 | $485,581 | $280,000 | $0 | $765,581 | $765,581 |
| 2023 | $491,787 | $270,000 | $0 | $761,787 | $761,787 |
| 2022 | $450,940 | $240,000 | $0 | $690,940 | $690,940 |
| 2021 | $397,019 | $175,000 | $0 | $572,019 | $572,019 |
| 2020 | $387,458 | $150,000 | $0 | $537,458 | $537,458 |
| 2019 | $307,431 | $220,000 | $0 | $527,431 | $527,431 |
| 2018 | $308,353 | $220,000 | $0 | $528,353 | $528,353 |
| 2017 | $310,198 | $200,000 | $0 | $510,198 | $510,198 |
| 2016 | $182,718 | $150,000 | $0 | $332,718 | $332,718 |
| 2015 | $185,458 | $155,000 | $0 | $340,458 | $340,458 |
| 2014 | $188,199 | $165,000 | $0 | $353,199 | $353,199 |
| 2013 | $192,941 | $162,010 | $0 | $354,951 | $354,951 |
| 2012 | $195,682 | $85,770 | $0 | $281,452 | $281,452 |
| 2011 | $194,382 | $95,300 | $0 | $289,682 | $289,682 |
| 2010 | $219,681 | $95,300 | $0 | $314,981 | $314,981 |
| 2009 | $203,096 | $209,660 | $0 | $412,756 | $412,756 |
| 2008 | $206,424 | $118,877 | $0 | $325,301 | $325,301 |
| 2007 | $209,952 | $118,877 | $0 | $328,829 | $328,829 |
Deed and Sales History
| 1 | 01/09/2020 | WD | Warranty Deed | GROBBEL, BRIAN | BLIVEN, DONALD | | | $625,000.00 | 41812 | 4479390 |
| 2 | 08/29/2016 | WD | Warranty Deed | JACKSON, JAYCEE | GROBBEL, BRIAN | | | $490,000.00 | 25900 | 4406246 |
| 3 | 12/12/2001 | WD | Warranty Deed | HUFF, KANDI L | JACKSON, JAYCEE | | | $233,257.00 | 14674 | 4005477 |
| 4 | 09/01/1996 | WD | Warranty Deed | CHAMBERS, JAMES C | HUFF, KANDI L | | | $185,000.00 | 63491 | 96017096 |
| 5 | 02/01/1996 | OTHER | Other - Misc. Documents | CHAMBERS, JAMES C | CHAMBERS, JAMES C | | | $0.00 | 66821 | 96001338 |
Payout Agreement
| No payout information available.. |