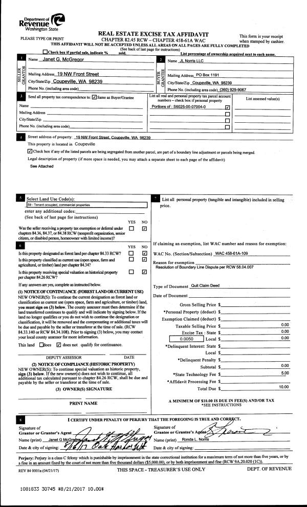
Property
Account |
| Property ID: | 735556 | Abbreviated Legal Description: | S/2 N/2 SW NE TGW E110'OF S/2 N/2 SE NW FR 340-3200 |
| Geographic ID: | R32911-355-3200 | Agent Code: | |
| Type: | Real | | |
| Tax Area: | 719 - APPRAISER-S Whid Schl Dist, outside Langley, vacant & 50 acres or less | Land Use Code | 88 |
| Open Space: | N | DFL | Y |
| Historic Property: | N | Remodel Property: | N |
| Multi-Family Redevelopment: | N | | |
| Township: | 29 | Section: | 11 |
| Range: | R3 |
Location |
| Address: | LANGLEY, WA 98260 | Mapsco: | |
| Neighborhood: | Cycle 4 | Map ID: | 761 |
| Neighborhood CD: | 4 |
Owner |
| Name: | SIMONS, LESLIE ANNE | Owner ID: | 281561 |
| Mailing Address: | PO BOX 368 LANGLEY, WA 98260 | % Ownership: | 100.0000000000% |
| | | Exemptions: | |
Taxes and Assessment Details
Values
| (+) Improvement Homesite Value: | + | $0 | |
| (+) Improvement Non-Homesite Value: | + | $0 | |
| (+) Land Homesite Value: | + | $0 | |
| (+) Land Non-Homesite Value: | + | $31,044 | |
| (+) Curr Use (HS): | + | $0 | $0 |
| (+) Curr Use (NHS): | + | $298,956 | $1,435 |
| | | -------------------------- | |
| (=) Market Value: | = | $330,000 | |
| (–) Productivity Loss: | – | $297,521 | |
| | | -------------------------- | |
| (=) Subtotal: | = | $32,479 | |
| (+) Senior Appraised Value: | + | $0 | |
| (+) Non-Senior Appraised Value: | + | $32,479 | |
| | | -------------------------- | |
| (=) Total Appraised Value: | = | $32,479 | |
| (–) Senior Exemption Loss: | – | $0 | |
| (–) Exemption Loss: | – | $0 | |
| | | -------------------------- | |
| (=) Taxable Value: | = | $32,479 | |
Taxing Jurisdiction
| Owner: | SIMONS, LESLIE ANNE | | |
| % Ownership: | 100.0000000000% | | |
| Total Value: | $330,000 | | |
| Tax Area: | 719 - APPRAISER-S Whid Schl Dist, outside Langley, vacant & 50 acres or less |
| CF | Conservation Futures | 0.0316035091 | $32,479 | $32,479 | $1.03 | | |
| HOBOND | Hospital BOND | 0.1910887512 | $32,479 | $32,479 | $6.21 | | |
| HOGEN | Hospital GEN | 0.3902502903 | $32,479 | $32,479 | $12.67 | | |
| CE | County Current Expense | 0.3708482477 | $32,479 | $32,479 | $12.04 | | |
| CR | County Roads | 0.4584763726 | $32,479 | $32,479 | $14.89 | | |
| ISLANDEMS | Hospital GEN (EMS) | 0.5000000000 | $32,479 | $32,479 | $16.24 | | |
| LIB | Library Sno-Isle GEN | 0.3153421757 | $32,479 | $32,479 | $10.24 | | |
| PORTWHID | Port of S Whidbey GEN | 0.1094540357 | $32,479 | $32,479 | $3.55 | | |
| SCH206BOND | School 206 BOND | 0.3161759235 | $32,479 | $32,479 | $10.27 | | |
| SCH206MO | School 206 Enrichment | 0.4547169547 | $32,479 | $32,479 | $14.77 | | |
| ST | State School | 1.3035497053 | $32,479 | $32,479 | $42.34 | | |
| ST2 | State School Part 2 | 0.8169543533 | $32,479 | $32,479 | $26.53 | | |
| SWHIDPRBD | P & R S Whidbey BOND | 0.0152817568 | $32,479 | $32,479 | $0.50 | | |
| SWHIDPRBD2 | P & R S Whidbey BOND2 | 0.0138911264 | $32,479 | $32,479 | $0.45 | | |
| SWHIDPRMT | P & R S Whidbey GEN | 0.2053334452 | $32,479 | $32,479 | $6.67 | | |
| | Total Tax Rate: | 5.4929666475 | | | | | |
| | | | | Taxes w/Current Exemptions: | $178.40 | | |
| | | | | Taxes w/o Exemptions: | $178.40 | | |
Improvement / Building
Sketch
| No sketches available for this property. |
Property Image
Land
| 1 | 35 | AC (10.00-30.99) | 9.6300 | 419482.80 | 0.00 | 0.00 | 1.00 | $298,956 | $1,435 |
| 2 | 35 | AC (10.00-30.99) | 1.0000 | 43560.00 | 0.00 | 0.00 | 1.00 | $31,044 | $0 |
Roll Value History
| 2026 | N/A | N/A | N/A | N/A | N/A |
| 2025 | $0 | $330,000 | $1,435 | $32,479 | $32,479 |
| 2024 | $0 | $320,000 | $1,445 | $24,004 | $24,004 |
| 2023 | $0 | $280,000 | $1,387 | $27,728 | $27,728 |
| 2022 | $0 | $250,000 | $1,387 | $24,905 | $24,905 |
| 2021 | $0 | $160,000 | $1,387 | $16,439 | $16,439 |
| 2020 | $0 | $160,000 | $1,387 | $16,439 | $16,439 |
| 2019 | $0 | $160,000 | $1,339 | $16,391 | $16,391 |
| 2018 | $0 | $150,000 | $1,319 | $15,430 | $15,430 |
| 2017 | $0 | $130,000 | $1,319 | $13,549 | $13,549 |
| 2016 | $0 | $130,000 | $944 | $13,174 | $13,174 |
| 2015 | $0 | $130,000 | $944 | $13,174 | $13,174 |
| 2014 | $0 | $117,462 | $944 | $11,994 | $11,994 |
| 2013 | $0 | $117,462 | $944 | $11,994 | $11,994 |
| 2012 | $0 | $163,710 | $944 | $944 | $944 |
| 2011 | $0 | $192,600 | $944 | $944 | $944 |
| 2010 | $0 | $192,600 | $944 | $944 | $944 |
| 2009 | $0 | $192,600 | $944 | $944 | $944 |
| 2008 | $0 | $167,562 | $944 | $944 | $944 |
| 2007 | $0 | $167,562 | $944 | $944 | $944 |
Deed and Sales History
| 1 | 06/01/2017 | PRD | Personal Representatives Deed | SIMONS, JOHN V | SIMONS, LESLIE ANNE | | | $0.00 | 30761 | 4428737 |
| 2 | 07/28/1998 | OTHER | Other - Misc. Documents | SIMONS, JOHN V | SIMONS, JOHN V | | | $0.00 | 83048 | 98015837 |
| 3 | 03/01/1996 | OTHER | Other - Misc. Documents | PORT, GARDNER T | PORT, GARDNER T | | | $0.00 | 66825 | 0 |
| 4 | 01/01/1900 | OTHER | Other - Misc. Documents | Unknown | PORT, GARDNER T | | | $0.00 | 24486 | 92021947 |
| 5 | 01/01/1900 | OTHER | Other - Misc. Documents | PORT, GARDNER T | SIMONS, JOHN V | | | $0.00 | 83048 | 98015837 |
Payout Agreement
| No payout information available.. |