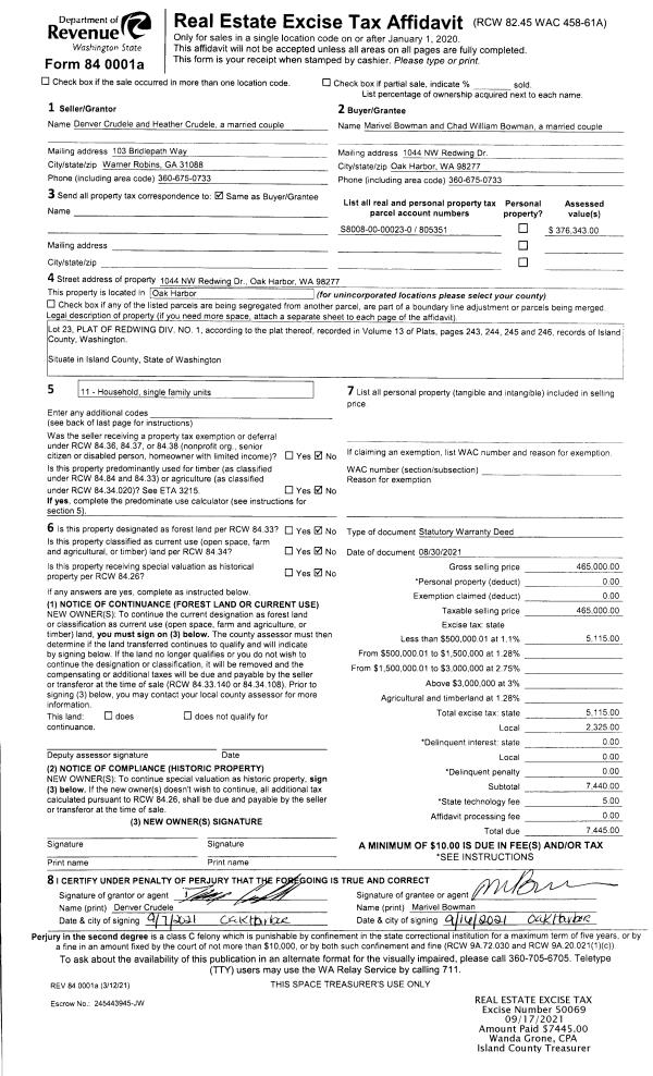
Property
Account |
| Property ID: | 735841 | Abbreviated Legal Description: | LOT 3 SP 33-94.23202.353-2960 V3 SP P70 AF#96002296 |
| Geographic ID: | R23202-342-2770 | Agent Code: | |
| Type: | Real | | |
| Tax Area: | 110 - APPRAISER-OH Schl Dist, outside OH, improved & 1 acre or less | Land Use Code | 11 |
| Open Space: | N | DFL | N |
| Historic Property: | N | Remodel Property: | N |
| Multi-Family Redevelopment: | N | | |
| Township: | 32 | Section: | 02 |
| Range: | R2 |
Location |
| Address: | 2228 MARINER BEACH DR OAK HARBOR, WA 98277 | Mapsco: | |
| Neighborhood: | Cycle 6 | Map ID: | 539 |
| Neighborhood CD: | 6 |
Owner |
| Name: | WILLIFORD, STEVEN R | Owner ID: | 297581 |
| Mailing Address: | 2228 MARINER BEACH DR OAK HARBOR, WA 98277 | % Ownership: | 100.0000000000% |
| | | Exemptions: | |
Taxes and Assessment Details
Values
| (+) Improvement Homesite Value: | + | $0 | |
| (+) Improvement Non-Homesite Value: | + | $449,203 | |
| (+) Land Homesite Value: | + | $0 | |
| (+) Land Non-Homesite Value: | + | $190,000 | |
| (+) Curr Use (HS): | + | $0 | $0 |
| (+) Curr Use (NHS): | + | $0 | $0 |
| | | -------------------------- | |
| (=) Market Value: | = | $639,203 | |
| (–) Productivity Loss: | – | $0 | |
| | | -------------------------- | |
| (=) Subtotal: | = | $639,203 | |
| (+) Senior Appraised Value: | + | $0 | |
| (+) Non-Senior Appraised Value: | + | $639,203 | |
| | | -------------------------- | |
| (=) Total Appraised Value: | = | $639,203 | |
| (–) Senior Exemption Loss: | – | $0 | |
| (–) Exemption Loss: | – | $0 | |
| | | -------------------------- | |
| (=) Taxable Value: | = | $639,203 | |
Taxing Jurisdiction
| Owner: | WILLIFORD, STEVEN R | | |
| % Ownership: | 100.0000000000% | | |
| Total Value: | $639,203 | | |
| Tax Area: | 110 - APPRAISER-OH Schl Dist, outside OH, improved & 1 acre or less |
| CF | Conservation Futures | 0.0316035091 | $639,203 | $639,203 | $20.20 | | |
| CEM1 | Cemetery #1 | 0.0040320932 | $639,203 | $639,203 | $2.58 | | |
| FIRE2 | Fire & Rescue Dist #2 N Whidbey GEN | 0.5475949600 | $639,203 | $639,203 | $350.02 | | |
| HOBOND | Hospital BOND | 0.1910887512 | $639,203 | $639,203 | $122.14 | | |
| HOGEN | Hospital GEN | 0.3902502903 | $639,203 | $639,203 | $249.45 | | |
| CE | County Current Expense | 0.3708482477 | $639,203 | $639,203 | $237.05 | | |
| CR | County Roads | 0.4584763726 | $639,203 | $639,203 | $293.06 | | |
| ISLANDEMS | Hospital GEN (EMS) | 0.5000000000 | $639,203 | $639,203 | $319.60 | | |
| LIB | Library Sno-Isle GEN | 0.3153421757 | $639,203 | $639,203 | $201.57 | | |
| NWHIDPRMT | P & R N Whidbey GEN | 0.2004466701 | $639,203 | $639,203 | $128.13 | | |
| SCH201MO | School 201 Enrichment | 1.8559231640 | $639,203 | $639,203 | $1,186.31 | | |
| ST | State School | 1.3035497053 | $639,203 | $639,203 | $833.23 | | |
| ST2 | State School Part 2 | 0.8169543533 | $639,203 | $639,203 | $522.20 | | |
| | Total Tax Rate: | 6.9861102925 | | | | | |
| | | | | Taxes w/Current Exemptions: | $4,465.54 | | |
| | | | | Taxes w/o Exemptions: | $4,465.54 | | |
Improvement / Building
| Improvement #1: | RESIDENTIAL | State Code: | Y | 2174.4 sqft | Value: | $449,203 |
| Bathrooms: | 3 | Bedrooms: | 3 | | Ceiling: | DRYWALL PAINTED | Exterior Wall/Cover: | PLY/HARDBOARD T-111 | | Floor Covering: | HARDWOOD/CARP 60-40 | Floor Structure: | WOOD W/SUBFLOOR | | Foundation: | CONCRETE | Heating: | FHA GAS | | Interior Finish: | DRYWALL PAINT | Plumbing Fixture Cnt: | 16 | | Roof Slope: | 8" IN 12" | Roof Structure/Cover: | CJ ASPHALT |
|
| | Type | Description | Class CD | Sub Class CD | Year Built | Area |
| | BAS | BASE/MAIN FLOOR | 4 | 0 | 2007 | 1647.6 |
| | BIG | BUILT IN GARAGE | 4 | 0 | 2007 | 399.8 |
| | OWP | OPEN WOOD PORCH W/STEPS | 4 | 0 | 2007 | 196.1 |
| | UPH | HALF STORY | 4 | 0 | 2007 | 526.8 |
| | OP4 | OPEN PORCH W/CEILING-ROOF | 4 | 0 | 2007 | 39.1 |
| | UTY | STORAGE/UTILITY | 4 | 0 | 2007 | 120.0 |
Sketch
Property Image
Land
| 1 | 15 | SQ (12001-21780) | 0.0000 | 0.00 | 0.00 | 0.00 | 1.00 | $190,000 | $0 |
Roll Value History
| 2026 | N/A | N/A | N/A | N/A | N/A |
| 2025 | $449,203 | $190,000 | $0 | $639,203 | $639,203 |
| 2024 | $454,349 | $170,000 | $0 | $624,349 | $624,349 |
| 2023 | $459,498 | $170,000 | $0 | $629,498 | $629,498 |
| 2022 | $416,231 | $160,000 | $0 | $576,231 | $576,231 |
| 2021 | $365,160 | $125,000 | $0 | $490,160 | $490,160 |
| 2020 | $296,737 | $110,000 | $0 | $406,737 | $406,737 |
| 2019 | $224,275 | $150,000 | $0 | $374,275 | $374,275 |
| 2018 | $224,910 | $130,000 | $0 | $354,910 | $354,910 |
| 2017 | $226,180 | $110,000 | $0 | $336,180 | $336,180 |
| 2016 | $224,224 | $90,000 | $0 | $314,224 | $314,224 |
| 2015 | $226,716 | $85,000 | $0 | $311,716 | $311,716 |
| 2014 | $229,206 | $100,000 | $0 | $329,206 | $329,206 |
| 2013 | $231,698 | $90,000 | $0 | $321,698 | $321,698 |
| 2012 | $234,189 | $99,000 | $0 | $333,189 | $333,189 |
| 2011 | $236,682 | $110,000 | $0 | $346,682 | $346,682 |
| 2010 | $272,458 | $110,000 | $0 | $382,458 | $382,458 |
| 2009 | $315,148 | $141,588 | $0 | $456,736 | $456,736 |
| 2008 | $283,767 | $130,000 | $0 | $413,767 | $413,767 |
| 2007 | $294,701 | $60,361 | $0 | $355,062 | $355,062 |
Deed and Sales History
| 1 | 12/29/2020 | WD | Warranty Deed | MASSEY, W L | WILLIFORD, STEVEN R | | | $585,000.00 | 46408 | 4506824 |
Payout Agreement
| No payout information available.. |