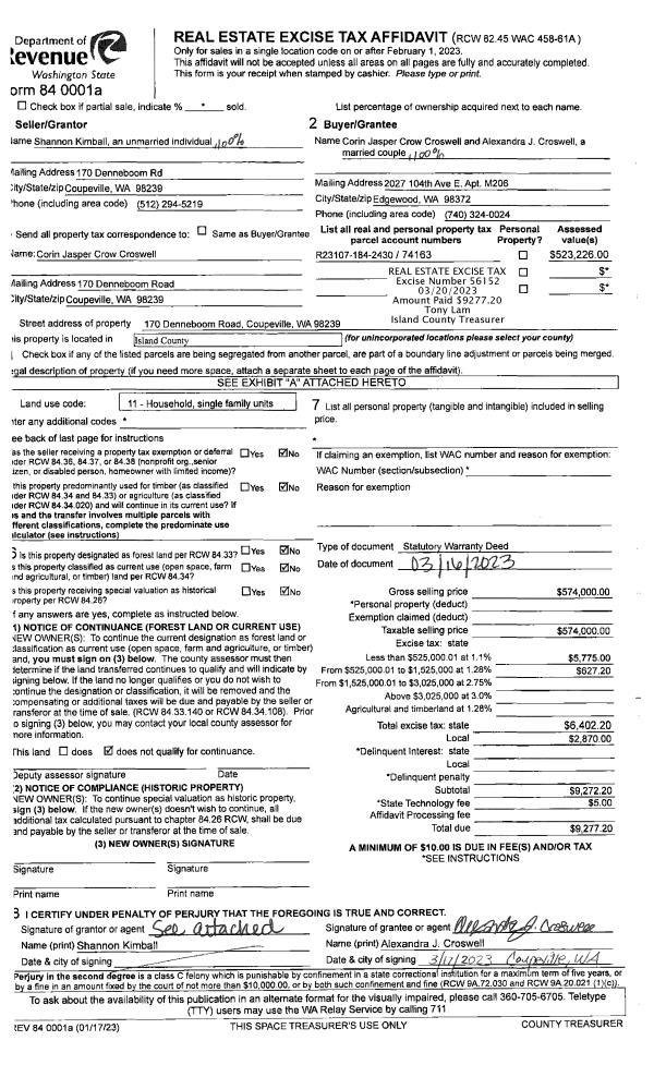
Property
Account |
| Property ID: | 735949 | Abbreviated Legal Description: | 55 - IN GL2:BG NE CR L2 B8 BUENA V3 W2.43' N22*W227.1' |
| Geographic ID: | R33219-331-0700 | Agent Code: | |
| Type: | Real | | |
| Tax Area: | 590 - APPRAISER-Stan/Cam Schl Dist, Special Dist, improved & less than 1 acre | Land Use Code | 11 |
| Open Space: | N | DFL | N |
| Historic Property: | N | Remodel Property: | N |
| Multi-Family Redevelopment: | N | | |
| Township: | 32 | Section: | 19 |
| Range: | R3 |
Location |
| Address: | 60 STILLAGUAMISH AVE CAMANO ISLAND, WA 98282 | Mapsco: | |
| Neighborhood: | North Camano | Map ID: | 962 |
| Neighborhood CD: | 06-C |
Owner |
| Name: | KEITH, CHARLES A | Owner ID: | 279337 |
| Mailing Address: | 124 UTSALADY CAMANO ISLAND, WA 98282 | % Ownership: | 100.0000000000% |
| | | Exemptions: | |
Taxes and Assessment Details
Values
| (+) Improvement Homesite Value: | + | $50,970 | |
| (+) Improvement Non-Homesite Value: | + | $0 | |
| (+) Land Homesite Value: | + | $330,000 | |
| (+) Land Non-Homesite Value: | + | $0 | |
| (+) Curr Use (HS): | + | $0 | $0 |
| (+) Curr Use (NHS): | + | $0 | $0 |
| | | -------------------------- | |
| (=) Market Value: | = | $380,970 | |
| (–) Productivity Loss: | – | $0 | |
| | | -------------------------- | |
| (=) Subtotal: | = | $380,970 | |
| (+) Senior Appraised Value: | + | $0 | |
| (+) Non-Senior Appraised Value: | + | $380,970 | |
| | | -------------------------- | |
| (=) Total Appraised Value: | = | $380,970 | |
| (–) Senior Exemption Loss: | – | $0 | |
| (–) Exemption Loss: | – | $0 | |
| | | -------------------------- | |
| (=) Taxable Value: | = | $380,970 | |
Taxing Jurisdiction
| Owner: | KEITH, CHARLES A | | |
| % Ownership: | 100.0000000000% | | |
| Total Value: | $380,970 | | |
| Tax Area: | 590 - APPRAISER-Stan/Cam Schl Dist, Special Dist, improved & less than 1 acre |
| CF | Conservation Futures | 0.0316035091 | $380,970 | $380,970 | $12.04 | | |
| EMS1 | Fire & Rescue Dist #1 Camano GEN (EMS) | 0.3677864386 | $380,970 | $380,970 | $140.12 | | |
| FIRE1 | Fire & Rescue Dist #1 Camano GEN | 1.2502910536 | $380,970 | $380,970 | $476.32 | | |
| FIRE1BOND | Fire & Rescue Dist #1 Camano BOND | 0.1570001679 | $380,970 | $380,970 | $59.81 | | |
| CE | County Current Expense | 0.3708482477 | $380,970 | $380,970 | $141.28 | | |
| CR | County Roads | 0.4584763726 | $380,970 | $380,970 | $174.67 | | |
| LCIB | Library Sno-Isle BOND (Camano Island) | 0.0396325772 | $380,970 | $380,970 | $15.10 | | |
| LIB | Library Sno-Isle GEN | 0.3153421757 | $380,970 | $380,970 | $120.14 | | |
| SCH205_401 | School 205-401 Enrichment | 1.2698420524 | $380,970 | $380,970 | $483.77 | | |
| SCH205BOND | School 205-401 BOND | 0.9396497583 | $380,970 | $380,970 | $357.98 | | |
| ST | State School | 1.3035497053 | $380,970 | $380,970 | $496.61 | | |
| ST2 | State School Part 2 | 0.8169543533 | $380,970 | $380,970 | $311.24 | | |
| | Total Tax Rate: | 7.3209764117 | | | | | |
| | | | | Taxes w/Current Exemptions: | $2,789.08 | | |
| | | | | Taxes w/o Exemptions: | $2,789.08 | | |
Improvement / Building
| Improvement #1: | MANUFACTURED HOME | State Code: | Y | 1248.0 sqft | Value: | $50,970 |
| Bathrooms: | 0 | Bedrooms: | 0 | | Ceiling: | PLASTER PAINTED | Cooling: | EVAP NO DUCT | | Exterior Wall/Cover: | VINYL | Floor Covering: | CARPET 100% | | Floor Structure: | SLAB ON GRADE | Foundation: | SLAB | | Heating: | FHA ELECTRIC | Interior Finish: | PLASTER | | Plumbing Fixture Cnt: | 1 | Roof Slope: | FLAT | | Roof Structure/Cover: | CJ ALUMINIUM HEAVY |   |   |
|
| | Type | Description | Class CD | Sub Class CD | Year Built | Area |
| | BAS | BASE/MAIN FLOOR | 4 | 0 | 1978 | 1248.0 |
| | DGR | DETACHED GARAGE | 4 | 0 | 1978 | 484.0 |
| | OWP | OPEN WOOD PORCH W/STEPS | 4 | 0 | 1978 | 320.0 |
| | OP3 | OPEN PORCH W/ROOF | 4 | 0 | 1978 | 96.0 |
Sketch
Property Image
Land
| 1 | 15 | SQ (12001-21780) | 0.0000 | 0.00 | 0.00 | 0.00 | 1.00 | $330,000 | $0 |
Roll Value History
| 2026 | N/A | N/A | N/A | N/A | N/A |
| 2025 | $50,970 | $330,000 | $0 | $380,970 | $380,970 |
| 2024 | $52,669 | $330,000 | $0 | $382,669 | $382,669 |
| 2023 | $48,757 | $360,000 | $0 | $408,757 | $408,757 |
| 2022 | $38,632 | $260,000 | $0 | $298,632 | $298,632 |
| 2021 | $35,626 | $220,000 | $0 | $255,626 | $255,626 |
| 2020 | $37,551 | $190,000 | $0 | $227,551 | $227,551 |
| 2019 | $31,134 | $230,000 | $0 | $261,134 | $261,134 |
| 2018 | $32,692 | $150,000 | $0 | $182,692 | $182,692 |
| 2017 | $34,247 | $150,000 | $0 | $184,247 | $184,247 |
| 2016 | $29,317 | $100,000 | $0 | $129,317 | $129,317 |
| 2015 | $30,783 | $100,000 | $0 | $130,783 | $3,882 |
| 2014 | $32,248 | $100,000 | $0 | $132,248 | $3,882 |
| 2013 | $33,716 | $100,000 | $0 | $133,716 | $3,882 |
| 2012 | $35,181 | $100,000 | $0 | $135,181 | $3,882 |
| 2011 | $37,379 | $125,000 | $0 | $162,379 | $3,882 |
| 2010 | $48,943 | $125,000 | $0 | $173,943 | $3,882 |
| 2009 | $51,490 | $150,000 | $0 | $201,490 | $3,882 |
| 2008 | $53,185 | $150,000 | $0 | $203,185 | $3,882 |
| 2007 | $54,882 | $150,000 | $0 | $204,882 | $3,882 |
Deed and Sales History
| 1 | 04/05/2017 | QCD | Quit Claim Deed | KEITH, HAROLD F | KEITH, CHARLES A | | | $27,655.00 | 28783 | 4420313 |
| 2 | 03/01/1984 | OTHER | Other - Misc. Documents | Unknown | KEITH, HAROLD F | | | $24,000.00 | 40518 | 0 |
| 3 | 02/01/1984 | WD | Warranty Deed | YOTTY, JOHN R | KEITH, HAROLD F | | | $24,000.00 | 40519 | 421547 |
| 4 | 01/01/1900 | OTHER | Other - Misc. Documents | KEITH, HAROLD F | YOTTY, JOHN R | | | $0.00 | 0 | 0 |
Payout Agreement
| No payout information available.. |