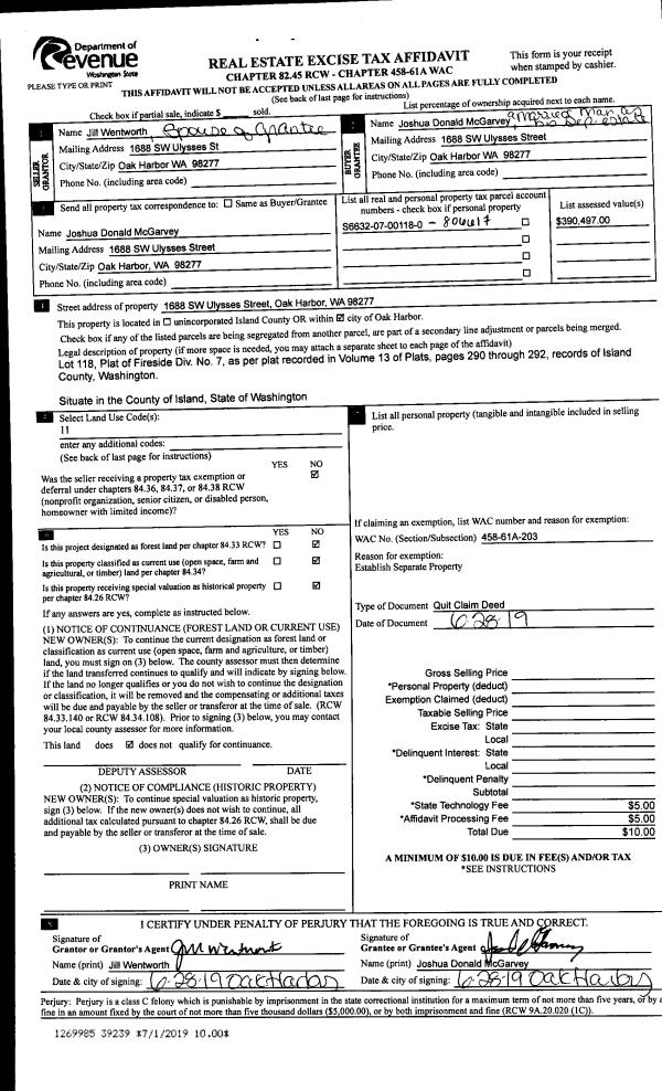
Property
Account |
| Property ID: | 735976 | Abbreviated Legal Description: | BAKER VIEW CONDOS UNIT A-102 5.555% INT |
| Geographic ID: | S6064-00-0A102-0 | Agent Code: | |
| Type: | Real | | |
| Tax Area: | 100 - APPRAISER-OH Schl Dist, in OH | Land Use Code | 14 |
| Open Space: | N | DFL | N |
| Historic Property: | N | Remodel Property: | N |
| Multi-Family Redevelopment: | N | | |
| Township: | | Section: | |
| Range: | |
Location |
| Address: | 300 N OAK HARBOR ST UNIT A-102 OAK HARBOR, WA 98277 | Mapsco: | |
| Neighborhood: | 4B*OH-bakerview | Map ID: | 256 |
| Neighborhood CD: | 4B*OHbkrvw |
Owner |
| Name: | RUIZ, LORENA A | Owner ID: | 290226 |
| Mailing Address: | 300 N OAK HARBOR ST APT A102 OAK HARBOR, WA 98277 | % Ownership: | 100.0000000000% |
| | | Exemptions: | |
Taxes and Assessment Details
Values
| (+) Improvement Homesite Value: | + | $0 | |
| (+) Improvement Non-Homesite Value: | + | $205,952 | |
| (+) Land Homesite Value: | + | $0 | |
| (+) Land Non-Homesite Value: | + | $45,000 | |
| (+) Curr Use (HS): | + | $0 | $0 |
| (+) Curr Use (NHS): | + | $0 | $0 |
| | | -------------------------- | |
| (=) Market Value: | = | $250,952 | |
| (–) Productivity Loss: | – | $0 | |
| | | -------------------------- | |
| (=) Subtotal: | = | $250,952 | |
| (+) Senior Appraised Value: | + | $0 | |
| (+) Non-Senior Appraised Value: | + | $250,952 | |
| | | -------------------------- | |
| (=) Total Appraised Value: | = | $250,952 | |
| (–) Senior Exemption Loss: | – | $0 | |
| (–) Exemption Loss: | – | $0 | |
| | | -------------------------- | |
| (=) Taxable Value: | = | $250,952 | |
Taxing Jurisdiction
| Owner: | RUIZ, LORENA A | | |
| % Ownership: | 100.0000000000% | | |
| Total Value: | $250,952 | | |
| Tax Area: | 100 - APPRAISER-OH Schl Dist, in OH |
| CF | Conservation Futures | 0.0316035091 | $250,952 | $250,952 | $7.93 | | |
| CEM1 | Cemetery #1 | 0.0040320932 | $250,952 | $250,952 | $1.01 | | |
| COH | City of Oak Harbor | 2.3001546061 | $250,952 | $250,952 | $577.23 | | |
| OAKBOND | City of Oak Harbor BOND | 0.1926904192 | $250,952 | $250,952 | $48.36 | | |
| HOBOND | Hospital BOND | 0.1910887512 | $250,952 | $250,952 | $47.95 | | |
| HOGEN | Hospital GEN | 0.3902502903 | $250,952 | $250,952 | $97.93 | | |
| CE | County Current Expense | 0.3708482477 | $250,952 | $250,952 | $93.07 | | |
| ISLANDEMS | Hospital GEN (EMS) | 0.5000000000 | $250,952 | $250,952 | $125.48 | | |
| LIB | Library Sno-Isle GEN | 0.3153421757 | $250,952 | $250,952 | $79.14 | | |
| NWHIDPRMT | P & R N Whidbey GEN | 0.2004466701 | $250,952 | $250,952 | $50.30 | | |
| SCH201MO | School 201 Enrichment | 1.8559231640 | $250,952 | $250,952 | $465.75 | | |
| ST | State School | 1.3035497053 | $250,952 | $250,952 | $327.13 | | |
| ST2 | State School Part 2 | 0.8169543533 | $250,952 | $250,952 | $205.02 | | |
| | Total Tax Rate: | 8.4728839852 | | | | | |
| | | | | Taxes w/Current Exemptions: | $2,126.30 | | |
| | | | | Taxes w/o Exemptions: | $2,126.30 | | |
Improvement / Building
| Improvement #1: | RESIDENTIAL | State Code: | A1 | 1329.0 sqft | Value: | $205,952 |
| Bathrooms: | 2 | Bedrooms: | 2 | | Ceiling: | DRYWALL PAINTED | Exterior Wall/Cover: | WOOD SIDING | | Floor Covering: | HARDWOOD/CARP 60-40 | Floor Structure: | WOOD W/SUBFLOOR | | Foundation: | CONCRETE | Heating: | BASEBOARD ELECTRIC | | Interior Finish: | DRYWALL PAINT | Plumbing Fixture Cnt: | 9 | | Roof Slope: | 4" IN 12" | Roof Structure/Cover: | CJ ASPHALT |
|
| | Type | Description | Class CD | Sub Class CD | Year Built | Area |
| | BAS | BASE/MAIN FLOOR | 3 | 0 | 1995 | 1329.0 |
| | OWP | OPEN WOOD PORCH W/STEPS | 3 | 0 | 1995 | 60.0 |
| | OCP | OPEN CARPORT | 3 | 0 | 1995 | 162.0 |
| | oSIT | Site Improvements | 3 | 0 | 1995 | 0.0 |
Sketch
Property Image
Land
| 1 | 61 | MULTIPLE RESIDENCES | 0.8388 | 36538.13 | 0.00 | 0.00 | 1.00 | $45,000 | $0 |
Roll Value History
| 2026 | N/A | N/A | N/A | N/A | N/A |
| 2025 | $205,952 | $45,000 | $0 | $250,952 | $250,952 |
| 2024 | $212,645 | $45,000 | $0 | $257,645 | $257,645 |
| 2023 | $215,353 | $45,000 | $0 | $260,353 | $260,353 |
| 2022 | $198,030 | $60,000 | $0 | $258,030 | $258,030 |
| 2021 | $175,131 | $35,000 | $0 | $210,131 | $210,131 |
| 2020 | $190,131 | $20,000 | $0 | $210,131 | $210,131 |
| 2019 | $137,591 | $60,000 | $0 | $197,591 | $197,591 |
| 2018 | $138,023 | $65,000 | $0 | $203,023 | $203,023 |
| 2017 | $138,885 | $15,875 | $0 | $154,760 | $154,760 |
| 2016 | $140,610 | $15,875 | $0 | $156,485 | $156,485 |
| 2015 | $91,094 | $15,875 | $0 | $106,969 | $106,969 |
| 2014 | $92,198 | $15,875 | $0 | $108,073 | $108,073 |
| 2013 | $116,627 | $15,875 | $0 | $132,502 | $132,502 |
| 2012 | $119,387 | $15,875 | $0 | $135,262 | $135,262 |
| 2011 | $119,387 | $15,875 | $0 | $135,262 | $135,262 |
| 2010 | $121,787 | $38,935 | $0 | $160,722 | $160,722 |
| 2009 | $127,040 | $46,690 | $0 | $173,730 | $173,730 |
| 2008 | $129,475 | $46,690 | $0 | $176,165 | $176,165 |
| 2007 | $131,331 | $46,690 | $0 | $178,021 | $178,021 |
Deed and Sales History
| 1 | 06/07/2019 | WD | Warranty Deed | MEISER, MATTHEW J | RUIZ, LORENA A | | | $211,000.00 | 38943 | 4465269 |
| 2 | 07/20/2016 | WD | Warranty Deed | NOBLE, NANCY A | MEISER, MATTHEW J | | | $176,000.00 | 25328 | 4403614 |
| 3 | 12/30/2015 | ESTSEPPROP | Establish Separate Property | NOBLE, NANCY A | NOBLE, NANCY A | | | $0.00 | 23456 | 4395541 |
| 4 | 05/01/1996 | WD | Warranty Deed | R, PARKS C | NOBLE, NANCY A | | | $85,500.00 | 61892 | 96009453 |
| 5 | 01/01/1900 | OTHER | Other - Misc. Documents | Unknown | R, PARKS C | | | $0.00 | 50678 | 95003175 |
Payout Agreement
| No payout information available.. |