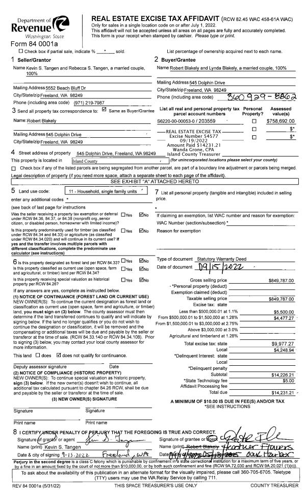
Property
Account |
| Property ID: | 736136 | Abbreviated Legal Description: | MEADOWRIDGE TOWNHOMES UNIT 22-B 1/4 INT |
| Geographic ID: | S7498-00-0022B-0 | Agent Code: | |
| Type: | Real | | |
| Tax Area: | 100 - APPRAISER-OH Schl Dist, in OH | Land Use Code | 14 |
| Open Space: | N | DFL | N |
| Historic Property: | N | Remodel Property: | N |
| Multi-Family Redevelopment: | N | | |
| Township: | | Section: | |
| Range: | |
Location |
| Address: | 944 NW QUARTERDECK LOOP UNIT 22B OAK HARBOR, WA 98277 | Mapsco: | |
| Neighborhood: | 17*OH-meadowrg tn | Map ID: | 254 |
| Neighborhood CD: | 17*OHmdwrg |
Owner |
| Name: | BAATZ, CHRISTIAN | Owner ID: | 275387 |
| Mailing Address: | PO BOX 2611 OAK HARBOR, WA 98277 | % Ownership: | 100.0000000000% |
| | | Exemptions: | |
Taxes and Assessment Details
Values
| (+) Improvement Homesite Value: | + | $0 | |
| (+) Improvement Non-Homesite Value: | + | $216,409 | |
| (+) Land Homesite Value: | + | $0 | |
| (+) Land Non-Homesite Value: | + | $150,000 | |
| (+) Curr Use (HS): | + | $0 | $0 |
| (+) Curr Use (NHS): | + | $0 | $0 |
| | | -------------------------- | |
| (=) Market Value: | = | $366,409 | |
| (–) Productivity Loss: | – | $0 | |
| | | -------------------------- | |
| (=) Subtotal: | = | $366,409 | |
| (+) Senior Appraised Value: | + | $0 | |
| (+) Non-Senior Appraised Value: | + | $366,409 | |
| | | -------------------------- | |
| (=) Total Appraised Value: | = | $366,409 | |
| (–) Senior Exemption Loss: | – | $0 | |
| (–) Exemption Loss: | – | $0 | |
| | | -------------------------- | |
| (=) Taxable Value: | = | $366,409 | |
Taxing Jurisdiction
| Owner: | BAATZ, CHRISTIAN | | |
| % Ownership: | 100.0000000000% | | |
| Total Value: | $366,409 | | |
| Tax Area: | 100 - APPRAISER-OH Schl Dist, in OH |
| CF | Conservation Futures | 0.0316035091 | $366,409 | $366,409 | $11.58 | | |
| CEM1 | Cemetery #1 | 0.0040320932 | $366,409 | $366,409 | $1.48 | | |
| COH | City of Oak Harbor | 2.3001546061 | $366,409 | $366,409 | $842.80 | | |
| OAKBOND | City of Oak Harbor BOND | 0.1926904192 | $366,409 | $366,409 | $70.60 | | |
| HOBOND | Hospital BOND | 0.1910887512 | $366,409 | $366,409 | $70.02 | | |
| HOGEN | Hospital GEN | 0.3902502903 | $366,409 | $366,409 | $142.99 | | |
| CE | County Current Expense | 0.3708482477 | $366,409 | $366,409 | $135.88 | | |
| ISLANDEMS | Hospital GEN (EMS) | 0.5000000000 | $366,409 | $366,409 | $183.20 | | |
| LIB | Library Sno-Isle GEN | 0.3153421757 | $366,409 | $366,409 | $115.54 | | |
| NWHIDPRMT | P & R N Whidbey GEN | 0.2004466701 | $366,409 | $366,409 | $73.45 | | |
| SCH201MO | School 201 Enrichment | 1.8559231640 | $366,409 | $366,409 | $680.03 | | |
| ST | State School | 1.3035497053 | $366,409 | $366,409 | $477.63 | | |
| ST2 | State School Part 2 | 0.8169543533 | $366,409 | $366,409 | $299.34 | | |
| | Total Tax Rate: | 8.4728839852 | | | | | |
| | | | | Taxes w/Current Exemptions: | $3,104.54 | | |
| | | | | Taxes w/o Exemptions: | $3,104.54 | | |
Improvement / Building
| Improvement #1: | RESIDENTIAL | State Code: | A1 | 1243.2 sqft | Value: | $216,409 |
| Bathrooms: | 2.5 | Bedrooms: | 3 | | Ceiling: | DRYWALL PAINTED | Exterior Wall/Cover: | CEMENT FIBER | | Floor Covering: | CARPET/VINYL 80-20 | Floor Structure: | WOOD W/SUBFLOOR | | Foundation: | CONCRETE | Heating: | FHA GAS | | Interior Finish: | DRYWALL PAINT | Plumbing Fixture Cnt: | 11 | | Roof Slope: | 5" IN 12" | Roof Structure/Cover: | CJ ASPHALT |
|
| | Type | Description | Class CD | Sub Class CD | Year Built | Area |
| | BAS | BASE/MAIN FLOOR | 3 | 0 | 1995 | 524.2 |
| | OP3 | OPEN PORCH W/ROOF | 3 | 0 | 1995 | 20.0 |
| | BIG | BUILT IN GARAGE | 3 | 0 | 1995 | 276.0 |
| | UPS | UPPER STORY | 3 | 0 | 1995 | 719.0 |
| | OP1 | OPEN PORCH SLAB | 3 | 0 | 1995 | 100.0 |
Sketch
Property Image
Land
| 1 | 61 | MULTIPLE RESIDENCES | 0.0000 | 3568.00 | 0.00 | 0.00 | 1.00 | $150,000 | $0 |
Roll Value History
| 2026 | N/A | N/A | N/A | N/A | N/A |
| 2025 | $216,409 | $150,000 | $0 | $366,409 | $366,409 |
| 2024 | $219,140 | $150,000 | $0 | $369,140 | $369,140 |
| 2023 | $211,655 | $150,000 | $0 | $361,655 | $361,655 |
| 2022 | $194,130 | $150,000 | $0 | $344,130 | $344,130 |
| 2021 | $170,973 | $85,000 | $0 | $255,973 | $255,973 |
| 2020 | $166,116 | $85,000 | $0 | $251,116 | $251,116 |
| 2019 | $116,919 | $110,000 | $0 | $226,919 | $226,919 |
| 2018 | $117,278 | $65,000 | $0 | $182,278 | $182,278 |
| 2017 | $110,078 | $48,382 | $0 | $158,460 | $158,460 |
| 2016 | $111,509 | $48,382 | $0 | $159,891 | $159,891 |
| 2015 | $112,938 | $48,382 | $0 | $161,320 | $161,320 |
| 2014 | $114,367 | $48,382 | $0 | $162,749 | $162,749 |
| 2013 | $115,797 | $48,382 | $0 | $164,179 | $164,179 |
| 2012 | $117,228 | $48,382 | $0 | $165,610 | $165,610 |
| 2011 | $118,913 | $48,382 | $0 | $167,295 | $167,295 |
| 2010 | $121,743 | $48,382 | $0 | $170,125 | $170,125 |
| 2009 | $126,991 | $64,224 | $0 | $191,215 | $191,215 |
| 2008 | $128,546 | $64,224 | $0 | $192,770 | $192,770 |
| 2007 | $130,137 | $64,224 | $0 | $194,361 | $194,361 |
Deed and Sales History
| 1 | 02/28/2022 | QCD | Quit Claim Deed | BAATZ, VIRGINIA D | BAATZ, CHRISTIAN W | | | $0.00 | 52105 | 4540566 |
| 2 | 05/24/2016 | WD | Warranty Deed | ZIESCHANG JTWROS, GENE A | BAATZ, CHRISTIAN | | | $217,500.00 | 24468 | 4400018 |
| 3 | 03/19/2012 | QCD | Quit Claim Deed | SUTTON, MARYANN L | ZIESCHANG JTWROS, GENE A | | | $0.00 | 7548 | 4314665 |
| 4 | 11/20/2009 | WD | Warranty Deed | SWEENEY, STEPHEN J | SUTTON, MARYANN L | | | $187,000.00 | 92877 | 4264176 |
| 5 | 04/03/2006 | 5 | DNU - Marriage License/Name Change | SWEENEY, STEPHEN J | SWEENEY, STEPHEN J | | | $0.00 | 61457 | 4166655 |
| 6 | 07/27/2004 | WD | Warranty Deed | RALPHS JR, ROBERT E | SWEENEY, STEPHEN J | | | $141,000.00 | 43511 | 4108573 |
| 7 | 11/15/2000 | WD | Warranty Deed | WILLIAMS, JEFFREY A | RALPHS JR, ROBERT E | | | $109,000.00 | 4467 | 20020633 |
| 8 | 03/01/1996 | WD | Warranty Deed | MEADOWRIDGE, INC | WILLIAMS, JEFFREY A | | | $109,000.00 | 61041 | 96005395 |
| 9 | 01/01/1900 | OTHER | Other - Misc. Documents | Unknown | MEADOWRIDGE, INC | | | $0.00 | 40915 | 94006003 |
Payout Agreement
| No payout information available.. |