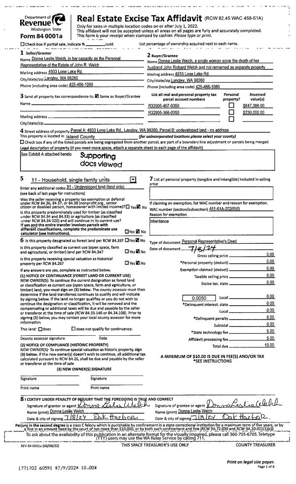
Property
Account |
| Property ID: | 736289 | Abbreviated Legal Description: | SHANNON FOREST #1 LOT 9 |
| Geographic ID: | S8152-00-00009-0 | Agent Code: | |
| Type: | Real | | |
| Tax Area: | 100 - APPRAISER-OH Schl Dist, in OH | Land Use Code | 11 |
| Open Space: | N | DFL | N |
| Historic Property: | N | Remodel Property: | N |
| Multi-Family Redevelopment: | N | | |
| Township: | | Section: | |
| Range: | |
Location |
| Address: | 851 SW QUINAULT ST OAK HARBOR, WA 98277 | Mapsco: | |
| Neighborhood: | Cycle 1 | Map ID: | 92 |
| Neighborhood CD: | 1 |
Owner |
| Name: | NOLASCO, ARSENIO O / OLIVIA L | Owner ID: | 109750 |
| Mailing Address: | 851 SW QUINAULT ST OAK HARBOR, WA 98277-7211 | % Ownership: | 100.0000000000% |
| | | Exemptions: | |
Taxes and Assessment Details
Values
| (+) Improvement Homesite Value: | + | $0 | |
| (+) Improvement Non-Homesite Value: | + | $316,626 | |
| (+) Land Homesite Value: | + | $0 | |
| (+) Land Non-Homesite Value: | + | $210,000 | |
| (+) Curr Use (HS): | + | $0 | $0 |
| (+) Curr Use (NHS): | + | $0 | $0 |
| | | -------------------------- | |
| (=) Market Value: | = | $526,626 | |
| (–) Productivity Loss: | – | $0 | |
| | | -------------------------- | |
| (=) Subtotal: | = | $526,626 | |
| (+) Senior Appraised Value: | + | $0 | |
| (+) Non-Senior Appraised Value: | + | $526,626 | |
| | | -------------------------- | |
| (=) Total Appraised Value: | = | $526,626 | |
| (–) Senior Exemption Loss: | – | $0 | |
| (–) Exemption Loss: | – | $0 | |
| | | -------------------------- | |
| (=) Taxable Value: | = | $526,626 | |
Taxing Jurisdiction
| Owner: | NOLASCO, ARSENIO O / OLIVIA L | | |
| % Ownership: | 100.0000000000% | | |
| Total Value: | $526,626 | | |
| Tax Area: | 100 - APPRAISER-OH Schl Dist, in OH |
| CF | Conservation Futures | 0.0316035091 | $526,626 | $526,626 | $16.64 | | |
| CEM1 | Cemetery #1 | 0.0040320932 | $526,626 | $526,626 | $2.12 | | |
| COH | City of Oak Harbor | 2.3001546061 | $526,626 | $526,626 | $1,211.32 | | |
| OAKBOND | City of Oak Harbor BOND | 0.1926904192 | $526,626 | $526,626 | $101.48 | | |
| HOBOND | Hospital BOND | 0.1910887512 | $526,626 | $526,626 | $100.63 | | |
| HOGEN | Hospital GEN | 0.3902502903 | $526,626 | $526,626 | $205.52 | | |
| CE | County Current Expense | 0.3708482477 | $526,626 | $526,626 | $195.30 | | |
| ISLANDEMS | Hospital GEN (EMS) | 0.5000000000 | $526,626 | $526,626 | $263.31 | | |
| LIB | Library Sno-Isle GEN | 0.3153421757 | $526,626 | $526,626 | $166.07 | | |
| NWHIDPRMT | P & R N Whidbey GEN | 0.2004466701 | $526,626 | $526,626 | $105.56 | | |
| SCH201MO | School 201 Enrichment | 1.8559231640 | $526,626 | $526,626 | $977.38 | | |
| ST | State School | 1.3035497053 | $526,626 | $526,626 | $686.48 | | |
| ST2 | State School Part 2 | 0.8169543533 | $526,626 | $526,626 | $430.23 | | |
| | Total Tax Rate: | 8.4728839852 | | | | | |
| | | | | Taxes w/Current Exemptions: | $4,462.04 | | |
| | | | | Taxes w/o Exemptions: | $4,462.04 | | |
Improvement / Building
| Improvement #1: | RESIDENTIAL | State Code: | Y | 2514.0 sqft | Value: | $316,626 |
| Bathrooms: | 2.5 | Bedrooms: | 3 | | Ceiling: | DRYWALL PAINTED | Exterior Wall/Cover: | PLY/HARDBOARD T-111 | | Floor Covering: | CARPET/VINYL 80-20 | Floor Structure: | WOOD W/SUBFLOOR | | Foundation: | CONCRETE | Heating: | FHA GAS | | Interior Finish: | DRYWALL PAINT | Plumbing Fixture Cnt: | 12 | | Roof Slope: | 5" IN 12" | Roof Structure/Cover: | CJ ASPHALT |
|
| | Type | Description | Class CD | Sub Class CD | Year Built | Area |
| | BAS | BASE/MAIN FLOOR | 3 | 0 | 1996 | 1269.9 |
| | AGR | ATTACHED GARAGE | 3 | 0 | 1996 | 399.8 |
| | OWP | OPEN WOOD PORCH W/STEPS | 3 | 0 | 1996 | 100.0 |
| | OWC | OPEN WOOD PORCH W/STEPS/ROOF/C | 3 | 0 | 1996 | 51.1 |
| | DWN | DOWNSTAIRS LIVING AREA | 3 | 0 | 1996 | 1244.1 |
Sketch
Property Image
Land
| 1 | 13 | SQ (06001-08000) | 0.0000 | 0.00 | 0.00 | 0.00 | 1.00 | $210,000 | $0 |
Roll Value History
| 2026 | N/A | N/A | N/A | N/A | N/A |
| 2025 | $316,626 | $210,000 | $0 | $526,626 | $526,626 |
| 2024 | $320,621 | $200,000 | $0 | $520,621 | $520,621 |
| 2023 | $316,626 | $190,000 | $0 | $506,626 | $506,626 |
| 2022 | $290,327 | $180,000 | $0 | $470,327 | $470,327 |
| 2021 | $255,608 | $120,000 | $0 | $375,608 | $375,608 |
| 2020 | $249,460 | $100,000 | $0 | $349,460 | $349,460 |
| 2019 | $193,513 | $150,000 | $0 | $343,513 | $343,513 |
| 2018 | $194,094 | $130,000 | $0 | $324,094 | $324,094 |
| 2017 | $177,332 | $110,000 | $0 | $287,332 | $287,332 |
| 2016 | $179,605 | $90,000 | $0 | $269,605 | $269,605 |
| 2015 | $181,879 | $70,000 | $0 | $251,879 | $251,879 |
| 2014 | $184,154 | $55,000 | $0 | $239,154 | $239,154 |
| 2013 | $186,426 | $55,000 | $0 | $241,426 | $241,426 |
| 2012 | $188,701 | $50,000 | $0 | $238,701 | $238,701 |
| 2011 | $187,097 | $50,000 | $0 | $237,097 | $237,097 |
| 2010 | $191,101 | $50,000 | $0 | $241,101 | $241,101 |
| 2009 | $199,334 | $75,000 | $0 | $274,334 | $274,334 |
| 2008 | $201,762 | $100,000 | $0 | $301,762 | $301,762 |
| 2007 | $204,213 | $100,000 | $0 | $304,213 | $304,213 |
Deed and Sales History
| 1 | 05/01/1996 | WD | Warranty Deed | WALDRON, STEVEN O | NOLASCO, ARSENIO O | | | $154,400.00 | 61603 | 96008067 |
| 2 | 11/01/1995 | WD | Warranty Deed | FORESIGHT, INVESTMENTS I | WALDRON, STEVEN O | | | $41,000.00 | 54111 | 95018873 |
| 3 | 01/01/1900 | OTHER | Other - Misc. Documents | Unknown | FORESIGHT, INVESTMENTS I | | | $0.00 | 66678 | 0 |
Payout Agreement
| No payout information available.. |