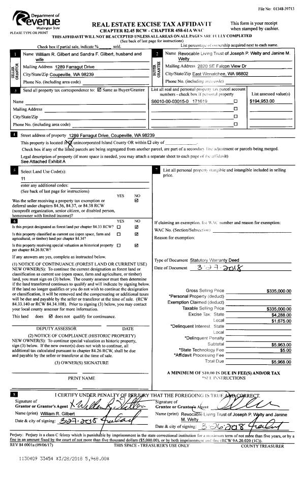
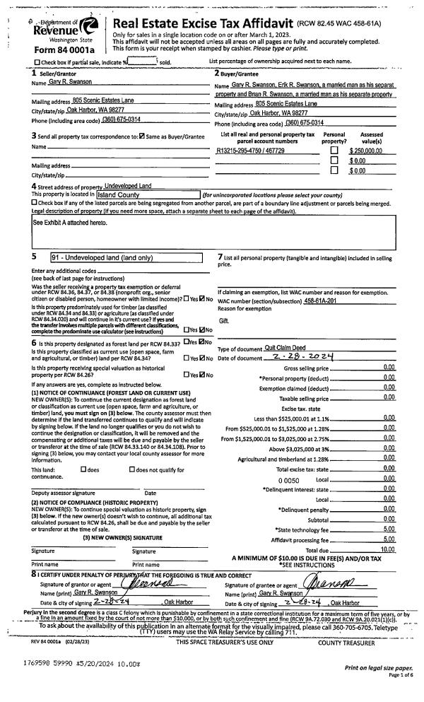
Property
Account |
| Property ID: | 736332 | Abbreviated Legal Description: | SHANNON FOREST #1 LOT 14 |
| Geographic ID: | S8152-00-00014-0 | Agent Code: | |
| Type: | Real | | |
| Tax Area: | 100 - APPRAISER-OH Schl Dist, in OH | Land Use Code | 11 |
| Open Space: | N | DFL | N |
| Historic Property: | N | Remodel Property: | N |
| Multi-Family Redevelopment: | N | | |
| Township: | | Section: | |
| Range: | |
Location |
| Address: | 1699 SW 10TH AVE OAK HARBOR, WA 98277 | Mapsco: | |
| Neighborhood: | Cycle 1 | Map ID: | 92 |
| Neighborhood CD: | 1 |
Owner |
| Name: | CHAVEZ JR, ERNIE M | Owner ID: | 283883 |
| Mailing Address: | 1699 SW 10TH AVE OAK HARBOR, WA 98277 | % Ownership: | 100.0000000000% |
| | | Exemptions: | |
Taxes and Assessment Details
Values
| (+) Improvement Homesite Value: | + | $0 | |
| (+) Improvement Non-Homesite Value: | + | $269,800 | |
| (+) Land Homesite Value: | + | $0 | |
| (+) Land Non-Homesite Value: | + | $210,000 | |
| (+) Curr Use (HS): | + | $0 | $0 |
| (+) Curr Use (NHS): | + | $0 | $0 |
| | | -------------------------- | |
| (=) Market Value: | = | $479,800 | |
| (–) Productivity Loss: | – | $0 | |
| | | -------------------------- | |
| (=) Subtotal: | = | $479,800 | |
| (+) Senior Appraised Value: | + | $0 | |
| (+) Non-Senior Appraised Value: | + | $479,800 | |
| | | -------------------------- | |
| (=) Total Appraised Value: | = | $479,800 | |
| (–) Senior Exemption Loss: | – | $0 | |
| (–) Exemption Loss: | – | $0 | |
| | | -------------------------- | |
| (=) Taxable Value: | = | $479,800 | |
Taxing Jurisdiction
| Owner: | CHAVEZ JR, ERNIE M | | |
| % Ownership: | 100.0000000000% | | |
| Total Value: | $479,800 | | |
| Tax Area: | 100 - APPRAISER-OH Schl Dist, in OH |
| CF | Conservation Futures | 0.0316035091 | $479,800 | $479,800 | $15.16 | | |
| CEM1 | Cemetery #1 | 0.0040320932 | $479,800 | $479,800 | $1.93 | | |
| COH | City of Oak Harbor | 2.3001546061 | $479,800 | $479,800 | $1,103.61 | | |
| OAKBOND | City of Oak Harbor BOND | 0.1926904192 | $479,800 | $479,800 | $92.45 | | |
| HOBOND | Hospital BOND | 0.1910887512 | $479,800 | $479,800 | $91.68 | | |
| HOGEN | Hospital GEN | 0.3902502903 | $479,800 | $479,800 | $187.24 | | |
| CE | County Current Expense | 0.3708482477 | $479,800 | $479,800 | $177.93 | | |
| ISLANDEMS | Hospital GEN (EMS) | 0.5000000000 | $479,800 | $479,800 | $239.90 | | |
| LIB | Library Sno-Isle GEN | 0.3153421757 | $479,800 | $479,800 | $151.30 | | |
| NWHIDPRMT | P & R N Whidbey GEN | 0.2004466701 | $479,800 | $479,800 | $96.17 | | |
| SCH201MO | School 201 Enrichment | 1.8559231640 | $479,800 | $479,800 | $890.47 | | |
| ST | State School | 1.3035497053 | $479,800 | $479,800 | $625.44 | | |
| ST2 | State School Part 2 | 0.8169543533 | $479,800 | $479,800 | $391.97 | | |
| | Total Tax Rate: | 8.4728839852 | | | | | |
| | | | | Taxes w/Current Exemptions: | $4,065.25 | | |
| | | | | Taxes w/o Exemptions: | $4,065.25 | | |
Improvement / Building
| Improvement #1: | RESIDENTIAL | State Code: | Y | 1676.0 sqft | Value: | $269,800 |
| Bathrooms: | 2 | Bedrooms: | 3 | | Ceiling: | DRYWALL PAINTED | Exterior Wall/Cover: | PLY/HARDBOARD T-111 | | Floor Covering: | CARPET/VINYL 80-20 | Floor Structure: | WOOD W/SUBFLOOR | | Foundation: | CONCRETE | Heating: | FHA GAS | | Interior Finish: | DRYWALL PAINT | Plumbing Fixture Cnt: | 9 | | Roof Slope: | 5" IN 12" | Roof Structure/Cover: | CJ ASPHALT |
|
| | Type | Description | Class CD | Sub Class CD | Year Built | Area |
| | BAS | BASE/MAIN FLOOR | 3 | 0 | 1997 | 972.0 |
| | AGR | ATTACHED GARAGE | 3 | 0 | 1997 | 506.0 |
| | UPS | UPPER STORY | 3 | 0 | 1997 | 704.0 |
| | OWC | OPEN WOOD PORCH W/STEPS/ROOF/C | 3 | 0 | 1997 | 150.0 |
| | OWP | OPEN WOOD PORCH W/STEPS | 3 | 0 | 1997 | 80.0 |
Sketch
Property Image
Land
| 1 | 14 | SQ (08001-12000) | 0.0000 | 0.00 | 0.00 | 0.00 | 1.00 | $210,000 | $0 |
Roll Value History
| 2026 | N/A | N/A | N/A | N/A | N/A |
| 2025 | $269,800 | $210,000 | $0 | $479,800 | $479,800 |
| 2024 | $273,204 | $200,000 | $0 | $473,204 | $473,204 |
| 2023 | $269,800 | $190,000 | $0 | $459,800 | $459,800 |
| 2022 | $247,397 | $180,000 | $0 | $427,397 | $427,397 |
| 2021 | $217,803 | $120,000 | $0 | $337,803 | $337,803 |
| 2020 | $212,404 | $100,000 | $0 | $312,404 | $312,404 |
| 2019 | $156,057 | $150,000 | $0 | $306,057 | $306,057 |
| 2018 | $156,524 | $130,000 | $0 | $286,524 | $286,524 |
| 2017 | $155,461 | $110,000 | $0 | $265,461 | $265,461 |
| 2016 | $157,335 | $90,000 | $0 | $247,335 | $247,335 |
| 2015 | $159,209 | $70,000 | $0 | $229,209 | $229,209 |
| 2014 | $161,080 | $55,000 | $0 | $216,080 | $216,080 |
| 2013 | $162,954 | $55,000 | $0 | $217,954 | $217,954 |
| 2012 | $164,828 | $50,000 | $0 | $214,828 | $214,828 |
| 2011 | $163,609 | $50,000 | $0 | $213,609 | $213,609 |
| 2010 | $173,541 | $50,000 | $0 | $223,541 | $223,541 |
| 2009 | $181,175 | $75,000 | $0 | $256,175 | $256,175 |
| 2008 | $183,625 | $100,000 | $0 | $283,625 | $283,625 |
| 2007 | $186,060 | $100,000 | $0 | $286,060 | $286,060 |
Deed and Sales History
| 1 | 02/08/2018 | WD | Warranty Deed | RENTFROW, JAMES C | CHAVEZ JR, ERNIE M | | | $310,000.00 | 32925 | 4439101 |
| 2 | 04/25/2000 | WD | Warranty Deed | BILLMANN JR, BARRY R | RENTFROW, JAMES C | | | $162,500.00 | 1631 | 20007888 |
| 3 | 10/01/1997 | WD | Warranty Deed | R, K P | BILLNANN, BARRY R | | | $152,000.00 | 73823 | 97018283 |
| 4 | 05/01/1997 | WD | Warranty Deed | FORESIGHT, INVESTMENTS I | R, K P | | | $40,750.00 | 71693 | 97007777 |
| 5 | 01/01/1900 | OTHER | Other - Misc. Documents | Unknown | FORESIGHT, INVESTMENTS I | | | $0.00 | 66678 | 0 |
| 6 | 01/01/1900 | OTHER | Other - Misc. Documents | BILLNANN, BARRY R | BILLMANN JR, BARRY R | | | $0.00 | 0 | 0 |
Payout Agreement
| No payout information available.. |