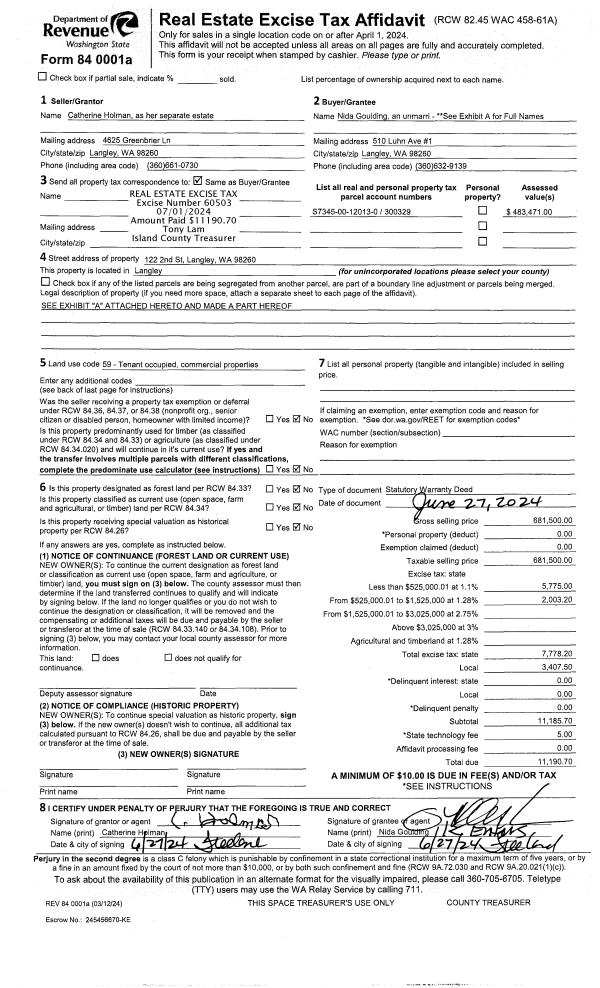
Property
Account |
| Property ID: | 736564 | Abbreviated Legal Description: | SHANNON FOREST #1 LOT 37 |
| Geographic ID: | S8152-00-00037-0 | Agent Code: | |
| Type: | Real | | |
| Tax Area: | 100 - APPRAISER-OH Schl Dist, in OH | Land Use Code | 11 |
| Open Space: | N | DFL | N |
| Historic Property: | N | Remodel Property: | N |
| Multi-Family Redevelopment: | N | | |
| Township: | | Section: | |
| Range: | |
Location |
| Address: | 1625 SW 8TH AVE OAK HARBOR, WA 98277 | Mapsco: | |
| Neighborhood: | Cycle 1 | Map ID: | 92 |
| Neighborhood CD: | 1 |
Owner |
| Name: | ESPIRITU, CARLOS M | Owner ID: | 109779 |
| Mailing Address: | ADORACION T ESPIRITU 1625 SW 8TH AVE OAK HARBOR, WA 98277-7225 | % Ownership: | 100.0000000000% |
| | | Exemptions: | |
Taxes and Assessment Details
Values
| (+) Improvement Homesite Value: | + | $0 | |
| (+) Improvement Non-Homesite Value: | + | $288,187 | |
| (+) Land Homesite Value: | + | $0 | |
| (+) Land Non-Homesite Value: | + | $210,000 | |
| (+) Curr Use (HS): | + | $0 | $0 |
| (+) Curr Use (NHS): | + | $0 | $0 |
| | | -------------------------- | |
| (=) Market Value: | = | $498,187 | |
| (–) Productivity Loss: | – | $0 | |
| | | -------------------------- | |
| (=) Subtotal: | = | $498,187 | |
| (+) Senior Appraised Value: | + | $0 | |
| (+) Non-Senior Appraised Value: | + | $498,187 | |
| | | -------------------------- | |
| (=) Total Appraised Value: | = | $498,187 | |
| (–) Senior Exemption Loss: | – | $0 | |
| (–) Exemption Loss: | – | $0 | |
| | | -------------------------- | |
| (=) Taxable Value: | = | $498,187 | |
Taxing Jurisdiction
| Owner: | ESPIRITU, CARLOS M | | |
| % Ownership: | 100.0000000000% | | |
| Total Value: | $498,187 | | |
| Tax Area: | 100 - APPRAISER-OH Schl Dist, in OH |
| CF | Conservation Futures | 0.0316035091 | $498,187 | $498,187 | $15.74 | | |
| CEM1 | Cemetery #1 | 0.0040320932 | $498,187 | $498,187 | $2.01 | | |
| COH | City of Oak Harbor | 2.3001546061 | $498,187 | $498,187 | $1,145.91 | | |
| OAKBOND | City of Oak Harbor BOND | 0.1926904192 | $498,187 | $498,187 | $96.00 | | |
| HOBOND | Hospital BOND | 0.1910887512 | $498,187 | $498,187 | $95.20 | | |
| HOGEN | Hospital GEN | 0.3902502903 | $498,187 | $498,187 | $194.42 | | |
| CE | County Current Expense | 0.3708482477 | $498,187 | $498,187 | $184.75 | | |
| ISLANDEMS | Hospital GEN (EMS) | 0.5000000000 | $498,187 | $498,187 | $249.09 | | |
| LIB | Library Sno-Isle GEN | 0.3153421757 | $498,187 | $498,187 | $157.10 | | |
| NWHIDPRMT | P & R N Whidbey GEN | 0.2004466701 | $498,187 | $498,187 | $99.86 | | |
| SCH201MO | School 201 Enrichment | 1.8559231640 | $498,187 | $498,187 | $924.60 | | |
| ST | State School | 1.3035497053 | $498,187 | $498,187 | $649.41 | | |
| ST2 | State School Part 2 | 0.8169543533 | $498,187 | $498,187 | $407.00 | | |
| | Total Tax Rate: | 8.4728839852 | | | | | |
| | | | | Taxes w/Current Exemptions: | $4,221.09 | | |
| | | | | Taxes w/o Exemptions: | $4,221.09 | | |
Improvement / Building
| Improvement #1: | RESIDENTIAL | State Code: | Y | 1676.0 sqft | Value: | $288,187 |
| Bathrooms: | 2.5 | Bedrooms: | 3 | | Ceiling: | DRYWALL PAINTED | Exterior Wall/Cover: | PLY/HARDBOARD T-111 | | Floor Covering: | CARPET/VINYL 80-20 | Floor Structure: | WOOD W/SUBFLOOR | | Foundation: | CONCRETE | Heating: | FHA GAS | | Interior Finish: | DRYWALL PAINT | Plumbing Fixture Cnt: | 11 | | Roof Slope: | 6" IN 12" | Roof Structure/Cover: | CJ ASPHALT |
|
| | Type | Description | Class CD | Sub Class CD | Year Built | Area |
| | BAS | BASE/MAIN FLOOR | 3 | 0 | 1996 | 972.0 |
| | AGR | ATTACHED GARAGE | 3 | 0 | 1996 | 506.0 |
| | UPS | UPPER STORY | 3 | 0 | 1996 | 704.0 |
| | OWP | OPEN WOOD PORCH W/STEPS | 3 | 0 | 1996 | 192.0 |
| | OWC | OPEN WOOD PORCH W/STEPS/ROOF/C | 3 | 0 | 1996 | 150.0 |
Sketch
Property Image
Land
| 1 | 13 | SQ (06001-08000) | 0.0000 | 0.00 | 0.00 | 0.00 | 1.00 | $210,000 | $0 |
Roll Value History
| 2026 | N/A | N/A | N/A | N/A | N/A |
| 2025 | $288,187 | $210,000 | $0 | $498,187 | $498,187 |
| 2024 | $291,734 | $200,000 | $0 | $491,734 | $491,734 |
| 2023 | $288,187 | $190,000 | $0 | $478,187 | $478,187 |
| 2022 | $264,165 | $180,000 | $0 | $444,165 | $444,165 |
| 2021 | $232,498 | $120,000 | $0 | $352,498 | $352,498 |
| 2020 | $226,363 | $100,000 | $0 | $326,363 | $326,363 |
| 2019 | $164,705 | $150,000 | $0 | $314,705 | $314,705 |
| 2018 | $165,187 | $130,000 | $0 | $295,187 | $295,187 |
| 2017 | $157,662 | $110,000 | $0 | $267,662 | $267,662 |
| 2016 | $159,583 | $90,000 | $0 | $249,583 | $249,583 |
| 2015 | $161,506 | $70,000 | $0 | $231,506 | $231,506 |
| 2014 | $163,430 | $55,000 | $0 | $218,430 | $218,430 |
| 2013 | $165,354 | $55,000 | $0 | $220,354 | $220,354 |
| 2012 | $167,275 | $50,000 | $0 | $217,275 | $217,275 |
| 2011 | $167,189 | $50,000 | $0 | $217,189 | $217,189 |
| 2010 | $173,945 | $50,000 | $0 | $223,945 | $223,945 |
| 2009 | $181,391 | $75,000 | $0 | $256,391 | $256,391 |
| 2008 | $183,662 | $100,000 | $0 | $283,662 | $283,662 |
| 2007 | $185,947 | $100,000 | $0 | $285,947 | $285,947 |
Deed and Sales History
| 1 | 08/28/2003 | WD | Warranty Deed | MCLAUGHLIN, MARK A | ESPIRITU, CARLOS M | | | $193,000.00 | 33920 | 4073553 |
| 2 | 08/01/1996 | WD | Warranty Deed | R, K P | MCLAUGHLIN, MARK A | | | $145,000.00 | 63058 | 96014953 |
| 3 | 03/01/1996 | WD | Warranty Deed | FORESIGHT, INVESTMENTS I | R, K P | | | $40,750.00 | 60838 | 96004429 |
| 4 | 01/01/1900 | OTHER | Other - Misc. Documents | Unknown | FORESIGHT, INVESTMENTS I | | | $0.00 | 66678 | 0 |
Payout Agreement
| No payout information available.. |