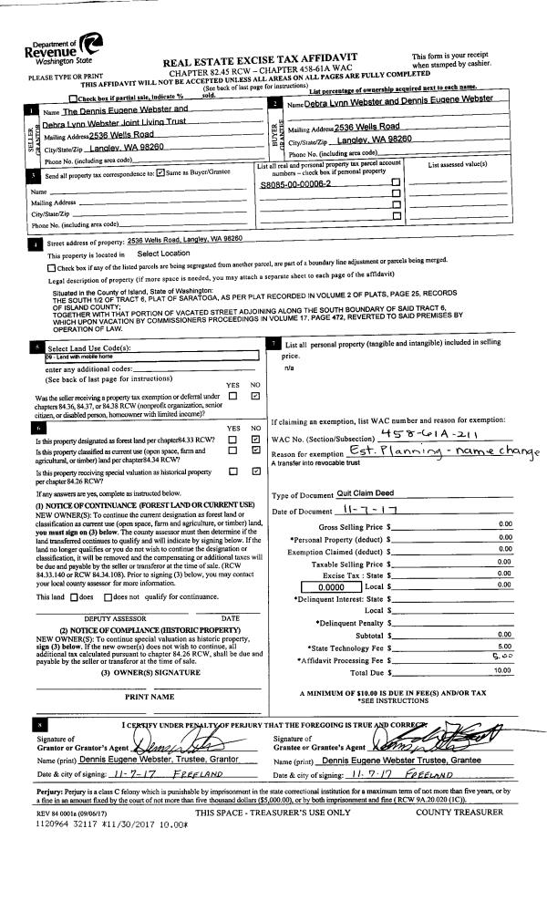
Property
Account |
| Property ID: | 737162 | Abbreviated Legal Description: | S200' OF W250' OF SW SW NW NW FR 414-1170 |
| Geographic ID: | R33014-409-0100 | Agent Code: | |
| Type: | Real | | |
| Tax Area: | 542 - APPRAISER-Stan/Cam Schl Dist, Special Dist, improved, greater than 1 acre | Land Use Code | 11 |
| Open Space: | N | DFL | N |
| Historic Property: | N | Remodel Property: | N |
| Multi-Family Redevelopment: | N | | |
| Township: | 30 | Section: | 14 |
| Range: | R3 |
Location |
| Address: | 3293 BERNIE RD CAMANO ISLAND, WA 98282 | Mapsco: | |
| Neighborhood: | 58NofTamarackS | Map ID: | 871 |
| Neighborhood CD: | 58RntamS |
Owner |
| Name: | OXBOROUGH, TIM | Owner ID: | 282711 |
| Mailing Address: | ROBIN OXBOROUGH 3259 BERNIE RD CAMANO ISLAND, WA 98282 | % Ownership: | 100.0000000000% |
| | | Exemptions: | |
Taxes and Assessment Details
Values
| (+) Improvement Homesite Value: | + | $0 | |
| (+) Improvement Non-Homesite Value: | + | $249,412 | |
| (+) Land Homesite Value: | + | $0 | |
| (+) Land Non-Homesite Value: | + | $250,000 | |
| (+) Curr Use (HS): | + | $0 | $0 |
| (+) Curr Use (NHS): | + | $0 | $0 |
| | | -------------------------- | |
| (=) Market Value: | = | $499,412 | |
| (–) Productivity Loss: | – | $0 | |
| | | -------------------------- | |
| (=) Subtotal: | = | $499,412 | |
| (+) Senior Appraised Value: | + | $0 | |
| (+) Non-Senior Appraised Value: | + | $499,412 | |
| | | -------------------------- | |
| (=) Total Appraised Value: | = | $499,412 | |
| (–) Senior Exemption Loss: | – | $0 | |
| (–) Exemption Loss: | – | $0 | |
| | | -------------------------- | |
| (=) Taxable Value: | = | $499,412 | |
Taxing Jurisdiction
| Owner: | OXBOROUGH, TIM | | |
| % Ownership: | 100.0000000000% | | |
| Total Value: | $499,412 | | |
| Tax Area: | 542 - APPRAISER-Stan/Cam Schl Dist, Special Dist, improved, greater than 1 acre |
| CF | Conservation Futures | 0.0316035091 | $499,412 | $499,412 | $15.78 | | |
| EMS1 | Fire & Rescue Dist #1 Camano GEN (EMS) | 0.3677864386 | $499,412 | $499,412 | $183.68 | | |
| FIRE1 | Fire & Rescue Dist #1 Camano GEN | 1.2502910536 | $499,412 | $499,412 | $624.41 | | |
| FIRE1BOND | Fire & Rescue Dist #1 Camano BOND | 0.1570001679 | $499,412 | $499,412 | $78.41 | | |
| CE | County Current Expense | 0.3708482477 | $499,412 | $499,412 | $185.21 | | |
| CR | County Roads | 0.4584763726 | $499,412 | $499,412 | $228.97 | | |
| LCIB | Library Sno-Isle BOND (Camano Island) | 0.0396325772 | $499,412 | $499,412 | $19.79 | | |
| LIB | Library Sno-Isle GEN | 0.3153421757 | $499,412 | $499,412 | $157.49 | | |
| SCH205_401 | School 205-401 Enrichment | 1.2698420524 | $499,412 | $499,412 | $634.17 | | |
| SCH205BOND | School 205-401 BOND | 0.9396497583 | $499,412 | $499,412 | $469.27 | | |
| ST | State School | 1.3035497053 | $499,412 | $499,412 | $651.01 | | |
| ST2 | State School Part 2 | 0.8169543533 | $499,412 | $499,412 | $408.00 | | |
| | Total Tax Rate: | 7.3209764117 | | | | | |
| | | | | Taxes w/Current Exemptions: | $3,656.19 | | |
| | | | | Taxes w/o Exemptions: | $3,656.19 | | |
Improvement / Building
| Improvement #1: | RESIDENTIAL | State Code: | Y | 988.0 sqft | Value: | $144,926 |
| Bathrooms: | 2 | Bedrooms: | 3 | | Ceiling: | DRY WALL SPRAYED | Exterior Wall/Cover: | PLY/HARDBOARD T-111 | | Floor Covering: | CARPET/VINYL 80-20 | Floor Structure: | WOOD W/SUBFLOOR | | Foundation: | CONCRETE | Heating: | BASEBOARD ELECTRIC | | Interior Finish: | DRYWALL PAINT | Plumbing Fixture Cnt: | 9 | | Roof Slope: | 4" IN 12" | Roof Structure/Cover: | CJ ASPHALT |
|
| | Type | Description | Class CD | Sub Class CD | Year Built | Area |
| | BAS | BASE/MAIN FLOOR | 3 | 0 | 1973 | 988.0 |
| | OP3 | OPEN PORCH W/ROOF | 3 | 0 | 1973 | 96.0 |
| | OP3 | OPEN PORCH W/ROOF | 3 | 0 | 1973 | 108.0 |
| | ENP | ENCLOSED PORCH | 3 | 0 | 1973 | 128.0 |
| | OCP | OPEN CARPORT | 3 | 0 | 1973 | 128.0 |
| Improvement #2: | RESIDENTIAL | State Code: | Y | 432.0 sqft | Value: | $104,486 |
| Bathrooms: | 2 | Bedrooms: | 0 | | Ceiling: | DRYWALL PAINTED | Exterior Wall/Cover: | VINYL | | Floor Covering: | CARPET 100% | Floor Structure: | SLAB ON GRADE | | Foundation: | SLAB | Heating: | WALL HEAT ELECTRIC | | Interior Finish: | DRYWALL PAINT | Plumbing Fixture Cnt: | 4 | | Roof Slope: | 5" IN 12" | Roof Structure/Cover: | ALUM LIGHT |
|
| | Type | Description | Class CD | Sub Class CD | Year Built | Area |
| | BAS | BASE/MAIN FLOOR | 2 | 0 | 1991 | 432.0 |
| | AGR | ATTACHED GARAGE | 2 | 0 | 1991 | 1296.0 |
| | CPD | OPEN CARPORT DIRT FLOOR | 2 | 0 | 1991 | 432.0 |
Sketch
Property Image
Land
| 1 | 17 | AC (01.01-02.00) | 1.1500 | 50094.00 | 0.00 | 0.00 | 1.00 | $250,000 | $0 |
Roll Value History
| 2026 | N/A | N/A | N/A | N/A | N/A |
| 2025 | $249,412 | $250,000 | $0 | $499,412 | $499,412 |
| 2024 | $256,116 | $220,000 | $0 | $476,116 | $476,116 |
| 2023 | $259,920 | $220,000 | $0 | $479,920 | $479,920 |
| 2022 | $238,804 | $200,000 | $0 | $438,804 | $438,804 |
| 2021 | $212,049 | $150,000 | $0 | $362,049 | $362,049 |
| 2020 | $206,771 | $140,000 | $0 | $346,771 | $346,771 |
| 2019 | $144,391 | $170,000 | $0 | $314,391 | $314,391 |
| 2018 | $144,935 | $150,000 | $0 | $294,935 | $294,935 |
| 2017 | $146,028 | $135,000 | $0 | $281,028 | $281,028 |
| 2016 | $148,209 | $80,000 | $0 | $228,209 | $90,918 |
| 2015 | $149,946 | $50,000 | $0 | $199,946 | $96,617 |
| 2014 | $152,202 | $50,000 | $0 | $202,202 | $97,515 |
| 2013 | $154,458 | $50,000 | $0 | $204,458 | $98,414 |
| 2012 | $156,715 | $74,400 | $0 | $231,115 | $99,313 |
| 2011 | $158,971 | $93,000 | $0 | $251,971 | $100,212 |
| 2010 | $82,824 | $93,000 | $0 | $175,824 | $28,222 |
| 2009 | $97,573 | $119,256 | $0 | $216,829 | $28,221 |
| 2008 | $98,615 | $98,615 | $0 | $197,229 | $28,221 |
| 2007 | $100,240 | $85,389 | $0 | $185,629 | $28,221 |
Deed and Sales History
| 1 | 10/25/2017 | WD | Warranty Deed | SNOWDEN, THEODORE R | OXBOROUGH, TIM | | | $168,340.00 | 31715 | 4433088 |
| 2 | 10/17/2001 | PRD | Personal Representatives Deed | SNOWDEN, ELLEN M | SNOWDEN, THEODORE R | | | $0.00 | 69139 | 0 |
| 3 | 02/01/1996 | QCD | Quit Claim Deed | Unknown | SNOWDEN, ELLEN M | | | $0.00 | 60567 | 96003078 |
Payout Agreement
| No payout information available.. |