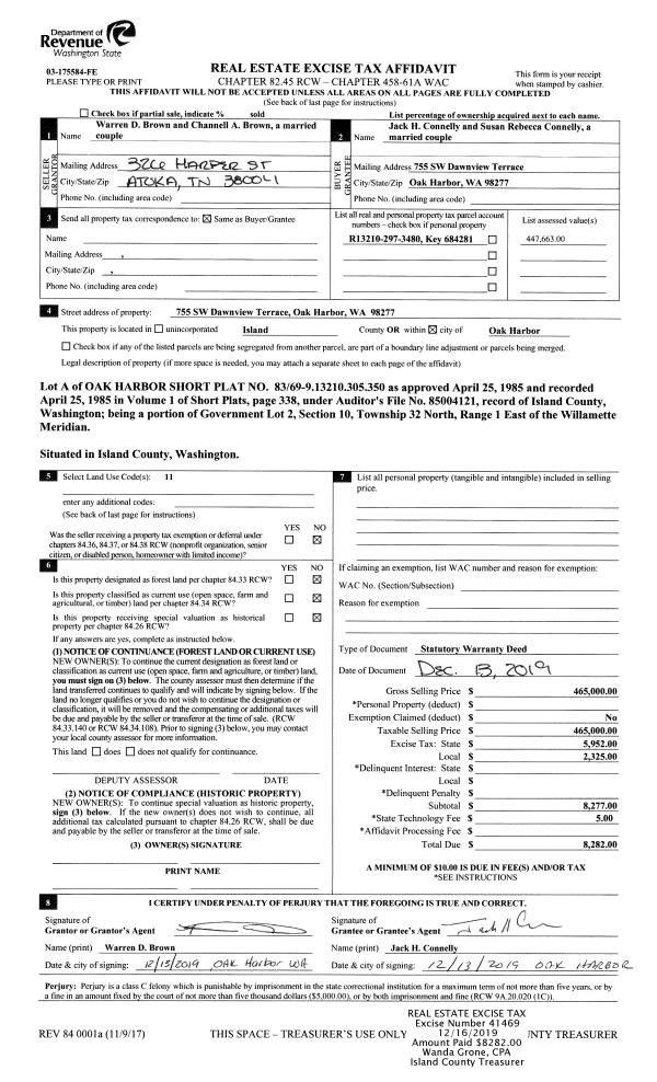
Property
Account |
| Property ID: | 737661 | Abbreviated Legal Description: | BPT NE NE DESC: BG NECR SEC 8 N89*W ALG NLN OF NE NE 638.88' S39*E178.83' S45*E281.19' TPB N88*W611.38' S962.02' S89*E287.81' ELY ALG CUR/L 290.01' N23*W15' NELY ALG CUR/L 60.05' N849.20' TPB EX PT TO IS CO FOR RD AF#87005767 EX PT TO STATE FOR WETLANDS |
| Geographic ID: | R23008-445-4890 | Agent Code: | |
| Type: | Real | | |
| Tax Area: | 312 - APPRAISER-Cpvl Schl Dist, outside Cpvl, improved, greater than 1 acre | Land Use Code | 53 |
| Open Space: | N | DFL | N |
| Historic Property: | N | Remodel Property: | N |
| Multi-Family Redevelopment: | N | | |
| Township: | 30 | Section: | 08 |
| Range: | R2 |
Location |
| Address: | 765 WONN RD GREENBANK, WA 98253 | Mapsco: | |
| Neighborhood: | 31cRR-highway 525 | Map ID: | 366 |
| Neighborhood CD: | 31cRRhw525 |
Owner |
| Name: | PORT OF COUPEVILLE | Owner ID: | 52152 |
| Mailing Address: | PO BOX 128 GREENBANK, WA 98253 | % Ownership: | 100.0000000000% |
| | | Exemptions: | EX |
Taxes and Assessment Details
Values
| (+) Improvement Homesite Value: | + | $0 | |
| (+) Improvement Non-Homesite Value: | + | $2,759,231 | |
| (+) Land Homesite Value: | + | $0 | |
| (+) Land Non-Homesite Value: | + | $460,000 | |
| (+) Curr Use (HS): | + | $0 | $0 |
| (+) Curr Use (NHS): | + | $0 | $0 |
| | | -------------------------- | |
| (=) Market Value: | = | $3,219,231 | |
| (–) Productivity Loss: | – | $0 | |
| | | -------------------------- | |
| (=) Subtotal: | = | $3,219,231 | |
| (+) Senior Appraised Value: | + | $0 | |
| (+) Non-Senior Appraised Value: | + | $3,219,231 | |
| | | -------------------------- | |
| (=) Total Appraised Value: | = | $3,219,231 | |
| (–) Senior Exemption Loss: | – | $0 | |
| (–) Exemption Loss: | – | $3,219,231 | |
| | | -------------------------- | |
| (=) Taxable Value: | = | $0 | |
Taxing Jurisdiction
| Owner: | PORT OF COUPEVILLE | | |
| % Ownership: | 100.0000000000% | | |
| Total Value: | $3,219,231 | | |
| Tax Area: | 312 - APPRAISER-Cpvl Schl Dist, outside Cpvl, improved, greater than 1 acre |
| CF | Conservation Futures | 0.0316035091 | $3,219,231 | $0 | $0.00 | | |
| CEM2 | Cemetery #2 | 0.0095056933 | $3,219,231 | $0 | $0.00 | | |
| FIRE5 | Fire & Rescue Dist #5 C Whidbey GEN | 1.2008080668 | $3,219,231 | $0 | $0.00 | | |
| FIRE5BOND | Fire & Rescue Dist #5 C Whidbey BOND | 0.1400090713 | $3,219,231 | $0 | $0.00 | | |
| HOBOND | Hospital BOND | 0.1910887512 | $3,219,231 | $0 | $0.00 | | |
| HOGEN | Hospital GEN | 0.3902502903 | $3,219,231 | $0 | $0.00 | | |
| CE | County Current Expense | 0.3708482477 | $3,219,231 | $0 | $0.00 | | |
| CR | County Roads | 0.4584763726 | $3,219,231 | $0 | $0.00 | | |
| ISLANDEMS | Hospital GEN (EMS) | 0.5000000000 | $3,219,231 | $0 | $0.00 | | |
| LIB | Library Sno-Isle GEN | 0.3153421757 | $3,219,231 | $0 | $0.00 | | |
| LIBCAP | Library Sno-Isle BOND (Cap Fac Imp Area) | 0.0543427938 | $3,219,231 | $0 | $0.00 | | |
| POCOUP | Port of Coupeville GEN | 0.1093371703 | $3,219,231 | $0 | $0.00 | | |
| POCOUPIDD | Port of Coupeville IDD | 0.3409740022 | $3,219,231 | $0 | $0.00 | | |
| COUPSDTECH | School 204 CP (TECH) | 0.7545480007 | $3,219,231 | $0 | $0.00 | | |
| SCH204MO | School 204 Enrichment | 0.6716186034 | $3,219,231 | $0 | $0.00 | | |
| ST | State School | 1.3035497053 | $3,219,231 | $0 | $0.00 | | |
| ST2 | State School Part 2 | 0.8169543533 | $3,219,231 | $0 | $0.00 | | |
| | Total Tax Rate: | 7.6592568070 | | | | | |
| | | | | Taxes w/Current Exemptions: | $0.00 | | |
| | | | | Taxes w/o Exemptions: | $24,656.92 | | |
Improvement / Building
| Improvement #1: | COMMERCIAL | State Code: | F1 | 7405.4 sqft | Value: | $1,149,361 |
| Bathrooms: | 0 | Bedrooms: | 0 | | Ceiling: | DRYWALL PAINTED | Cooling: | PACKAGE HEAT & COOL | | Exterior Wall/Cover: | WD SIDING/WOOD FRAME | Floor Covering: | SOFTWOOD 100% | | Floor Structure: | CONCRETE ON GROUND | Foundation: | SLAB | | Heating: | FHA ELECTRIC | Interior Finish: | RETAIL | | Plumbing Fixture Cnt: | 1 | Roof Structure/Cover: | COMP OPEN WOOD |
|
| | Type | Description | Class CD | Sub Class CD | Year Built | Area |
| | BAS | BASE/MAIN FLOOR | 3 | 0 | 1907 | 6429.4 |
| | OP3 | OPEN PORCH W/ROOF | 3 | 0 | 1907 | 1584.0 |
| | UPS | UPPER STORY | 3 | 0 | 1907 | 720.0 |
| | STG | STORAGE | 3 | 0 | 1907 | 256.0 |
| | UTY | STORAGE/UTILITY | 3 | 0 | 1907 | 3458.0 |
| | CPD | OPEN CARPORT DIRT FLOOR | 3 | 0 | 1907 | 100.0 |
| | oLIT | LITE POLE | 3 | 0 | 1907 | 22.0 |
| | oPV2 | PV/ASPH 3" | 3 | 0 | 1907 | 77530.0 |
| Improvement #2: | RESIDENTIAL | State Code: | F1 | 954.0 sqft | Value: | $143,806 |
| Bathrooms: | 1 | Bedrooms: | 2 | | Ceiling: | ACOUSTIC FURRED | Exterior Wall/Cover: | WOOD SIDING | | Floor Covering: | CARPET/VINYL 80-20 | Floor Structure: | WOOD W/SUBFLOOR | | Foundation: | WOOD BLOCKS | Heating: | BASEBOARD ELECTRIC | | Interior Finish: | DRYWALL PAINT | Plumbing Fixture Cnt: | 5 | | Roof Slope: | 8" IN 12" | Roof Structure/Cover: | CJ ASPHALT |
|
| | Type | Description | Class CD | Sub Class CD | Year Built | Area |
| | BAS | BASE/MAIN FLOOR | 3 | 0 | 1910 | 954.0 |
| | ATU | ATTIC UNFINISHED | 3 | 0 | 1910 | 370.0 |
| | OWR | OPEN WOOD PORCH W/STEPS/ROOF | 3 | 0 | 1910 | 78.0 |
| | DGR | DETACHED GARAGE | 3 | 0 | 1910 | 432.0 |
| | UTY | STORAGE/UTILITY | 3 | 0 | 1910 | 216.0 |
| | CPD | OPEN CARPORT DIRT FLOOR | 3 | 0 | 1910 | 140.0 |
| Improvement #3: | COMMERCIAL | State Code: | F1 | 2720.0 sqft | Value: | $338,531 |
| Bathrooms: | 0 | Bedrooms: | 0 | | Ceiling: | PAINT OPEN FLOOR BAS | Exterior Wall/Cover: | WD/WD OR STEEL STUDS | | Floor Covering: | CONCRETE SEALER | Floor Structure: | CONCRETE ON GROUND | | Foundation: | SLAB | Heating: | FHA ELECTRIC | | Interior Finish: | MARKET | Plumbing Fixture Cnt: | 1 | | Roof Structure/Cover: | COMP OPEN WOOD |   |   |
|
| | Type | Description | Class CD | Sub Class CD | Year Built | Area |
| | BAS | BASE/MAIN FLOOR | 3 | 0 | 1907 | 2720.0 |
| | OP3 | OPEN PORCH W/ROOF | 3 | 0 | 1907 | 80.0 |
| Improvement #4: | MISC | State Code: | F1 | 1152.0 sqft | Value: | $93,117 |
| Bathrooms: | 0 | Bedrooms: | 0 | | Ceiling: | DRYWALL PAINTED | Exterior Wall/Cover: | WD/WD OR STEEL STUDS | | Floor Covering: | CONCRETE SEALER | Floor Structure: | CONCRETE ON GROUND | | Foundation: | SLAB | Interior Finish: | WAREHOUSE STORAGE | | Plumbing Fixture Cnt: | 3 | Roof Structure/Cover: | COMP OPEN WOOD |
|
| | Type | Description | Class CD | Sub Class CD | Year Built | Area |
| | BAS | BASE/MAIN FLOOR | 3 | 0 | 1910 | 1152.0 |
| | ATU | ATTIC UNFINISHED | 3 | 0 | 1910 | 768.0 |
| | CPD | OPEN CARPORT DIRT FLOOR | 3 | 0 | 1910 | 576.0 |
| Improvement #5: | COMMERCIAL | State Code: | F1 | 7344.0 sqft | Value: | $823,241 |
| Bathrooms: | 0 | Bedrooms: | 0 | | Ceiling: | DRYWALL PAINTED | Exterior Wall/Cover: | WD/WD OR STEEL STUDS | | Floor Covering: | COLORED CONCRETE | Floor Structure: | PAN ON CONC JOIST | | Foundation: | CONCRETE | Heating: | FHA ELECTRIC | | Interior Finish: | RETAIL | Plumbing Fixture Cnt: | 1 | | Roof Structure/Cover: | COMP OPEN WOOD |   |   |
|
| | Type | Description | Class CD | Sub Class CD | Year Built | Area |
| | BAS | BASE/MAIN FLOOR | 3 | 0 | 2004 | 3672.0 |
| | OP1 | OPEN PORCH SLAB | 3 | 0 | 2004 | 84.0 |
| | OP1 | OPEN PORCH SLAB | 3 | 0 | 2004 | 92.8 |
| | OP1 | OPEN PORCH SLAB | 3 | 0 | 2004 | 84.0 |
| | OP1 | OPEN PORCH SLAB | 3 | 0 | 2004 | 56.0 |
| | OP1 | OPEN PORCH SLAB | 3 | 0 | 2004 | 84.0 |
| | OP1 | OPEN PORCH SLAB | 3 | 0 | 2004 | 68.8 |
| | OP1 | OPEN PORCH SLAB | 3 | 0 | 2004 | 84.0 |
| | OP3 | OPEN PORCH W/ROOF | 3 | 0 | 2004 | 78.0 |
| | OP3 | OPEN PORCH W/ROOF | 3 | 0 | 2004 | 78.0 |
| | OP3 | OPEN PORCH W/ROOF | 3 | 0 | 2004 | 78.0 |
| | OP3 | OPEN PORCH W/ROOF | 3 | 0 | 2004 | 78.0 |
| | UPS | UPPER STORY | 3 | 0 | 2004 | 3672.0 |
| Improvement #6: | RESIDENTIAL | State Code: | F1 | 1244.0 sqft | Value: | $211,175 |
| Bathrooms: | 1 | Bedrooms: | 0 | | Ceiling: | DRYWALL PAINTED | Cooling: | HEAT PUMP/CONV/V | | Exterior Wall/Cover: | WOOD SIDING | Floor Covering: | CARPET/VINYL 60-40 | | Floor Structure: | WOOD W/SUBFLOOR | Foundation: | WOOD BLOCKS | | Interior Finish: | DRYWALL PAINT | Plumbing Fixture Cnt: | 9 | | Roof Slope: | 8" IN 12" | Roof Structure/Cover: | CJ ASPHALT |
|
| | Type | Description | Class CD | Sub Class CD | Year Built | Area |
| | BAS | BASE/MAIN FLOOR | 3 | 0 | 1910 | 1244.0 |
| | ATF | ATTIC FINISHED | 3 | 0 | 1910 | 720.0 |
| | OWC | OPEN WOOD PORCH W/STEPS/ROOF/C | 3 | 0 | 1910 | 288.0 |
| | UTY | STORAGE/UTILITY | 3 | 0 | 1910 | 352.0 |
| | OP1 | OPEN PORCH SLAB | 3 | 0 | 1910 | 424.0 |
Sketch
Property Image
Land
| 1 | 68 | COMMERCIAL RETAIL | 13.2400 | 576734.40 | 0.00 | 0.00 | 1.00 | $460,000 | $0 |
Roll Value History
| 2026 | N/A | N/A | N/A | N/A | N/A |
| 2025 | $2,759,231 | $460,000 | $0 | $3,219,231 | $0 |
| 2024 | $2,674,998 | $390,000 | $0 | $3,064,998 | $0 |
| 2023 | $2,710,560 | $425,000 | $0 | $3,135,560 | $0 |
| 2022 | $2,490,192 | $425,000 | $0 | $2,915,192 | $0 |
| 2021 | $2,203,309 | $425,000 | $0 | $2,628,309 | $0 |
| 2020 | $2,165,853 | $425,000 | $0 | $2,590,853 | $0 |
| 2019 | $1,539,281 | $350,000 | $0 | $1,889,281 | $0 |
| 2018 | $1,530,667 | $331,000 | $0 | $1,861,667 | $0 |
| 2017 | $1,539,541 | $789,300 | $0 | $2,328,841 | $0 |
| 2016 | $1,557,782 | $789,300 | $0 | $2,347,082 | $0 |
| 2015 | $1,576,025 | $764,000 | $0 | $2,340,025 | $0 |
| 2014 | $1,489,085 | $764,000 | $0 | $2,253,085 | $0 |
| 2013 | $1,562,691 | $764,000 | $0 | $2,326,691 | $0 |
| 2012 | $1,580,374 | $729,620 | $0 | $2,309,994 | $0 |
| 2011 | $1,583,027 | $729,620 | $0 | $2,312,647 | $0 |
| 2010 | $1,498,716 | $729,620 | $0 | $2,228,336 | $0 |
| 2009 | $1,544,735 | $795,773 | $0 | $2,340,508 | $0 |
| 2008 | $1,587,221 | $802,200 | $0 | $2,389,421 | $0 |
| 2007 | $1,628,544 | $802,119 | $0 | $2,430,663 | $0 |
Deed and Sales History
| 1 | 09/01/1997 | REC | Real Estate Contract | ISLAND, COUNTY | PORT, OF C | | | $491,638.00 | 73170 | 97015006 |
| 2 | 09/01/1997 | WD | Warranty Deed | ST, MICHELLE V | ISLAND, COUNTY | | | $549,765.00 | 73169 | 97015005 |
| 3 | 04/01/1996 | OTHER | Other - Misc. Documents | ST, MICHELLE V | ST, MICHELLE V | | | $0.00 | 66856 | 0 |
| 4 | 01/01/1900 | OTHER | Other - Misc. Documents | Unknown | ST, MICHELLE V | | | $0.00 | 0 | 0 |
Payout Agreement
| No payout information available.. |