Property
Account |
| Property ID: | 737929 | Abbreviated Legal Description: | SPINNAKER RIDGE LOT 11 |
| Geographic ID: | S8197-00-00011-0 | Agent Code: | |
| Type: | Real | | |
| Tax Area: | 720 - APPRAISER-S Whid Schl Dist, Special District, improved & less than 1 acre | Land Use Code | 11 |
| Open Space: | N | DFL | N |
| Historic Property: | N | Remodel Property: | N |
| Multi-Family Redevelopment: | N | | |
| Township: | | Section: | |
| Range: | |
Location |
| Address: | 6276 SPINNAKER RIDGE LN CLINTON, WA 98236 | Mapsco: | |
| Neighborhood: | Cycle 4 | Map ID: | 808 |
| Neighborhood CD: | 4 |
Owner |
| Name: | TAYLOR TTEE, ARTHUR L | Owner ID: | 288316 |
| Mailing Address: | DOROTHY M TAYLOR, TTEE 6276 SPINNAKER RIDGE LN CLINTON, WA 98236 | % Ownership: | 100.0000000000% |
| | | Exemptions: | |
Taxes and Assessment Details
Values
| (+) Improvement Homesite Value: | + | $0 | |
| (+) Improvement Non-Homesite Value: | + | $654,051 | |
| (+) Land Homesite Value: | + | $0 | |
| (+) Land Non-Homesite Value: | + | $300,000 | |
| (+) Curr Use (HS): | + | $0 | $0 |
| (+) Curr Use (NHS): | + | $0 | $0 |
| | | -------------------------- | |
| (=) Market Value: | = | $954,051 | |
| (–) Productivity Loss: | – | $0 | |
| | | -------------------------- | |
| (=) Subtotal: | = | $954,051 | |
| (+) Senior Appraised Value: | + | $0 | |
| (+) Non-Senior Appraised Value: | + | $954,051 | |
| | | -------------------------- | |
| (=) Total Appraised Value: | = | $954,051 | |
| (–) Senior Exemption Loss: | – | $0 | |
| (–) Exemption Loss: | – | $0 | |
| | | -------------------------- | |
| (=) Taxable Value: | = | $954,051 | |
Taxing Jurisdiction
| Owner: | TAYLOR TTEE, ARTHUR L | | |
| % Ownership: | 100.0000000000% | | |
| Total Value: | $954,051 | | |
| Tax Area: | 720 - APPRAISER-S Whid Schl Dist, Special District, improved & less than 1 acre |
| CF | Conservation Futures | 0.0316035091 | $954,051 | $954,051 | $30.15 | | |
| FIRE3 | Fire & Rescue Dist #3 S Whidbey GEN | 1.2004855531 | $954,051 | $954,051 | $1,145.32 | | |
| HOBOND | Hospital BOND | 0.1910887512 | $954,051 | $954,051 | $182.31 | | |
| HOGEN | Hospital GEN | 0.3902502903 | $954,051 | $954,051 | $372.32 | | |
| CE | County Current Expense | 0.3708482477 | $954,051 | $954,051 | $353.81 | | |
| CR | County Roads | 0.4584763726 | $954,051 | $954,051 | $437.41 | | |
| ISLANDEMS | Hospital GEN (EMS) | 0.5000000000 | $954,051 | $954,051 | $477.03 | | |
| LIB | Library Sno-Isle GEN | 0.3153421757 | $954,051 | $954,051 | $300.85 | | |
| PORTWHID | Port of S Whidbey GEN | 0.1094540357 | $954,051 | $954,051 | $104.42 | | |
| SCH206BOND | School 206 BOND | 0.3161759235 | $954,051 | $954,051 | $301.65 | | |
| SCH206MO | School 206 Enrichment | 0.4547169547 | $954,051 | $954,051 | $433.82 | | |
| ST | State School | 1.3035497053 | $954,051 | $954,051 | $1,243.65 | | |
| ST2 | State School Part 2 | 0.8169543533 | $954,051 | $954,051 | $779.42 | | |
| SWHIDPRBD | P & R S Whidbey BOND | 0.0152817568 | $954,051 | $954,051 | $14.58 | | |
| SWHIDPRBD2 | P & R S Whidbey BOND2 | 0.0138911264 | $954,051 | $954,051 | $13.25 | | |
| SWHIDPRMT | P & R S Whidbey GEN | 0.2053334452 | $954,051 | $954,051 | $195.90 | | |
| | Total Tax Rate: | 6.6934522006 | | | | | |
| | | | | Taxes w/Current Exemptions: | $6,385.89 | | |
| | | | | Taxes w/o Exemptions: | $6,385.89 | | |
Improvement / Building
| Improvement #1: | RESIDENTIAL | State Code: | Y | 4087.8 sqft | Value: | $654,051 |
| Bathrooms: | 3 | Bedrooms: | 3 | | Ceiling: | DRYWALL PAINTED | Exterior Wall/Cover: | CEMENT FIBER | | Floor Covering: | HARDWOOD/CARP 60-40 | Floor Structure: | WOOD W/SUBFLOOR | | Foundation: | CONCRETE | Heating: | RADIANT FLOOR | | Interior Finish: | DRYWALL PAINT | Plumbing Fixture Cnt: | 15 | | Roof Slope: | 8" IN 12" | Roof Structure/Cover: | CJ ASPHALT |
|
| | Type | Description | Class CD | Sub Class CD | Year Built | Area |
| | BAS | BASE/MAIN FLOOR | 4 | 0 | 1998 | 2087.0 |
| | DWN | DOWNSTAIRS LIVING AREA | 4 | 0 | 1998 | 320.0 |
| | DWN | DOWNSTAIRS LIVING AREA | 4 | 0 | 1998 | 333.0 |
| | OP2 | OPEN PORCH W/STEPS | 4 | 0 | 1998 | 379.0 |
| | OP4 | OPEN PORCH W/CEILING-ROOF | 4 | 0 | 1998 | 49.0 |
| | AGR | ATTACHED GARAGE | 4 | 0 | 1998 | 928.0 |
| | OWP | OPEN WOOD PORCH W/STEPS | 4 | 0 | 1998 | 236.0 |
| | OWC | OPEN WOOD PORCH W/STEPS/ROOF/C | 4 | 0 | 1998 | 143.0 |
| | DWN | DOWNSTAIRS LIVING AREA | 4 | 0 | 1998 | 1347.8 |
Sketch
Property Image
Land
| 1 | 15 | SQ (12001-21780) | 0.0000 | 0.00 | 0.00 | 0.00 | 1.00 | $300,000 | $0 |
Roll Value History
| 2026 | N/A | N/A | N/A | N/A | N/A |
| 2025 | $654,051 | $300,000 | $0 | $954,051 | $954,051 |
| 2024 | $662,002 | $280,000 | $0 | $942,002 | $942,002 |
| 2023 | $669,955 | $280,000 | $0 | $949,955 | $949,955 |
| 2022 | $613,849 | $250,000 | $0 | $863,849 | $863,849 |
| 2021 | $551,881 | $200,000 | $0 | $751,881 | $751,881 |
| 2020 | $503,830 | $180,000 | $0 | $683,830 | $683,830 |
| 2019 | $405,762 | $240,000 | $0 | $645,762 | $645,762 |
| 2018 | $406,980 | $200,000 | $0 | $606,980 | $606,980 |
| 2017 | $409,392 | $200,000 | $0 | $609,392 | $609,392 |
| 2016 | $414,265 | $150,000 | $0 | $564,265 | $564,265 |
| 2015 | $419,139 | $100,000 | $0 | $519,139 | $519,139 |
| 2014 | $411,026 | $100,000 | $0 | $511,026 | $511,026 |
| 2013 | $415,945 | $100,000 | $0 | $515,945 | $515,945 |
| 2012 | $420,863 | $106,250 | $0 | $527,113 | $527,113 |
| 2011 | $425,781 | $125,000 | $0 | $550,781 | $550,781 |
| 2010 | $439,464 | $125,000 | $0 | $564,464 | $564,464 |
| 2009 | $458,277 | $125,000 | $0 | $583,277 | $583,277 |
| 2008 | $481,156 | $125,000 | $0 | $606,156 | $606,156 |
| 2007 | $486,647 | $125,000 | $0 | $611,647 | $611,647 |
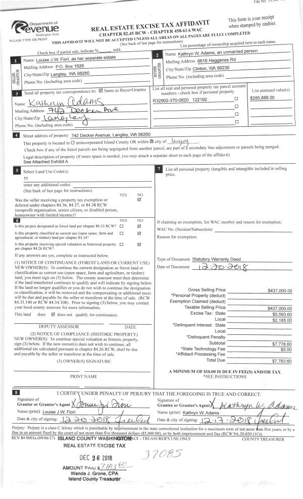
Deed and Sales History
| 1 | 11/27/2018 | QCD | Quit Claim Deed | TAYLOR, ARTHUR L / DOROTHY M | TAYLOR TTEE, ARTHUR L | | | $0.00 | 37069 | 4456967 |
| 2 | 08/01/1997 | WD | Warranty Deed | R, & D | TAYLOR, ARTHUR L | | | $105,000.00 | 72722 | 97012912 |
| 3 | 01/01/1900 | OTHER | Other - Misc. Documents | Unknown | R, & D | | | $0.00 | 66449 | 0 |
Payout Agreement
| No payout information available.. |