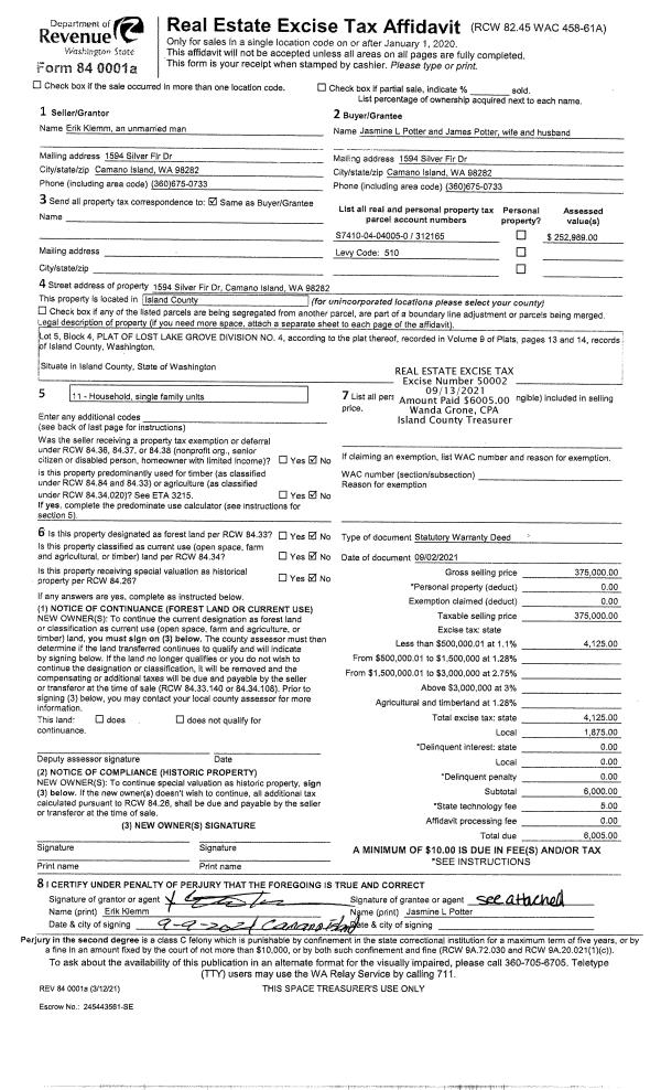
Property
Account |
| Property ID: | 738027 | Abbreviated Legal Description: | SPINNAKER RIDGE LOT 21 |
| Geographic ID: | S8197-00-00021-0 | Agent Code: | |
| Type: | Real | | |
| Tax Area: | 720 - APPRAISER-S Whid Schl Dist, Special District, improved & less than 1 acre | Land Use Code | 11 |
| Open Space: | N | DFL | N |
| Historic Property: | N | Remodel Property: | N |
| Multi-Family Redevelopment: | N | | |
| Township: | | Section: | |
| Range: | |
Location |
| Address: | 6253 SPINNAKER RIDGE LN CLINTON, WA 98236 | Mapsco: | |
| Neighborhood: | Cycle 4 | Map ID: | 808 |
| Neighborhood CD: | 4 |
Owner |
| Name: | FRATES TTEE, LYN ROBIN | Owner ID: | 305312 |
| Mailing Address: | ANNEMARIE HEDWIG SCHWEIGER TTEE 6253 SPINNAKER RIDGE LN CLINTON, WA 98236 | % Ownership: | 100.0000000000% |
| | | Exemptions: | |
Taxes and Assessment Details
Values
| (+) Improvement Homesite Value: | + | $0 | |
| (+) Improvement Non-Homesite Value: | + | $888,330 | |
| (+) Land Homesite Value: | + | $0 | |
| (+) Land Non-Homesite Value: | + | $330,000 | |
| (+) Curr Use (HS): | + | $0 | $0 |
| (+) Curr Use (NHS): | + | $0 | $0 |
| | | -------------------------- | |
| (=) Market Value: | = | $1,218,330 | |
| (–) Productivity Loss: | – | $0 | |
| | | -------------------------- | |
| (=) Subtotal: | = | $1,218,330 | |
| (+) Senior Appraised Value: | + | $0 | |
| (+) Non-Senior Appraised Value: | + | $1,218,330 | |
| | | -------------------------- | |
| (=) Total Appraised Value: | = | $1,218,330 | |
| (–) Senior Exemption Loss: | – | $0 | |
| (–) Exemption Loss: | – | $0 | |
| | | -------------------------- | |
| (=) Taxable Value: | = | $1,218,330 | |
Taxing Jurisdiction
| Owner: | FRATES TTEE, LYN ROBIN | | |
| % Ownership: | 100.0000000000% | | |
| Total Value: | $1,218,330 | | |
| Tax Area: | 720 - APPRAISER-S Whid Schl Dist, Special District, improved & less than 1 acre |
| CF | Conservation Futures | 0.0316035091 | $1,218,330 | $1,218,330 | $38.50 | | |
| FIRE3 | Fire & Rescue Dist #3 S Whidbey GEN | 1.2004855531 | $1,218,330 | $1,218,330 | $1,462.59 | | |
| HOBOND | Hospital BOND | 0.1910887512 | $1,218,330 | $1,218,330 | $232.81 | | |
| HOGEN | Hospital GEN | 0.3902502903 | $1,218,330 | $1,218,330 | $475.45 | | |
| CE | County Current Expense | 0.3708482477 | $1,218,330 | $1,218,330 | $451.82 | | |
| CR | County Roads | 0.4584763726 | $1,218,330 | $1,218,330 | $558.58 | | |
| ISLANDEMS | Hospital GEN (EMS) | 0.5000000000 | $1,218,330 | $1,218,330 | $609.17 | | |
| LIB | Library Sno-Isle GEN | 0.3153421757 | $1,218,330 | $1,218,330 | $384.19 | | |
| PORTWHID | Port of S Whidbey GEN | 0.1094540357 | $1,218,330 | $1,218,330 | $133.35 | | |
| SCH206BOND | School 206 BOND | 0.3161759235 | $1,218,330 | $1,218,330 | $385.21 | | |
| SCH206MO | School 206 Enrichment | 0.4547169547 | $1,218,330 | $1,218,330 | $554.00 | | |
| ST | State School | 1.3035497053 | $1,218,330 | $1,218,330 | $1,588.15 | | |
| ST2 | State School Part 2 | 0.8169543533 | $1,218,330 | $1,218,330 | $995.32 | | |
| SWHIDPRBD | P & R S Whidbey BOND | 0.0152817568 | $1,218,330 | $1,218,330 | $18.62 | | |
| SWHIDPRBD2 | P & R S Whidbey BOND2 | 0.0138911264 | $1,218,330 | $1,218,330 | $16.92 | | |
| SWHIDPRMT | P & R S Whidbey GEN | 0.2053334452 | $1,218,330 | $1,218,330 | $250.16 | | |
| | Total Tax Rate: | 6.6934522006 | | | | | |
| | | | | Taxes w/Current Exemptions: | $8,154.84 | | |
| | | | | Taxes w/o Exemptions: | $8,154.84 | | |
Improvement / Building
| Improvement #1: | RESIDENTIAL | State Code: | Y | 3829.8 sqft | Value: | $888,330 |
| Bathrooms: | 3 | Bedrooms: | 3 | | Ceiling: | DRYWALL PAINTED | Cooling: | HEAT PUMP/CONV/V | | Exterior Wall/Cover: | PLY/HARDBOARD T-111 | Floor Covering: | HARDWOOD/CARP 80-20 | | Floor Structure: | WOOD W/SUBFLOOR | Foundation: | CONCRETE | | Interior Finish: | DRYWALL PAINT | Plumbing Fixture Cnt: | 16 | | Roof Slope: | 4" IN 12" | Roof Structure/Cover: | CJ ASPHALT |
|
| | Type | Description | Class CD | Sub Class CD | Year Built | Area |
| | BAS | BASE/MAIN FLOOR | 5 | 0 | 1999 | 1994.9 |
| | OP1 | OPEN PORCH SLAB | 5 | 0 | 1999 | 76.9 |
| | OP4 | OPEN PORCH W/CEILING-ROOF | 5 | 0 | 1999 | 160.0 |
| | AGR | ATTACHED GARAGE | 5 | 0 | 1999 | 577.4 |
| | UPS | UPPER STORY | 5 | 0 | 1999 | 1834.9 |
| | OWP | OPEN WOOD PORCH W/STEPS | 5 | 0 | 1999 | 108.0 |
| | OWP | OPEN WOOD PORCH W/STEPS | 5 | 0 | 1999 | 40.2 |
| | OWC | OPEN WOOD PORCH W/STEPS/ROOF/C | 5 | 0 | 1999 | 661.1 |
| | OWC | OPEN WOOD PORCH W/STEPS/ROOF/C | 5 | 0 | 1999 | 195.5 |
Sketch
Property Image
Land
| 1 | 15 | SQ (12001-21780) | 0.0000 | 0.00 | 0.00 | 0.00 | 1.00 | $330,000 | $0 |
Roll Value History
| 2026 | N/A | N/A | N/A | N/A | N/A |
| 2025 | $888,330 | $330,000 | $0 | $1,218,330 | $1,218,330 |
| 2024 | $898,511 | $320,000 | $0 | $1,218,511 | $1,218,511 |
| 2023 | $908,695 | $320,000 | $0 | $1,228,695 | $1,228,695 |
| 2022 | $829,755 | $290,000 | $0 | $1,119,755 | $1,119,755 |
| 2021 | $727,920 | $230,000 | $0 | $957,920 | $957,920 |
| 2020 | $698,595 | $230,000 | $0 | $928,595 | $928,595 |
| 2019 | $614,205 | $240,000 | $0 | $854,205 | $854,205 |
| 2018 | $615,851 | $200,000 | $0 | $815,851 | $815,851 |
| 2017 | $548,531 | $200,000 | $0 | $748,531 | $748,531 |
| 2016 | $554,764 | $150,000 | $0 | $704,764 | $704,764 |
| 2015 | $560,998 | $100,000 | $0 | $660,998 | $660,998 |
| 2014 | $558,411 | $100,000 | $0 | $658,411 | $658,411 |
| 2013 | $564,546 | $100,000 | $0 | $664,546 | $664,546 |
| 2012 | $570,683 | $106,250 | $0 | $676,933 | $676,933 |
| 2011 | $535,225 | $125,000 | $0 | $660,225 | $660,225 |
| 2010 | $505,251 | $125,000 | $0 | $630,251 | $630,251 |
| 2009 | $521,295 | $125,000 | $0 | $646,295 | $646,295 |
| 2008 | $480,453 | $125,000 | $0 | $605,453 | $605,453 |
| 2007 | $486,093 | $125,000 | $0 | $611,093 | $611,093 |
Deed and Sales History
| 1 | 05/02/2022 | QCD | Quit Claim Deed | FRATES, LYN R | FRATES TTEE, LYN ROBIN | | | $0.00 | 53264 | 4545887 |
| 2 | 02/16/2021 | QCD | Quit Claim Deed | FRATES, LYN R | FRATES, LYN R | | | $0.00 | 46977 | 4511200 |
| 3 | 05/22/2020 | WD | Warranty Deed | FULLNER TTEE, LEON STEWART | FRATES, LYN R | | | $1,020,000.00 | 43112 | 4487323 |
| 4 | 06/20/2018 | QCD | Quit Claim Deed | FULLNER, LEON STEWART | FULLNER TTEE, LEON STEWART | | | $0.00 | 34655 | 4446707 |
| 5 | 10/20/2017 | WD | Warranty Deed | KELSTROM, NELS H | FULLNER, LEON STEWART | | | $900,000.00 | 31730 | 4433206 |
| 6 | 07/03/2007 | WD | Warranty Deed | CLAUS TRUSTEE, CHARLES B | KELSTROM, NELS H | | | $721,000.00 | 72263 | 4206411 |
| 7 | 09/22/2006 | 5 | DNU - Marriage License/Name Change | CLAUS, CHARLES & | CLAUS TRUSTEE, CHARLES B | | | $0.00 | 64084 | 4182483 |
| 8 | 08/01/1997 | WD | Warranty Deed | R, & D | CLAUS, CHARLES & | | | $115,000.00 | 72692 | 97012732 |
| 9 | 01/01/1900 | OTHER | Other - Misc. Documents | Unknown | R, & D | | | $0.00 | 66449 | 0 |
Payout Agreement
| No payout information available.. |