Property
Account |
| Property ID: | 738214 | Abbreviated Legal Description: | LOT 1 SP 50-95.32926.236-1690 V3 SP P79 AF#96005490 |
| Geographic ID: | R32926-252-1520 | Agent Code: | |
| Type: | Real | | |
| Tax Area: | 712 - APPRAISER-S Whid Schl Dist, outside Langley, improved, greater than 1 acre | Land Use Code | 11 |
| Open Space: | N | DFL | N |
| Historic Property: | N | Remodel Property: | N |
| Multi-Family Redevelopment: | N | | |
| Township: | 29 | Section: | 26 |
| Range: | R3 |
Location |
| Address: | 6616 MAPLELEAF DR CLINTON, WA 98236 | Mapsco: | |
| Neighborhood: | Cycle 4 | Map ID: | 816 |
| Neighborhood CD: | 4 |
Owner |
| Name: | BALLESTRASSE, BRIAN J | Owner ID: | 285878 |
| Mailing Address: | LESLIE LYNN BALLESTRASSE 6616 MAPLELEAF DR CLINTON, WA 98236 | % Ownership: | 100.0000000000% |
| | | Exemptions: | |
Taxes and Assessment Details
Values
| (+) Improvement Homesite Value: | + | $0 | |
| (+) Improvement Non-Homesite Value: | + | $282,261 | |
| (+) Land Homesite Value: | + | $0 | |
| (+) Land Non-Homesite Value: | + | $280,000 | |
| (+) Curr Use (HS): | + | $0 | $0 |
| (+) Curr Use (NHS): | + | $0 | $0 |
| | | -------------------------- | |
| (=) Market Value: | = | $562,261 | |
| (–) Productivity Loss: | – | $0 | |
| | | -------------------------- | |
| (=) Subtotal: | = | $562,261 | |
| (+) Senior Appraised Value: | + | $0 | |
| (+) Non-Senior Appraised Value: | + | $562,261 | |
| | | -------------------------- | |
| (=) Total Appraised Value: | = | $562,261 | |
| (–) Senior Exemption Loss: | – | $0 | |
| (–) Exemption Loss: | – | $0 | |
| | | -------------------------- | |
| (=) Taxable Value: | = | $562,261 | |
Taxing Jurisdiction
| Owner: | BALLESTRASSE, BRIAN J | | |
| % Ownership: | 100.0000000000% | | |
| Total Value: | $562,261 | | |
| Tax Area: | 712 - APPRAISER-S Whid Schl Dist, outside Langley, improved, greater than 1 acre |
| CF | Conservation Futures | 0.0316035091 | $562,261 | $562,261 | $17.77 | | |
| FIRE3 | Fire & Rescue Dist #3 S Whidbey GEN | 1.2004855531 | $562,261 | $562,261 | $674.99 | | |
| HOBOND | Hospital BOND | 0.1910887512 | $562,261 | $562,261 | $107.44 | | |
| HOGEN | Hospital GEN | 0.3902502903 | $562,261 | $562,261 | $219.42 | | |
| CE | County Current Expense | 0.3708482477 | $562,261 | $562,261 | $208.51 | | |
| CR | County Roads | 0.4584763726 | $562,261 | $562,261 | $257.78 | | |
| ISLANDEMS | Hospital GEN (EMS) | 0.5000000000 | $562,261 | $562,261 | $281.13 | | |
| LIB | Library Sno-Isle GEN | 0.3153421757 | $562,261 | $562,261 | $177.30 | | |
| PORTWHID | Port of S Whidbey GEN | 0.1094540357 | $562,261 | $562,261 | $61.54 | | |
| SCH206BOND | School 206 BOND | 0.3161759235 | $562,261 | $562,261 | $177.77 | | |
| SCH206MO | School 206 Enrichment | 0.4547169547 | $562,261 | $562,261 | $255.67 | | |
| ST | State School | 1.3035497053 | $562,261 | $562,261 | $732.94 | | |
| ST2 | State School Part 2 | 0.8169543533 | $562,261 | $562,261 | $459.34 | | |
| SWHIDPRBD | P & R S Whidbey BOND | 0.0152817568 | $562,261 | $562,261 | $8.59 | | |
| SWHIDPRBD2 | P & R S Whidbey BOND2 | 0.0138911264 | $562,261 | $562,261 | $7.81 | | |
| SWHIDPRMT | P & R S Whidbey GEN | 0.2053334452 | $562,261 | $562,261 | $115.45 | | |
| | Total Tax Rate: | 6.6934522006 | | | | | |
| | | | | Taxes w/Current Exemptions: | $3,763.45 | | |
| | | | | Taxes w/o Exemptions: | $3,763.45 | | |
Improvement / Building
| Improvement #1: | RESIDENTIAL | State Code: | Y | 1360.0 sqft | Value: | $282,261 |
| Bathrooms: | 2 | Bedrooms: | 3 | | Ceiling: | DRYWALL PAINTED | Cooling: | HEAT PUMP/CONV/V | | Exterior Wall/Cover: | CEMENT FIBER | Floor Covering: | CARPET/VINYL 60-40 | | Floor Structure: | WOOD W/SUBFLOOR | Foundation: | CONCRETE | | Interior Finish: | DRYWALL PAINT | Plumbing Fixture Cnt: | 10 | | Roof Slope: | 5" IN 12" | Roof Structure/Cover: | CJ ASPHALT |
|
| | Type | Description | Class CD | Sub Class CD | Year Built | Area |
| | BAS | BASE/MAIN FLOOR | 3 | 0 | 2003 | 1360.0 |
| | AGR | ATTACHED GARAGE | 3 | 0 | 2003 | 576.0 |
| | OWP | OPEN WOOD PORCH W/STEPS | 3 | 0 | 2003 | 190.0 |
| | OWC | OPEN WOOD PORCH W/STEPS/ROOF/C | 3 | 0 | 2003 | 72.0 |
Sketch
| No sketches available for this property. |
Property Image
Land
| 1 | 17 | AC (01.01-02.00) | 1.9800 | 86248.80 | 0.00 | 0.00 | 1.00 | $280,000 | $0 |
Roll Value History
| 2026 | N/A | N/A | N/A | N/A | N/A |
| 2025 | $282,261 | $280,000 | $0 | $562,261 | $562,261 |
| 2024 | $298,552 | $270,000 | $0 | $568,552 | $568,552 |
| 2023 | $302,137 | $260,000 | $0 | $562,137 | $562,137 |
| 2022 | $276,843 | $250,000 | $0 | $526,843 | $526,843 |
| 2021 | $243,545 | $175,000 | $0 | $418,545 | $418,545 |
| 2020 | $214,539 | $165,000 | $0 | $379,539 | $379,539 |
| 2019 | $153,577 | $200,000 | $0 | $353,577 | $353,577 |
| 2018 | $154,028 | $170,000 | $0 | $324,028 | $324,028 |
| 2017 | $154,929 | $150,000 | $0 | $304,929 | $304,929 |
| 2016 | $156,730 | $115,000 | $0 | $271,730 | $271,730 |
| 2015 | $158,531 | $100,000 | $0 | $258,531 | $258,531 |
| 2014 | $158,531 | $100,000 | $0 | $258,531 | $258,531 |
| 2013 | $161,214 | $85,000 | $0 | $246,214 | $246,214 |
| 2012 | $163,017 | $125,000 | $0 | $288,017 | $288,017 |
| 2011 | $164,817 | $125,000 | $0 | $289,817 | $289,817 |
| 2010 | $169,632 | $125,000 | $0 | $294,632 | $294,632 |
| 2009 | $176,705 | $155,000 | $0 | $331,705 | $331,705 |
| 2008 | $165,940 | $165,000 | $0 | $330,940 | $330,940 |
| 2007 | $165,985 | $165,000 | $0 | $330,985 | $330,985 |
Deed and Sales History
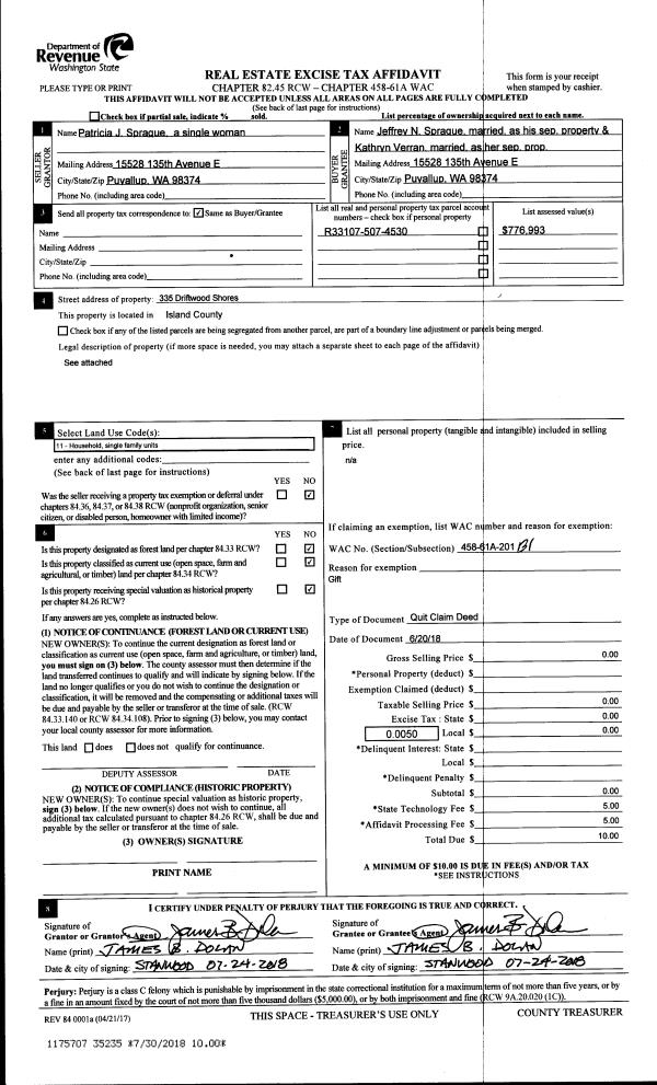
| 1 | 06/29/2018 | QCD | Quit Claim Deed | BALLESTRASSE, BRIAN J | BALLESTRASSE, BRIAN J | | | $0.00 | 34866 | 4447458 |
| 2 | 09/15/2017 | QCD | Quit Claim Deed | BALLESTRASSE, BRIAN J | BALLESTRASSE, BRIAN J | | | $0.00 | 31131 | 4430381 |
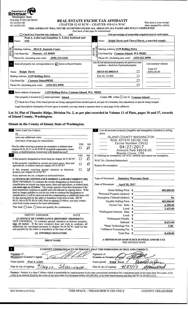
| 3 | 09/15/2017 | WD | Warranty Deed | BALLESTRASSE, SEAN F | BALLESTRASSE, BRIAN J | | | $235,000.00 | 31130 | 4430380 |
| 4 | 06/19/2017 | QCD | Quit Claim Deed | HANSEN, CHARLOTTE J | BALLESTRASSE, SEAN F | | | $0.00 | 29967 | 4425246 |
| 5 | 01/01/1995 | QCD | Quit Claim Deed | HANSEN, CHARLOTTE J | HANSEN, CHARLOTTE J | | | $0.00 | 61575 | 96007885 |
| 6 | 01/01/1900 | OTHER | Other - Misc. Documents | Unknown | HANSEN, CHARLOTTE J | | | $0.00 | 50699 | 95003248 |
Payout Agreement
| No payout information available.. |